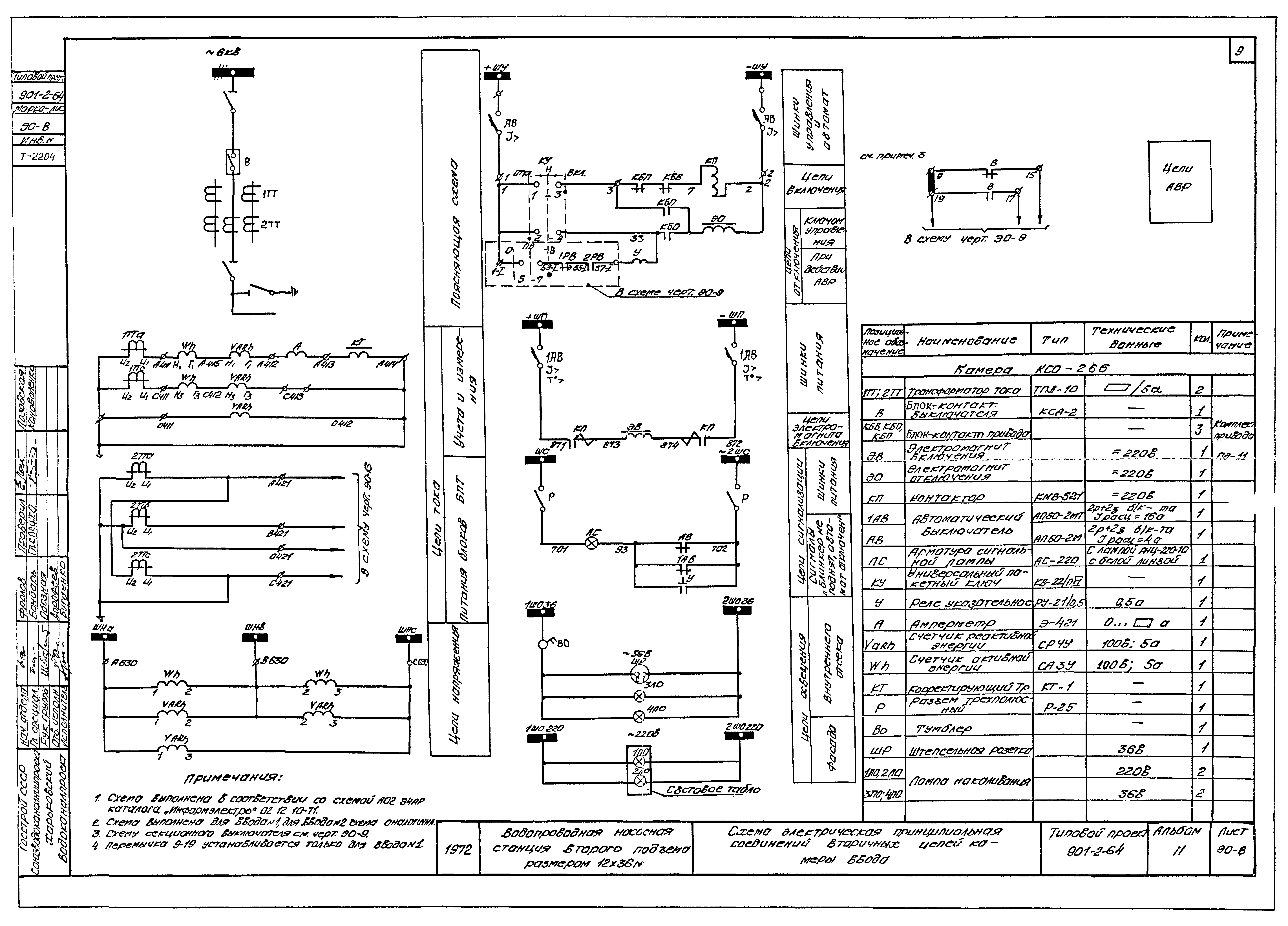
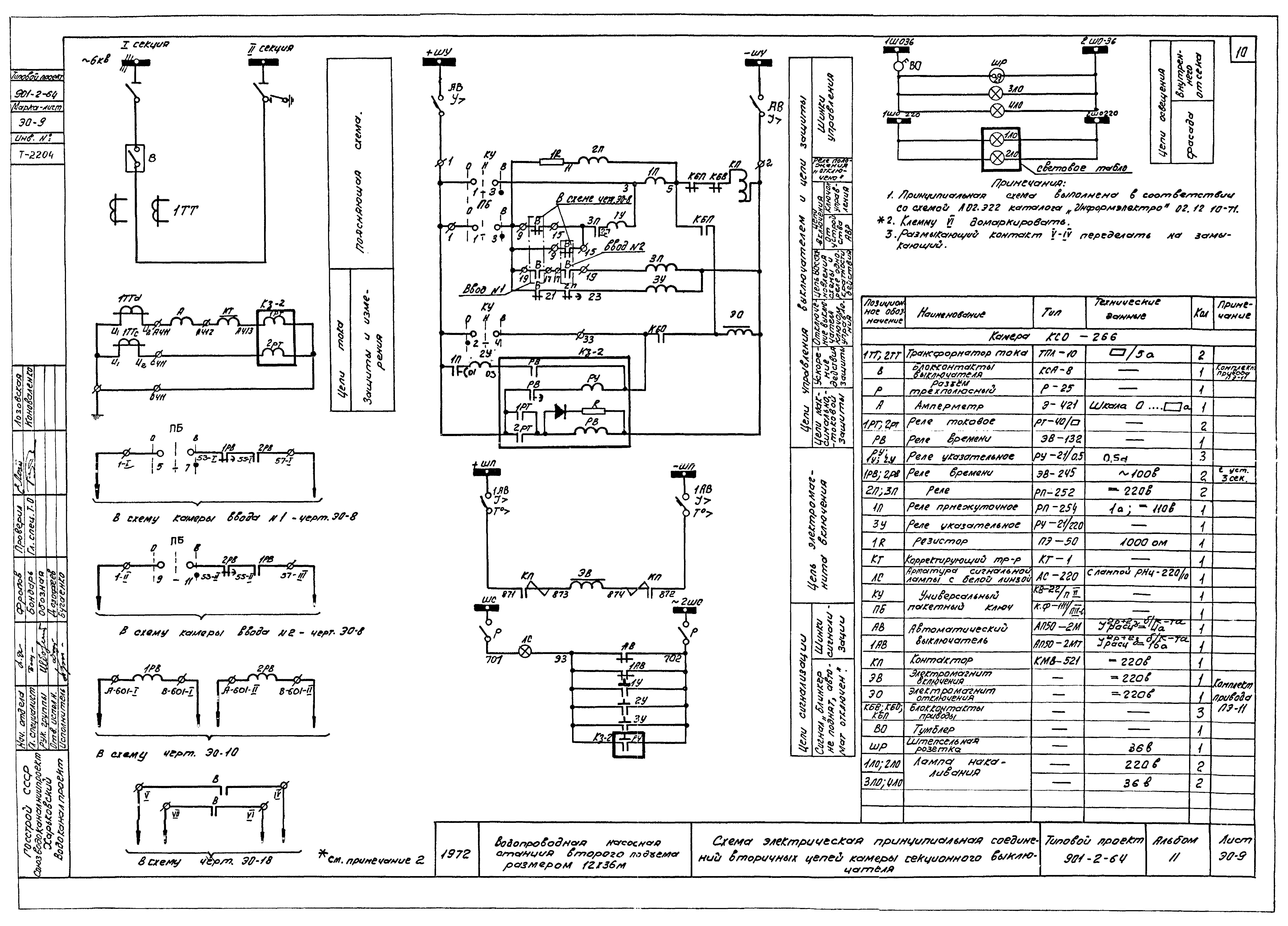
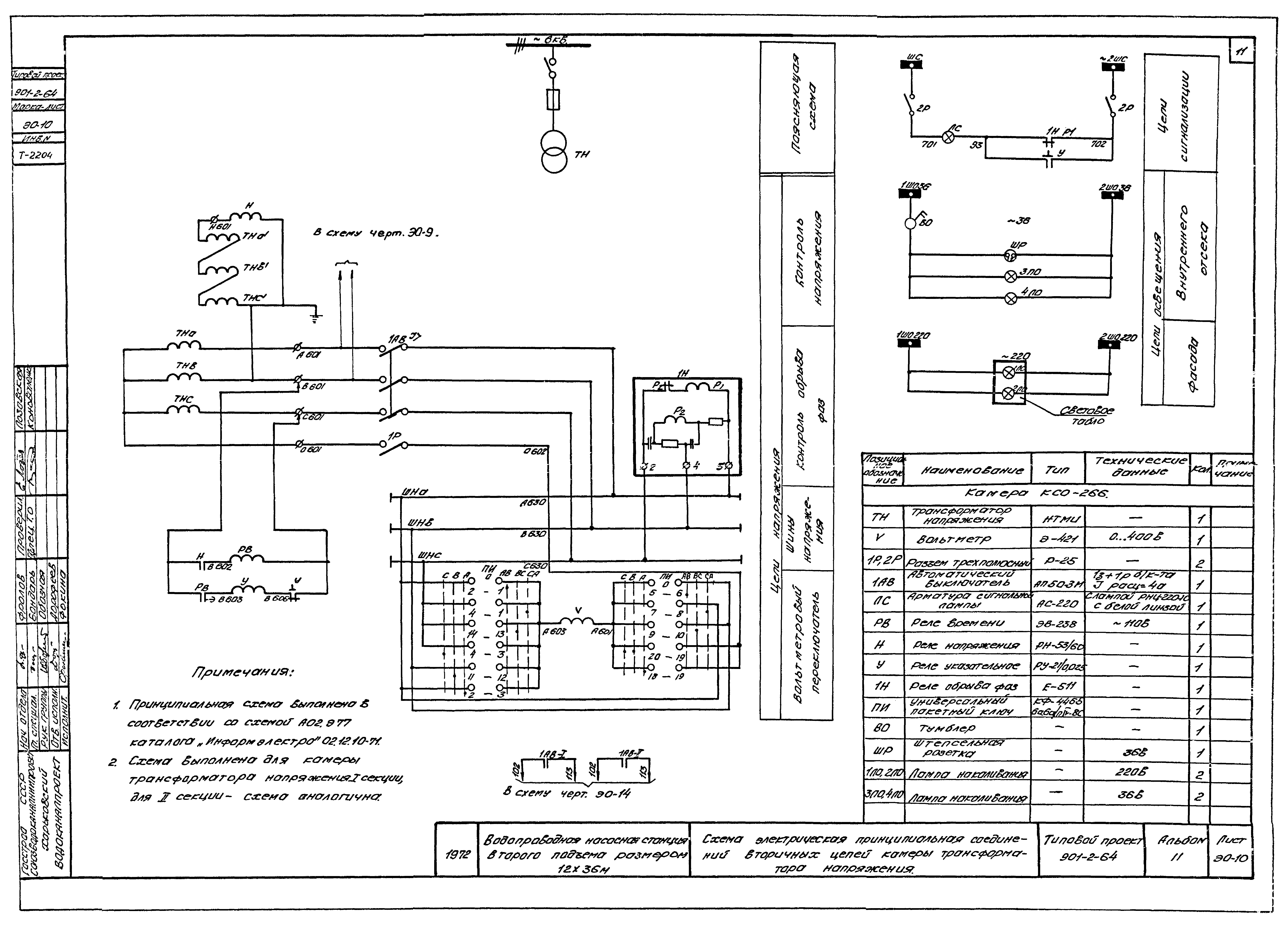
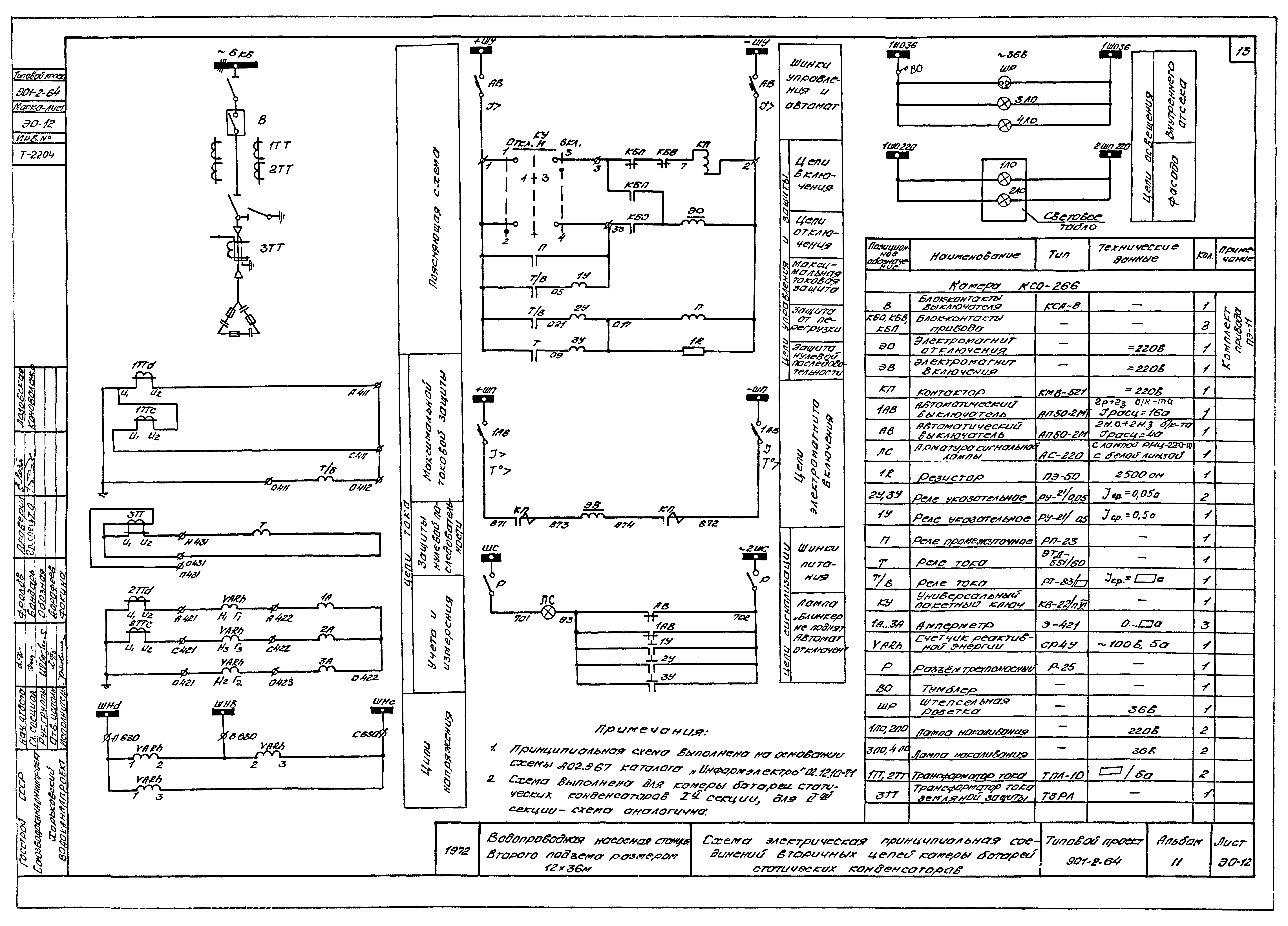
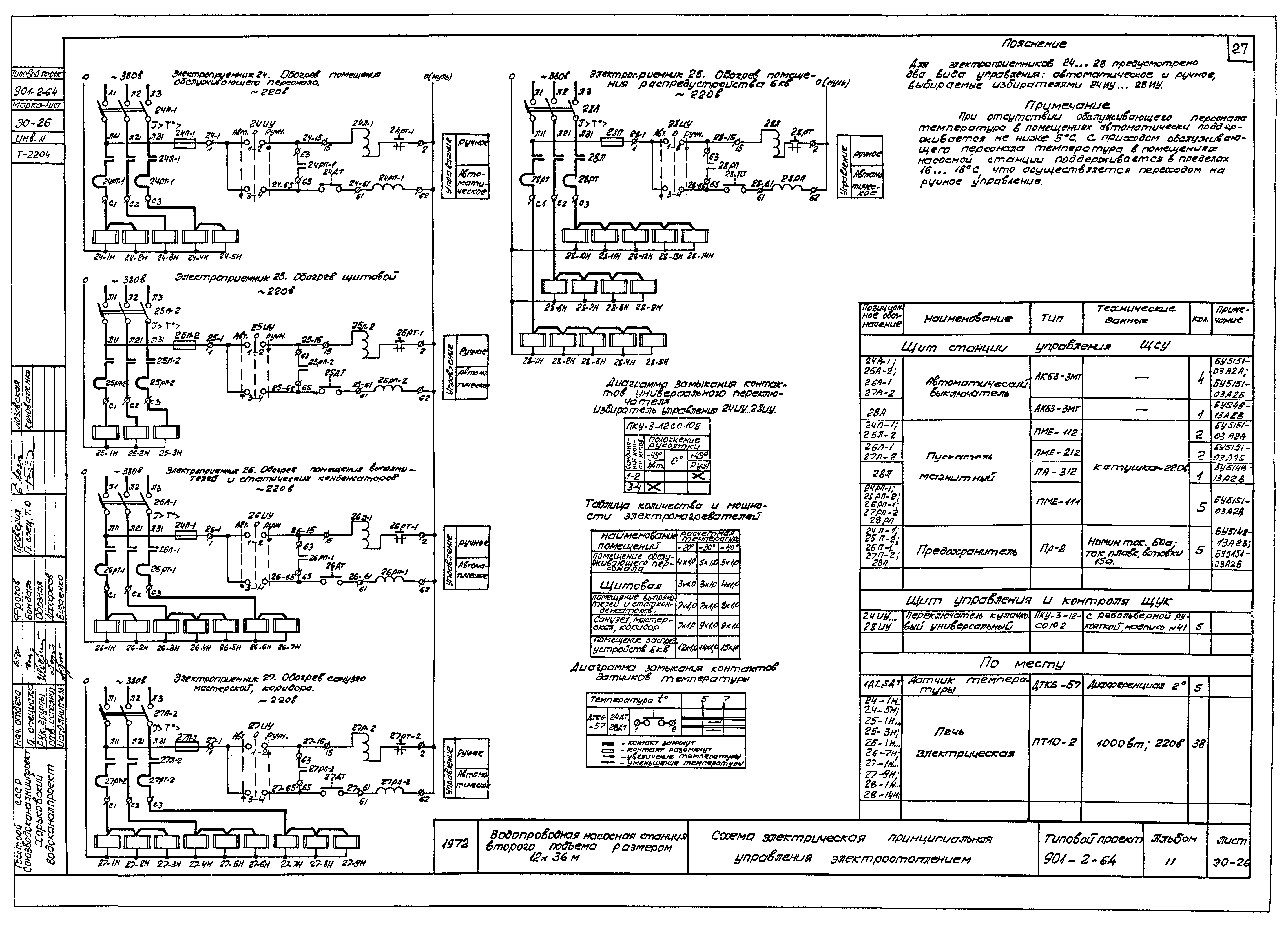
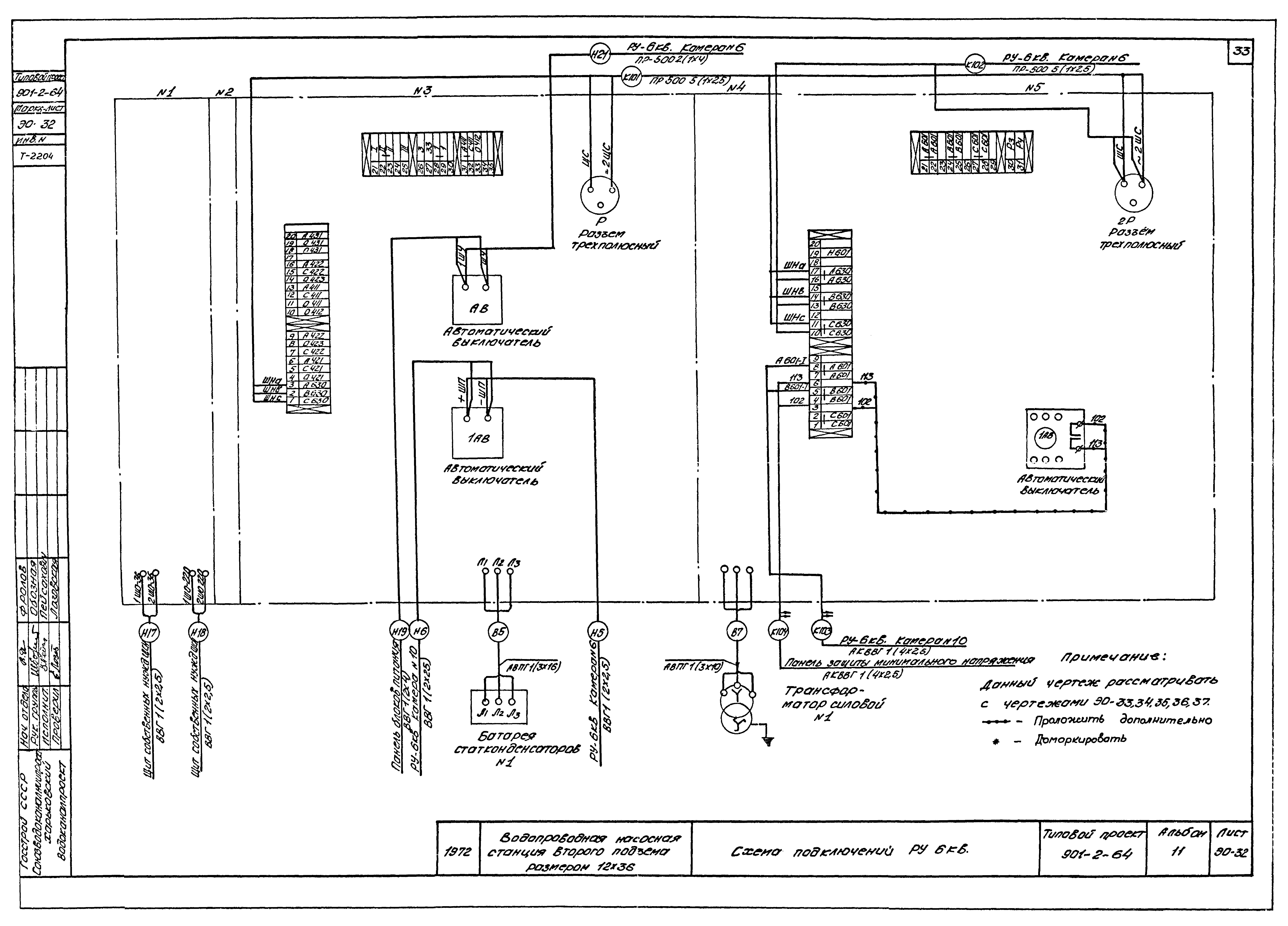
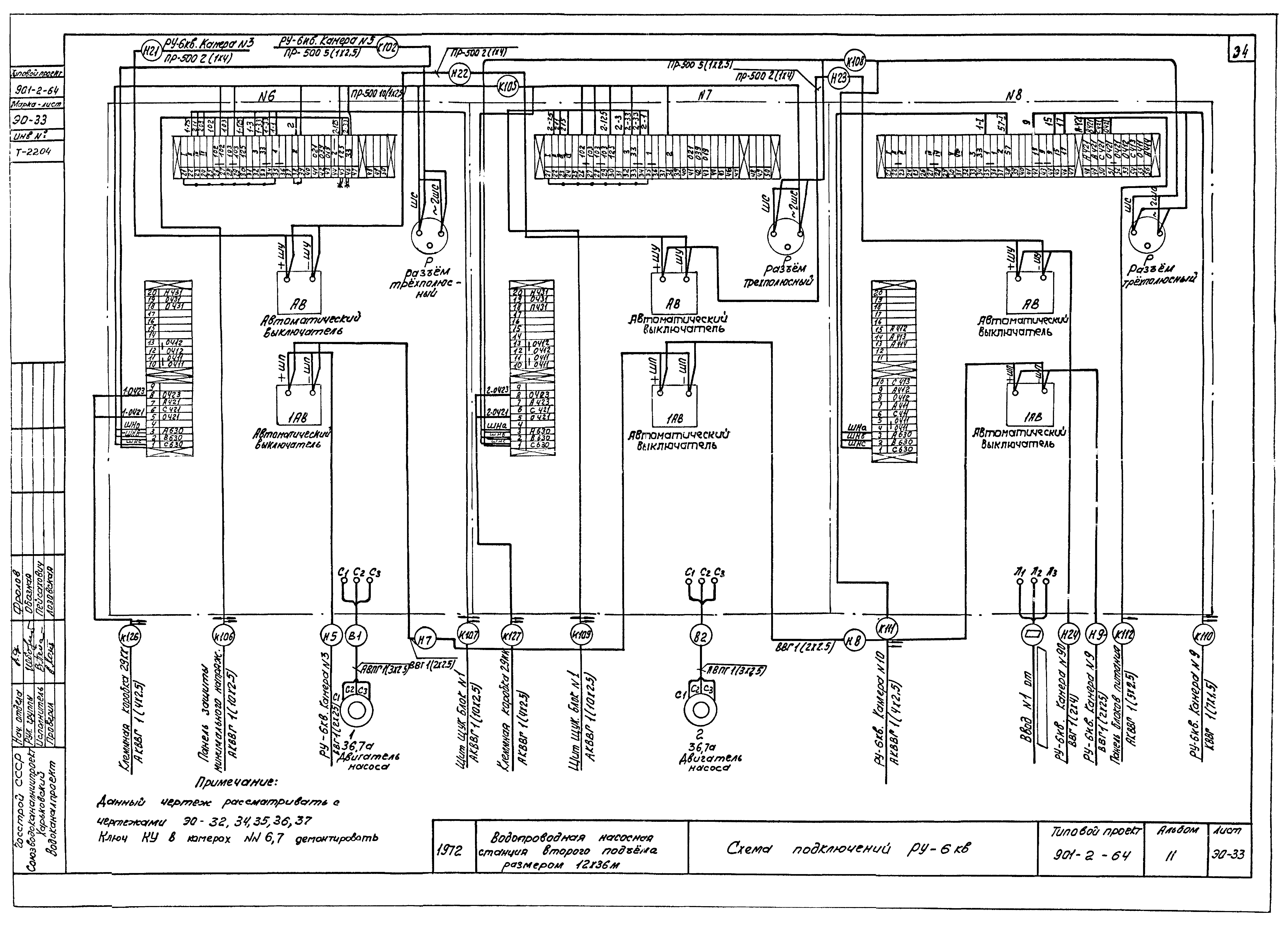
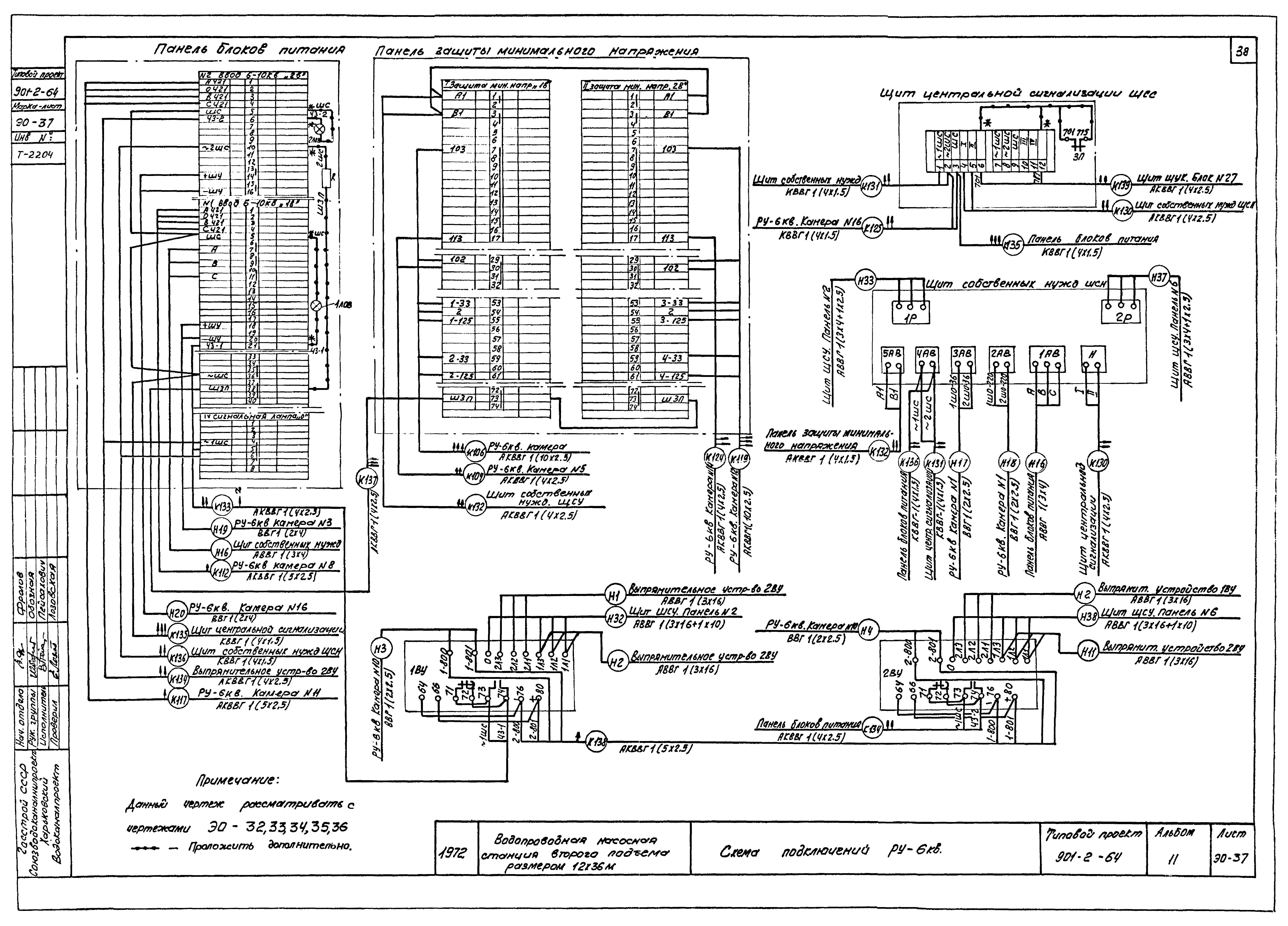
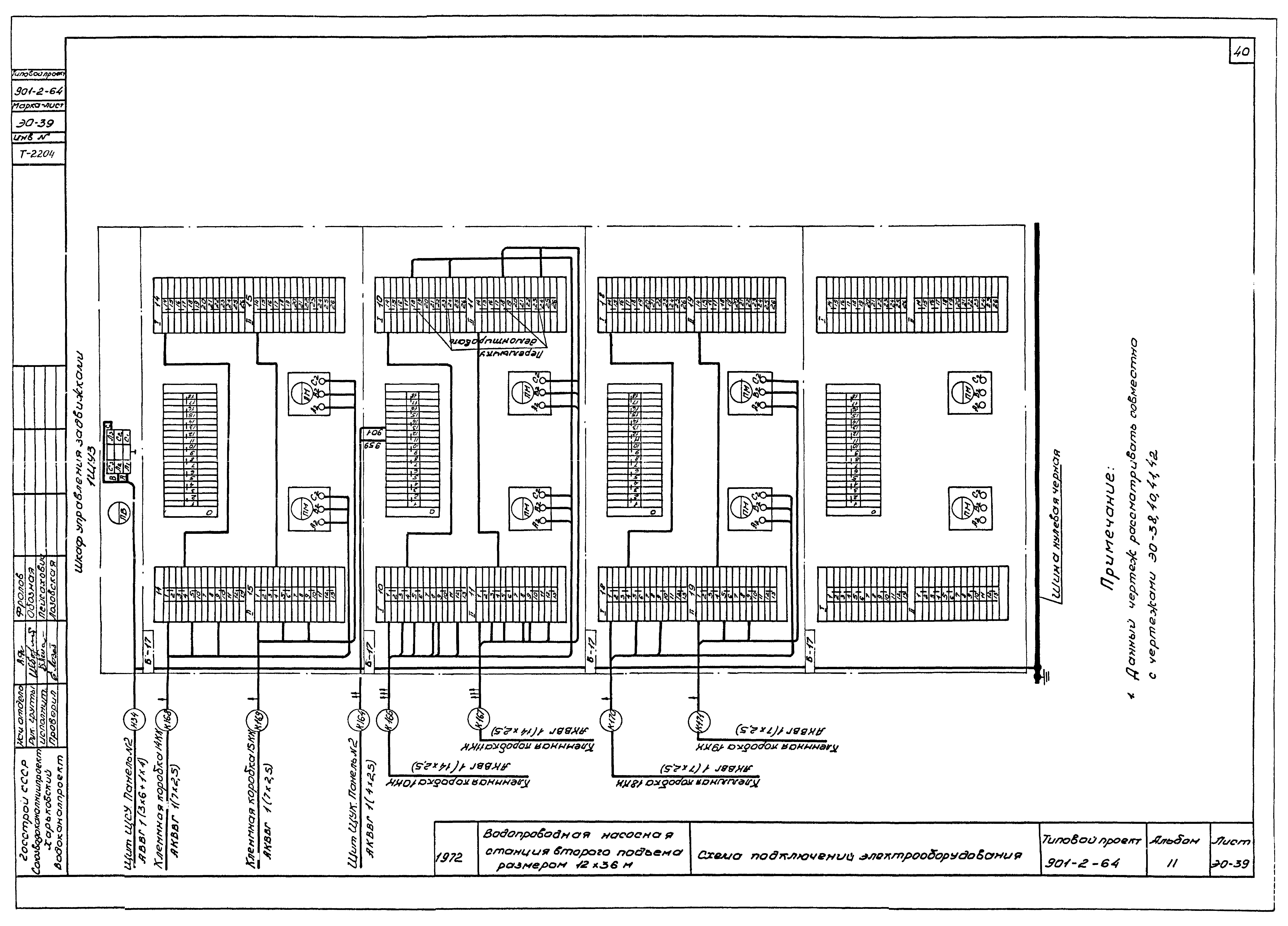
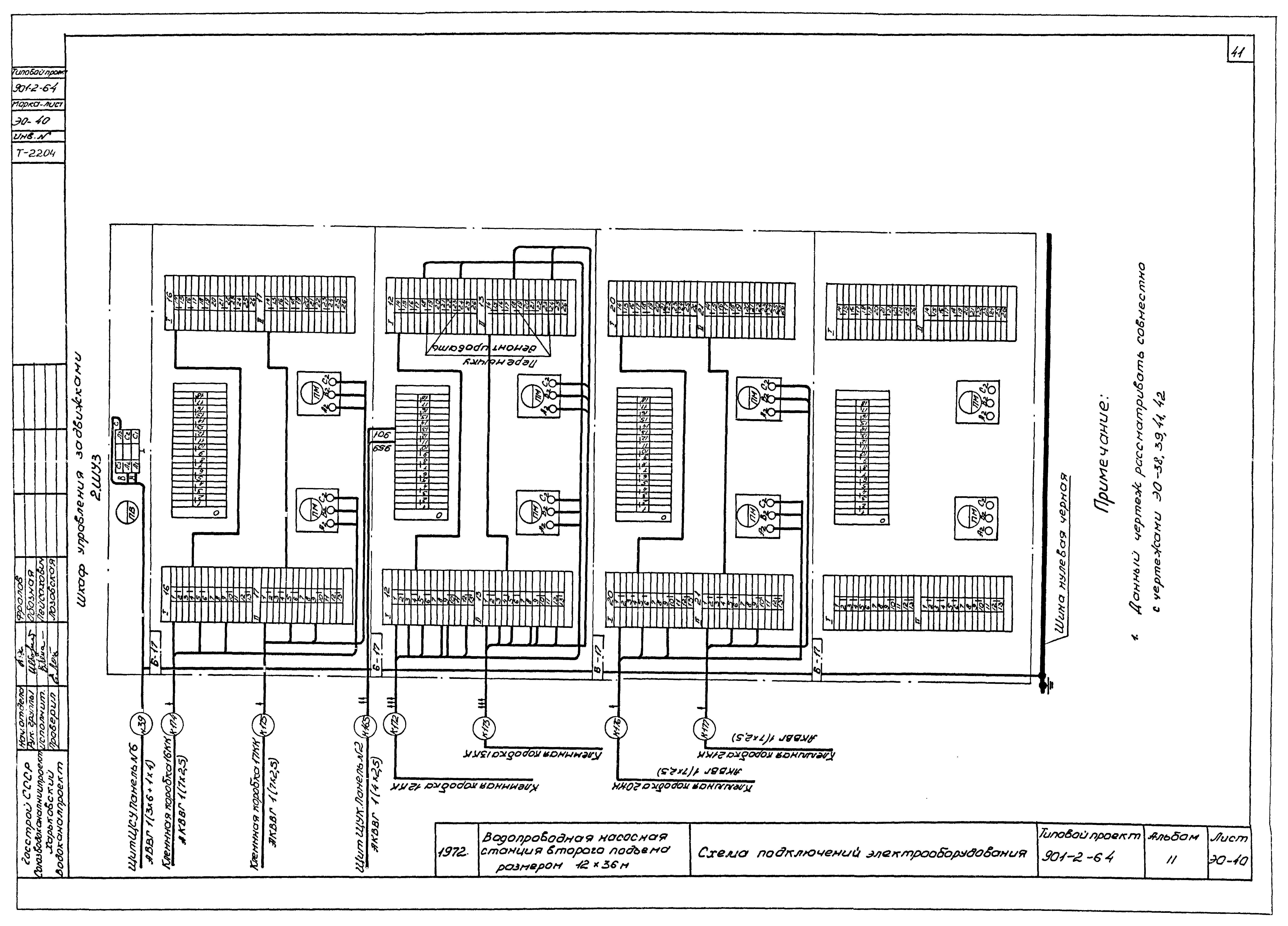
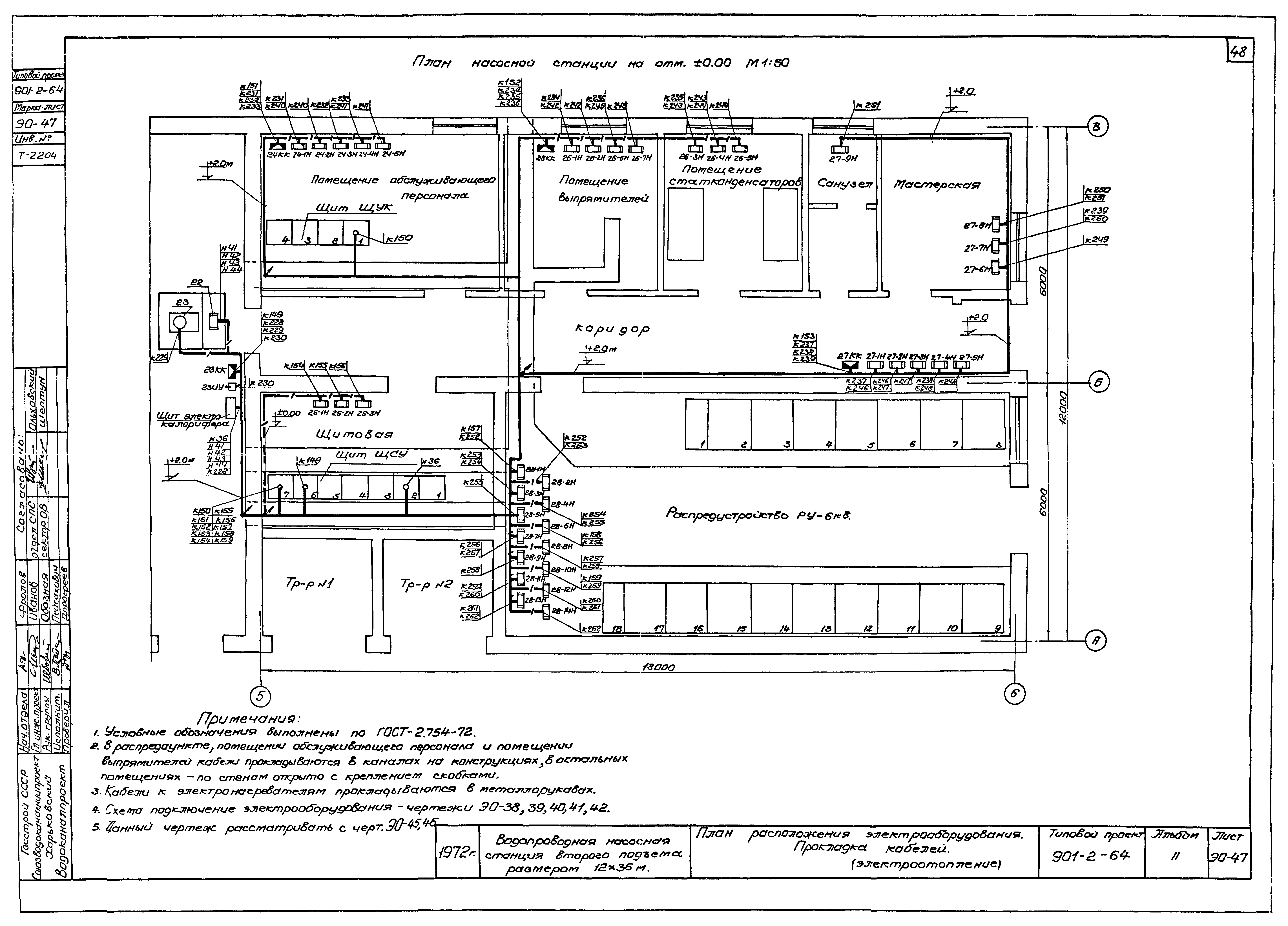
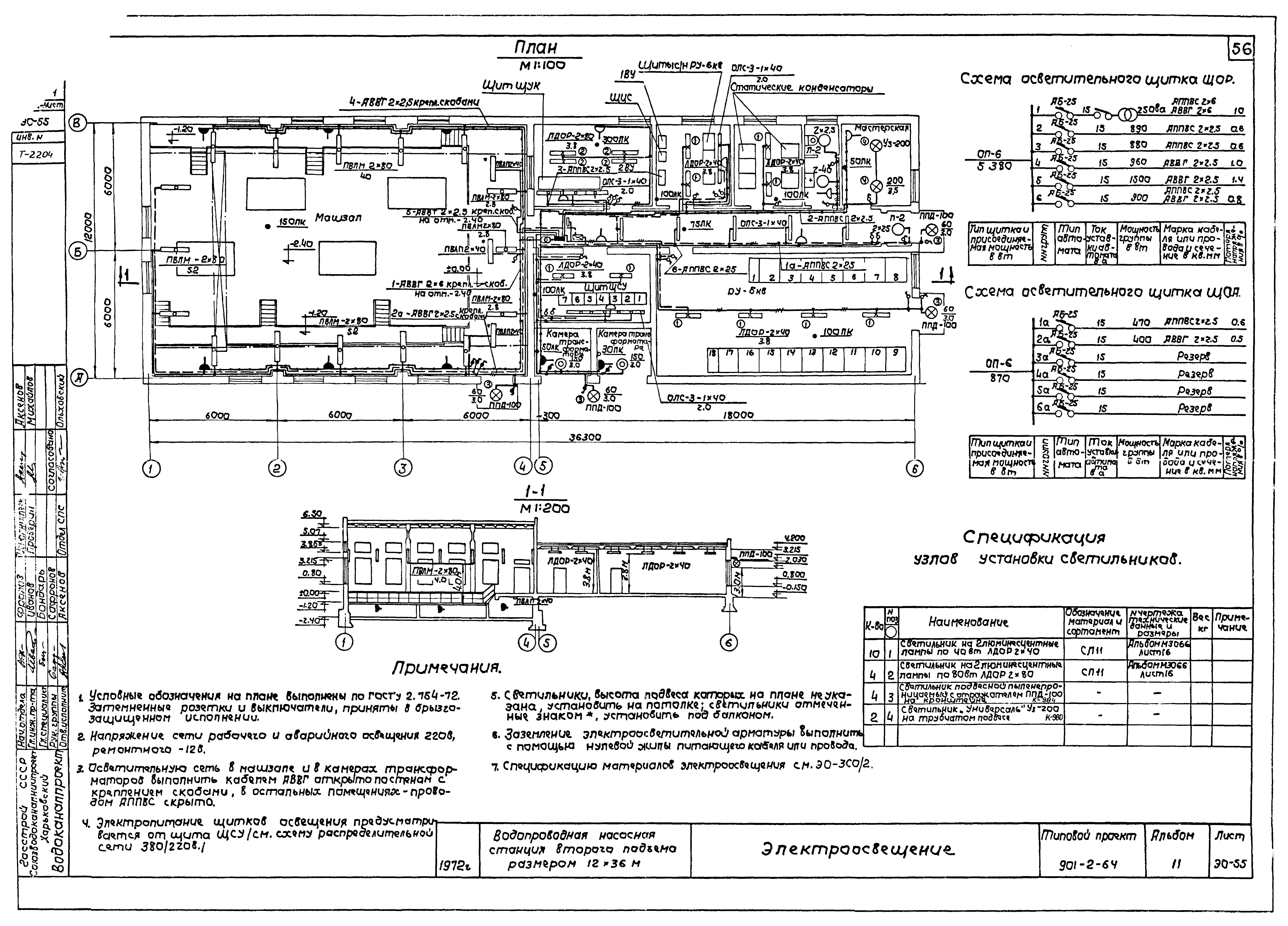
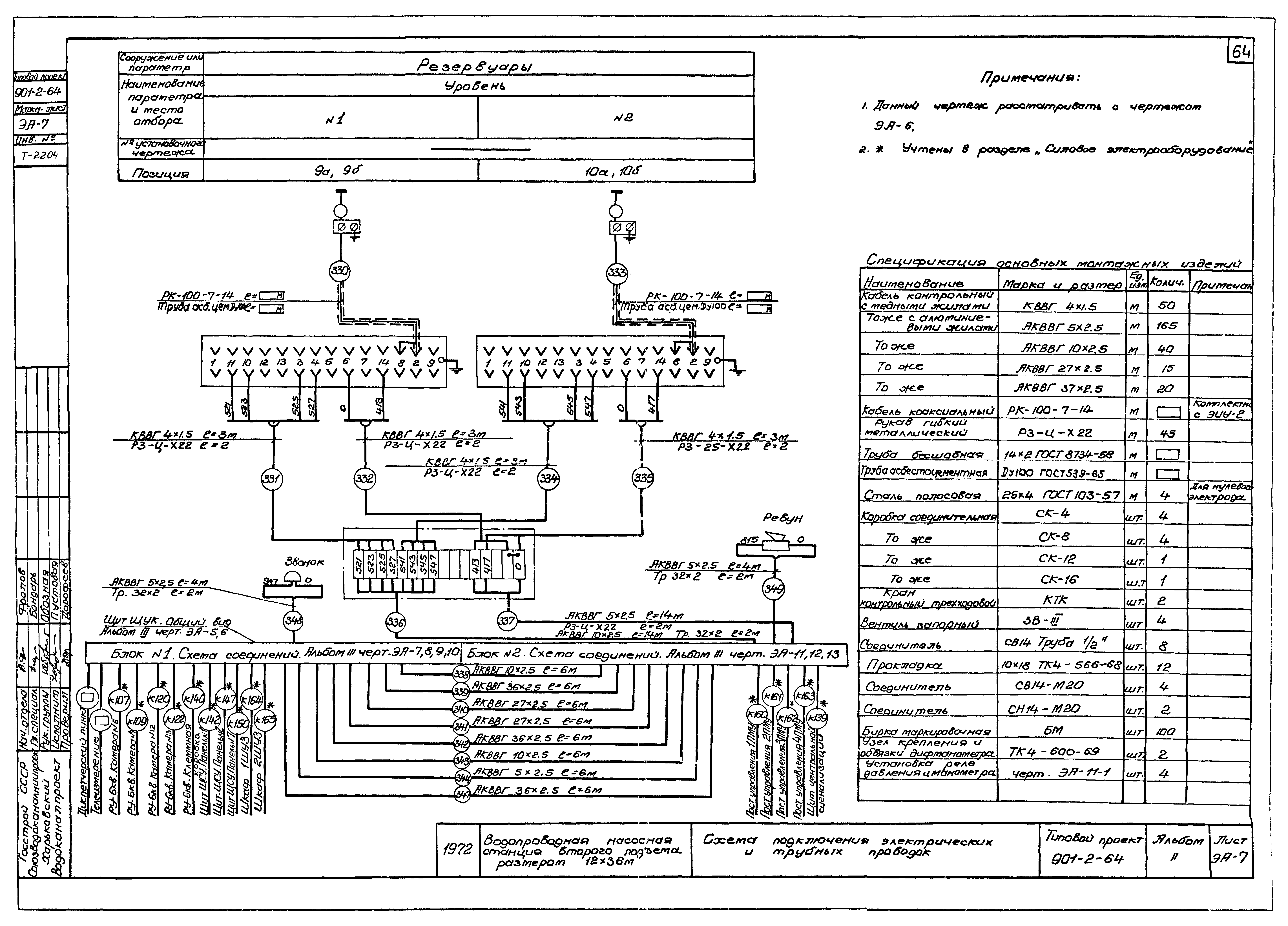
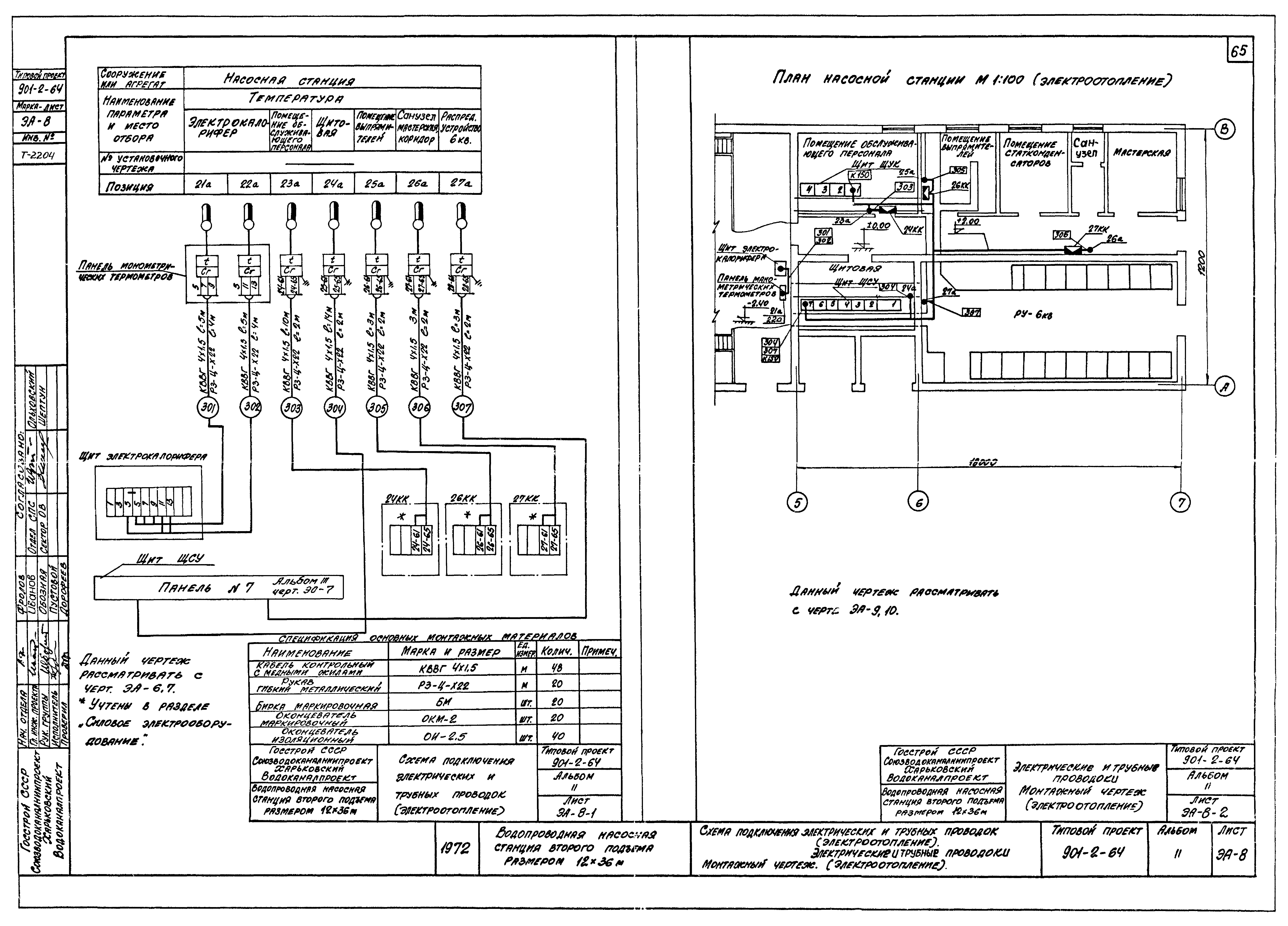
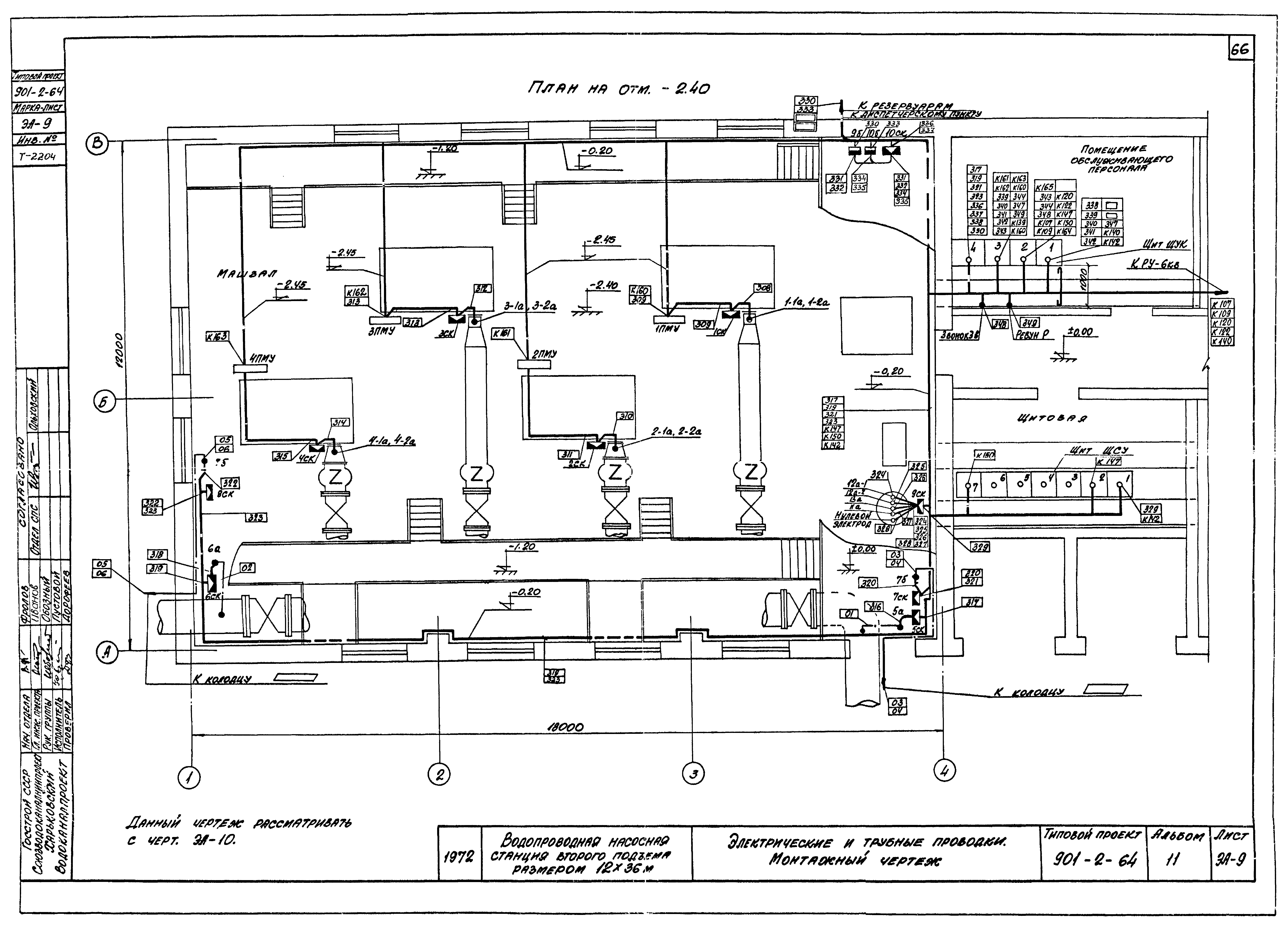
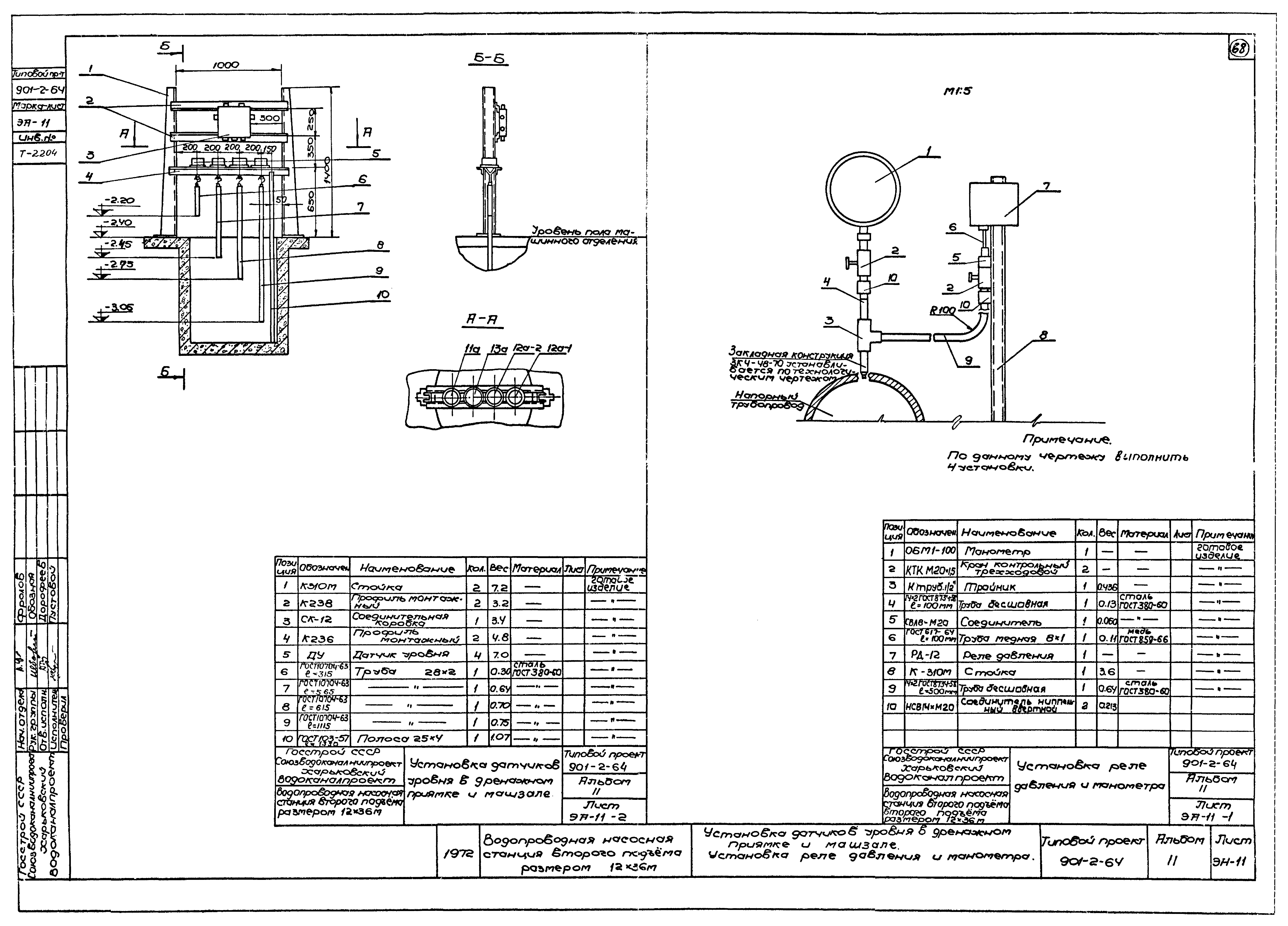
Скачать Типовой проект 901-2-64 Альбом II. Электрооборудование, автоматика и технологический контроль. Чертежи монтажной зоныДата актуализации: 01.01.2021 Типовой проект 901-2-64
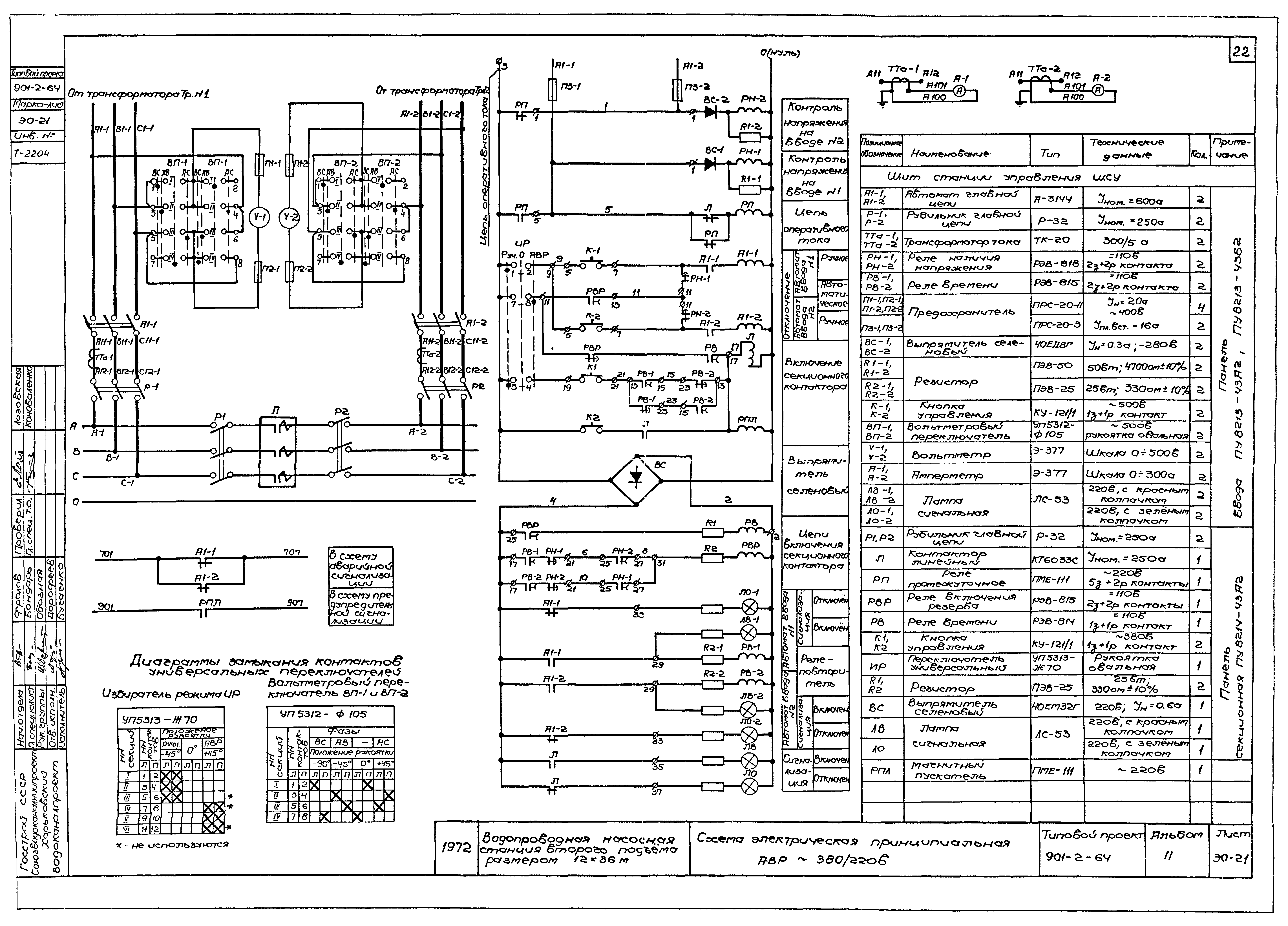
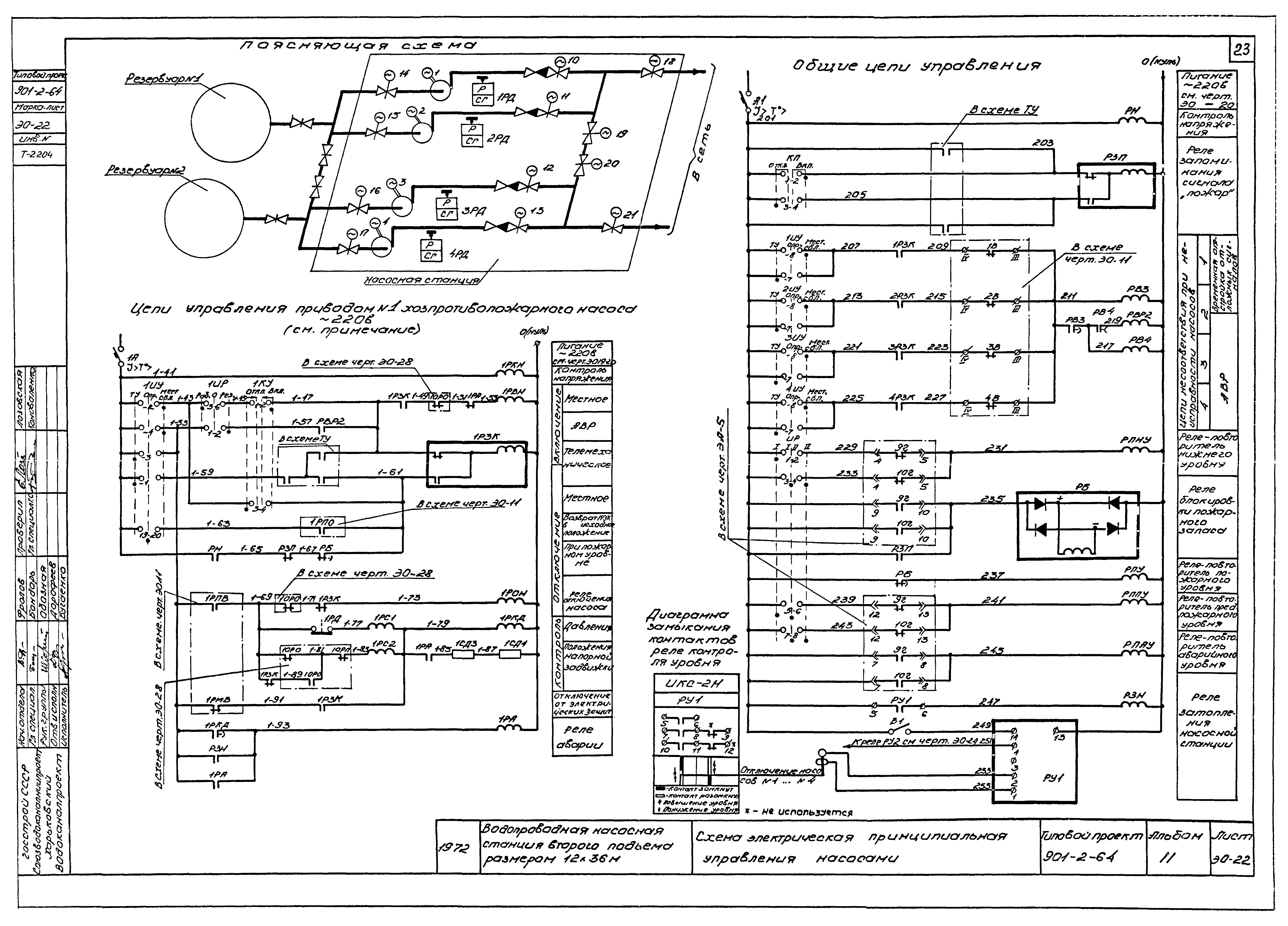
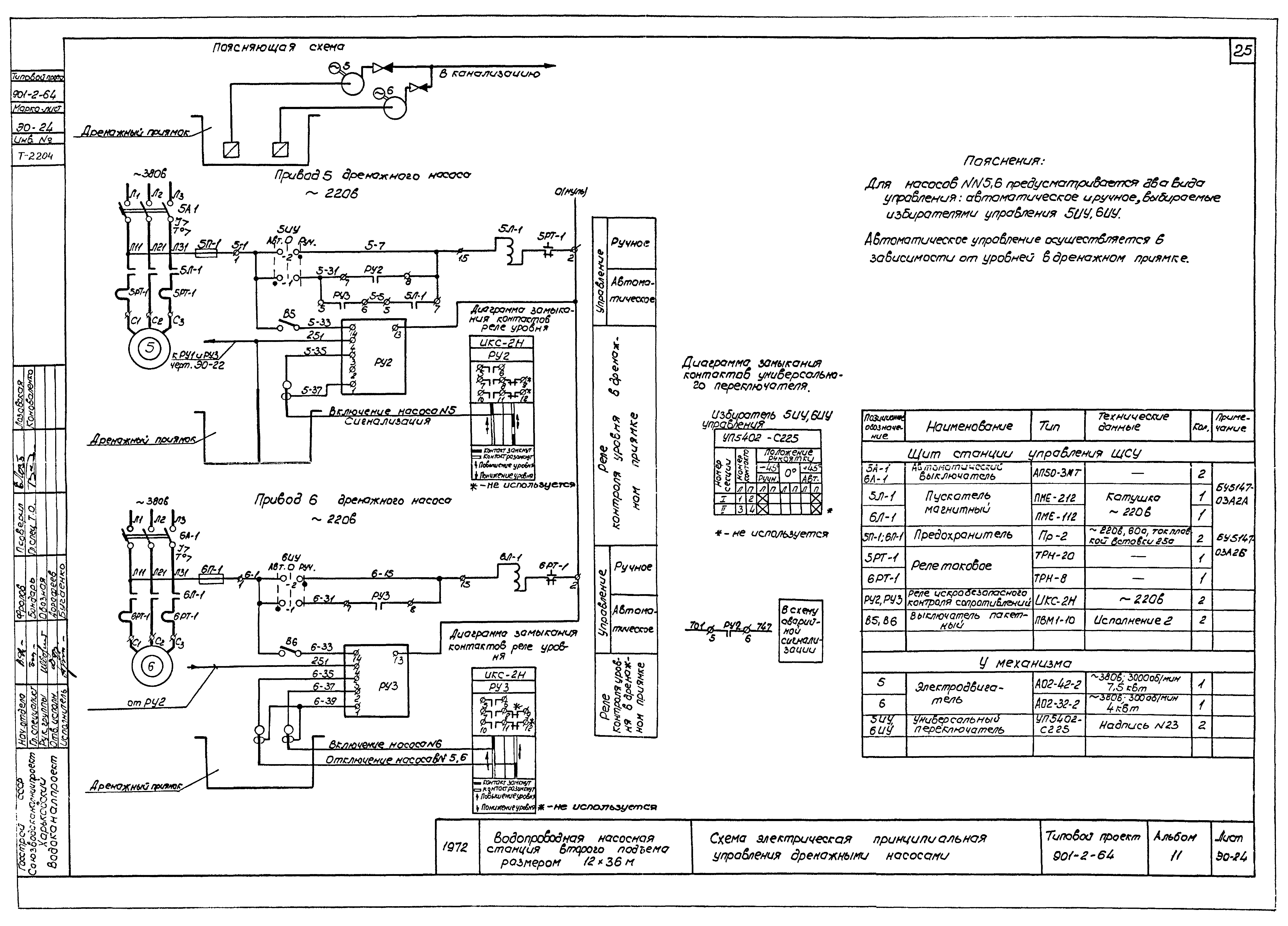
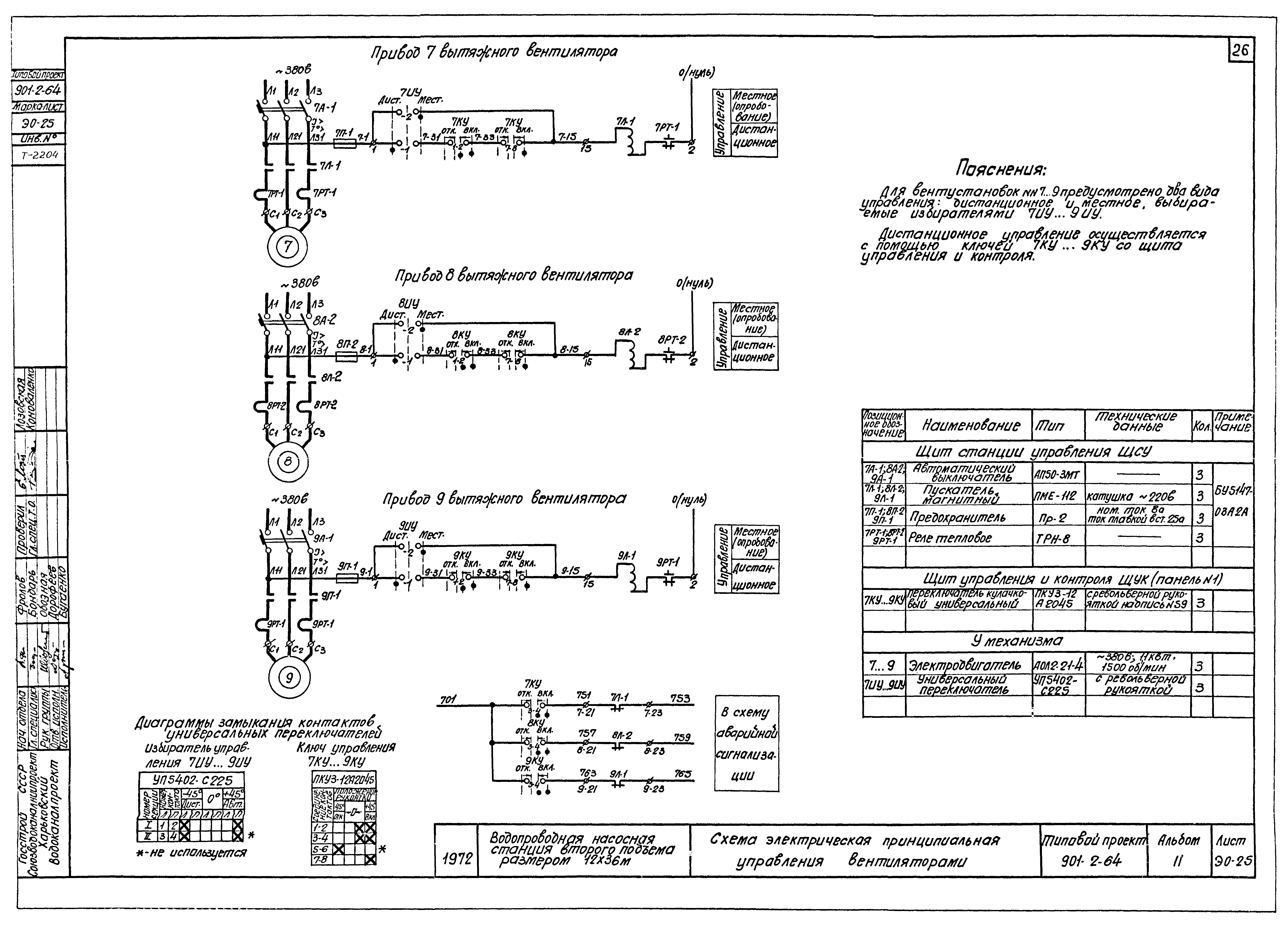
Альбом II. Электрооборудование, автоматика и технологический контроль. Чертежи монтажной зоны| Обозначение: | Типовой проект 901-2-64 | | Обозначение англ: | 901-2-64 | | Статус: | не действует | | Название рус.: | Альбом II. Электрооборудование, автоматика и технологический контроль. Чертежи монтажной зоны | | Дата добавления в базу: | 01.01.2021 | | Дата актуализации: | 01.01.2021 | | Дата введения: | 22.03.1973 | | Дата окончания срока действия: | 01.04.1984 | | Разработан: | Харьковский Водоканалпроект
| | Утверждён: | 19.03.1973 СоюзводоканалНИИпроект (SoyuzvodokanalNIIproject 59)
| | Заменяет собой: | - Типовой проект 901-2-43
- Типовой проект 901-2-45
|
                                                                   
|