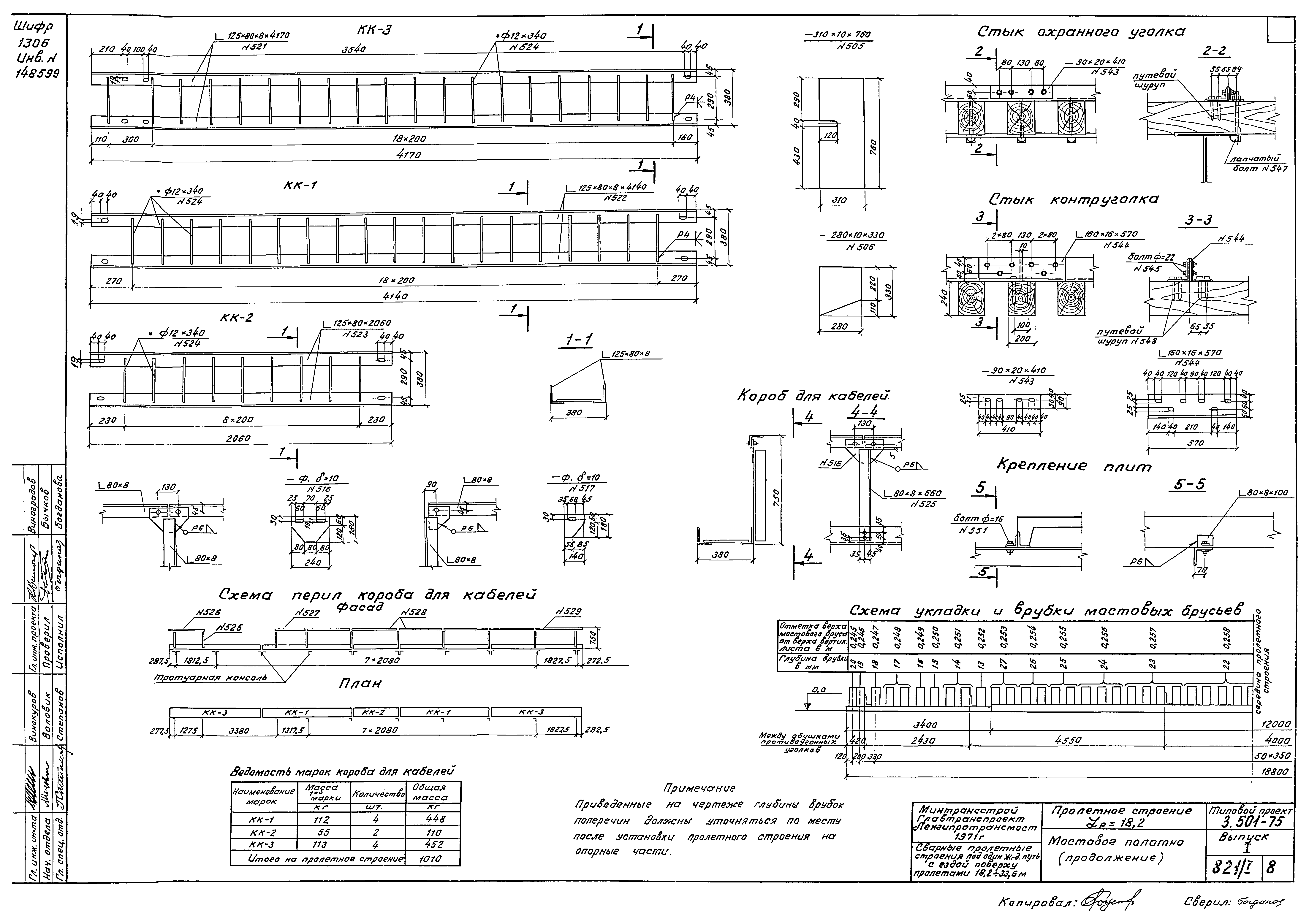
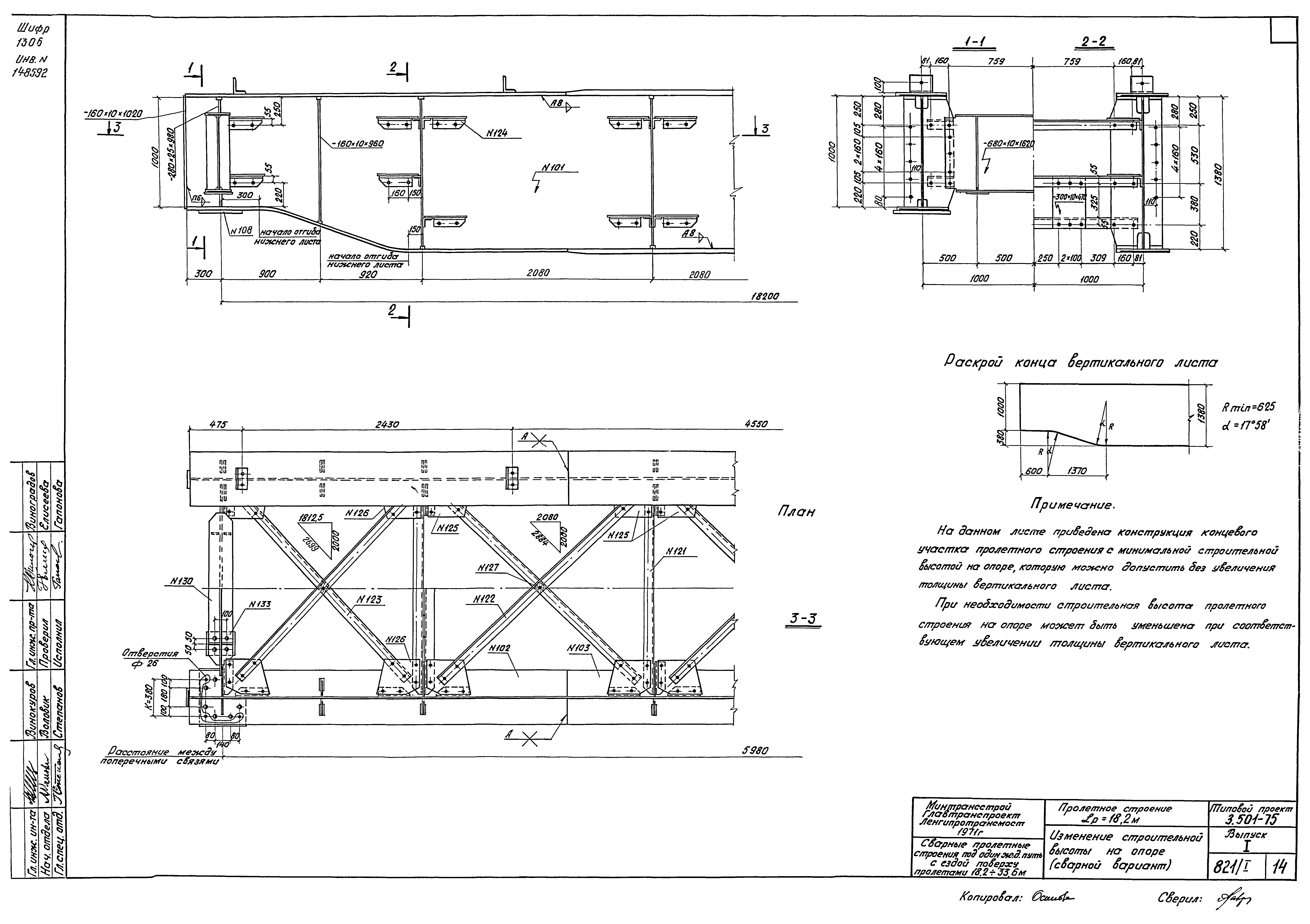
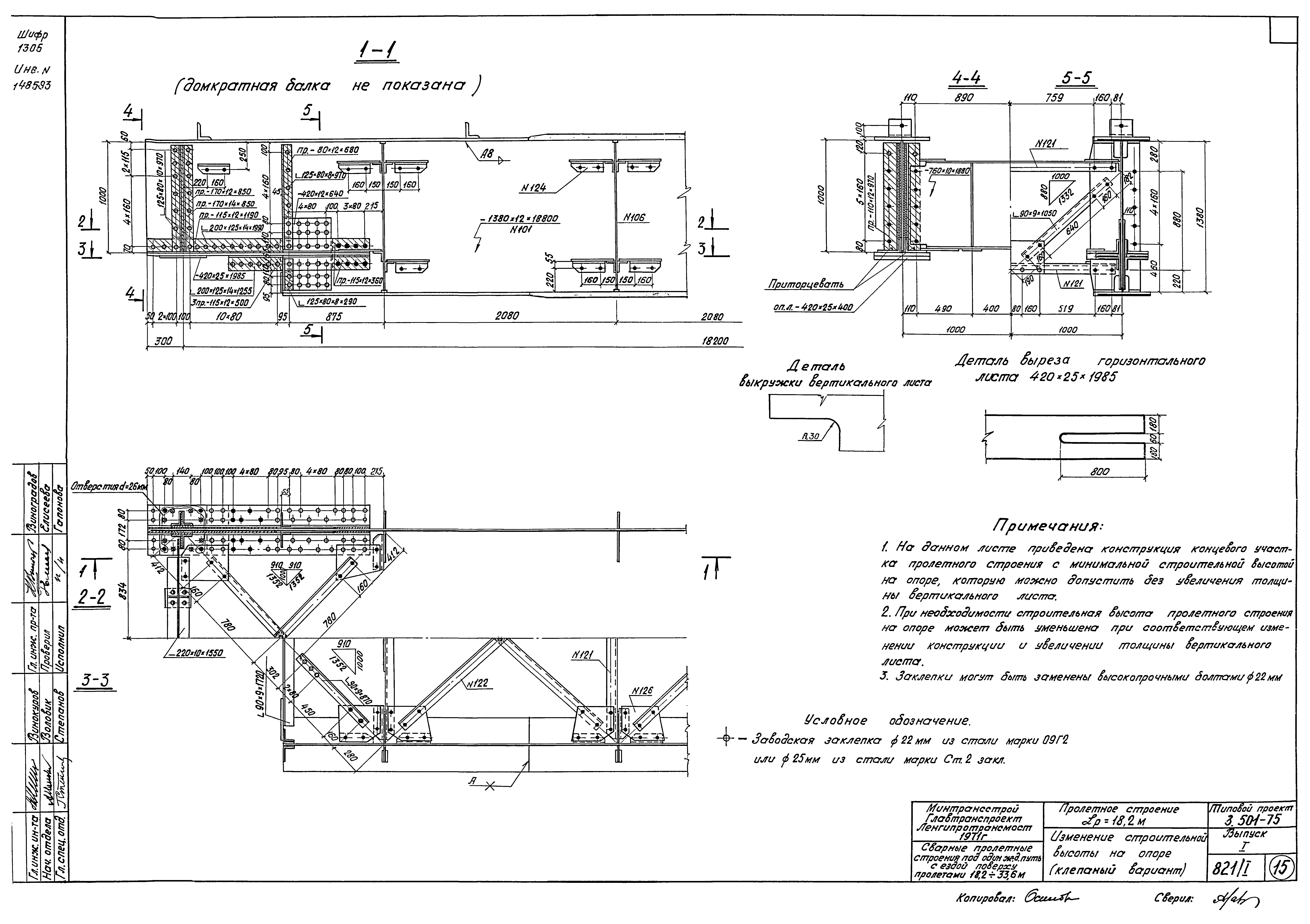
Скачать Типовой проект 3.501-75 Выпуск I. Пролетное строение Lp=18,2Дата актуализации: 01.01.2021 Типовой проект 3.501-75
Выпуск I. Пролетное строение Lp=18,2| Обозначение: | Типовой проект 3.501-75 | | Обозначение англ: | 3.501-75 | | Статус: | не действует | | Название рус.: | Выпуск I. Пролетное строение Lp=18,2 | | Дата добавления в базу: | 01.01.2021 | | Дата актуализации: | 01.01.2021 | | Дата введения: | 15.03.1972 | | Дата окончания срока действия: | 08.12.1981 | | Разработан: | Ленгипротрансмост
| | Утверждён: | 07.01.1972 Министерство путей сообщения СССР (USSR Ministry of Railroads А505)
|
              
|