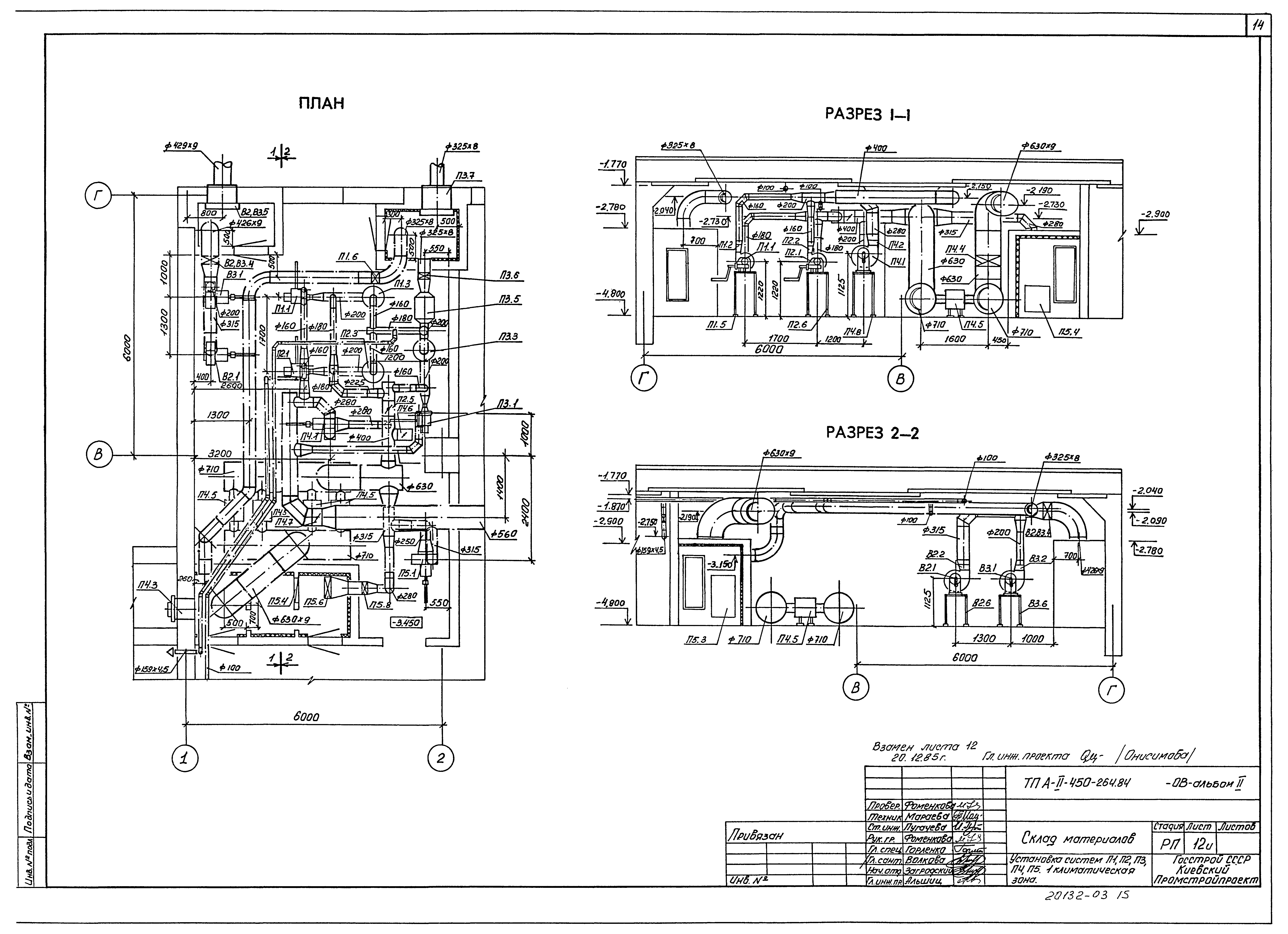
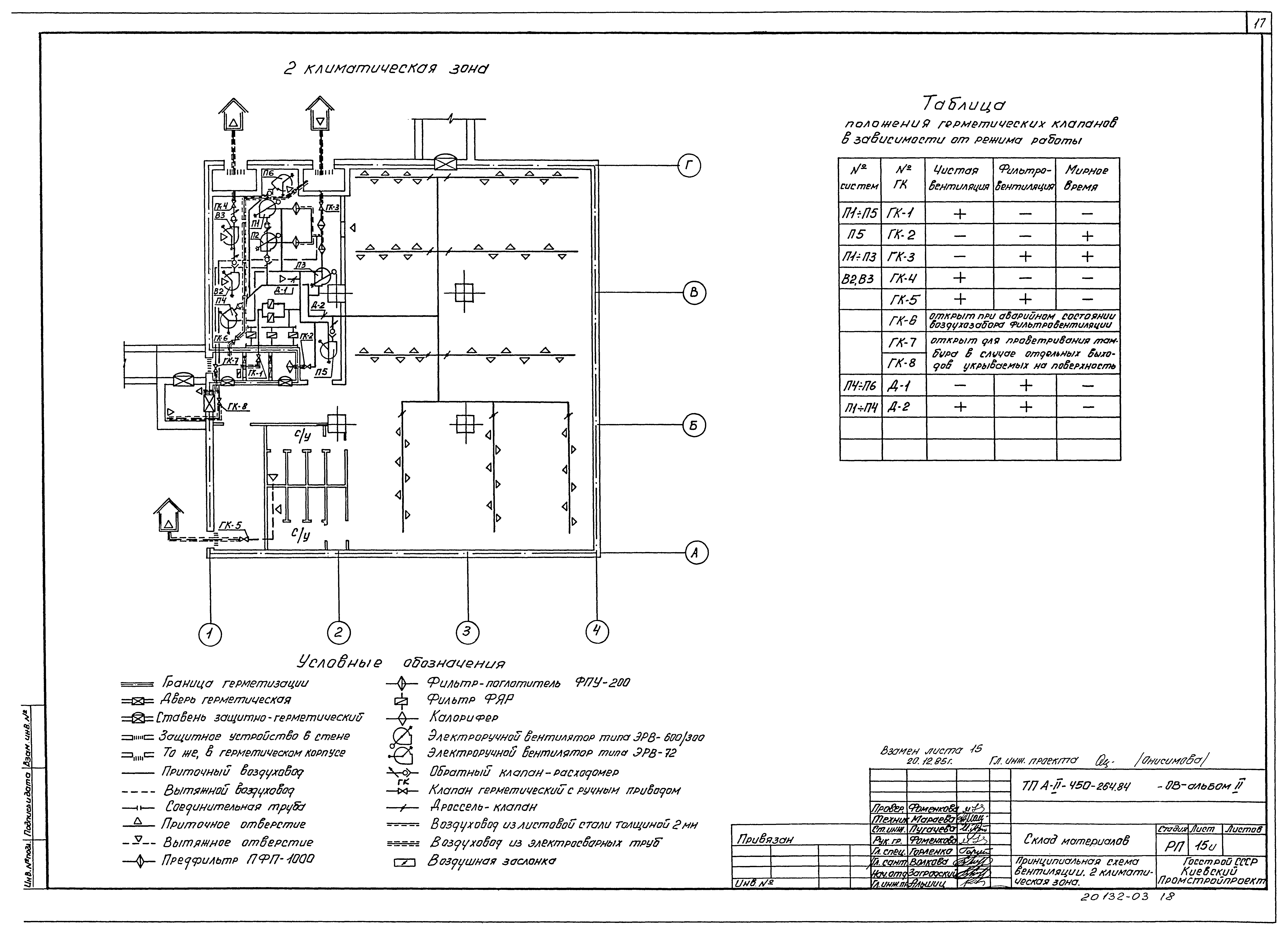
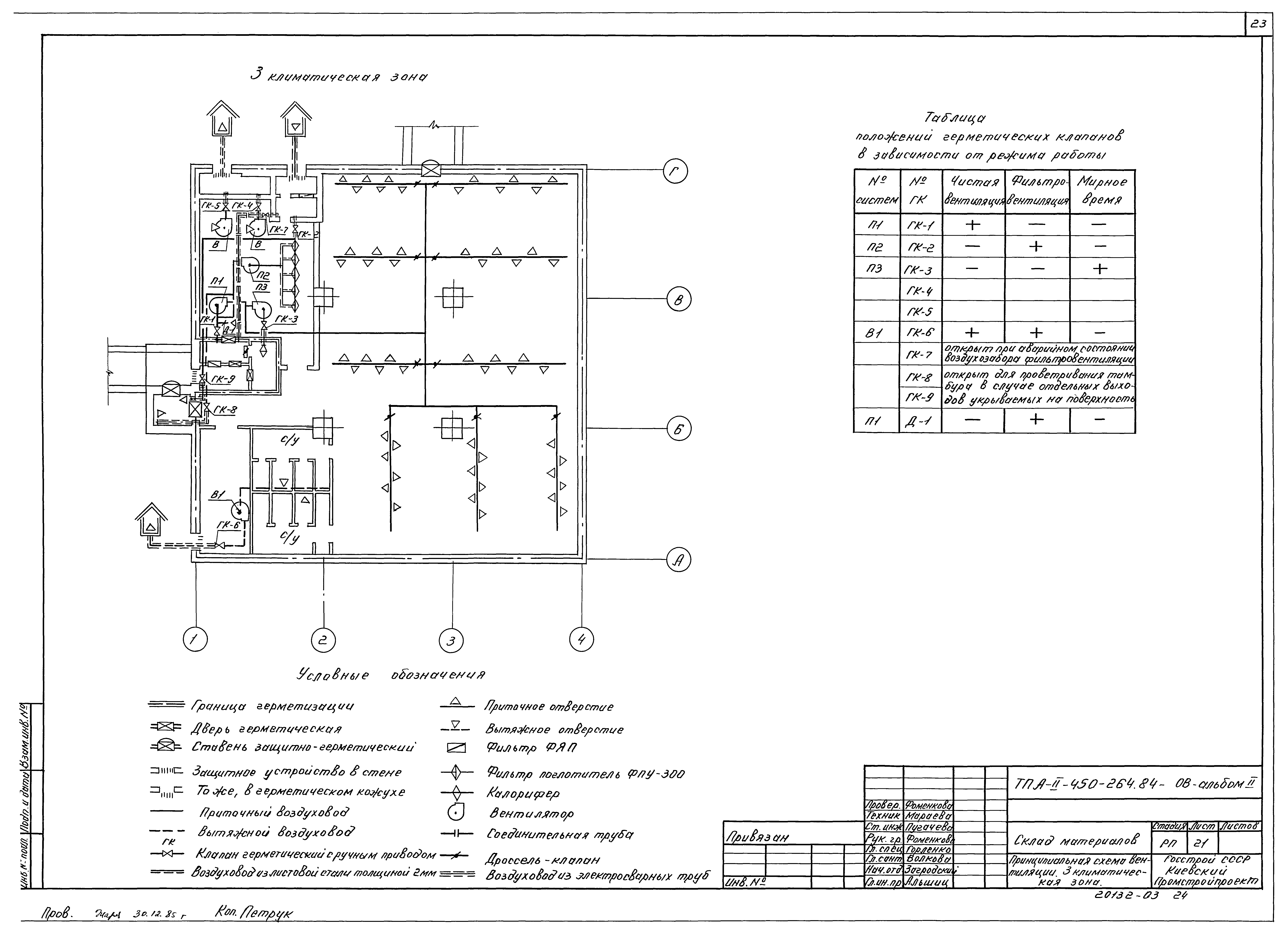
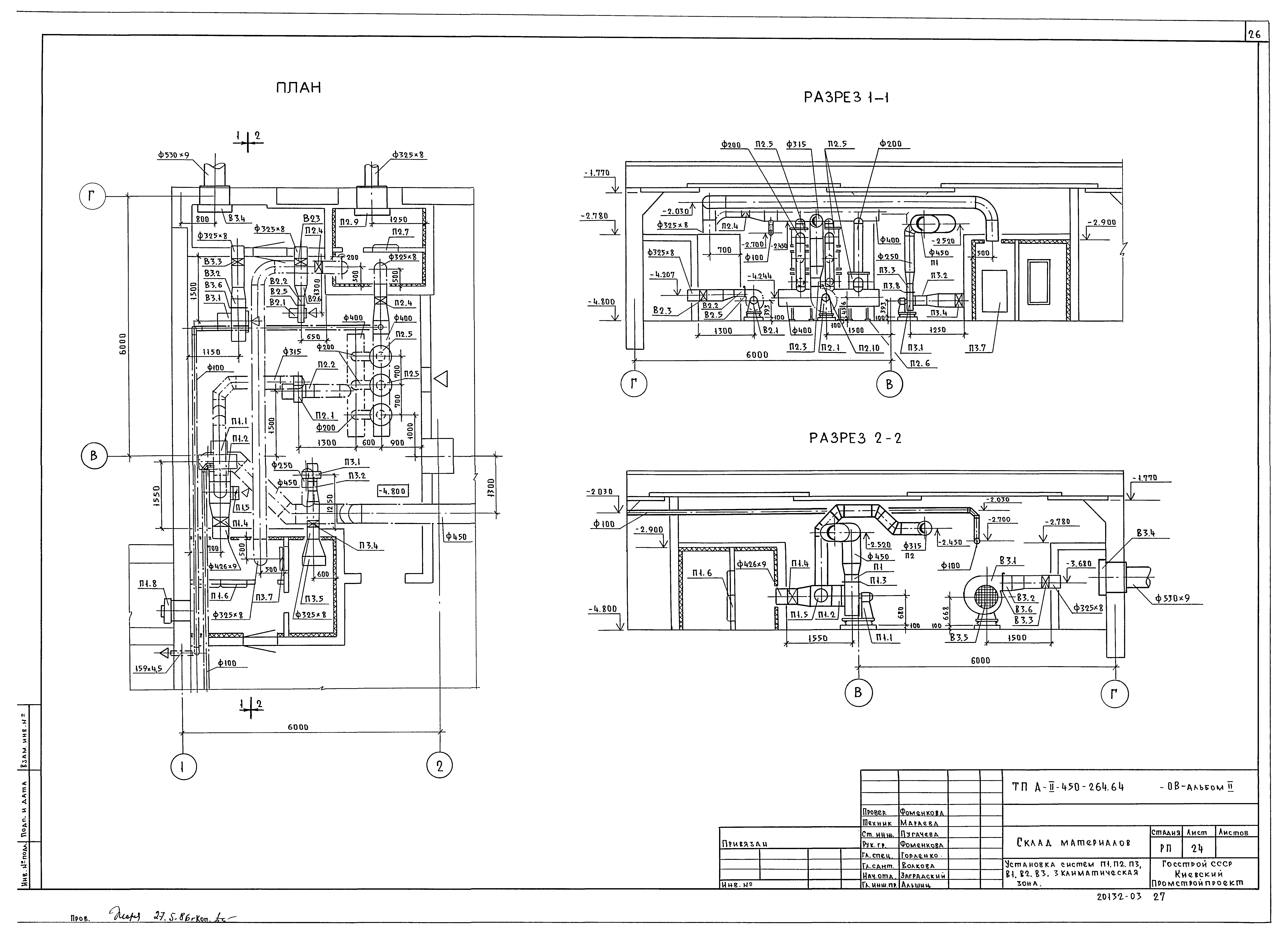
Скачать Типовой проект А-II-450-264.84 Альбом II. Чертежи санитарно-технических системДата актуализации: 01.01.2021 Типовой проект А-II-450-264.84
Альбом II. Чертежи санитарно-технических систем| Обозначение: | Типовой проект А-II-450-264.84 | | Обозначение англ: | А-II-450-264.84 | | Статус: | не определен законодательством | | Название рус.: | Альбом II. Чертежи санитарно-технических систем | | Дата добавления в базу: | 01.01.2021 | | Дата актуализации: | 01.01.2021 | | Дата введения: | 01.01.1984 | | Дата окончания срока действия: | 30.06.2003 | | Разработан: | Киевский Промстройпроект
| | Утверждён: | 11.11.1983 Госстрой СССР
|
                                                  
|