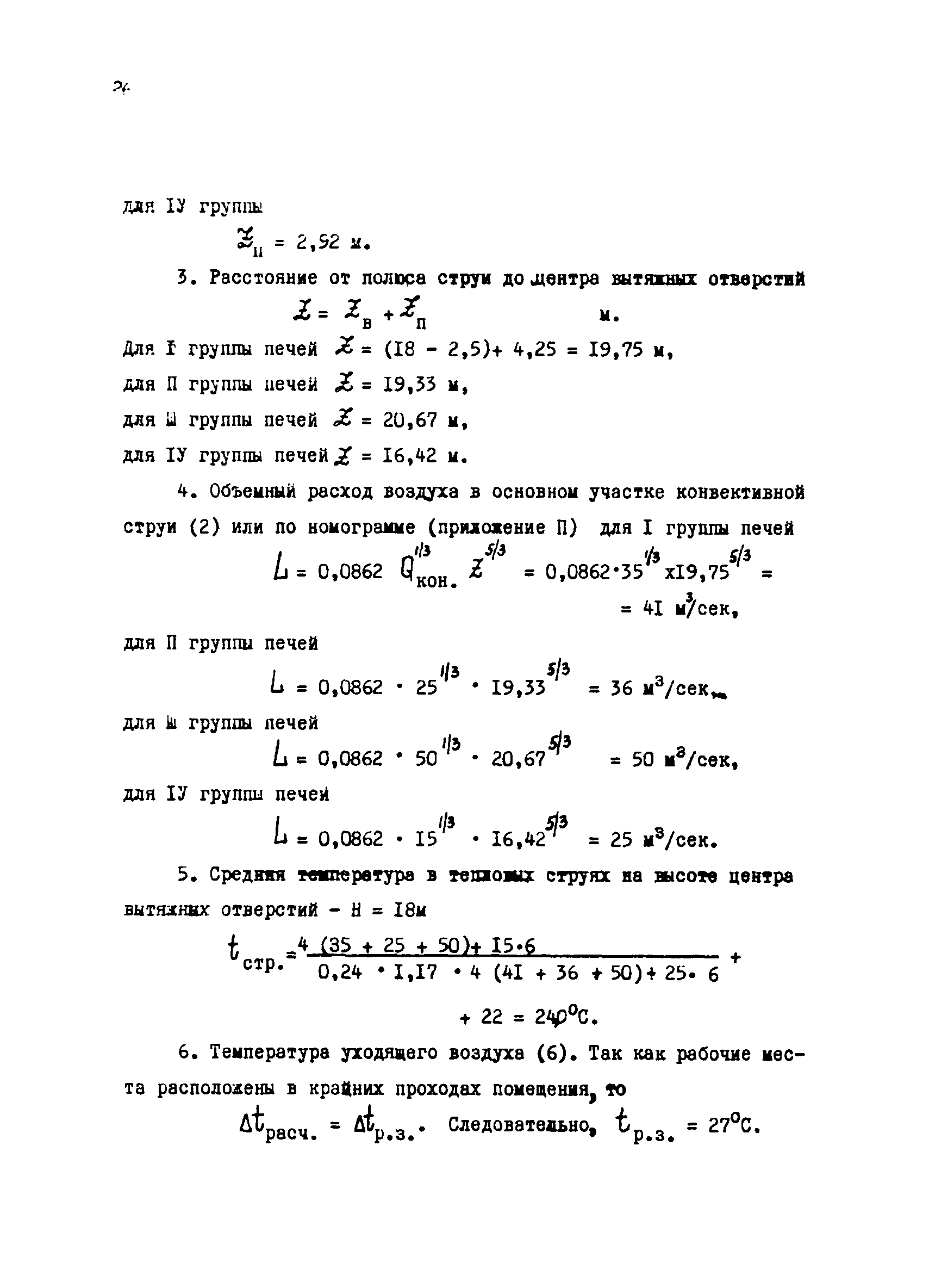
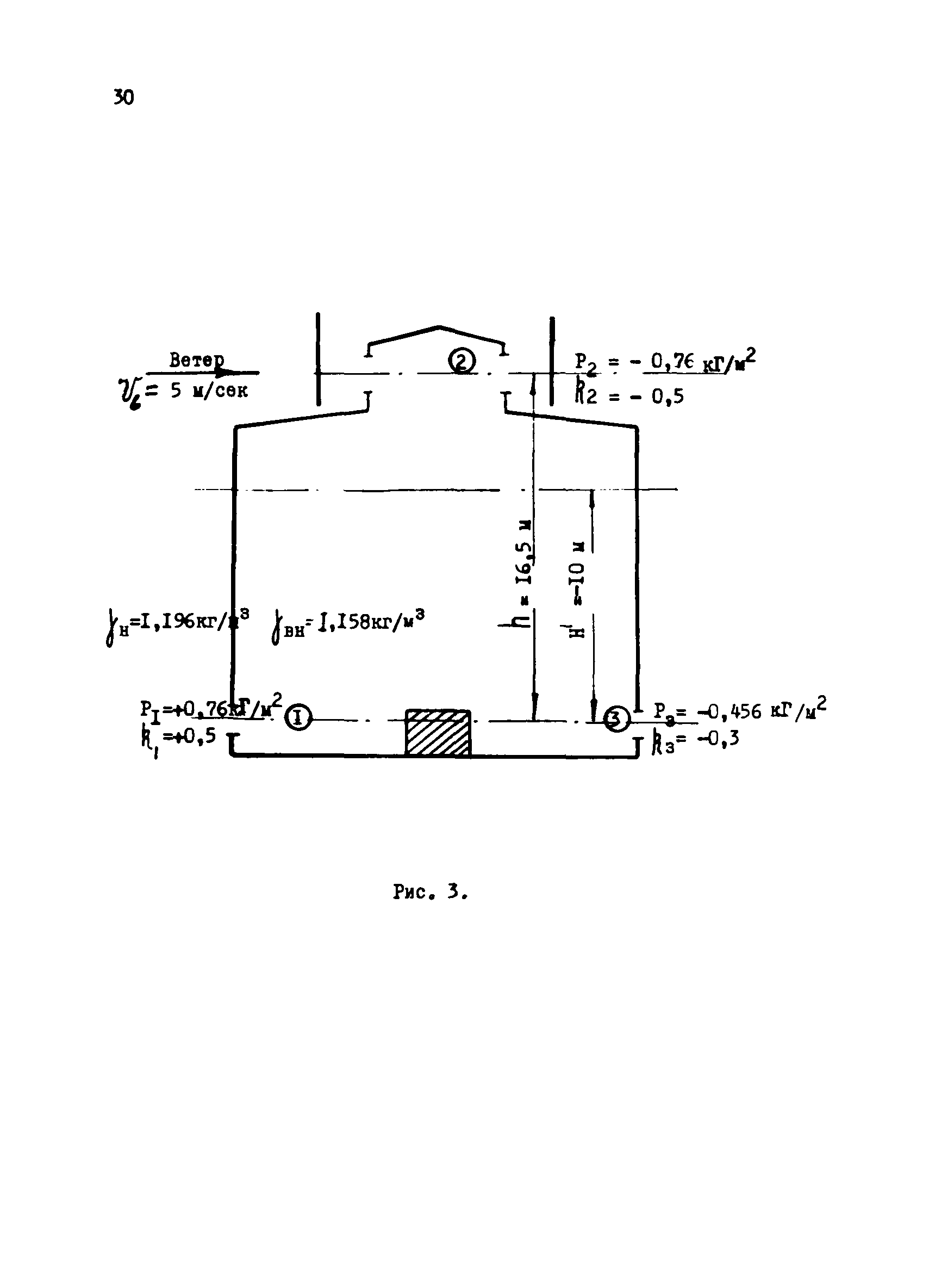
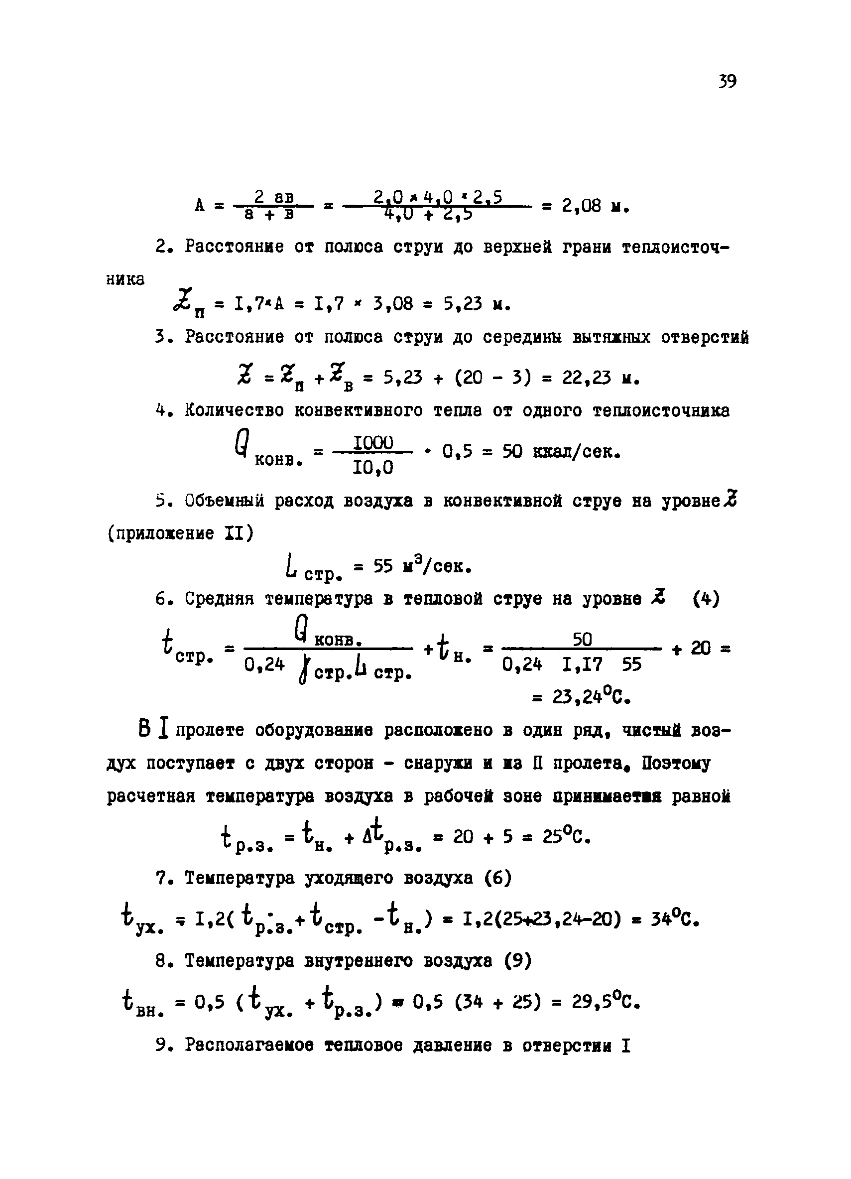
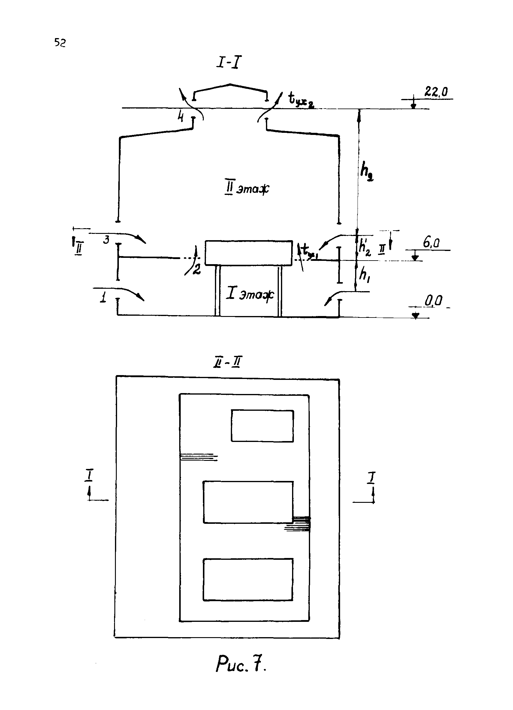
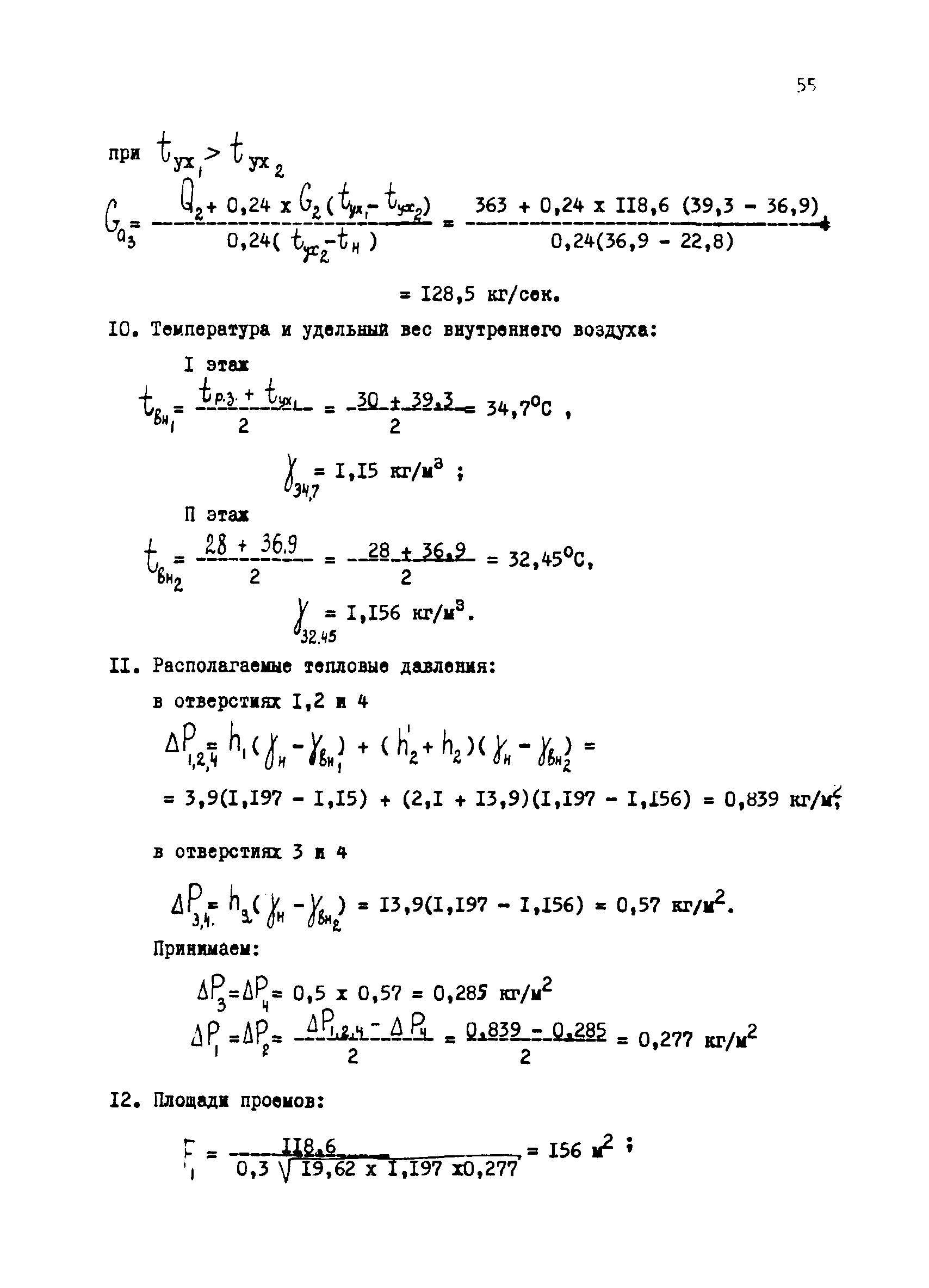
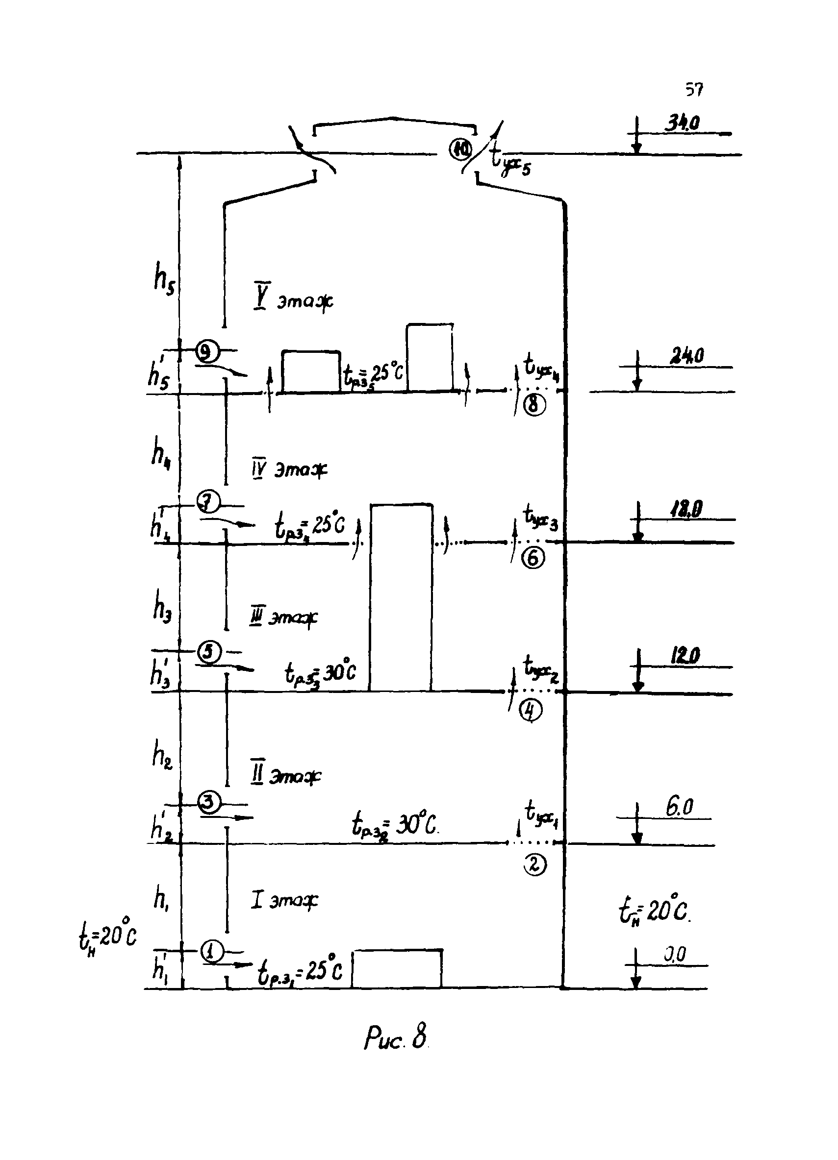
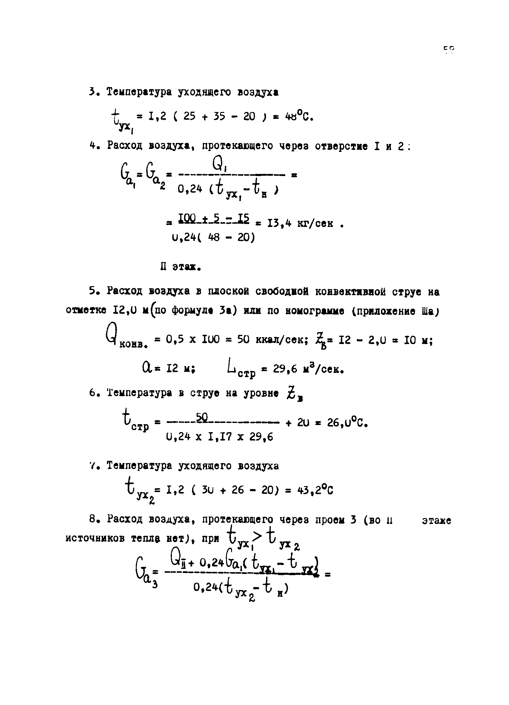
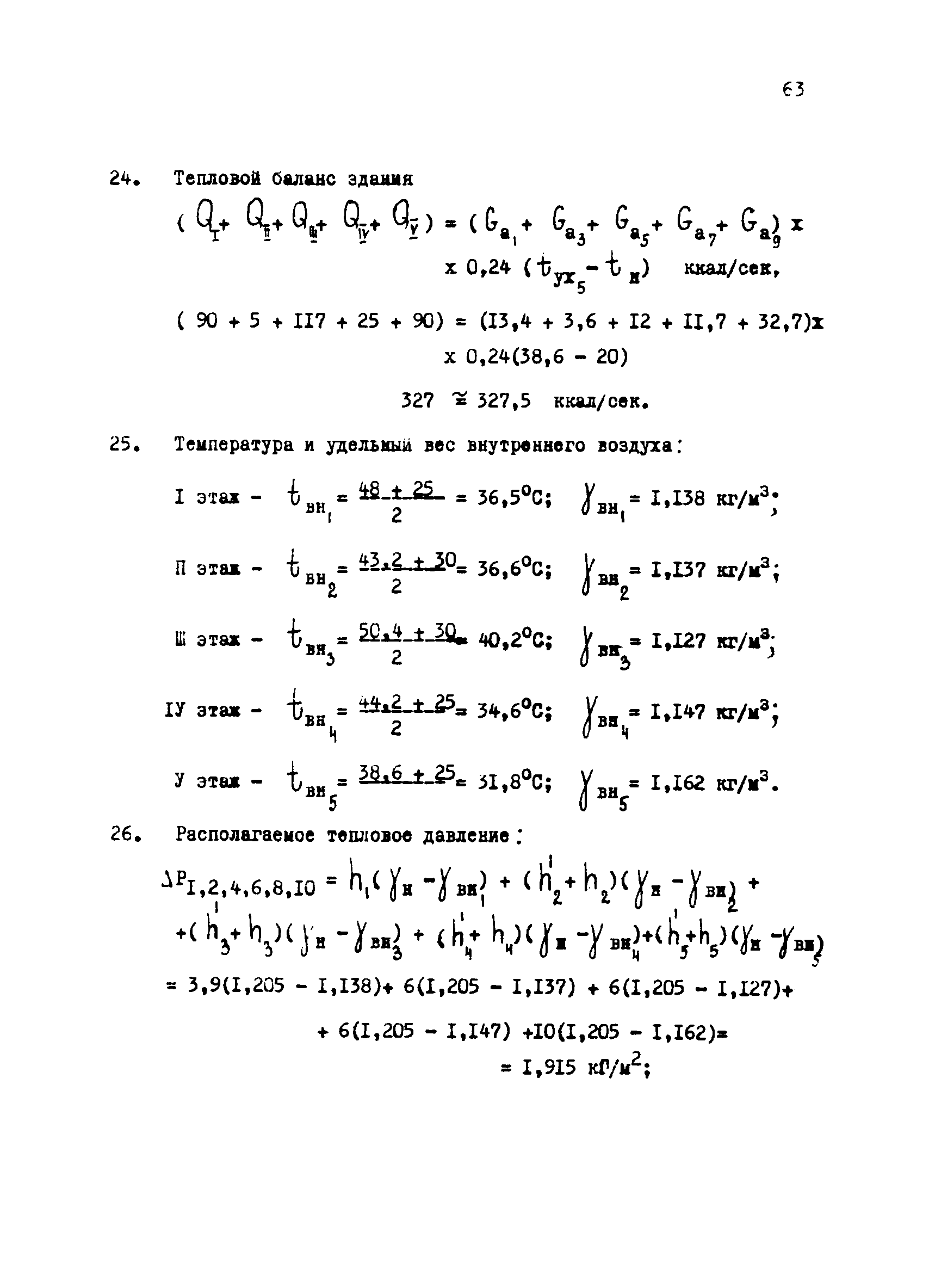
Скачать Указания по расчету аэрации цехов с тепло-, газовыделениями в теплый, переходный и холодный периоды годаДата актуализации: 01.01.2021
Указания по расчету аэрации цехов с тепло-, газовыделениями в теплый, переходный и холодный периоды года| Статус: | справочные материалы, мп, тпр | | Название рус.: | Указания по расчету аэрации цехов с тепло-, газовыделениями в теплый, переходный и холодный периоды года | | Дата добавления в базу: | 01.01.2021 | | Дата актуализации: | 01.01.2021 | | Область применения: | Указания предназначены для инженерно-технических работников проектных организаций и заводов, технической инспекции ЦК профсоюзов и санитарного надзора, занимающихся вопросами улучшения условий труда в горячих цехах | | Оглавление: | 1. Общие положения 2. Расчет аэрации в теплый период года с учетом теплового давления 3. Поверочный расчет аэрации при совместном действии теплового и ветрового давления 4. Расчет аэрации в холодный период года с учетом теплового давления 5. Приближенный расчет аэрации помещений с механической вытяжкой в холодный период года (без механического притока) 6. Поверочный расчет аэрации при совместном действии теплового и ветрового давлений для холодного периода года 7. Примеры расчета аэрации Приложение 1 Приложение 2 Приложение 3 Приложение 3а Приложение 4 Приложение 5 Приложение 6 Приложение 7 Приложение 8 Приложение 9 Приложение 10 | | Разработан: | ВЦСПС
| | Утверждён: | Министерство химической промышленности СССР (USSR Ministry of the Chemical Industry ) Министерство химического и нефтяного машиностроения СССР (USSR Ministry of Chemical and Petroleum Machine Manufacturing ) Министерство автомобильной промышленности СССР Министерство тяжелого, энергетического и транспортного машиностроения Министерство станкостроительной и инструментальной промышленности
| | Принят: | ЦК профсоюзов рабочих машиностроения, нефтяной и химической промышленности
| | Нормативные ссылки: | |
                                                                               
|