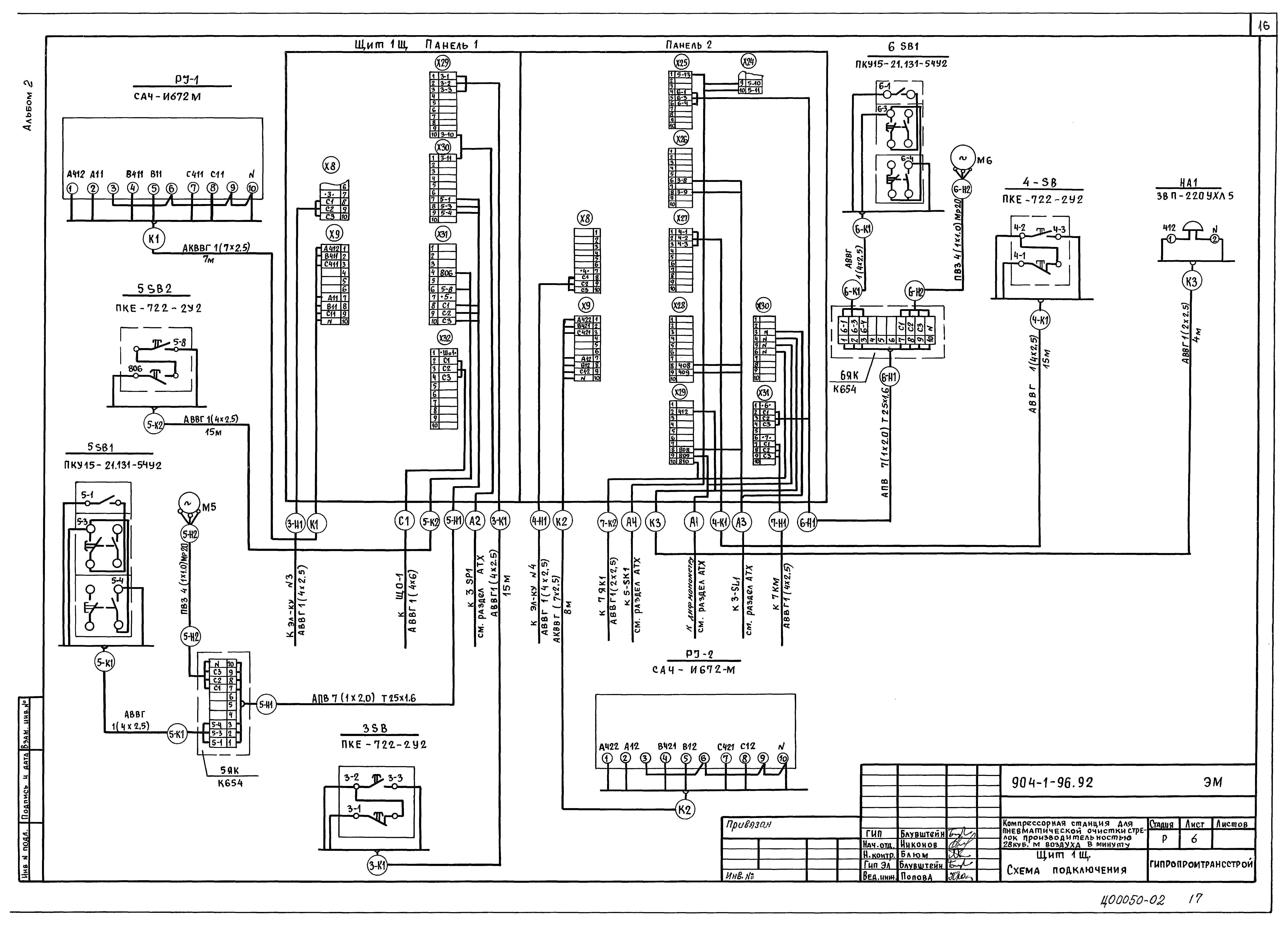
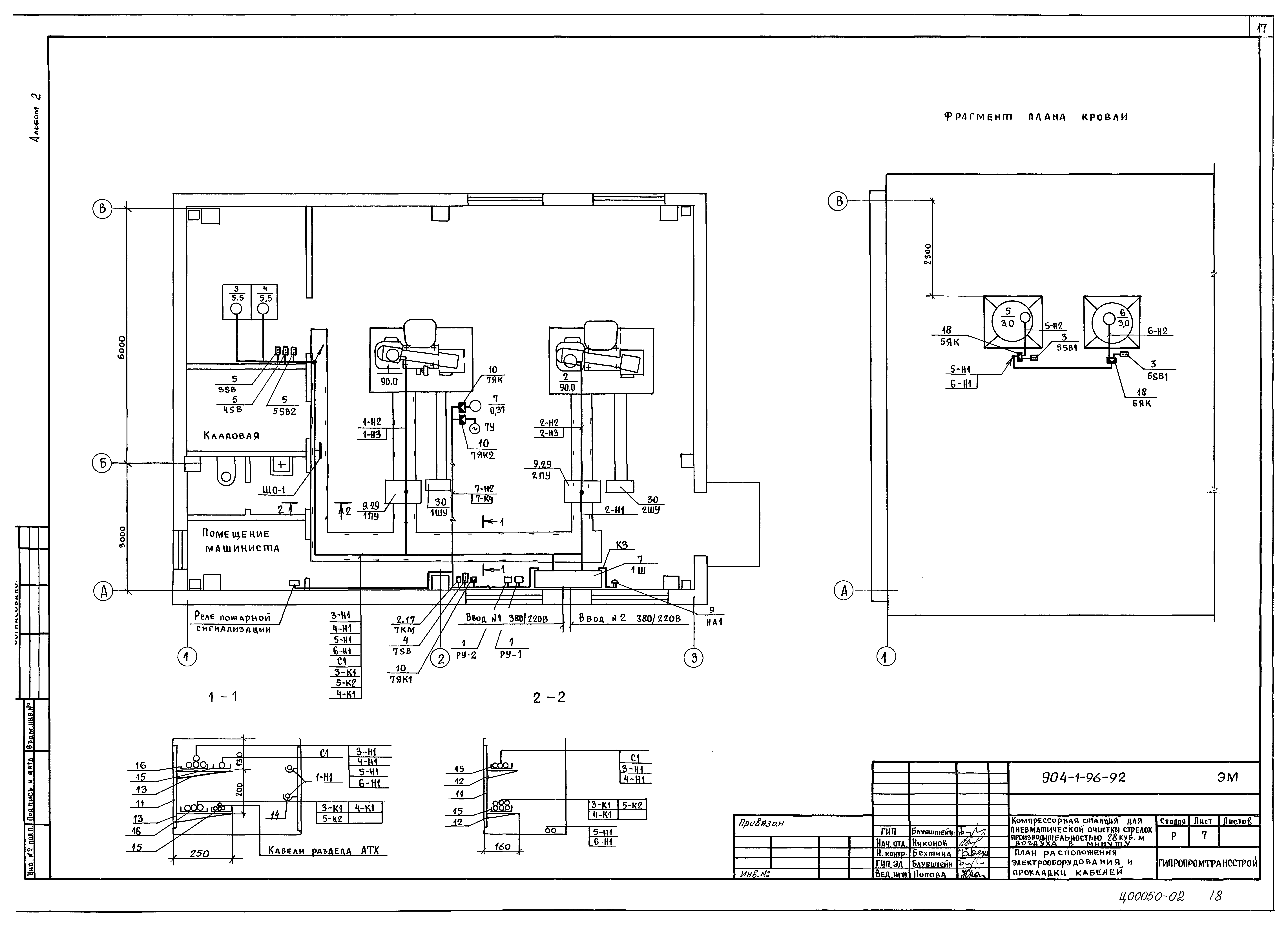
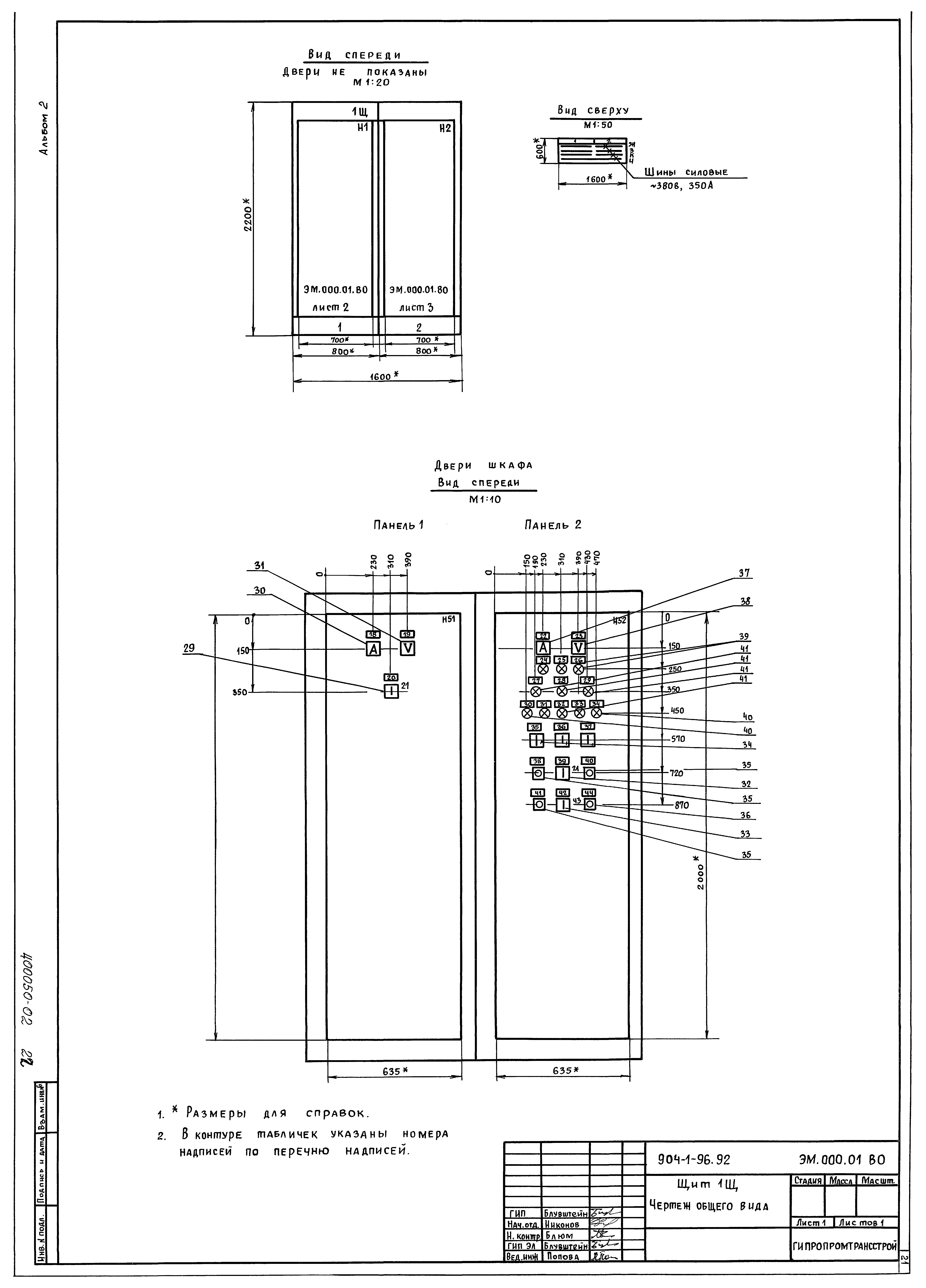
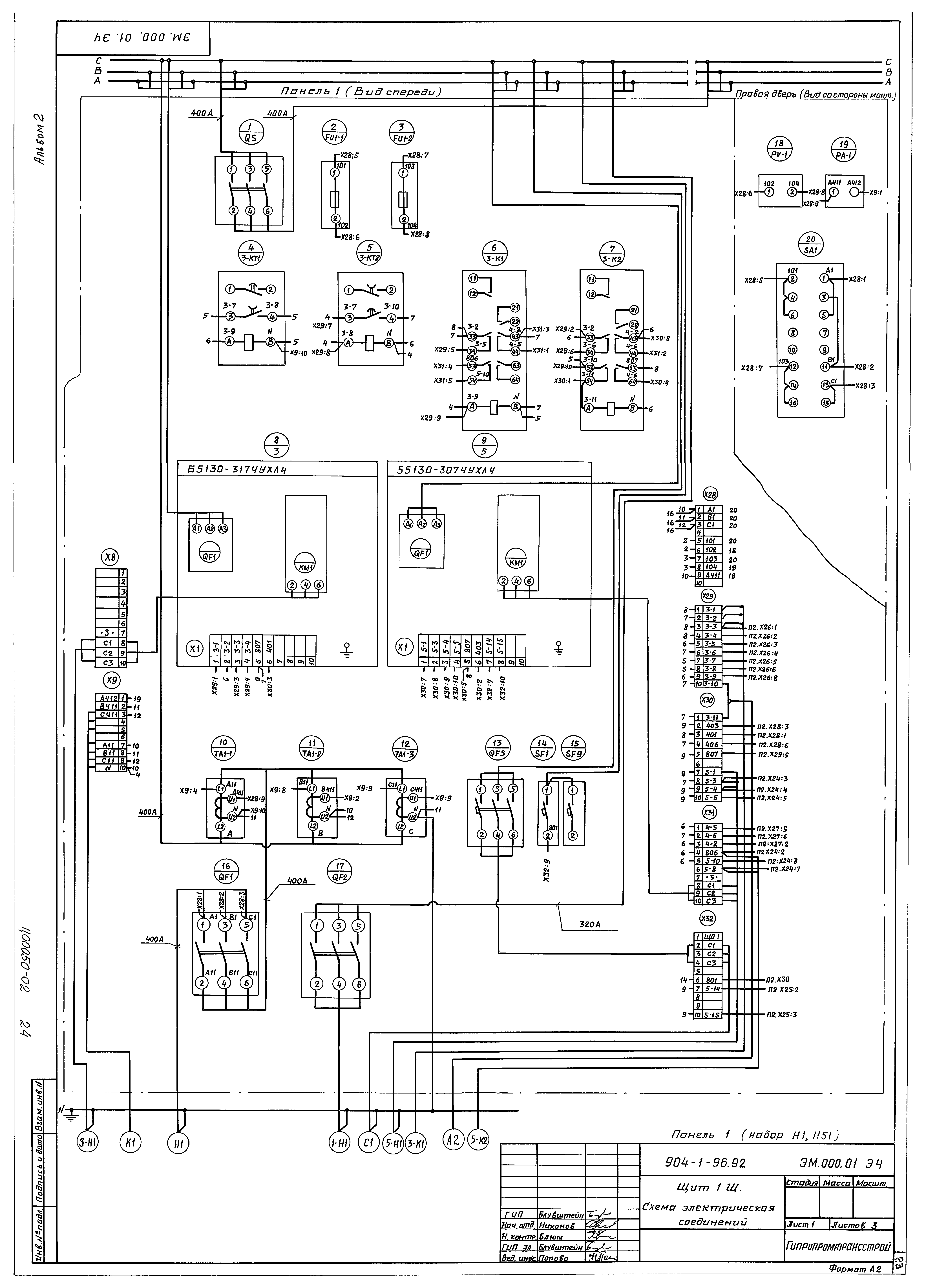
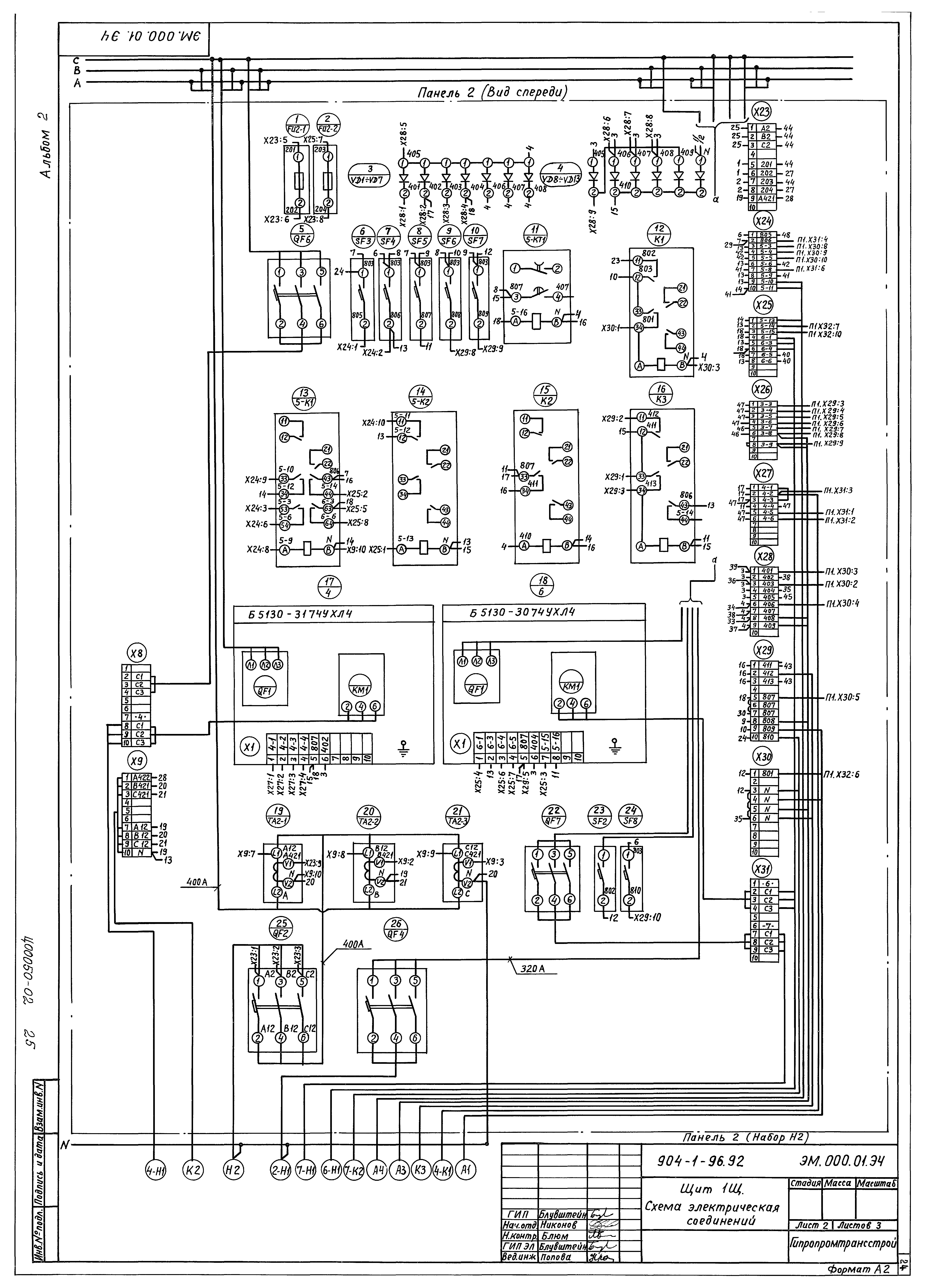
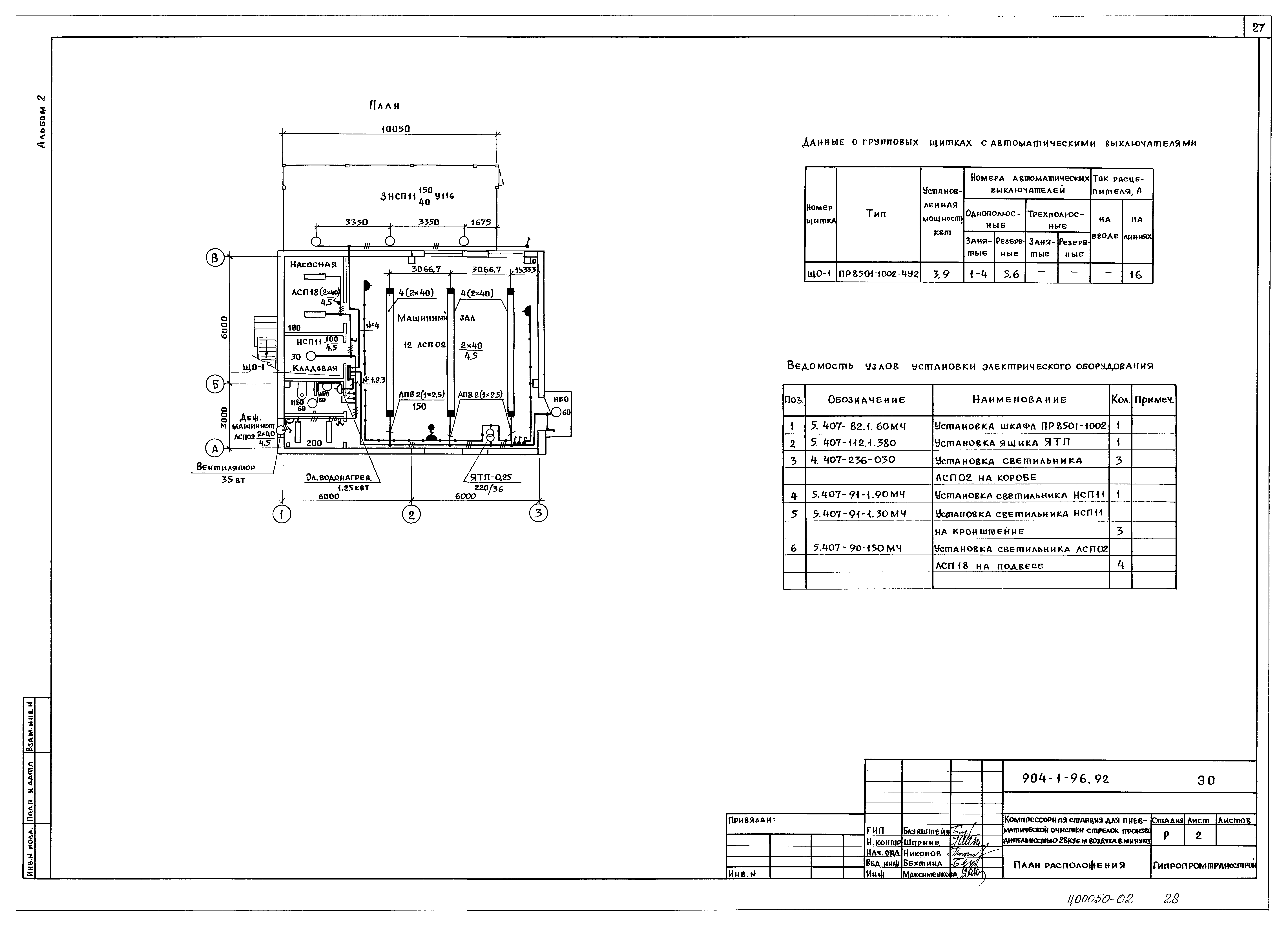
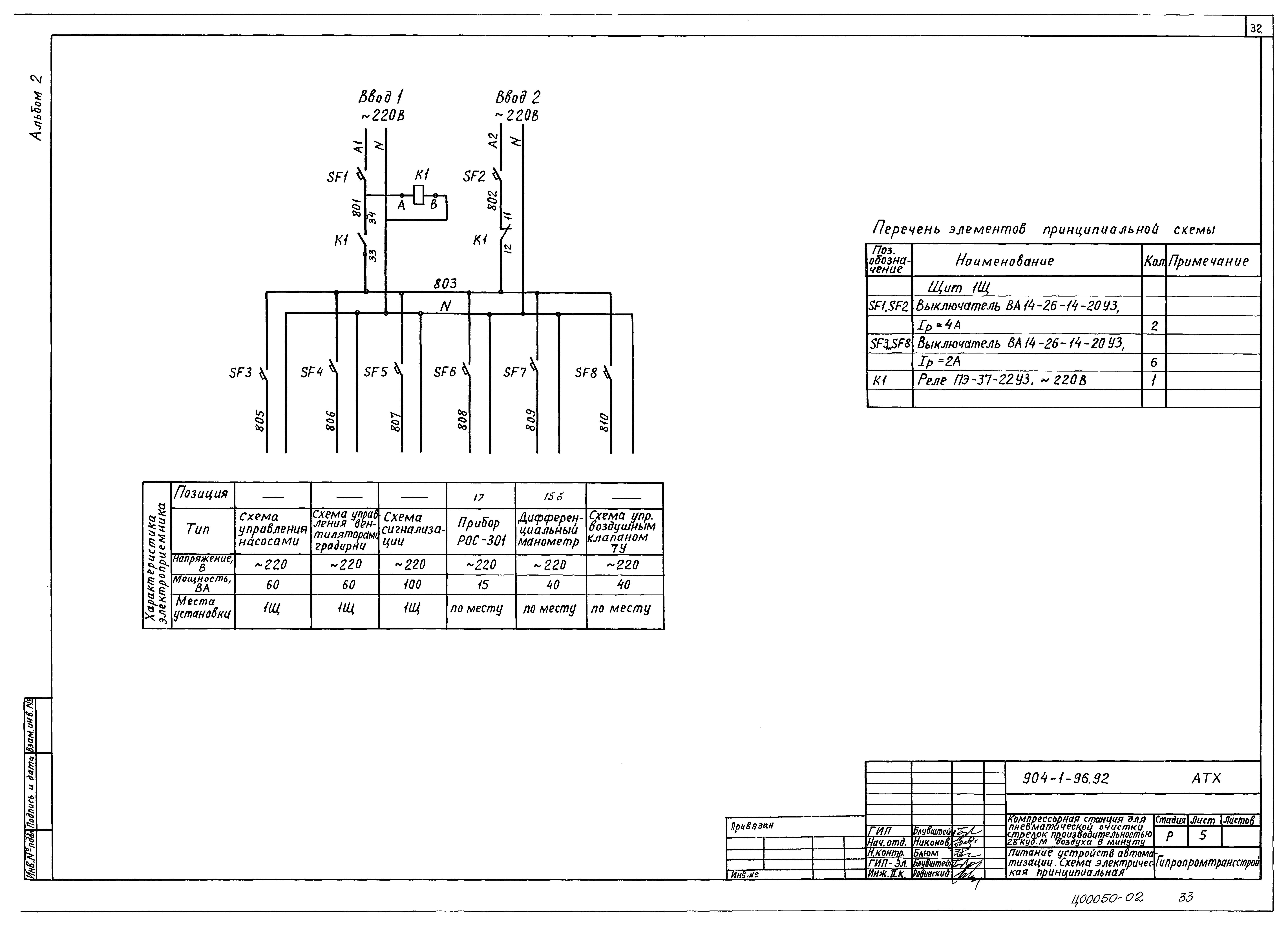
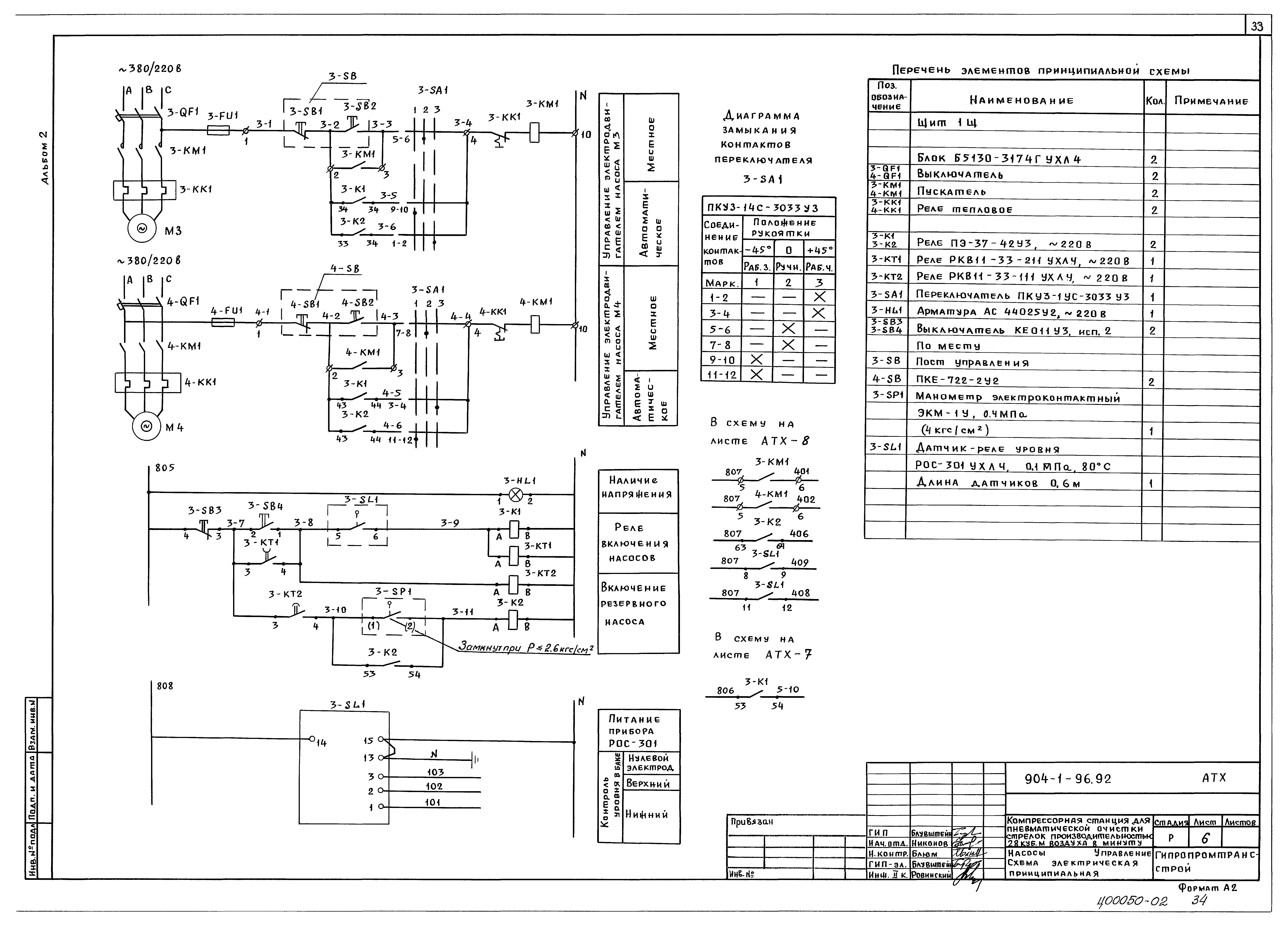
Скачать Типовой проект 904-1-96.92 Альбом 2. Технологические решения. Силовое электрооборудование. Электроосвещение. Автоматизация технологических процессов. Связь и сигнализацияДата актуализации: 01.01.2021
|
| Обозначение: | Типовой проект 904-1-96.92 |
| Обозначение англ: | 904-1-96.92 |
| Статус: | не определен законодательством |
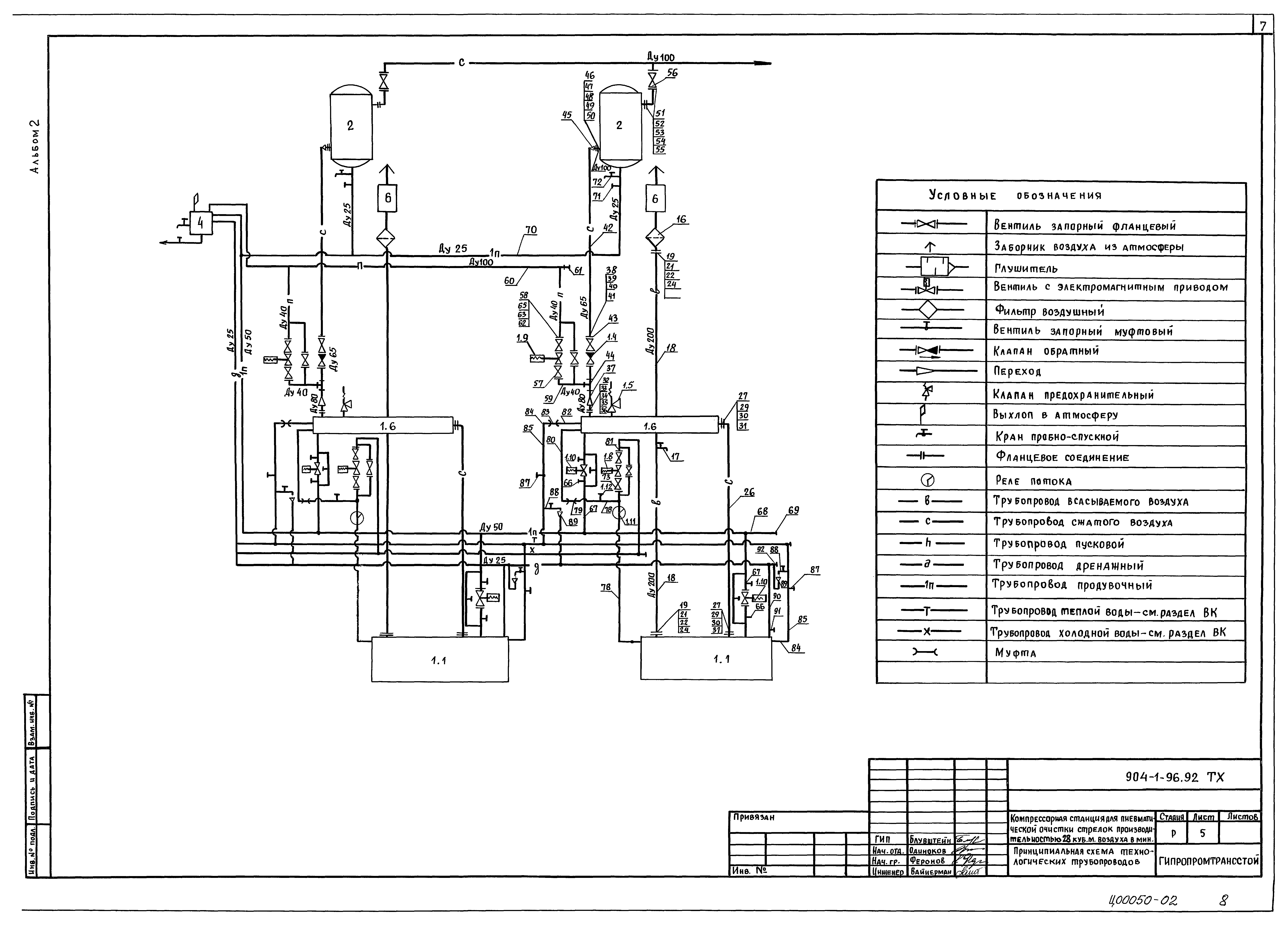
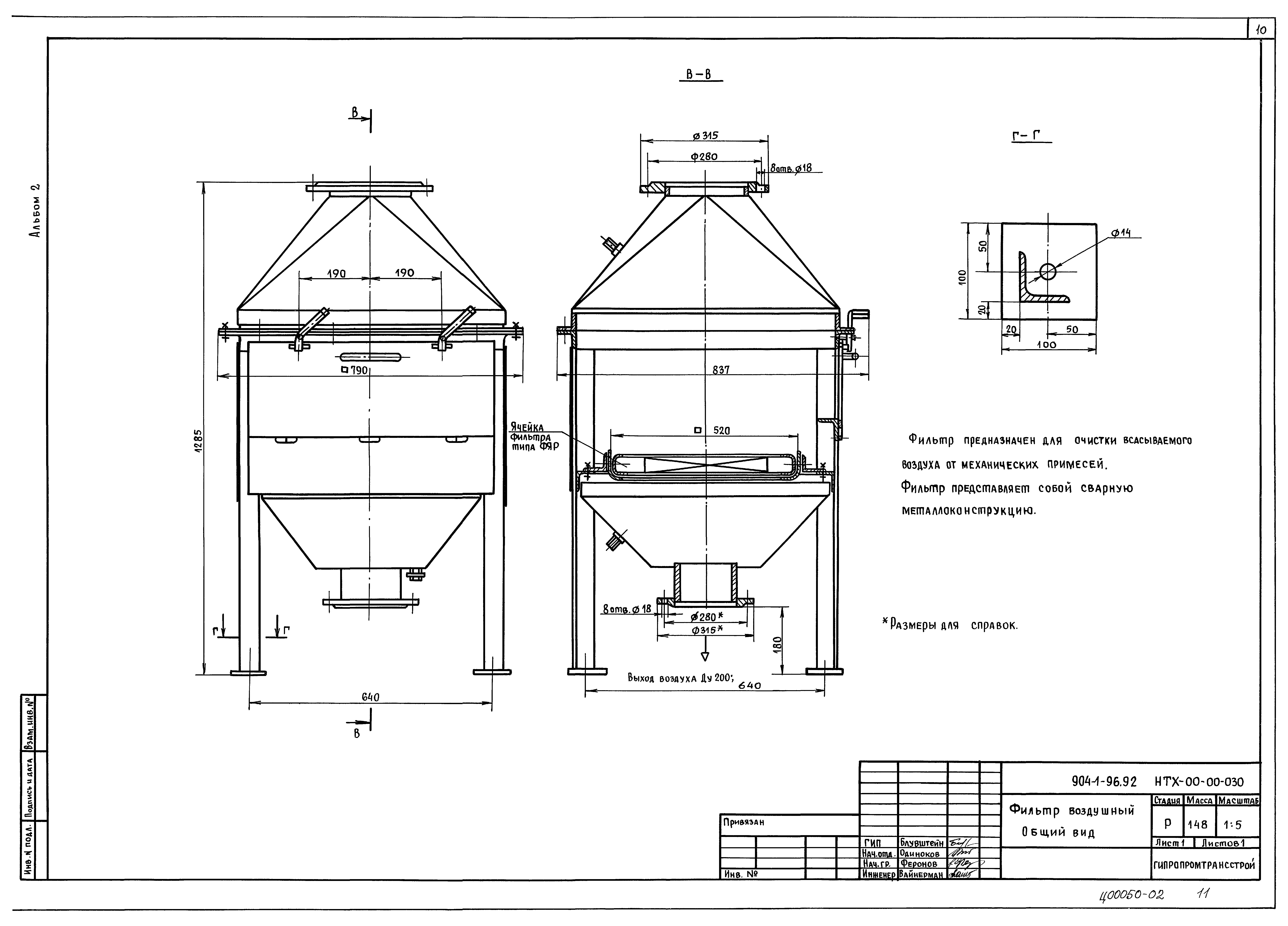
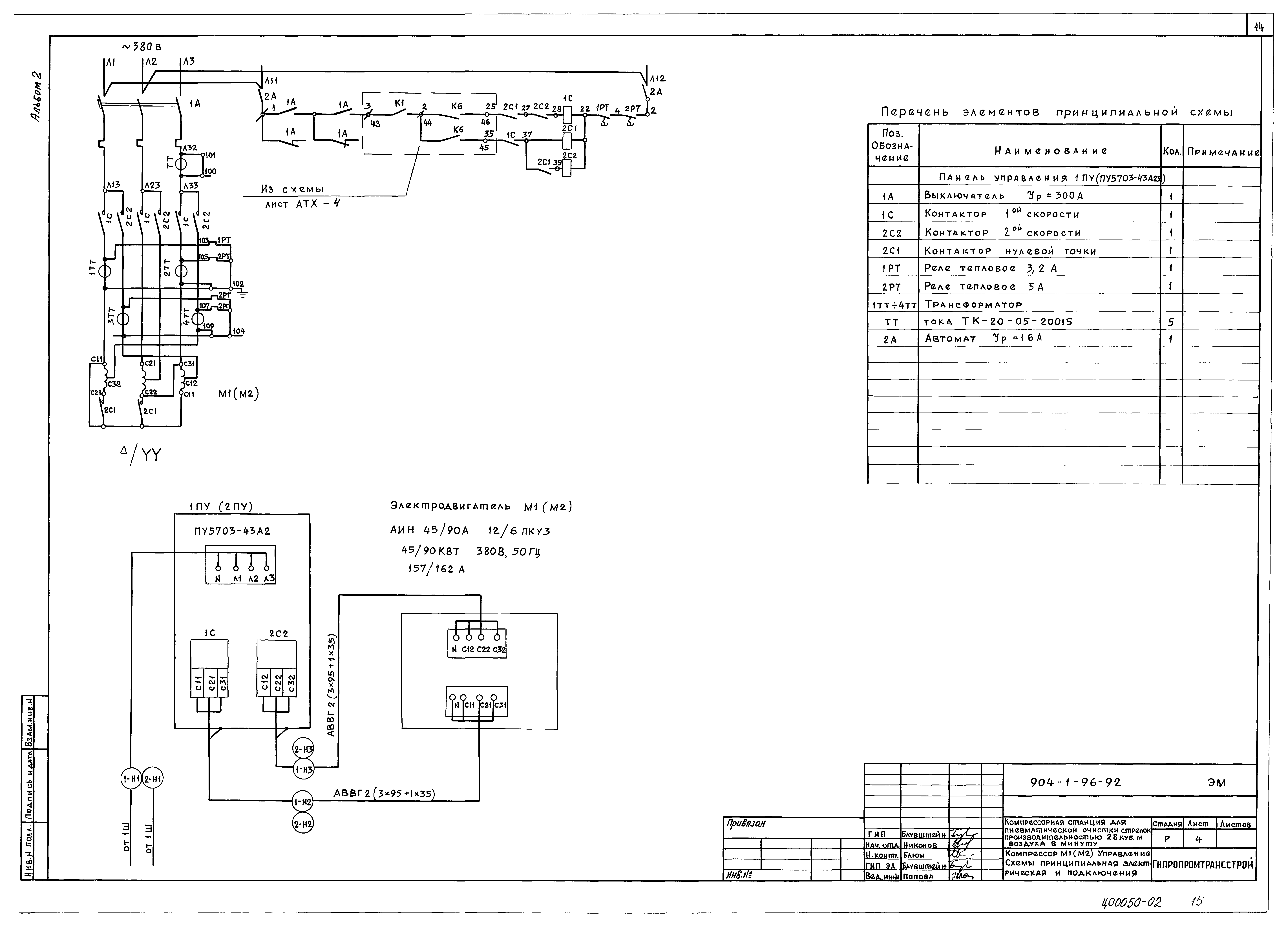
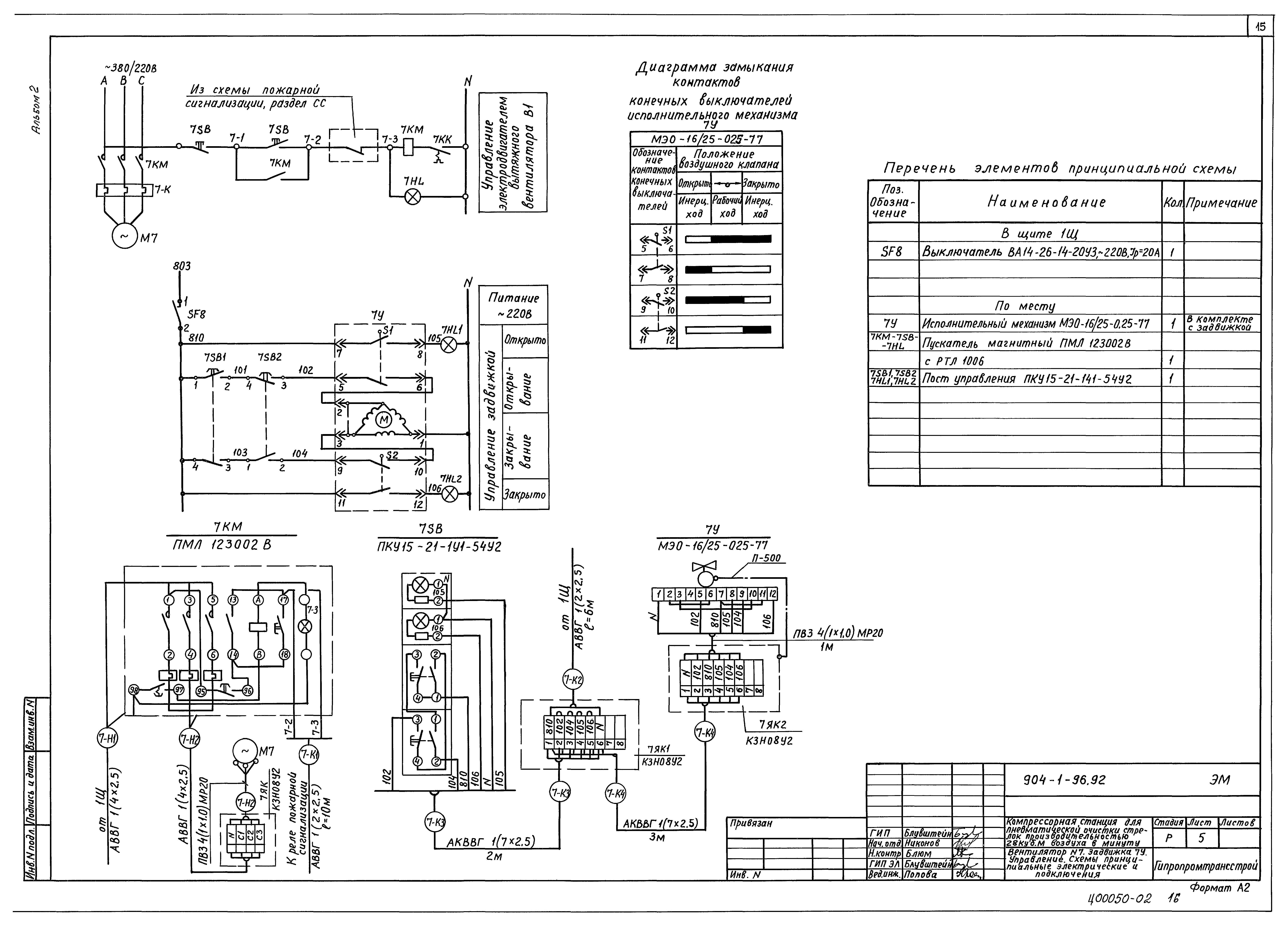
| Название рус.: | Альбом 2. Технологические решения. Силовое электрооборудование. Электроосвещение. Автоматизация технологических процессов. Связь и сигнализация |
| Дата добавления в базу: | 01.01.2021 |
| Дата актуализации: | 01.01.2021 |
| Дата введения: | 21.12.1992 |
| Дата окончания срока действия: | 30.06.2003 |
| Разработан: | Гипропромтрансстрой |
| Утверждён: | 21.12.1992 Гипропромтрансстрой (98) |
| Заменяет собой: |
|








































