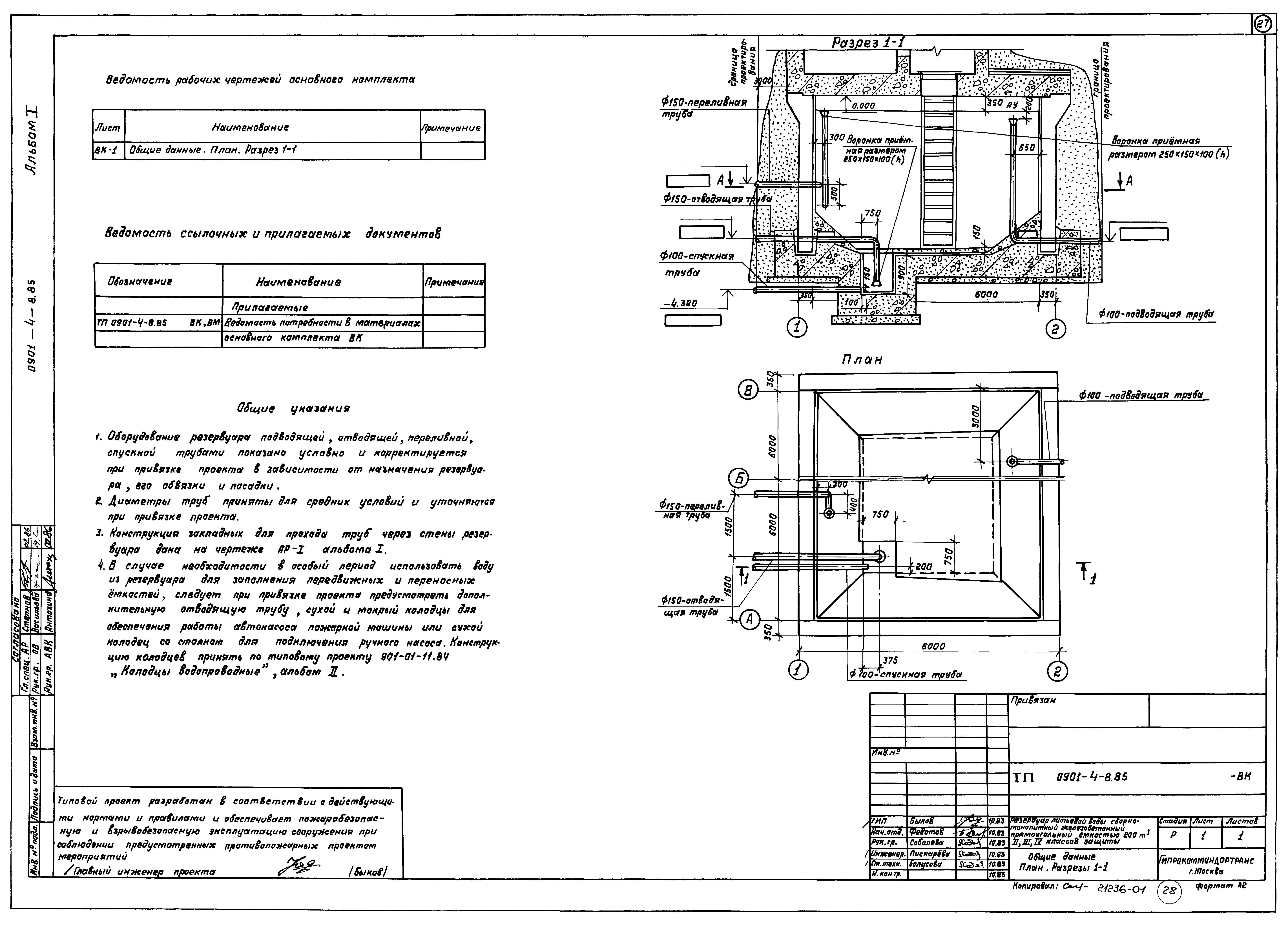
Скачать Типовой проект 0901-4-8.85 Альбом I. Пояснительная записка, архитектурно-строительные решения, конструкции железобетонные, электротехническая часть, электроавтоматика, отопление и вентиляция, водопровод и канализацияДата актуализации: 01.01.2021 Типовой проект 0901-4-8.85
Альбом I. Пояснительная записка, архитектурно-строительные решения, конструкции железобетонные, электротехническая часть, электроавтоматика, отопление и вентиляция, водопровод и канализация| Обозначение: | Типовой проект 0901-4-8.85 | | Обозначение англ: | 0901-4-8.85 | | Статус: | не определен законодательством | | Название рус.: | Альбом I. Пояснительная записка, архитектурно-строительные решения, конструкции железобетонные, электротехническая часть, электроавтоматика, отопление и вентиляция, водопровод и канализация | | Дата добавления в базу: | 01.01.2021 | | Дата актуализации: | 01.01.2021 | | Дата введения: | 11.11.1984 | | Дата окончания срока действия: | 30.06.2003 | | Разработан: | Гипрокоммундортранс Минжилкомхоза РСФСР
| | Утверждён: | 11.06.1984 Управление НГО СССР (11)
| | Издан: | ЦИТП Госстроя СССР (CITP, Gosstroy (USSR) 1988 г. )
| | Нормативные ссылки: | |
                          
|