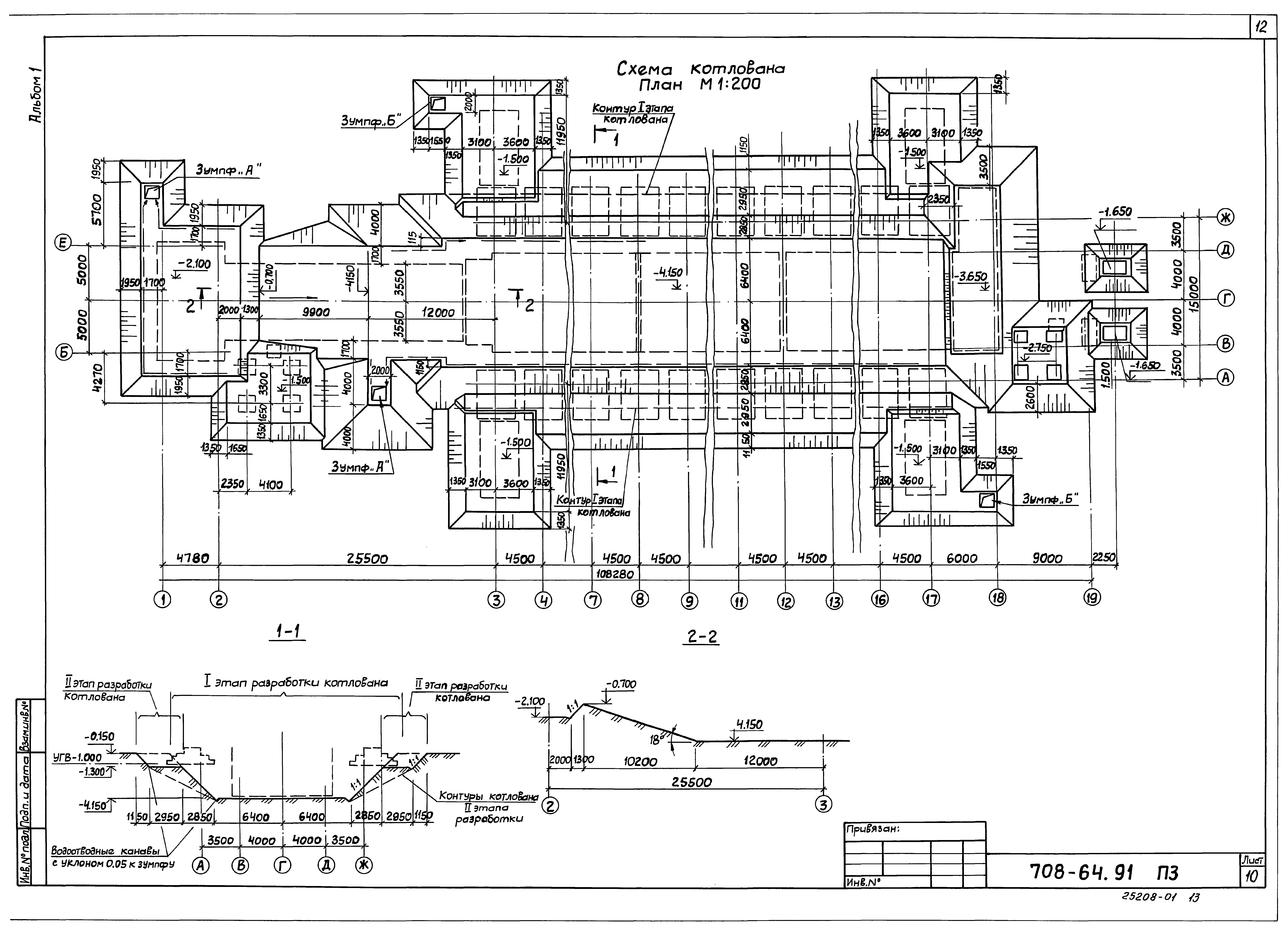
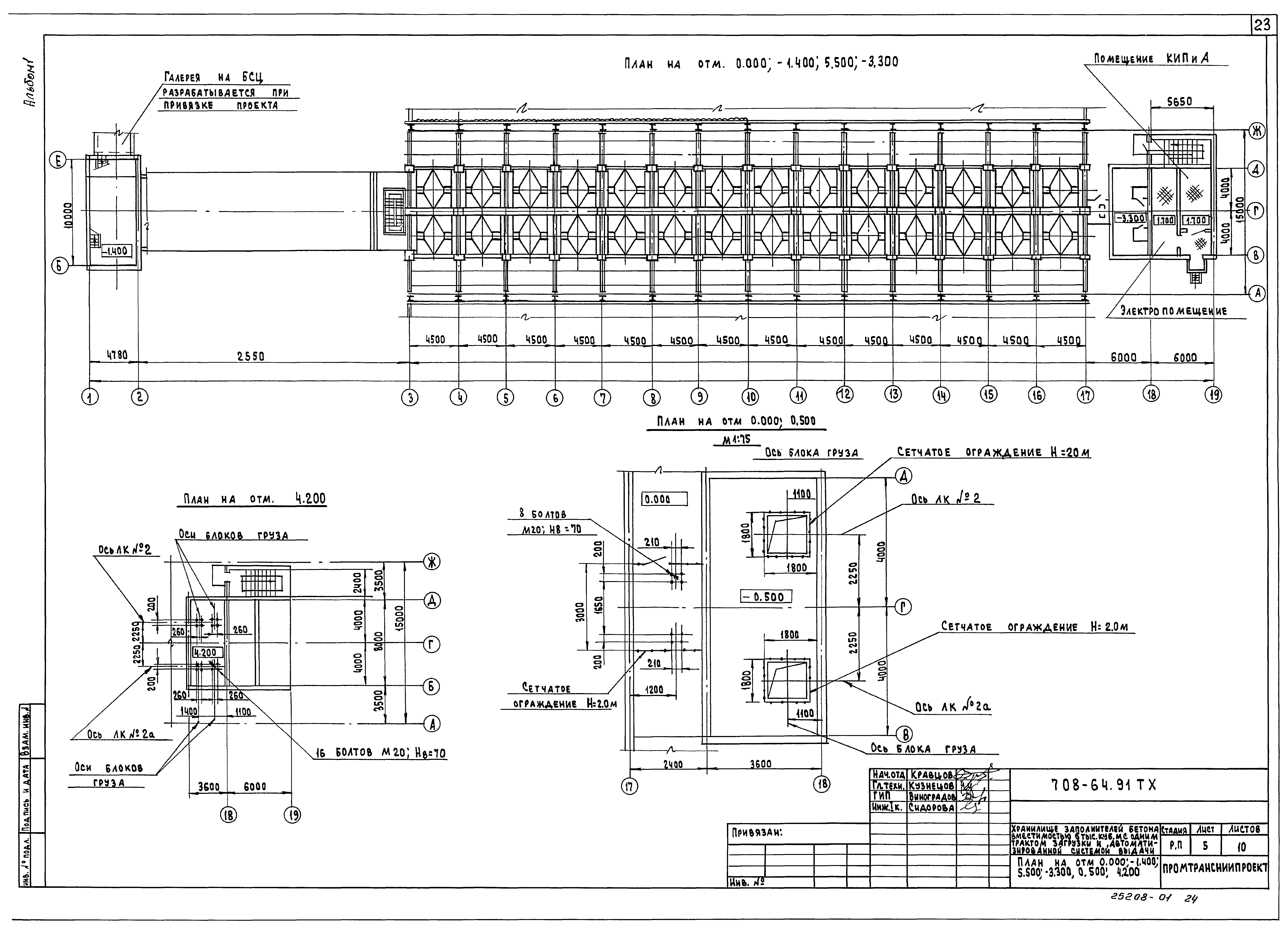
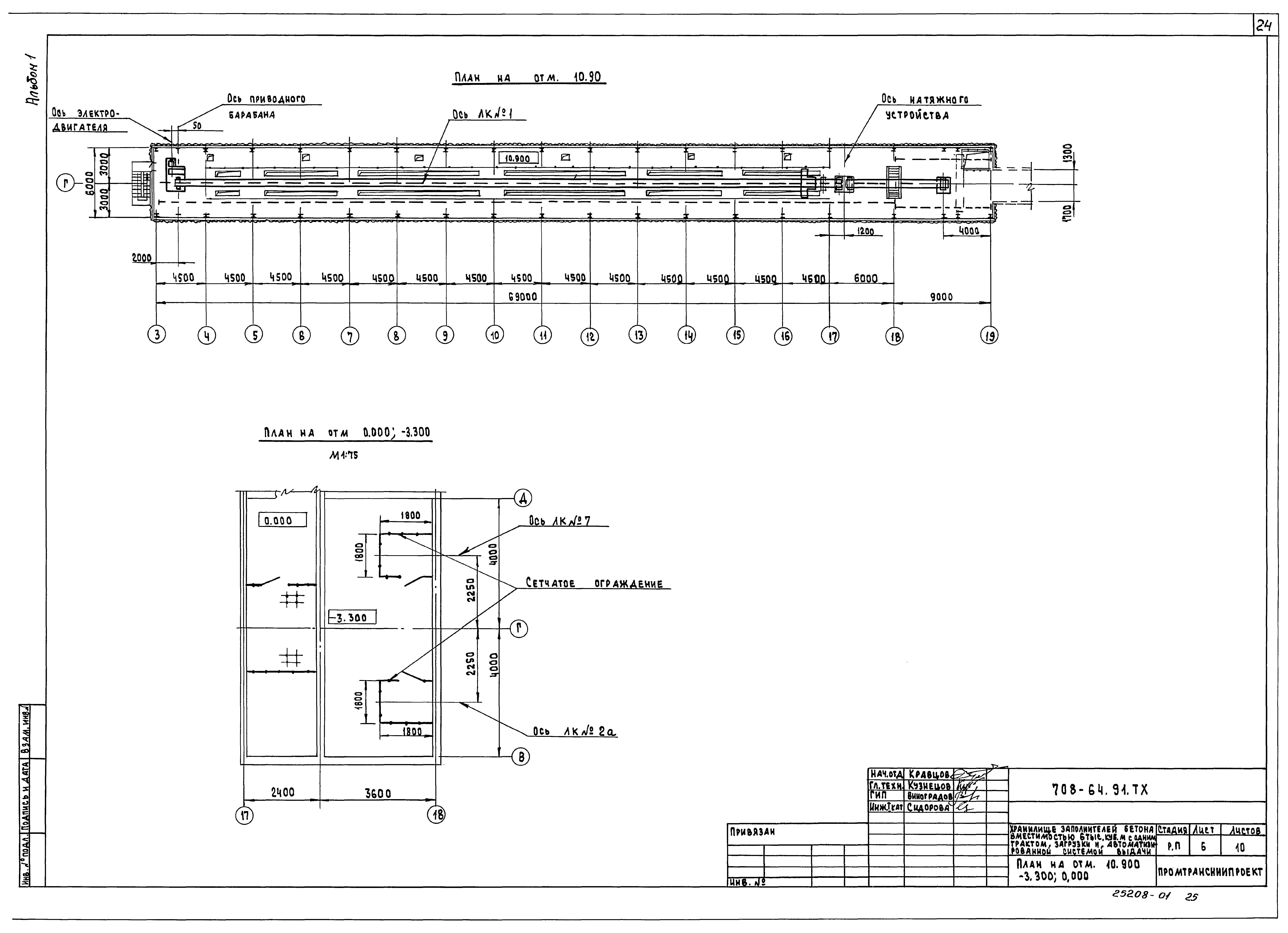
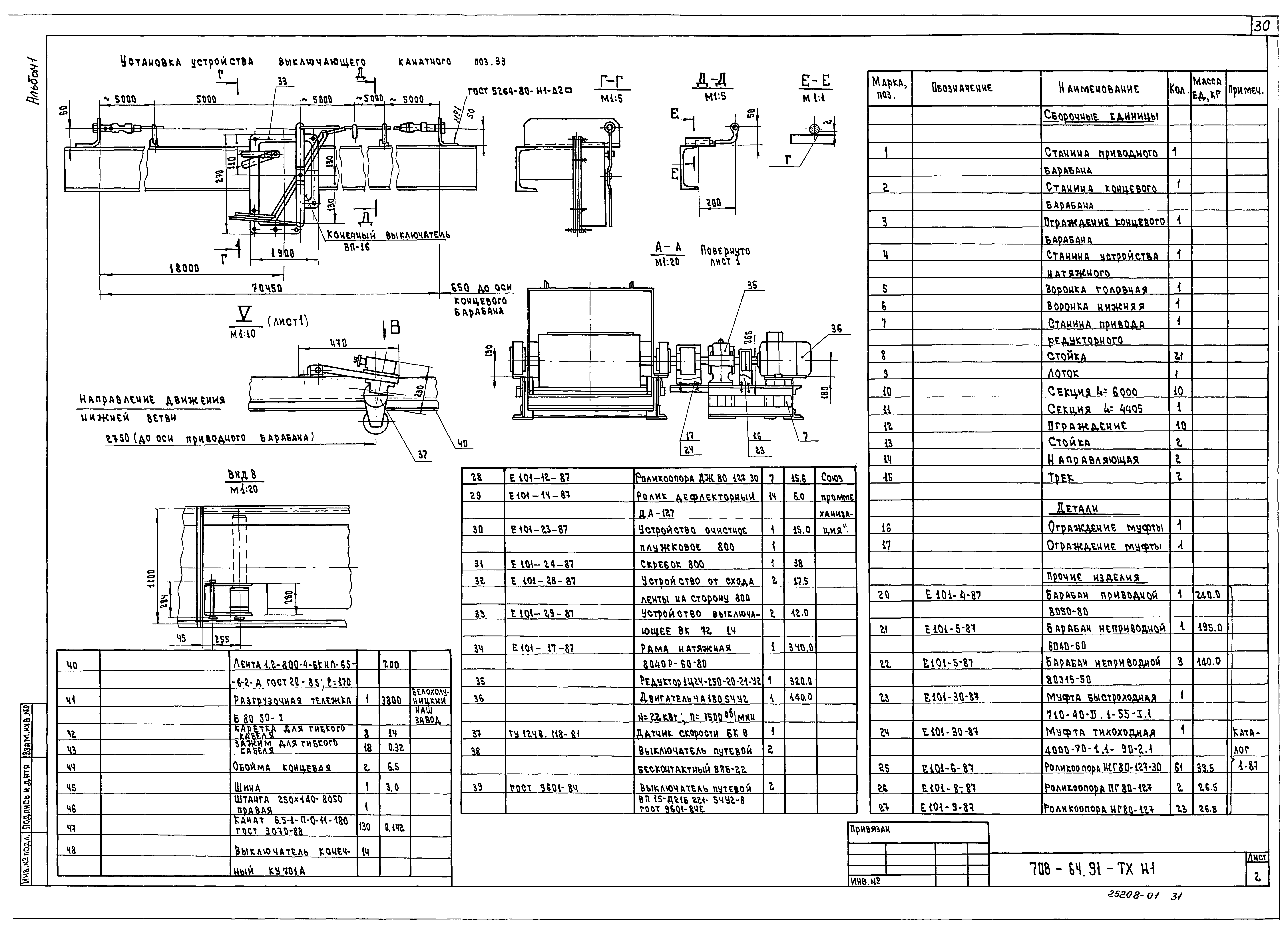
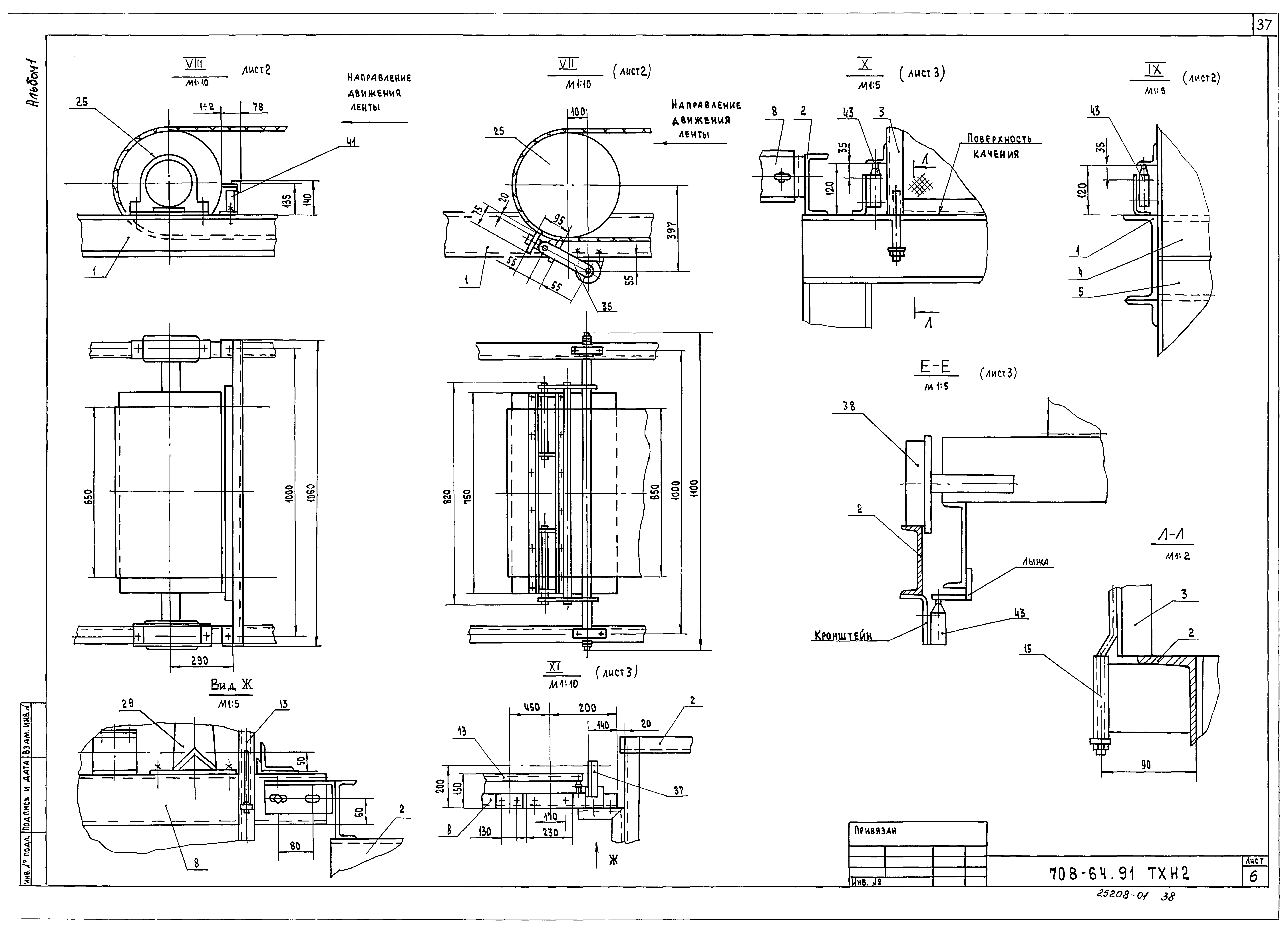
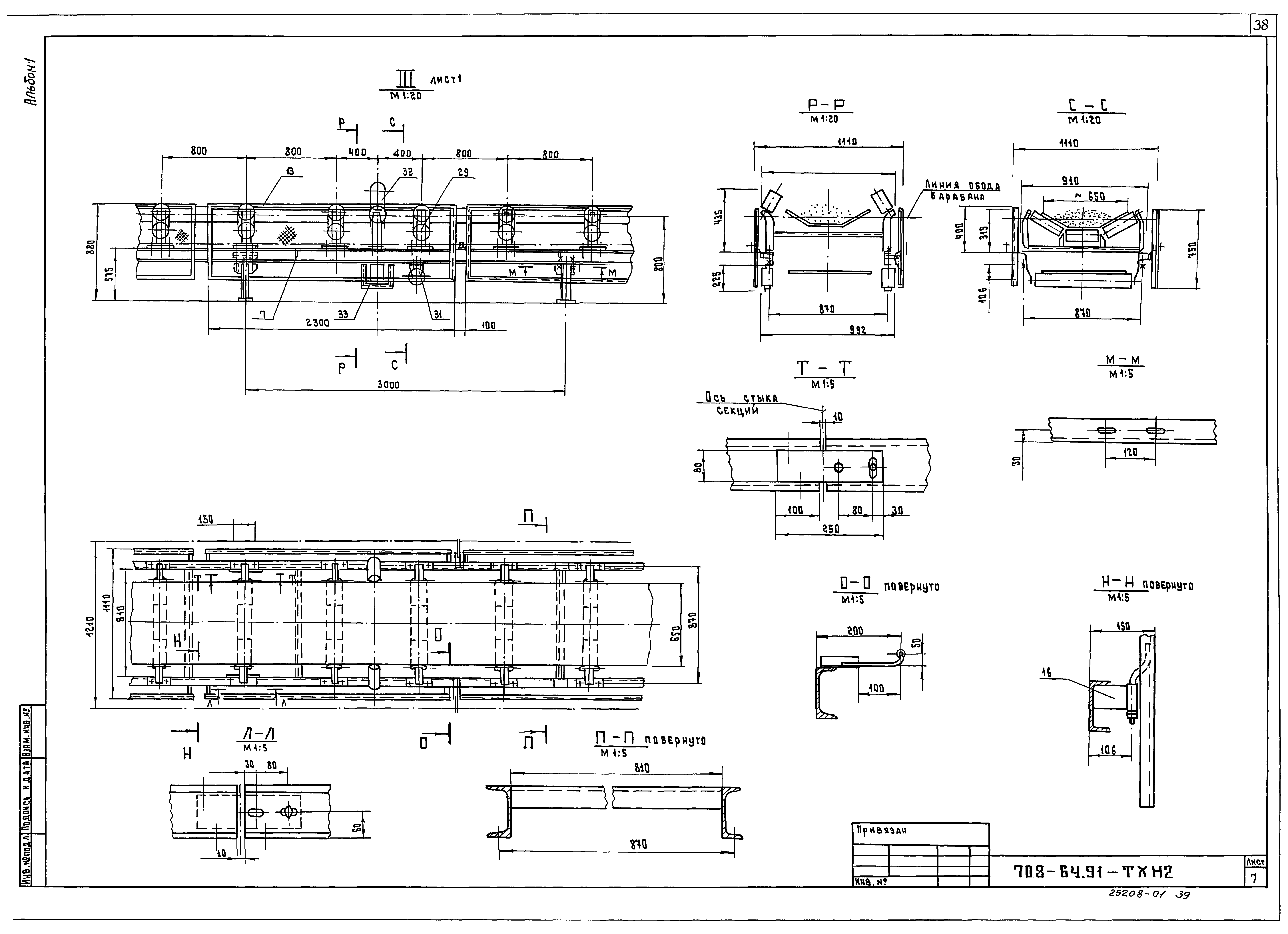
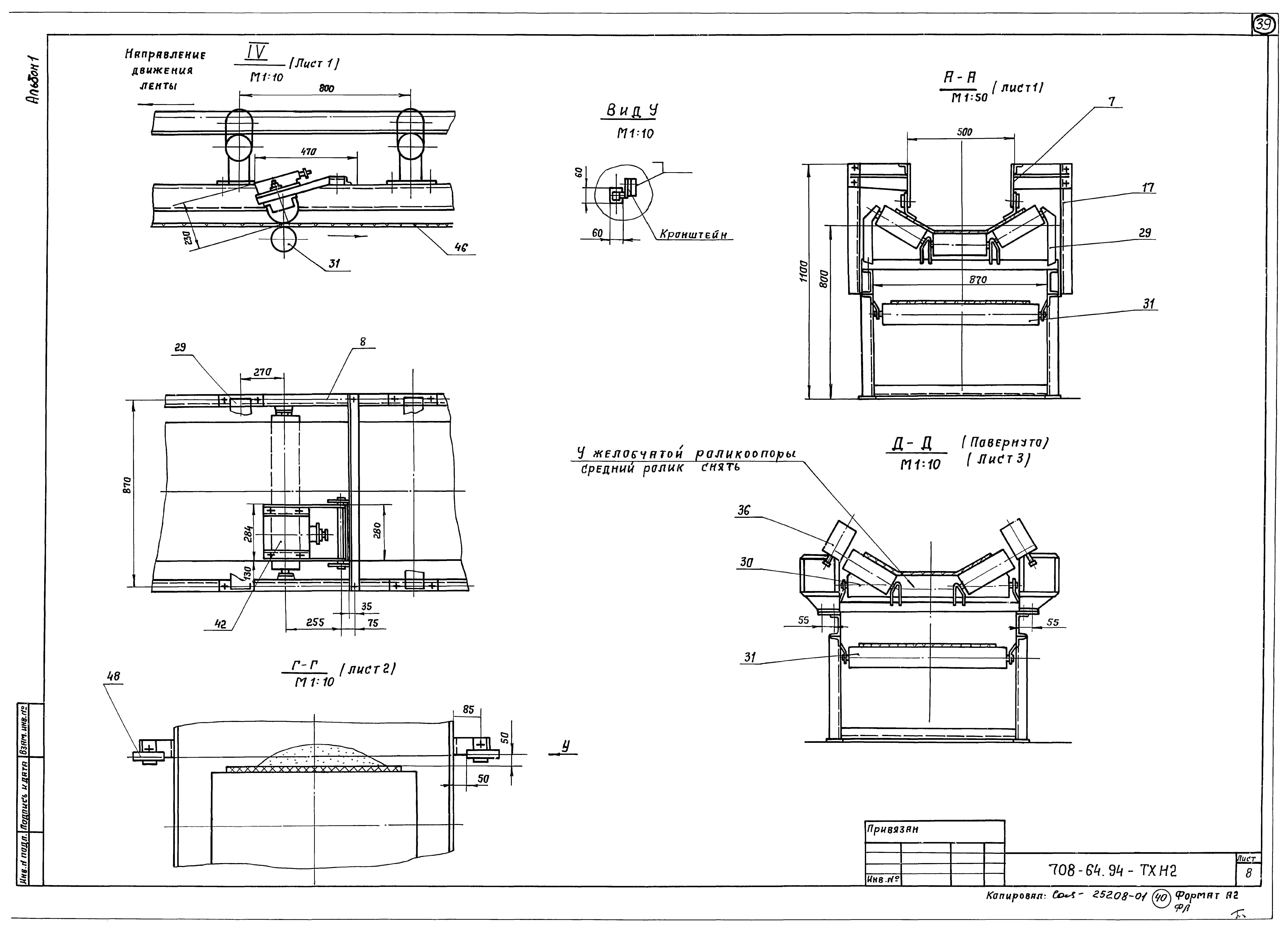
Скачать Типовой проект 708-64.91 Альбом 1. Пояснительная записка. Технология производства. Общие виды нетиповых технологических конструкцийДата актуализации: 01.01.2021
|
| Обозначение: | Типовой проект 708-64.91 |
| Обозначение англ: | 708-64.91 |
| Статус: | не определен законодательством |
| Название рус.: | Альбом 1. Пояснительная записка. Технология производства. Общие виды нетиповых технологических конструкций |
| Дата добавления в базу: | 01.01.2021 |
| Дата актуализации: | 01.01.2021 |
| Дата введения: | 17.01.1992 |
| Дата окончания срока действия: | 30.06.2003 |
| Разработан: | Харьковский Промстройниипроект Промтрансниипроект Укрниипроектстальконструкция Челябинское отделение ВНИПИ Тяжпромэлектропроект Магнитогорский ГПКИ Проектавтоматика |
| Утверждён: | 17.01.1992 Промтрансниипроект (Promtransniiproject 3) |







































