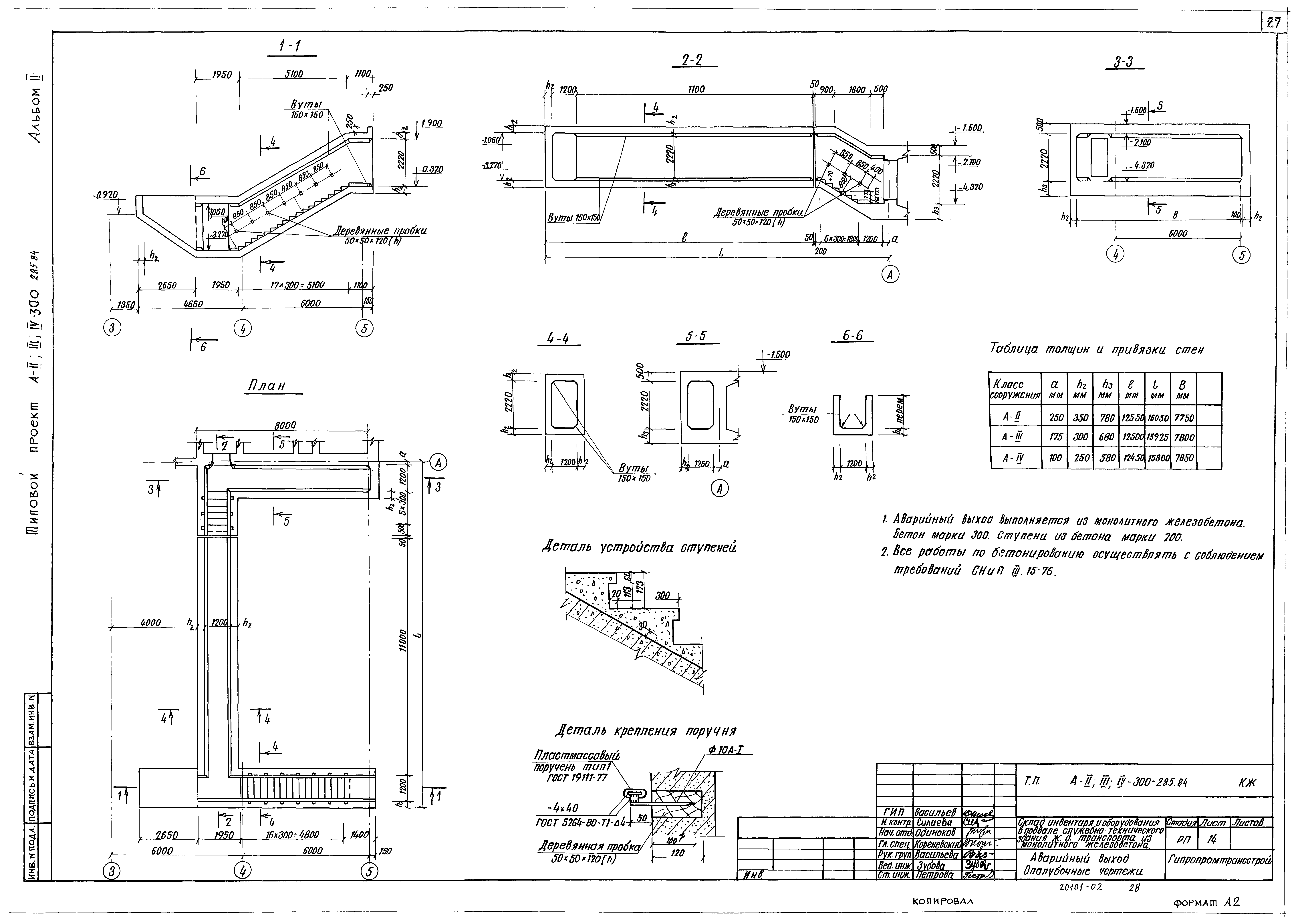
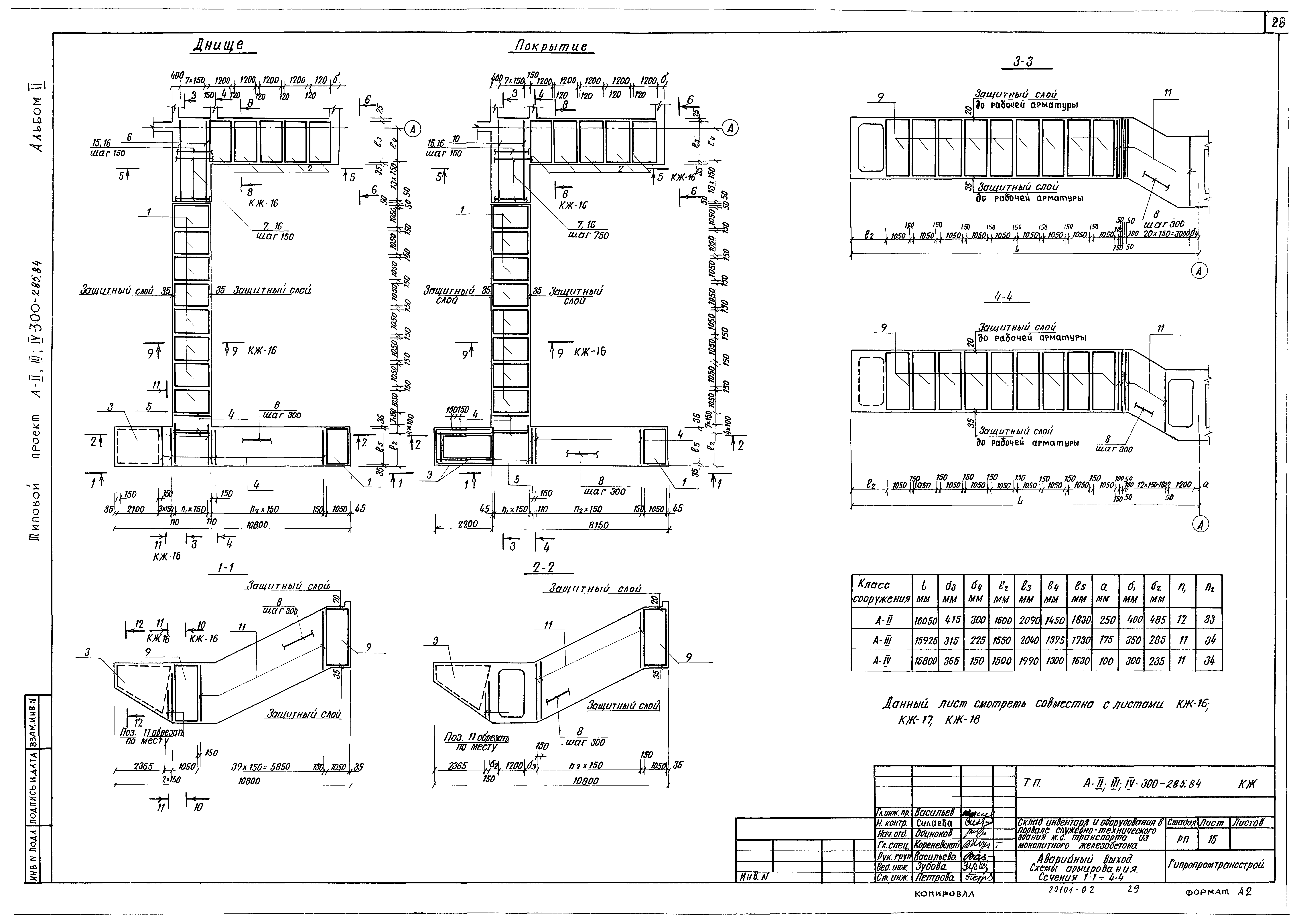
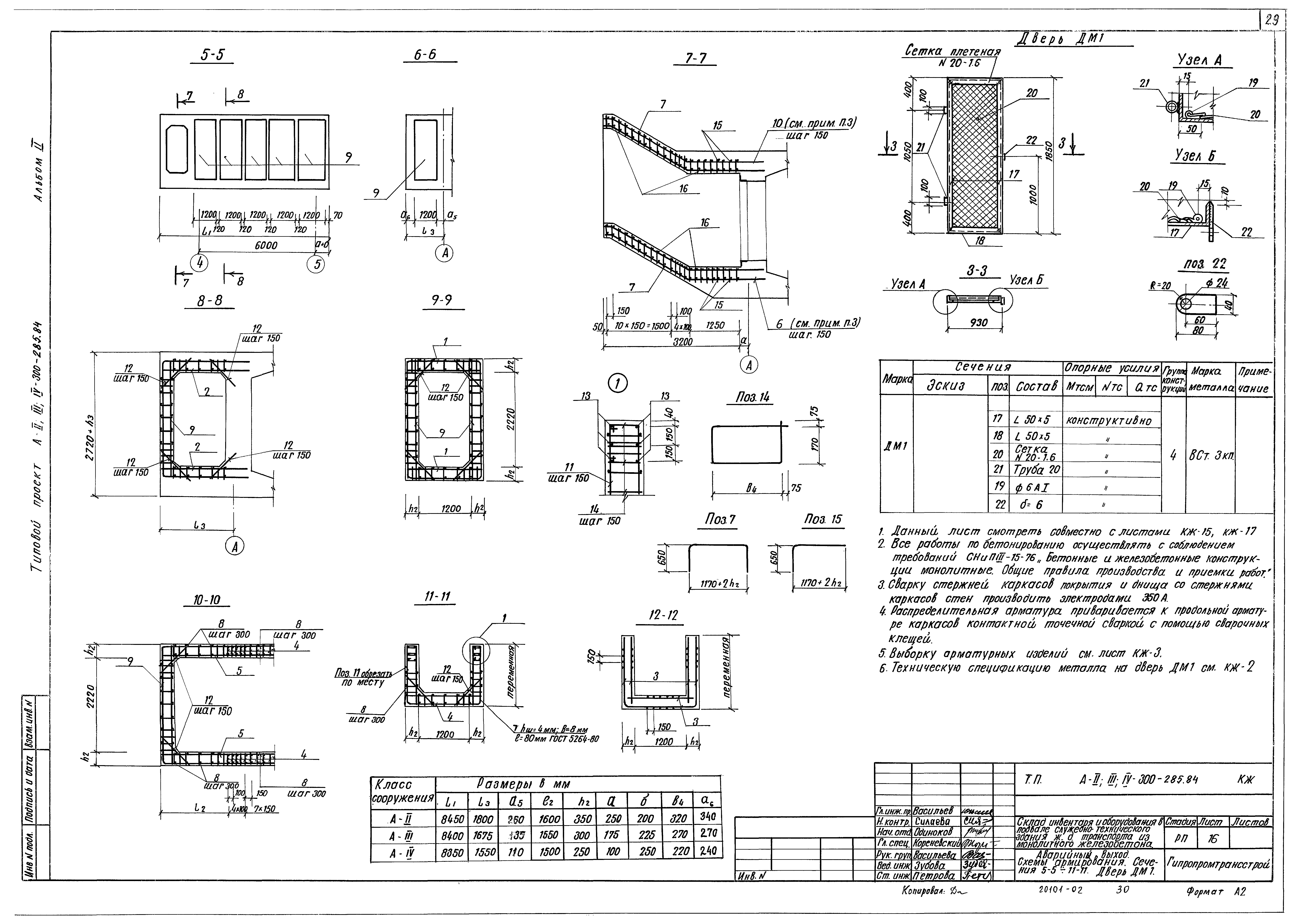
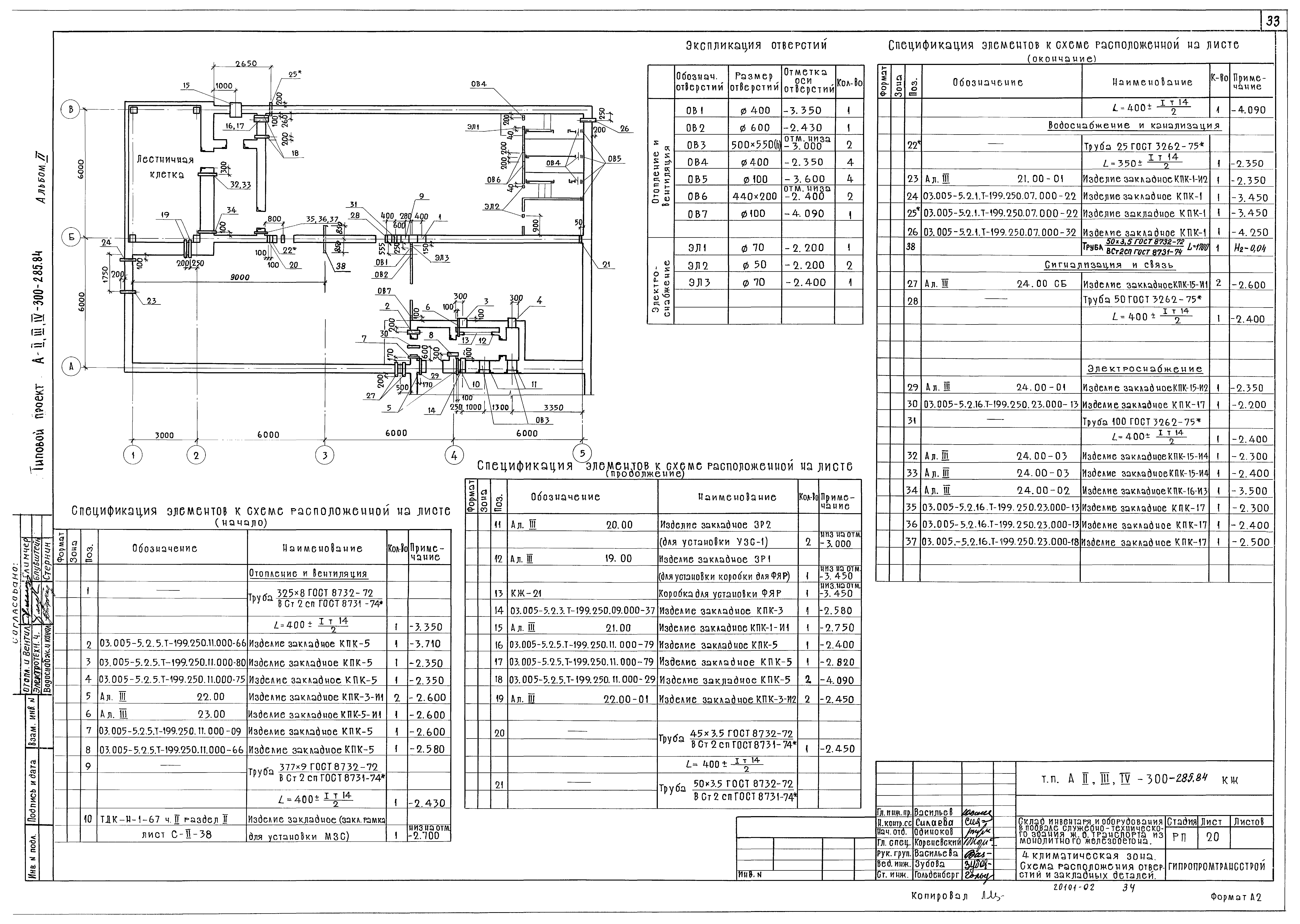
Скачать Типовой проект А-II,III,IV-300-285.84 Альбом II. Архитектурные решения. Конструкции железобетонныеДата актуализации: 01.01.2021 Типовой проект А-II,III,IV-300-285.84
Альбом II. Архитектурные решения. Конструкции железобетонные| Обозначение: | Типовой проект А-II,III,IV-300-285.84 | | Обозначение англ: | А-II,III,IV-300-285.84 | | Статус: | не определен законодательством | | Название рус.: | Альбом II. Архитектурные решения. Конструкции железобетонные | | Дата добавления в базу: | 01.01.2021 | | Дата актуализации: | 01.01.2021 | | Дата введения: | 03.09.1984 | | Дата окончания срока действия: | 30.06.2003 | | Разработан: | Гипропромтрансстрой
| | Утверждён: | 09.12.1983 МПС (Ministry of Railroads М-38450)
|
                                    
|