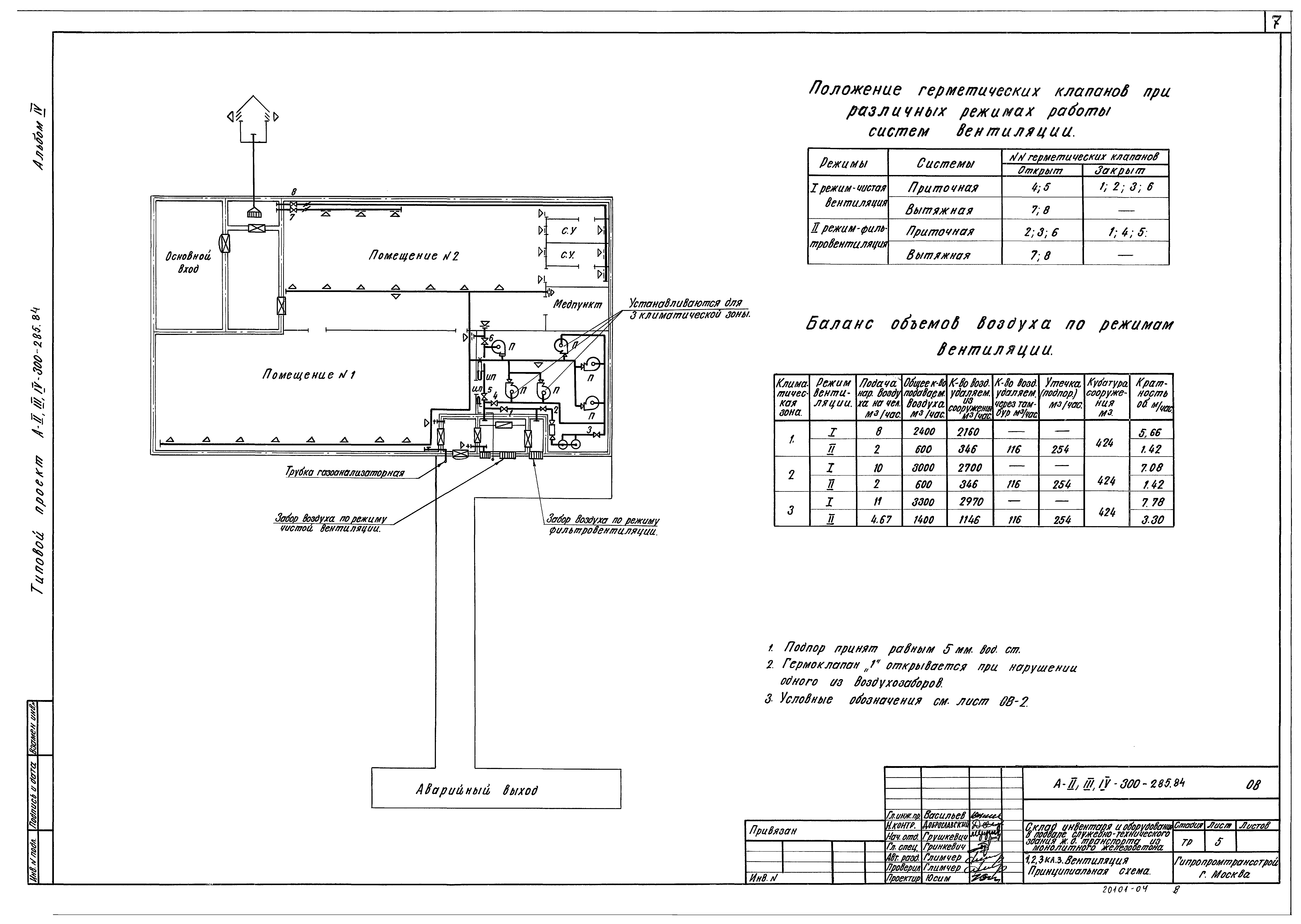
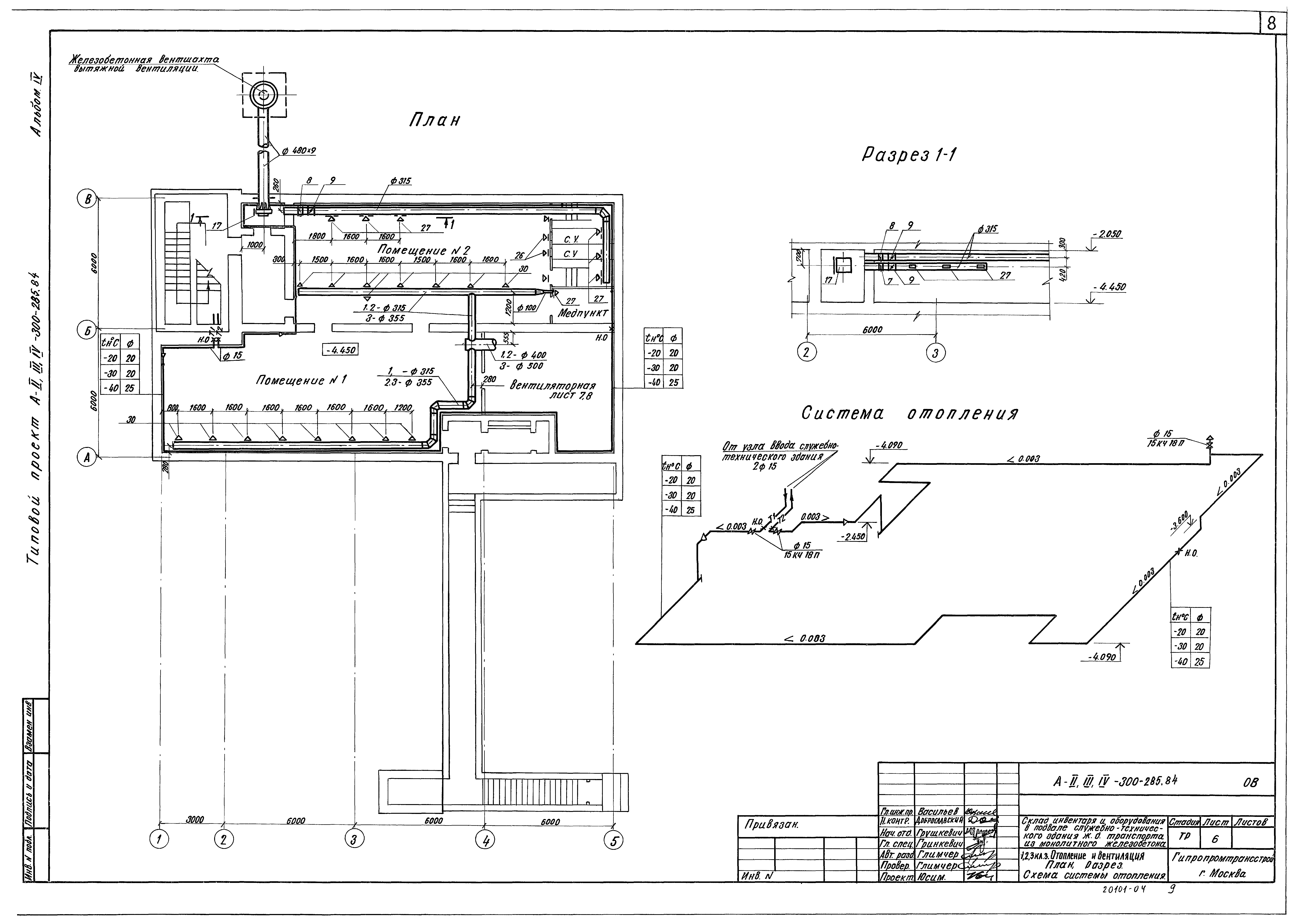
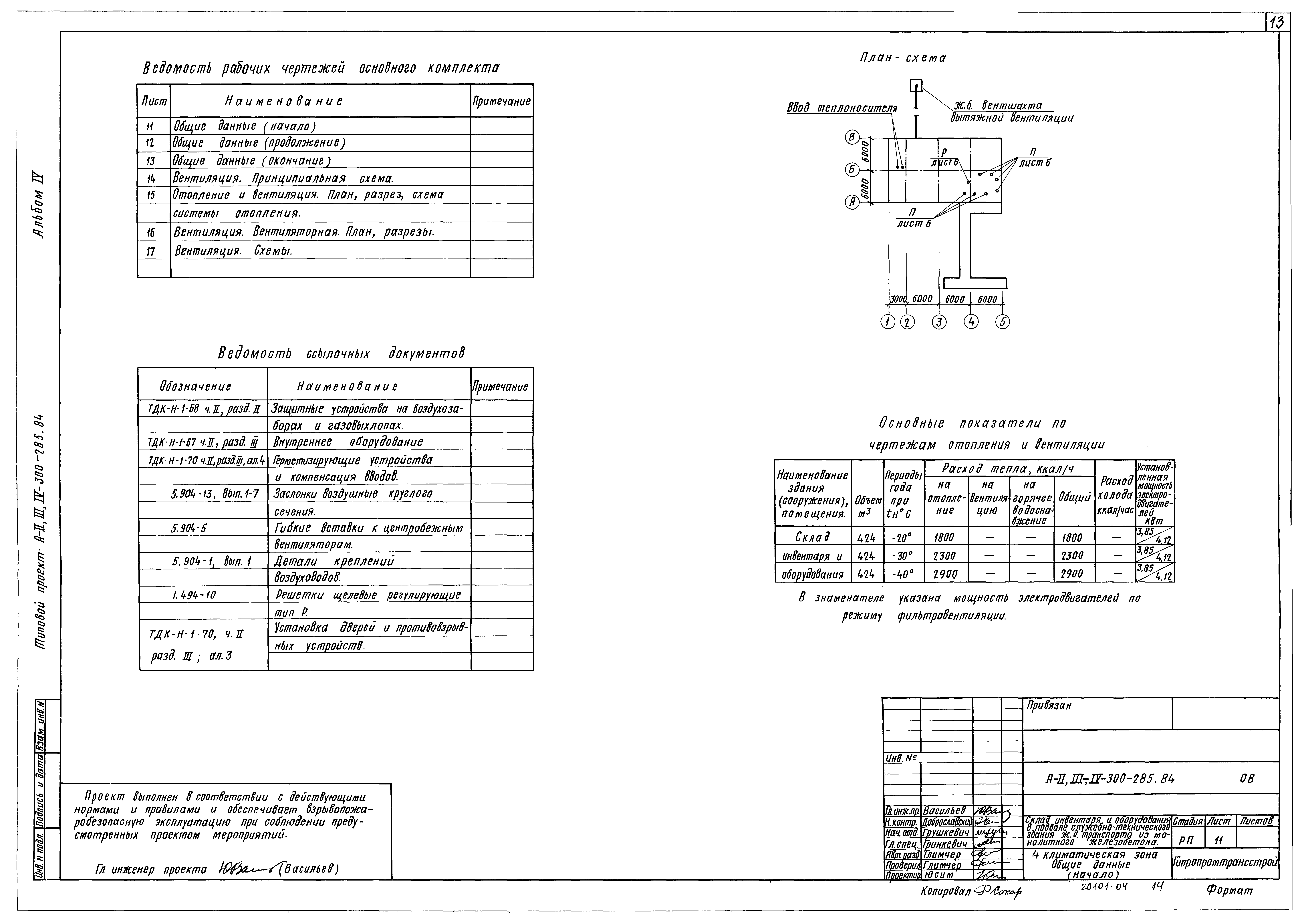
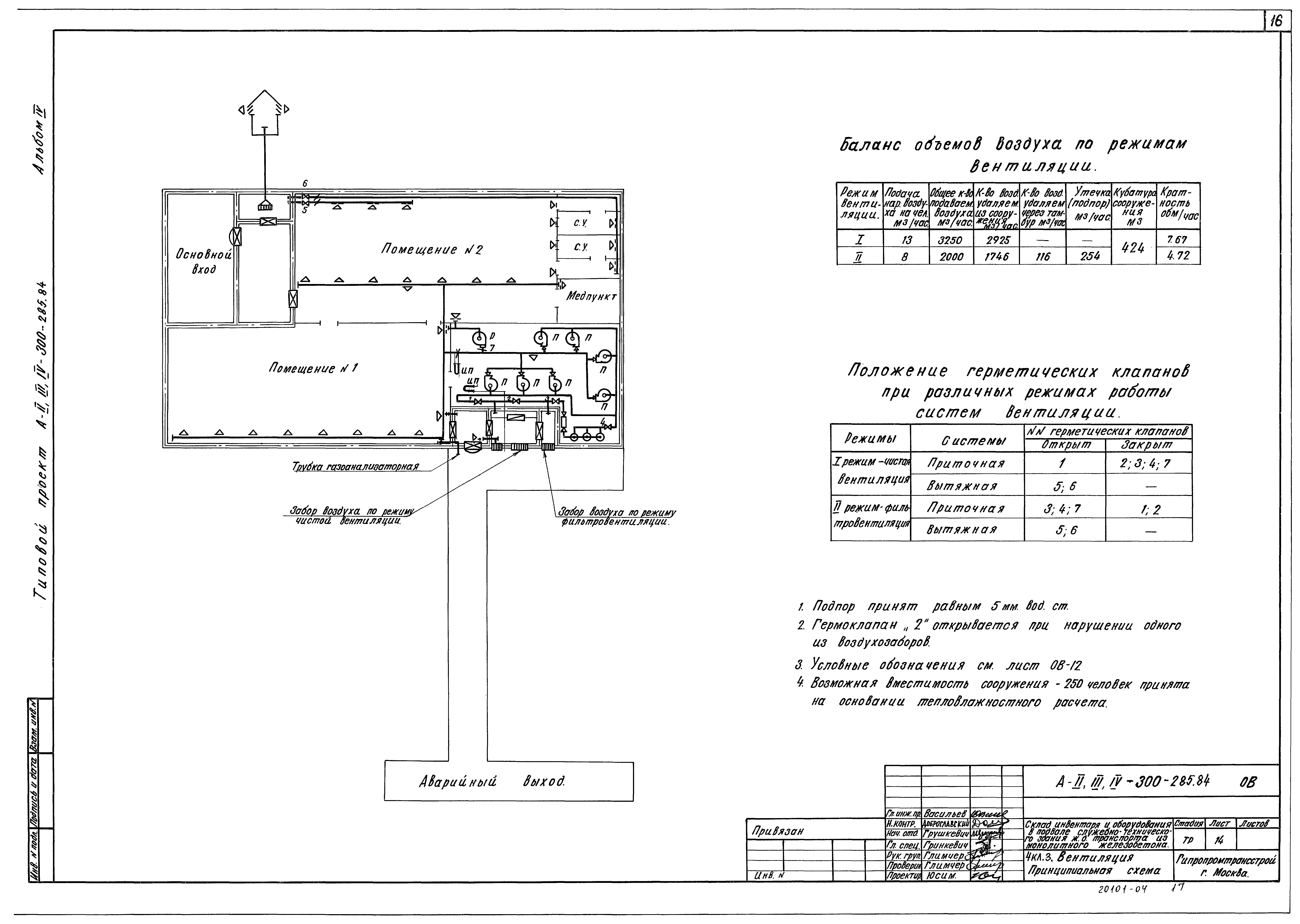
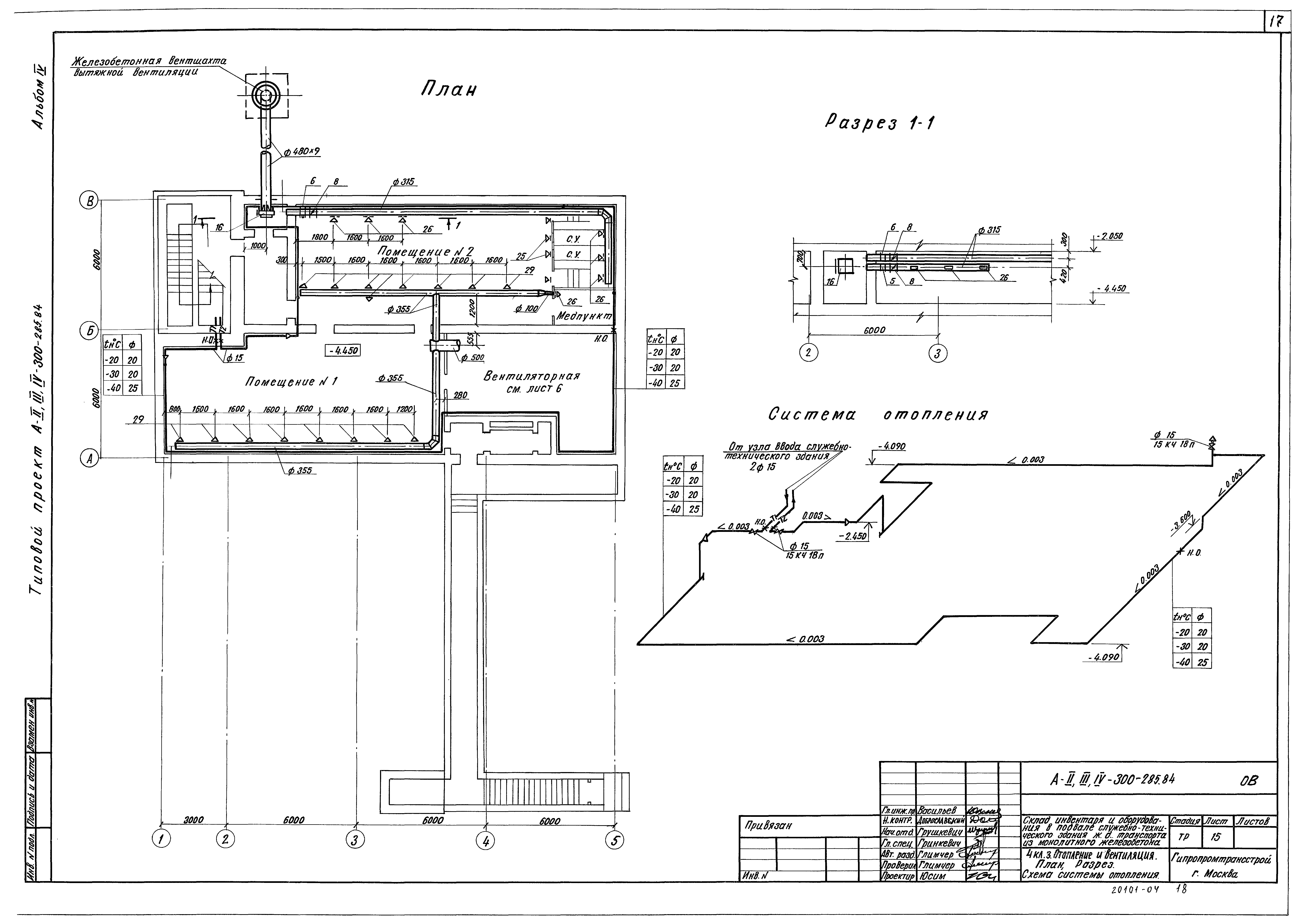
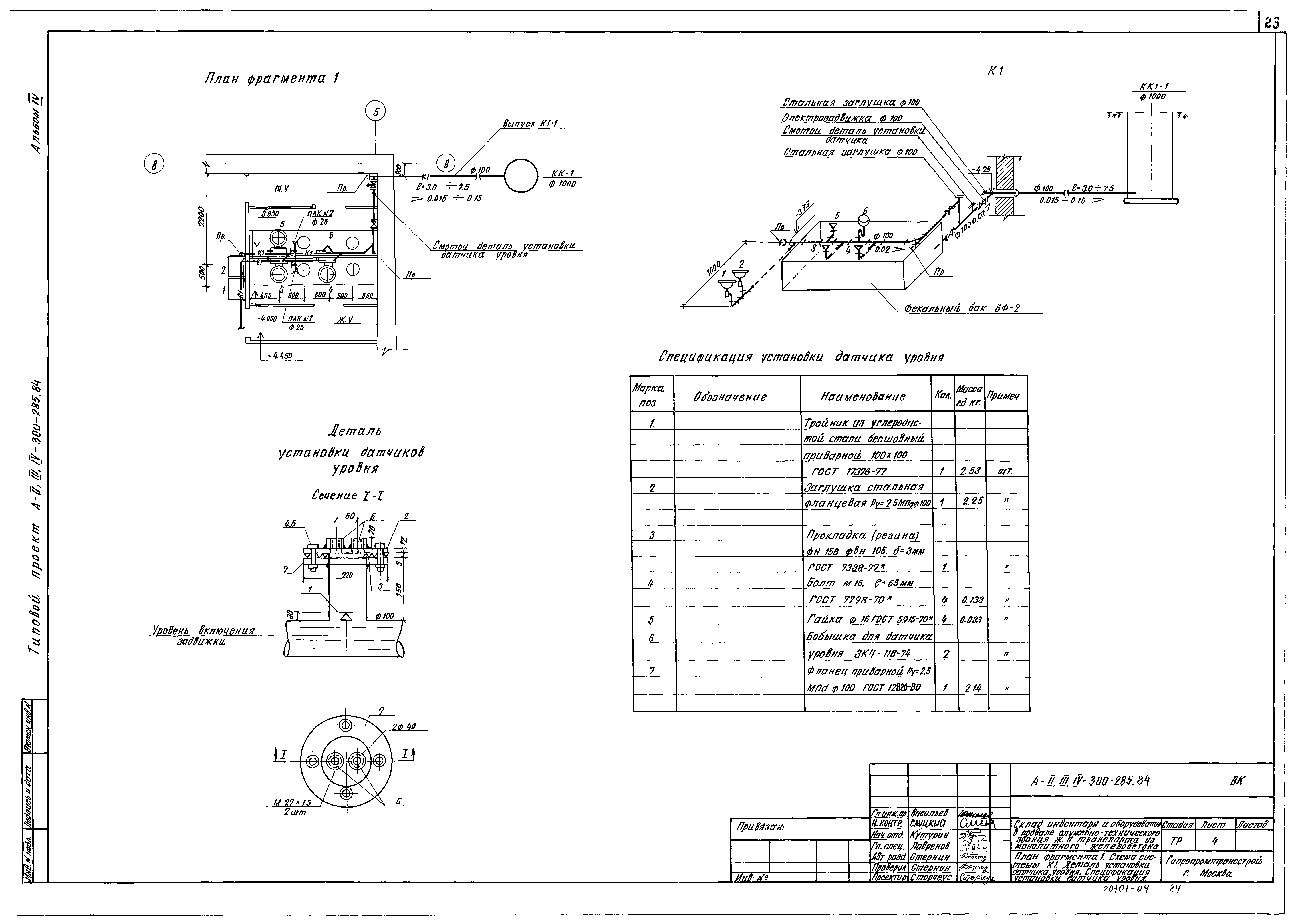
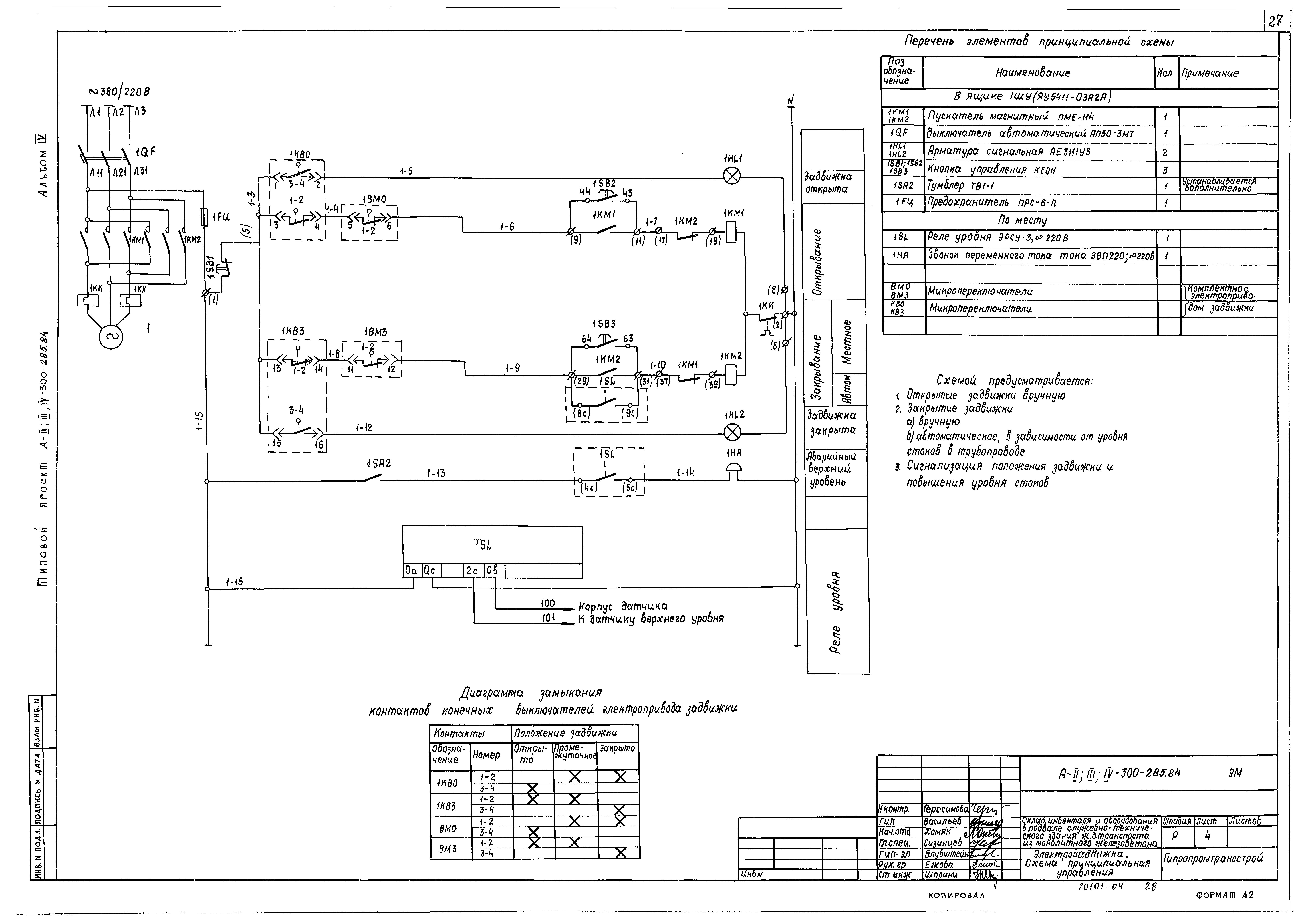
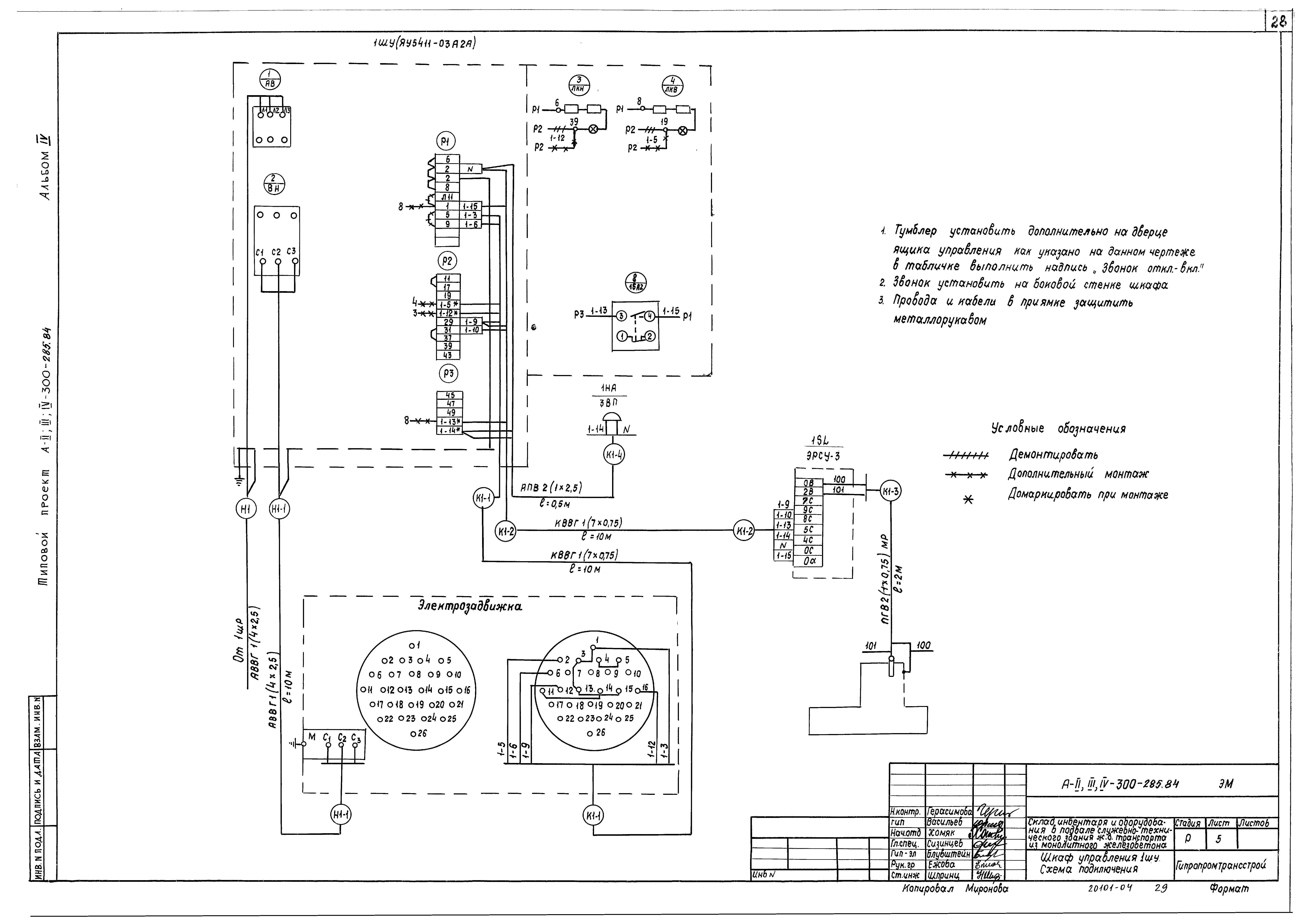
Скачать Типовой проект А-II,III,IV-300-285.84 Альбом IV. Отопление, вентиляция. Внутренний водопровод и канализация. Электроснабжение. Сигнализация и связьДата актуализации: 01.01.2021 Типовой проект А-II,III,IV-300-285.84
Альбом IV. Отопление, вентиляция. Внутренний водопровод и канализация. Электроснабжение. Сигнализация и связь| Обозначение: | Типовой проект А-II,III,IV-300-285.84 | | Обозначение англ: | А-II,III,IV-300-285.84 | | Статус: | не определен законодательством | | Название рус.: | Альбом IV. Отопление, вентиляция. Внутренний водопровод и канализация. Электроснабжение. Сигнализация и связь | | Дата добавления в базу: | 01.01.2021 | | Дата актуализации: | 01.01.2021 | | Дата введения: | 03.09.1984 | | Дата окончания срока действия: | 30.06.2003 | | Разработан: | Гипропромтрансстрой
| | Утверждён: | 09.12.1983 МПС (Ministry of Railroads М-38450)
|
                                 
|