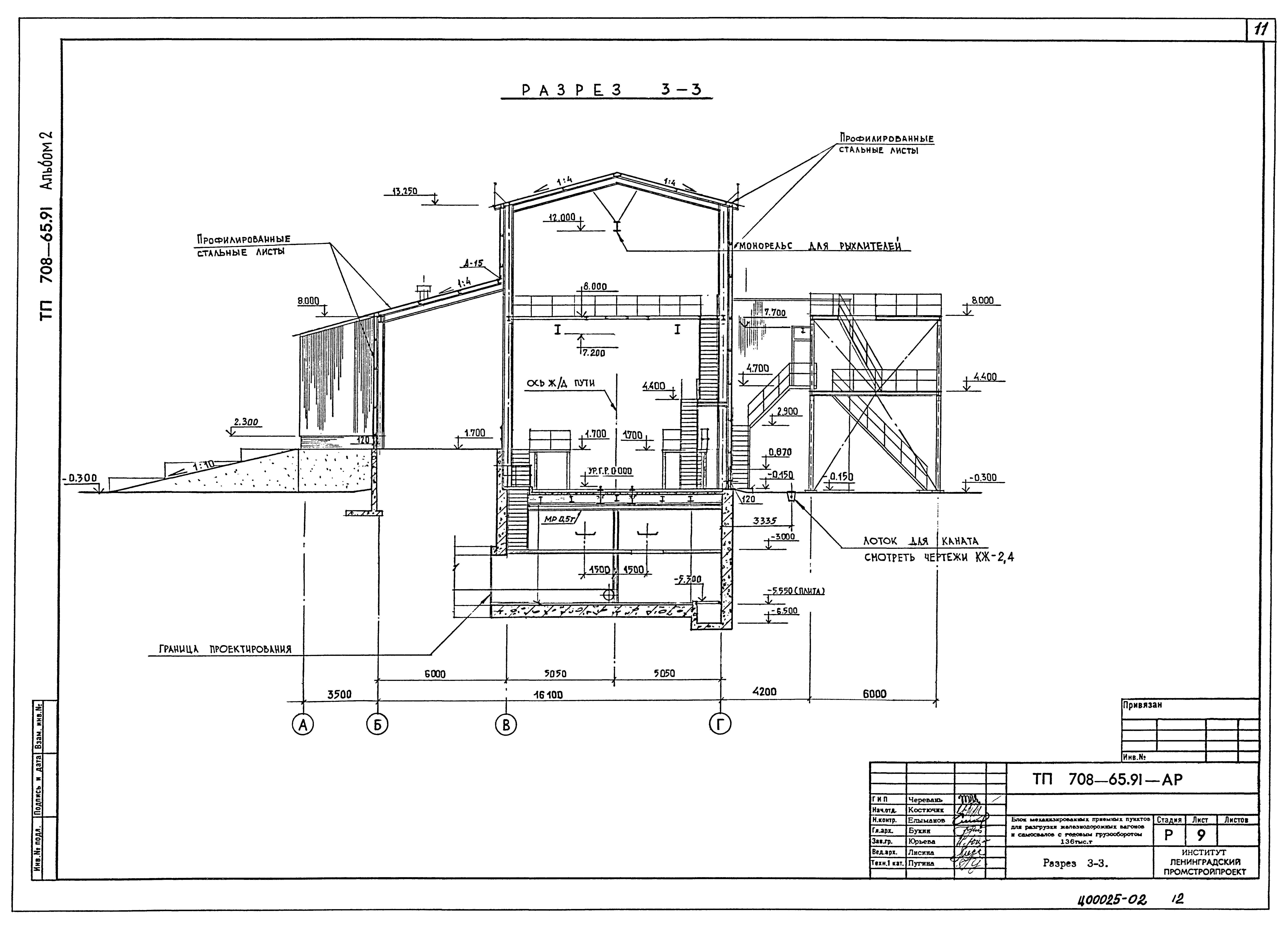
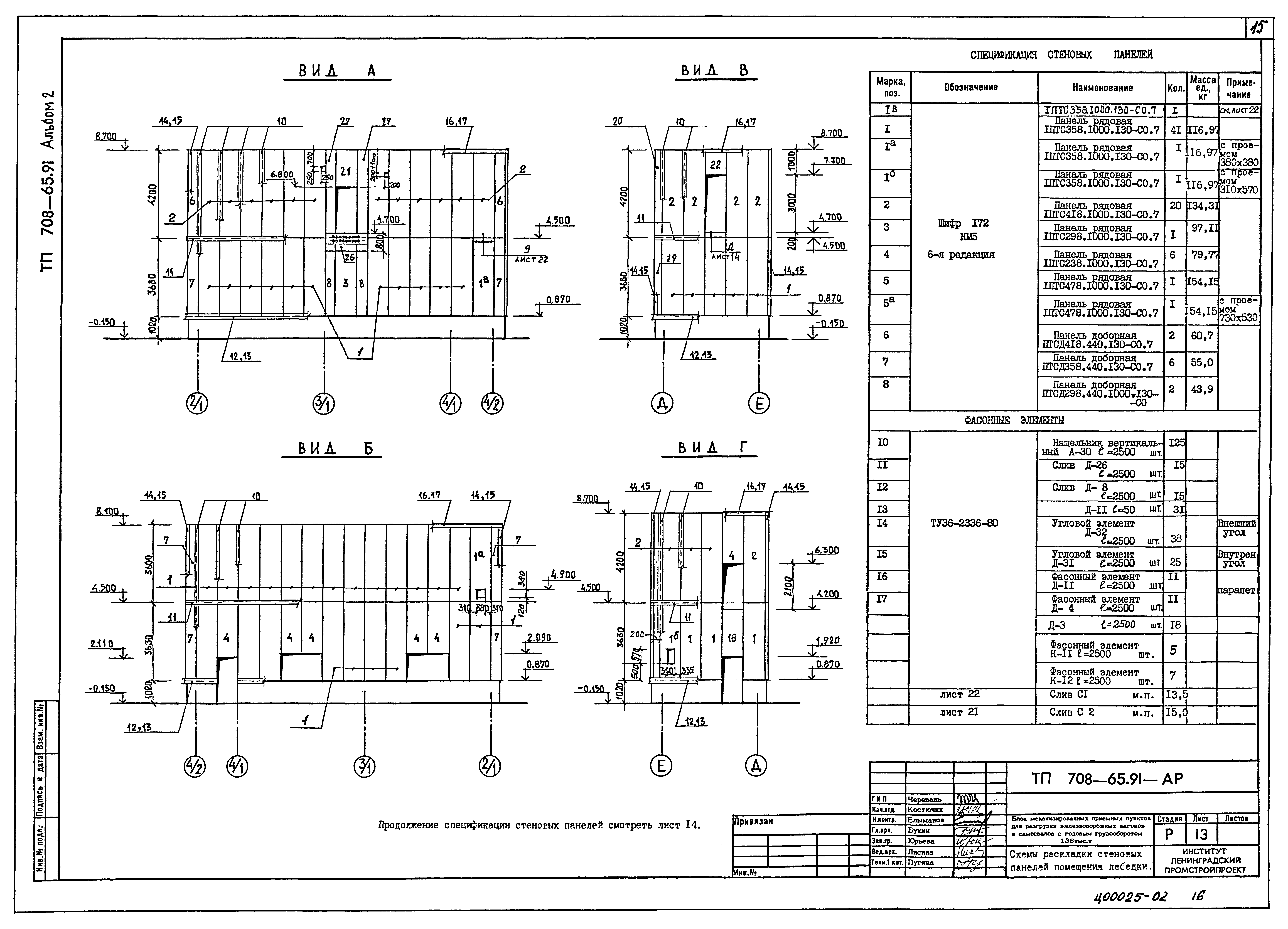
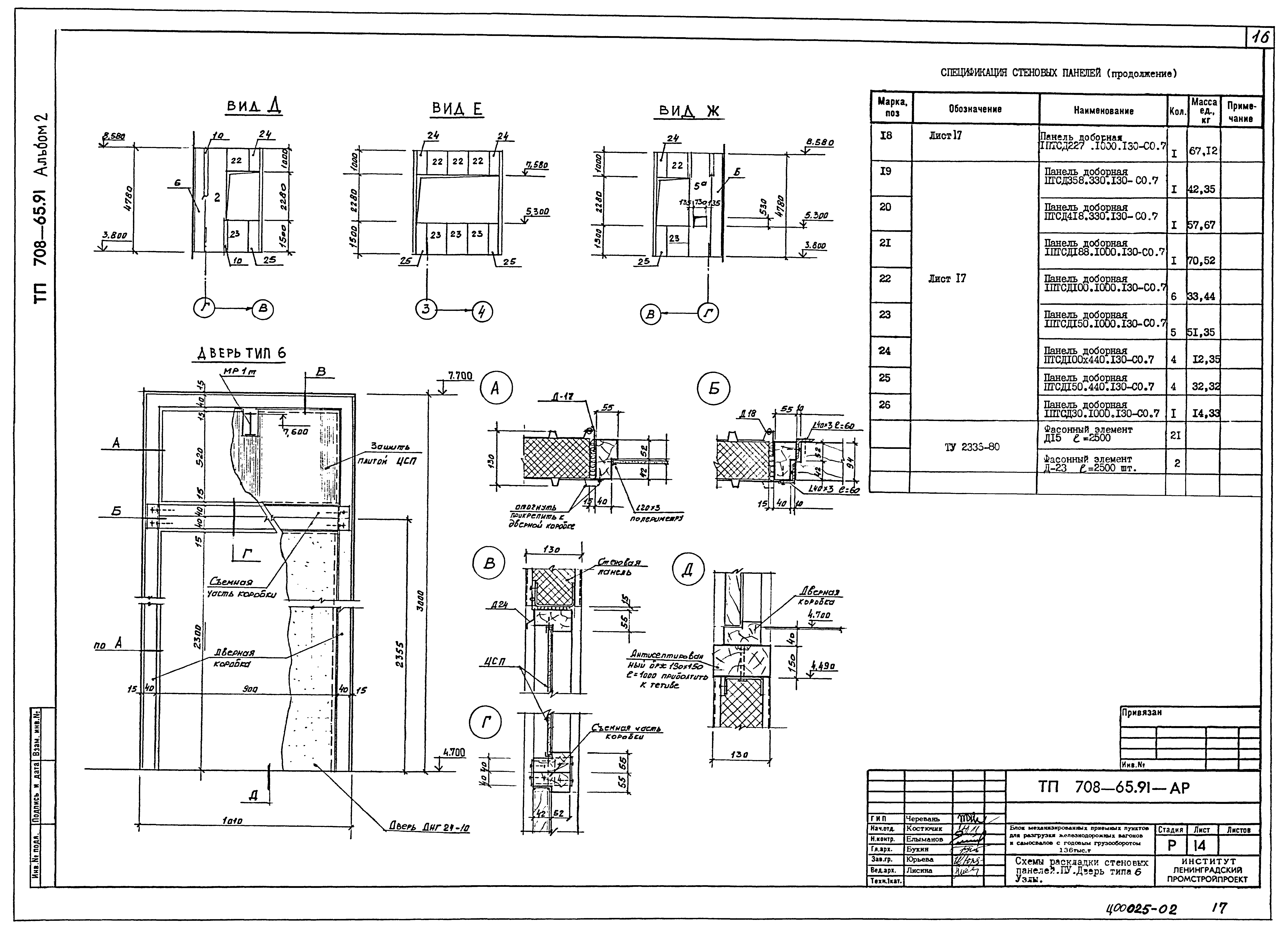
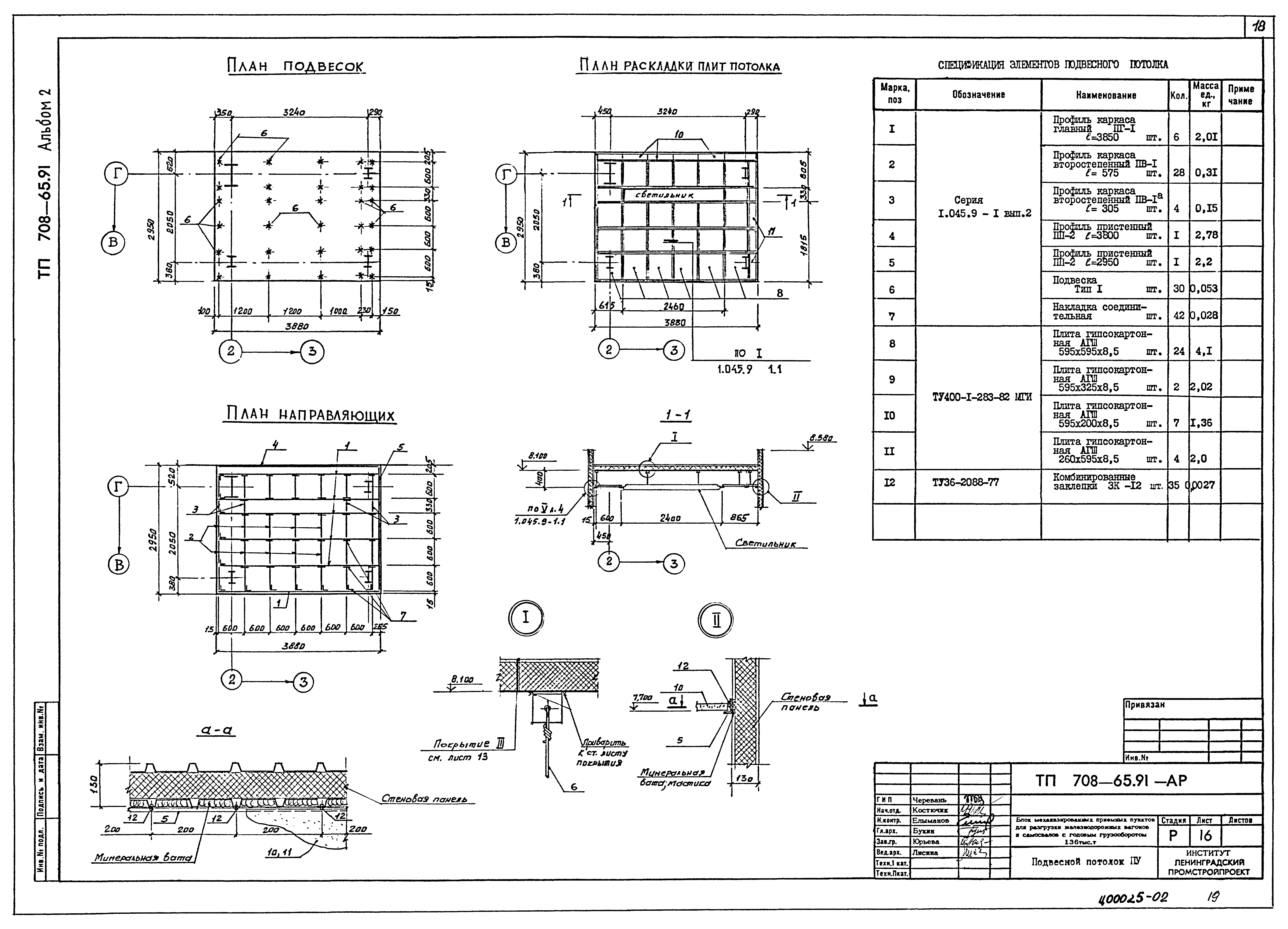
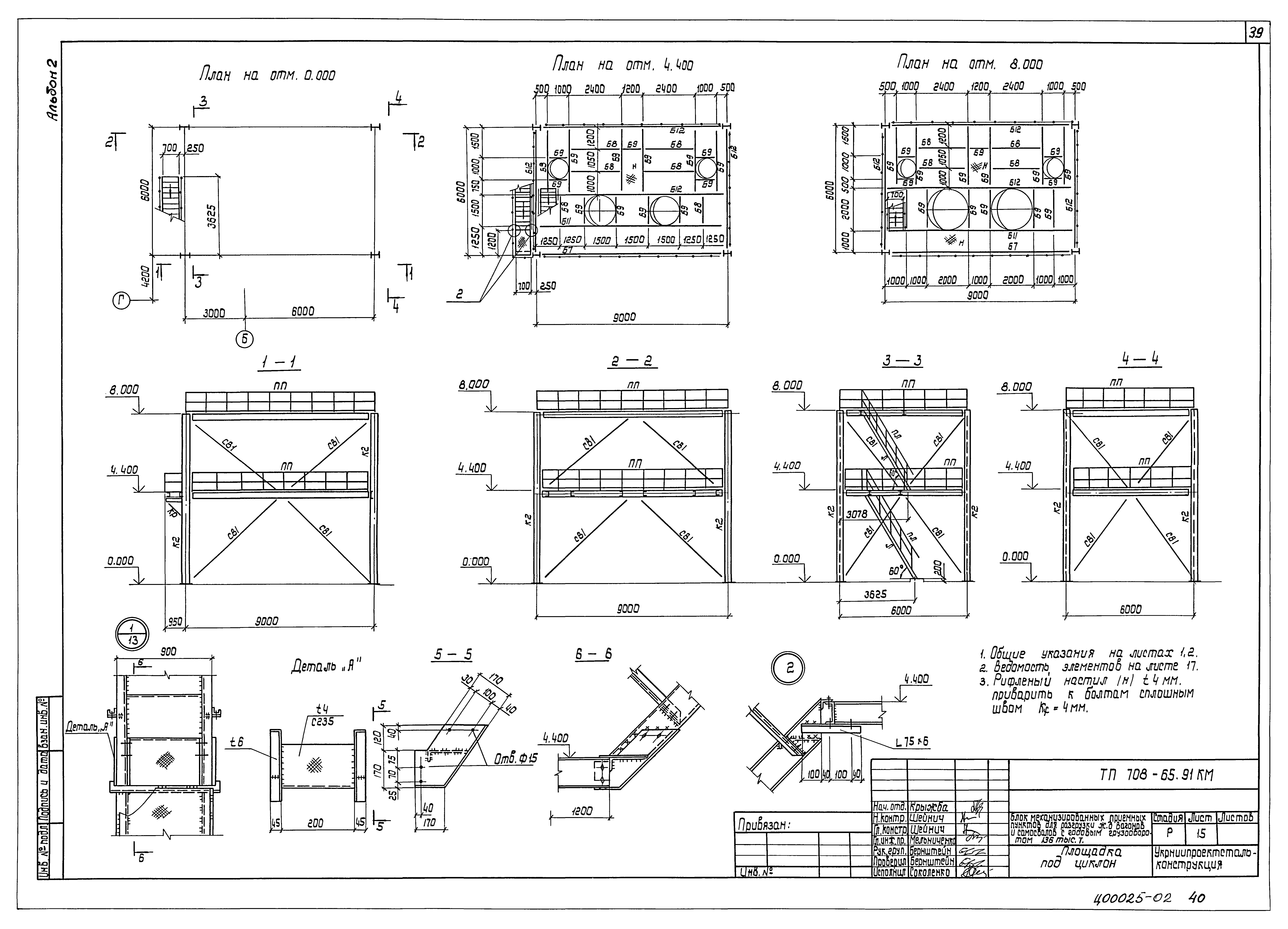
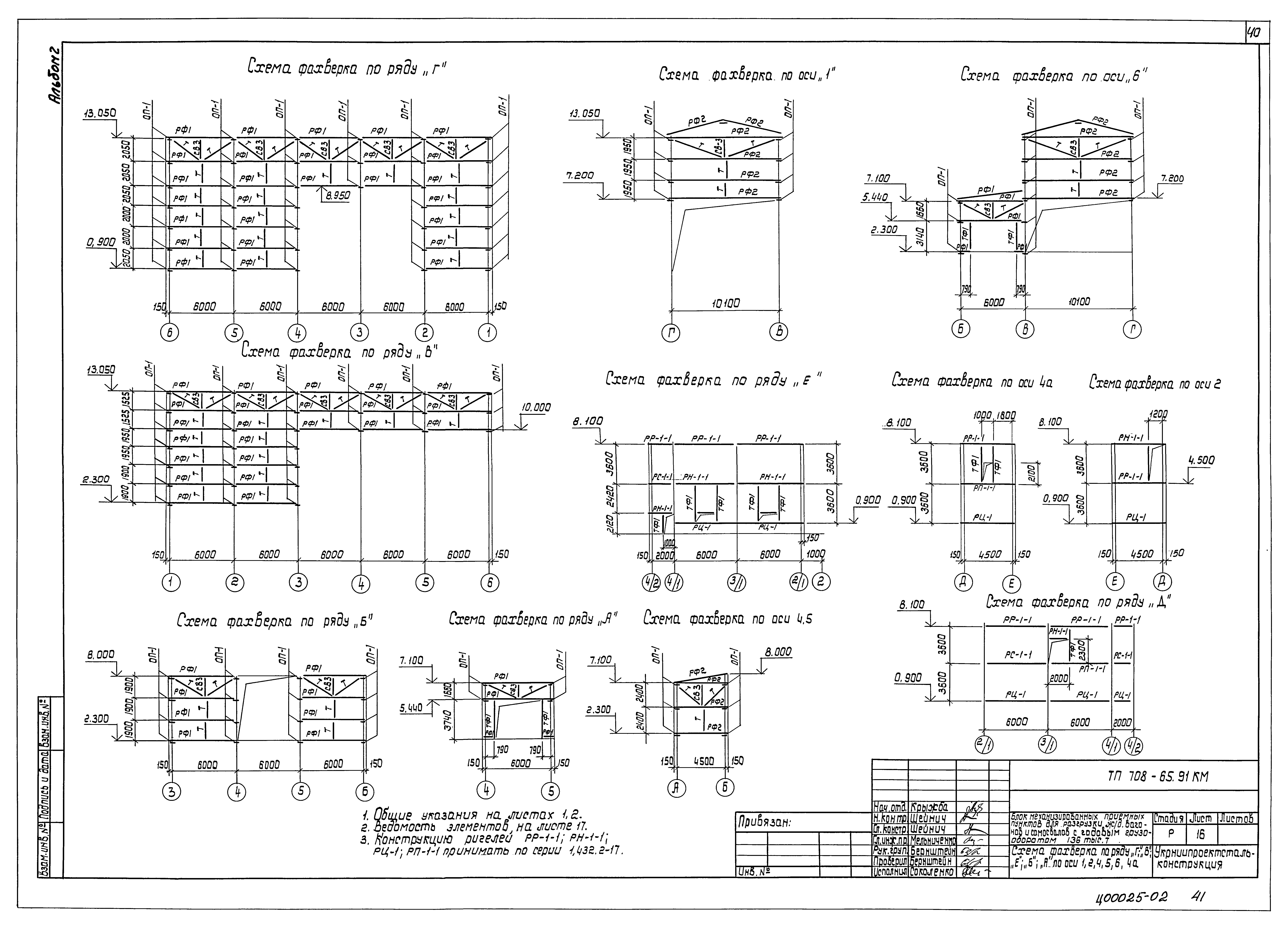
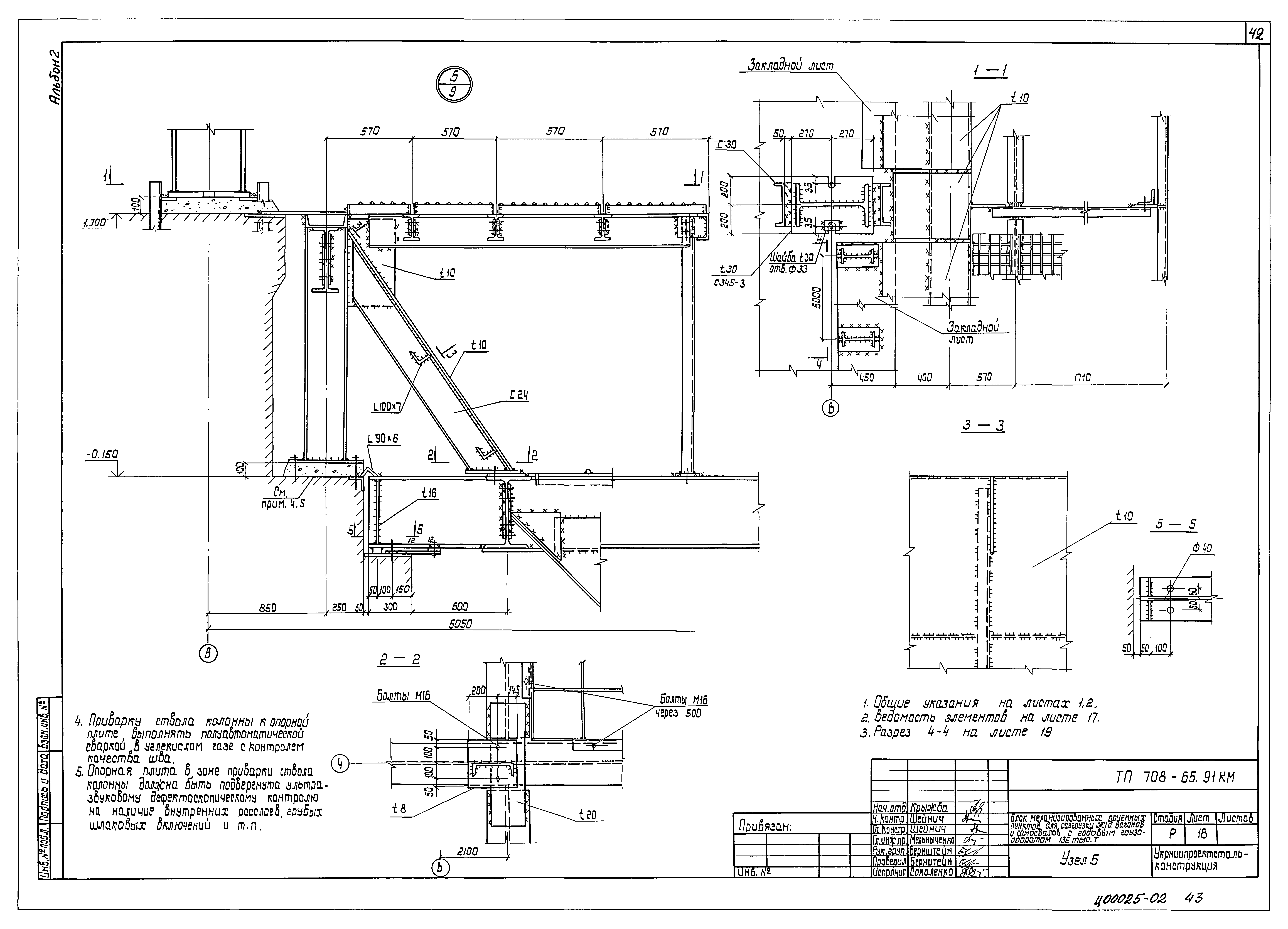
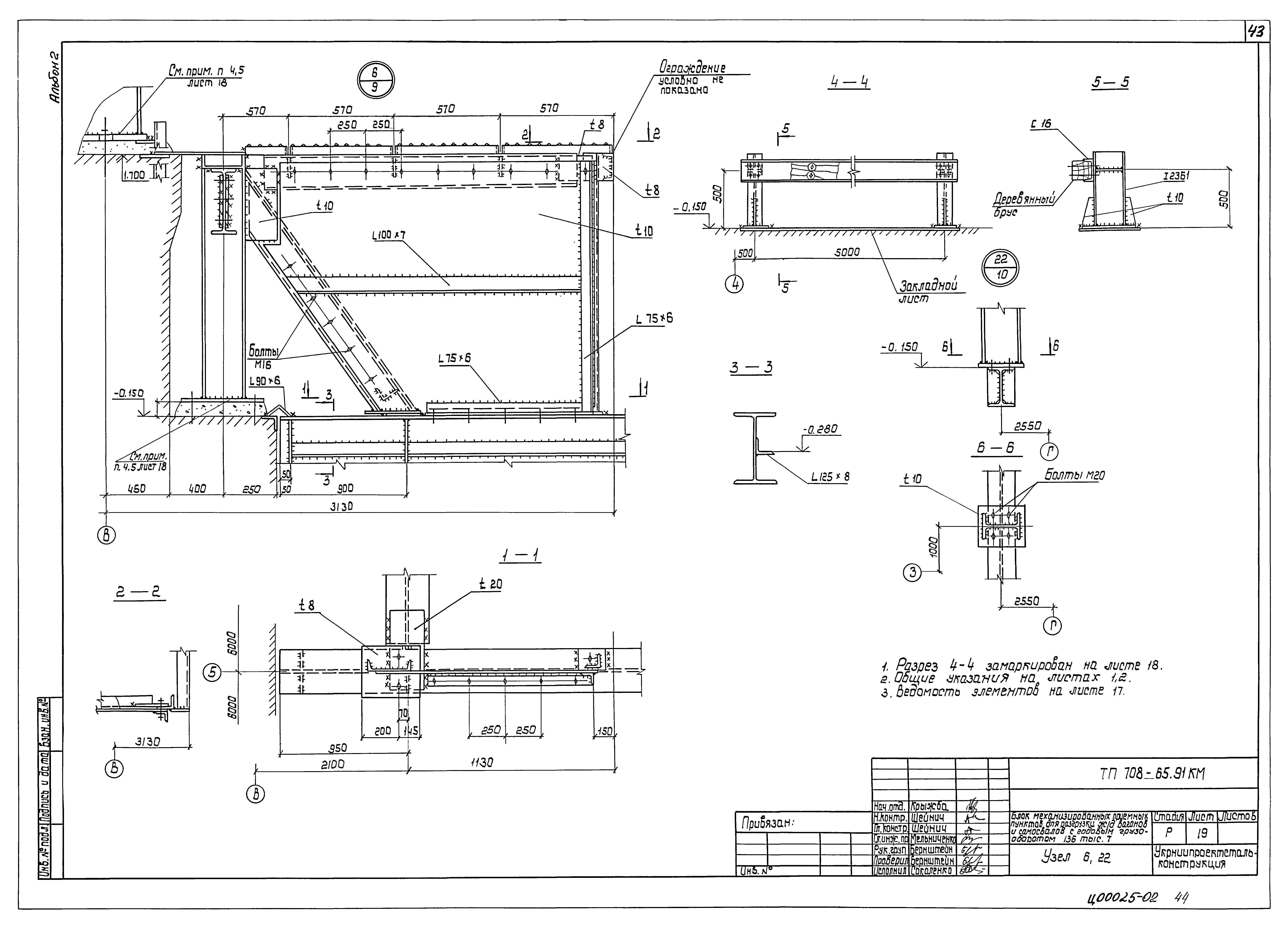
Скачать Типовой проект 708-65.91 Альбом 2. Архитектурные решения. Конструкции металлическиеДата актуализации: 01.01.2021
|
| Обозначение: | Типовой проект 708-65.91 |
| Обозначение англ: | 708-65.91 |
| Статус: | не определен законодательством |
| Название рус.: | Альбом 2. Архитектурные решения. Конструкции металлические |
| Дата добавления в базу: | 01.01.2021 |
| Дата актуализации: | 01.01.2021 |
| Дата введения: | 20.08.1992 |
| Дата окончания срока действия: | 30.06.2003 |
| Разработан: | Ленинградский Промстройпроект Промтрансниипроект Укрниипроектстальконструкция Челябинское отделение ВНИПИ Тяжпромэлектропроект |
| Утверждён: | 17.12.1987 Госстрой СССР (93) |

















































