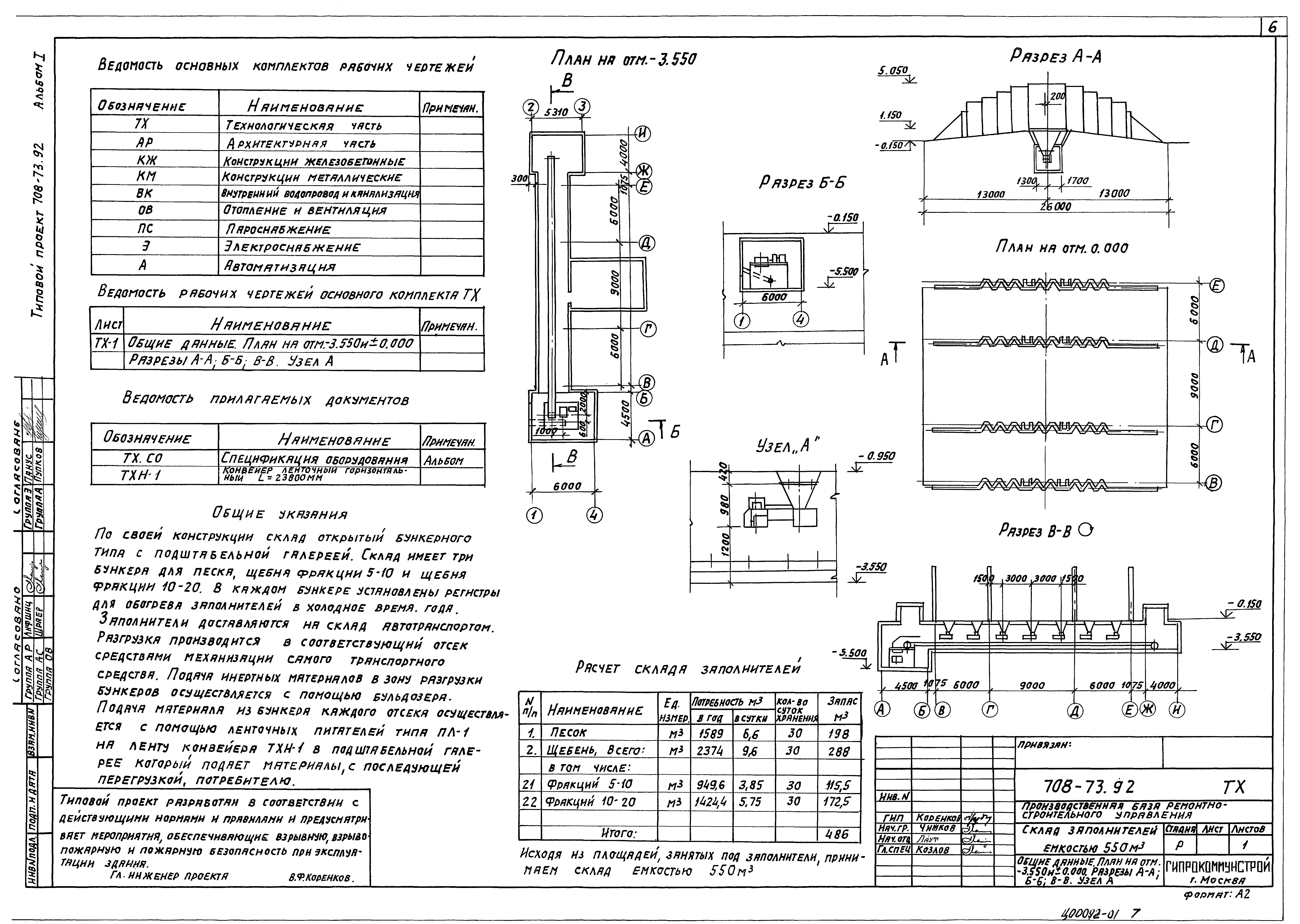
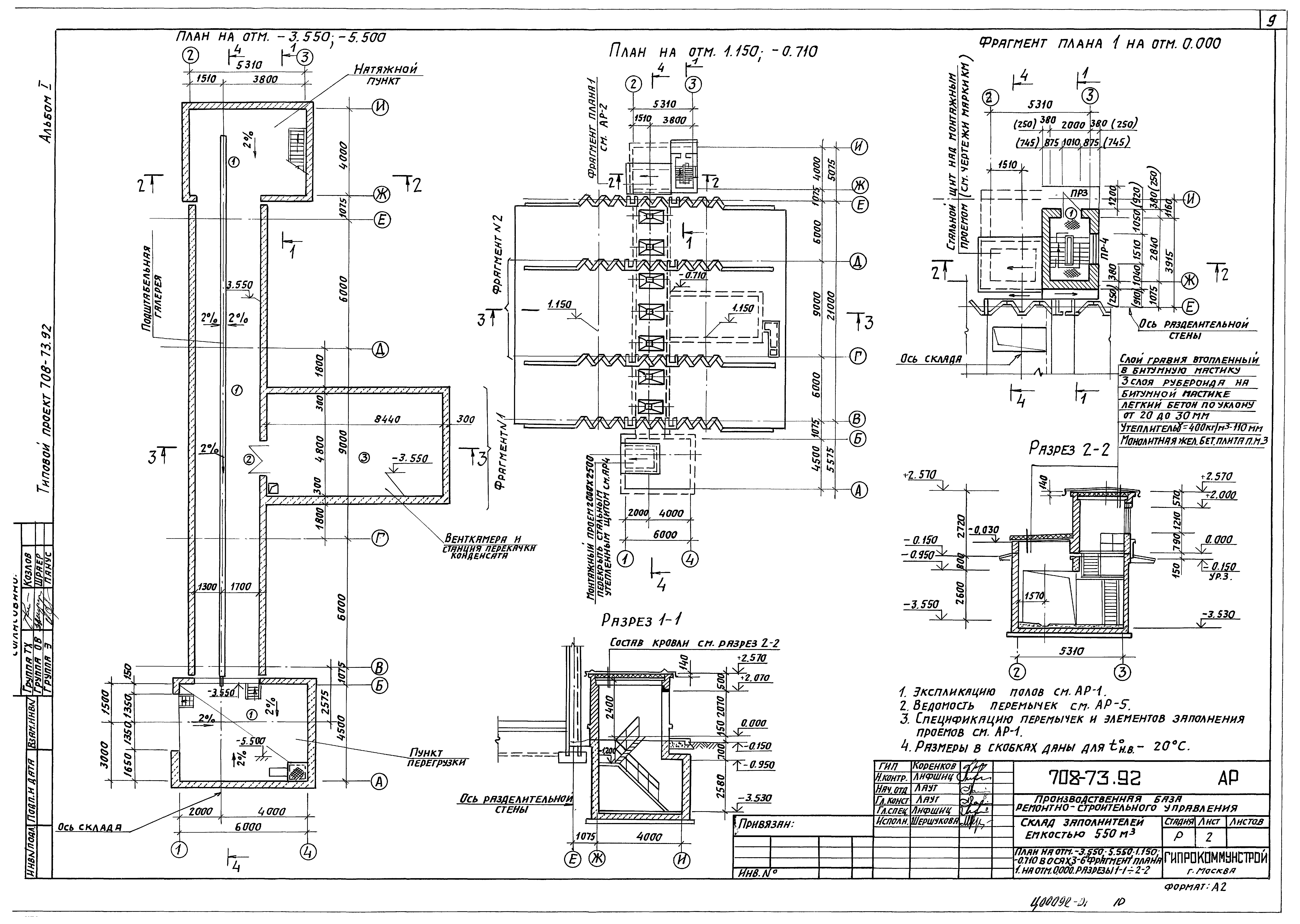
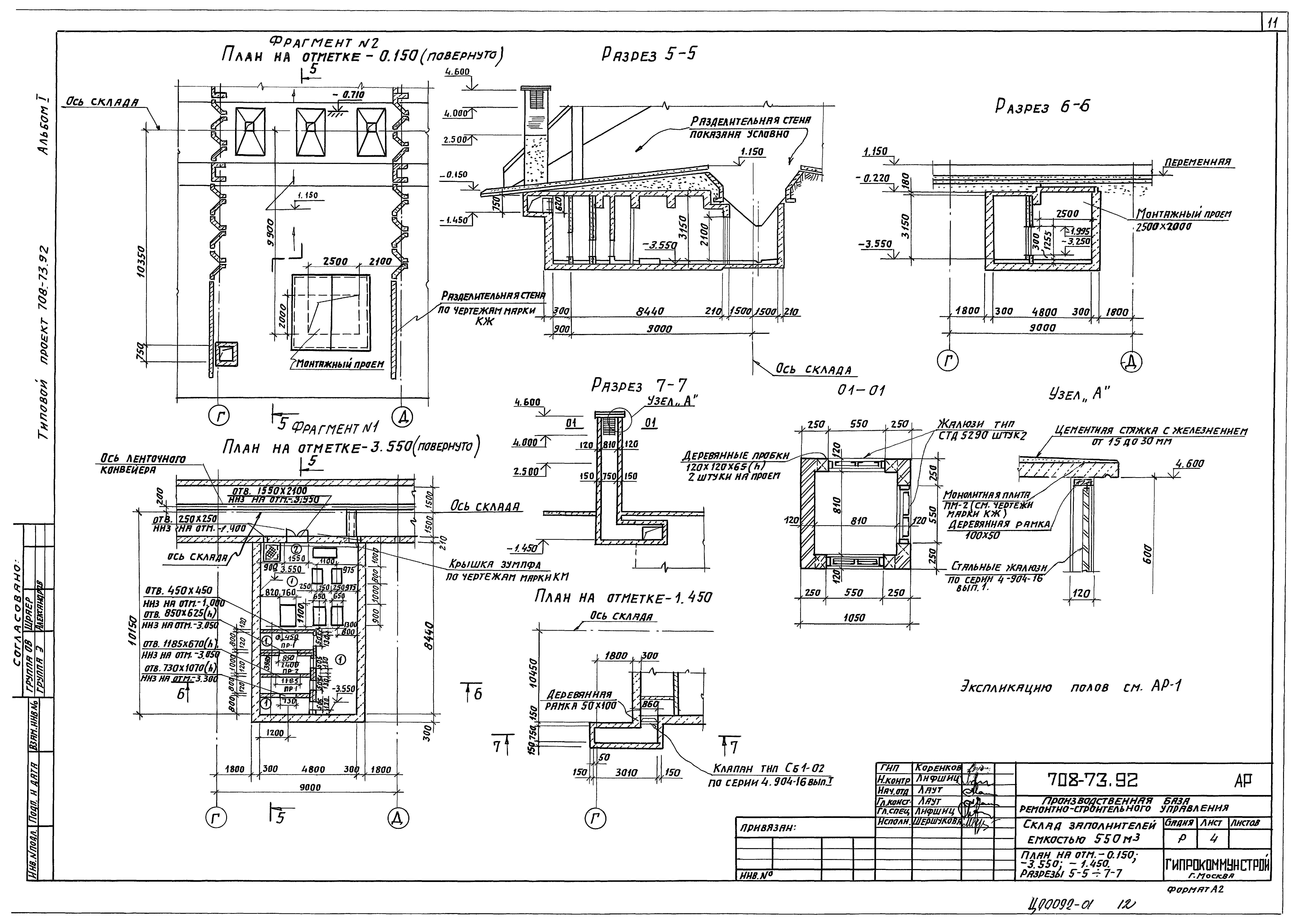
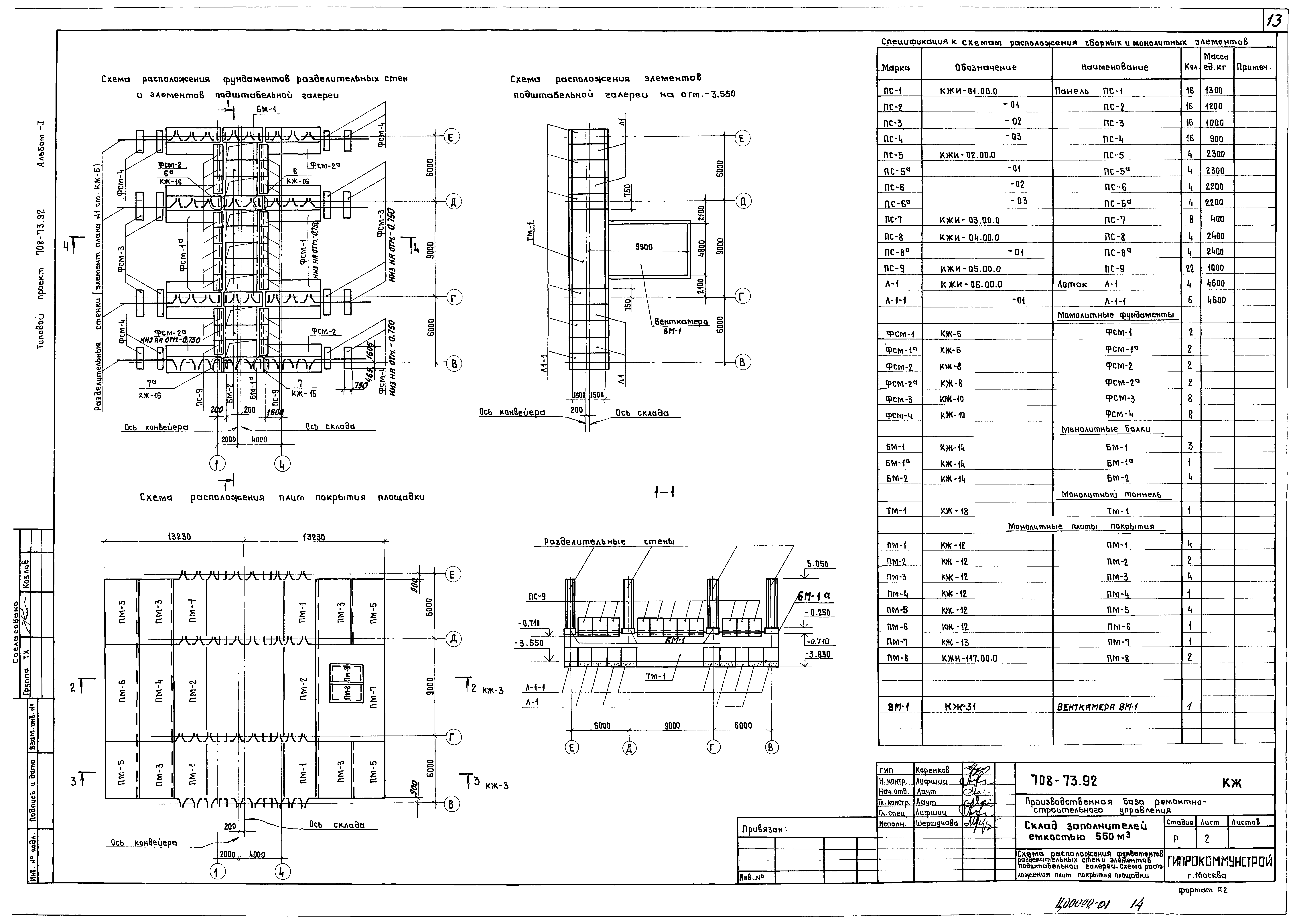
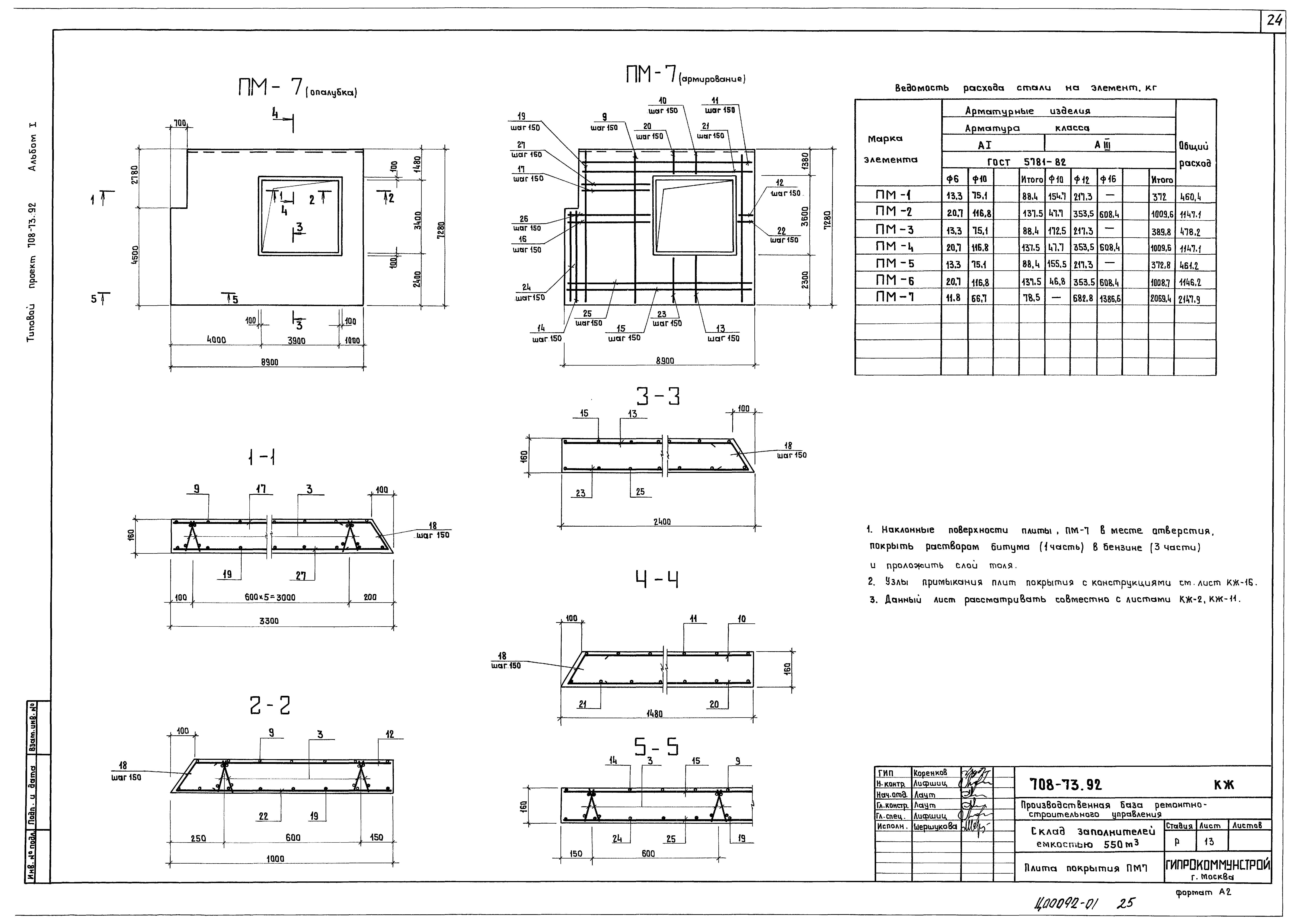
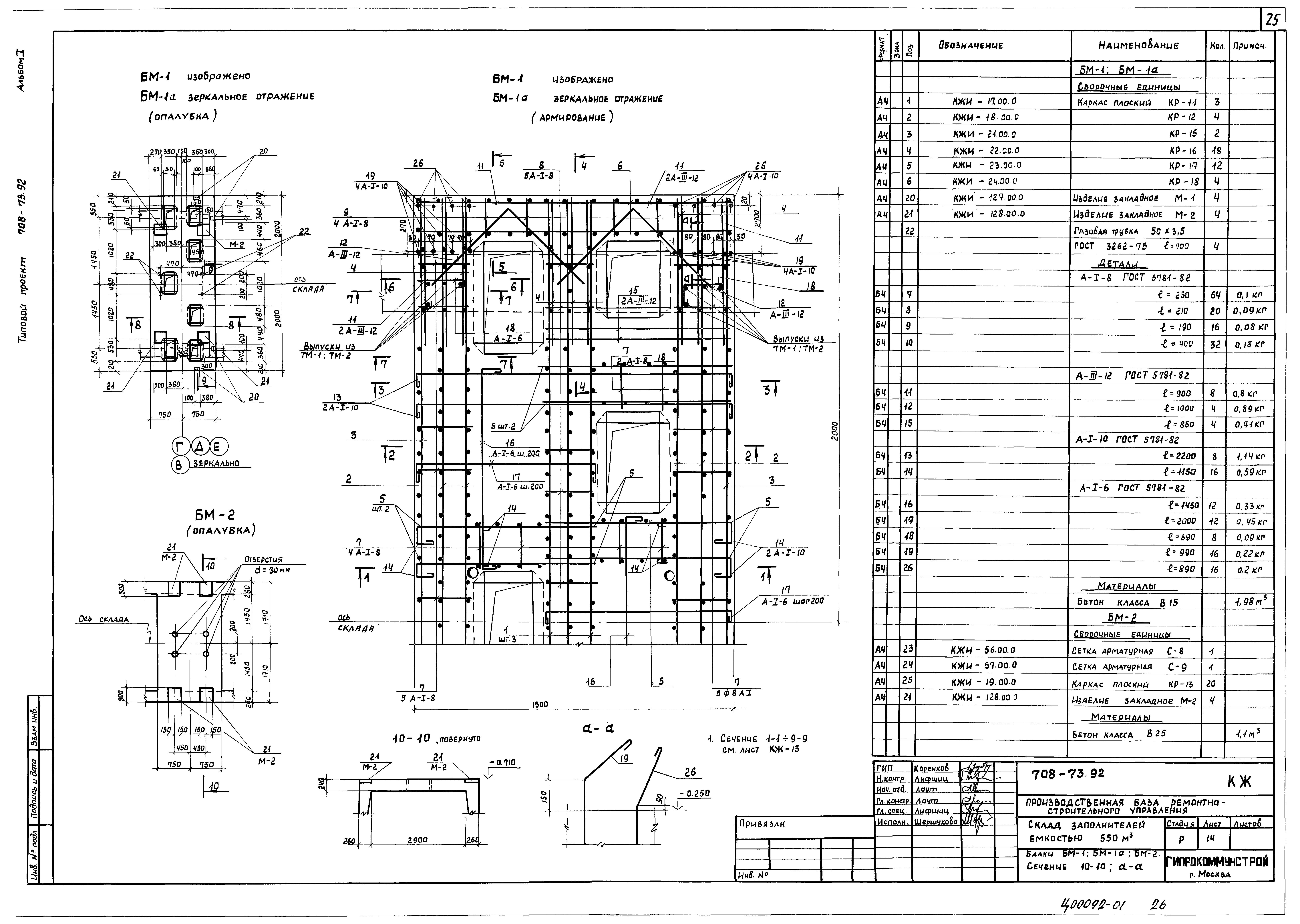
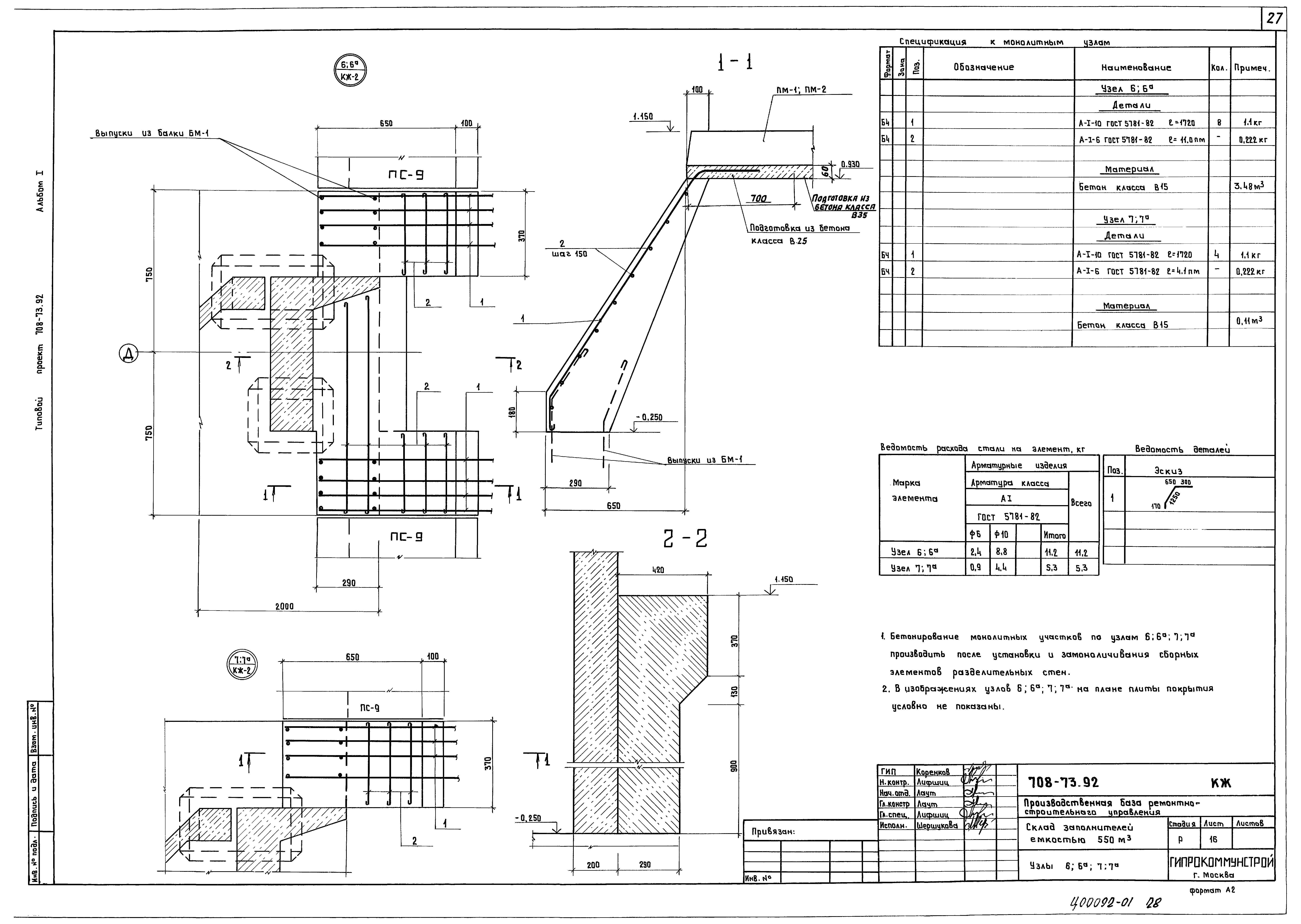
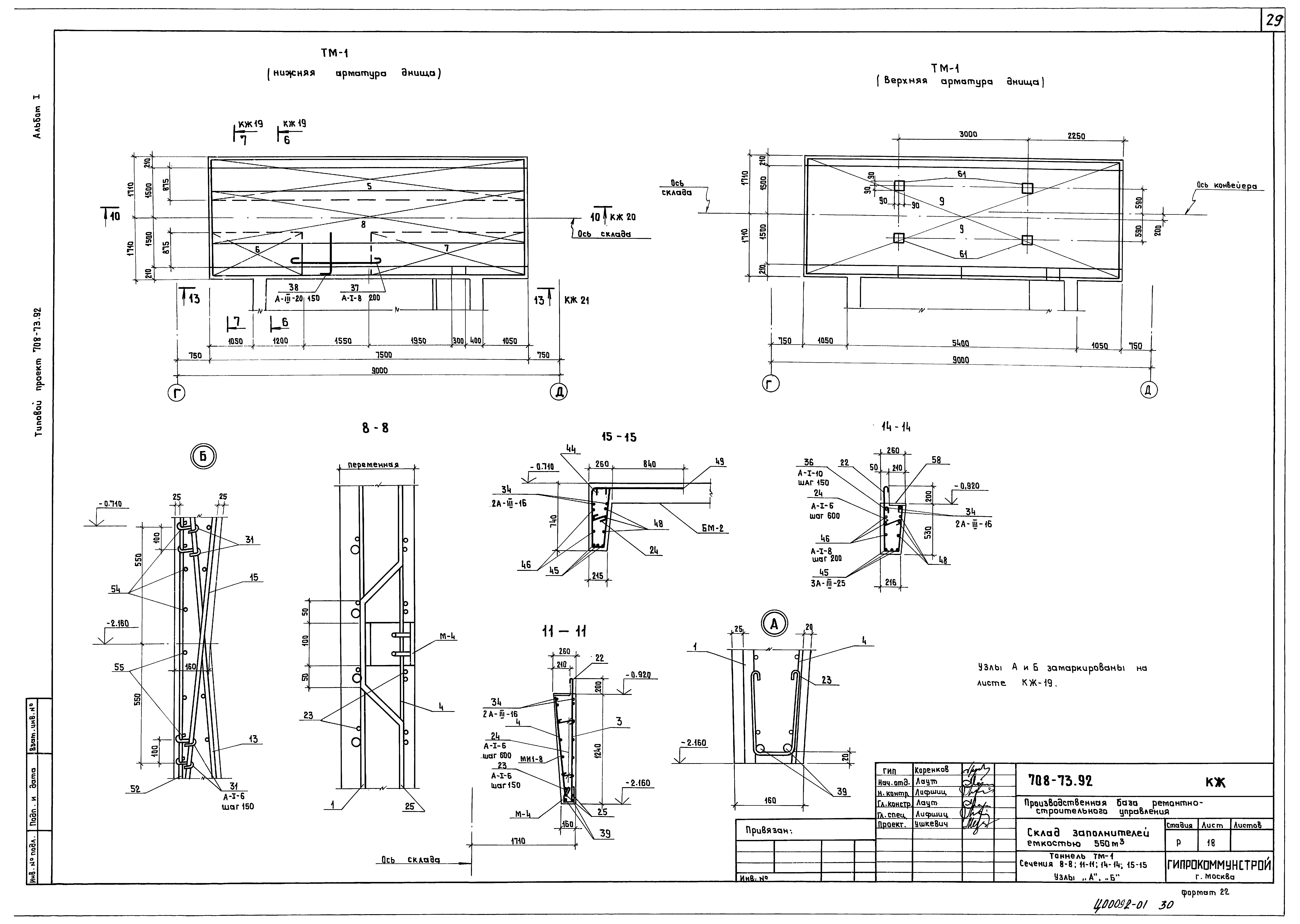
Скачать Типовой проект 708-73.92 Альбом I. Технологические чертежи. Архитектурные решения. Конструкции железобетонные. Конструкции металлическиеДата актуализации: 01.01.2021
|
| Обозначение: | Типовой проект 708-73.92 |
| Обозначение англ: | 708-73.92 |
| Статус: | не определен законодательством |
| Название рус.: | Альбом I. Технологические чертежи. Архитектурные решения. Конструкции железобетонные. Конструкции металлические |
| Дата добавления в базу: | 01.01.2021 |
| Дата актуализации: | 01.01.2021 |
| Дата введения: | 10.08.1993 |
| Дата окончания срока действия: | 30.06.2003 |
| Разработан: | Гипрокоммунстрой Минжилкомхоза РСФСР |
| Утверждён: | 10.08.1993 Гипрокоммунстрой (53) |
| Заменяет собой: |
|




















































