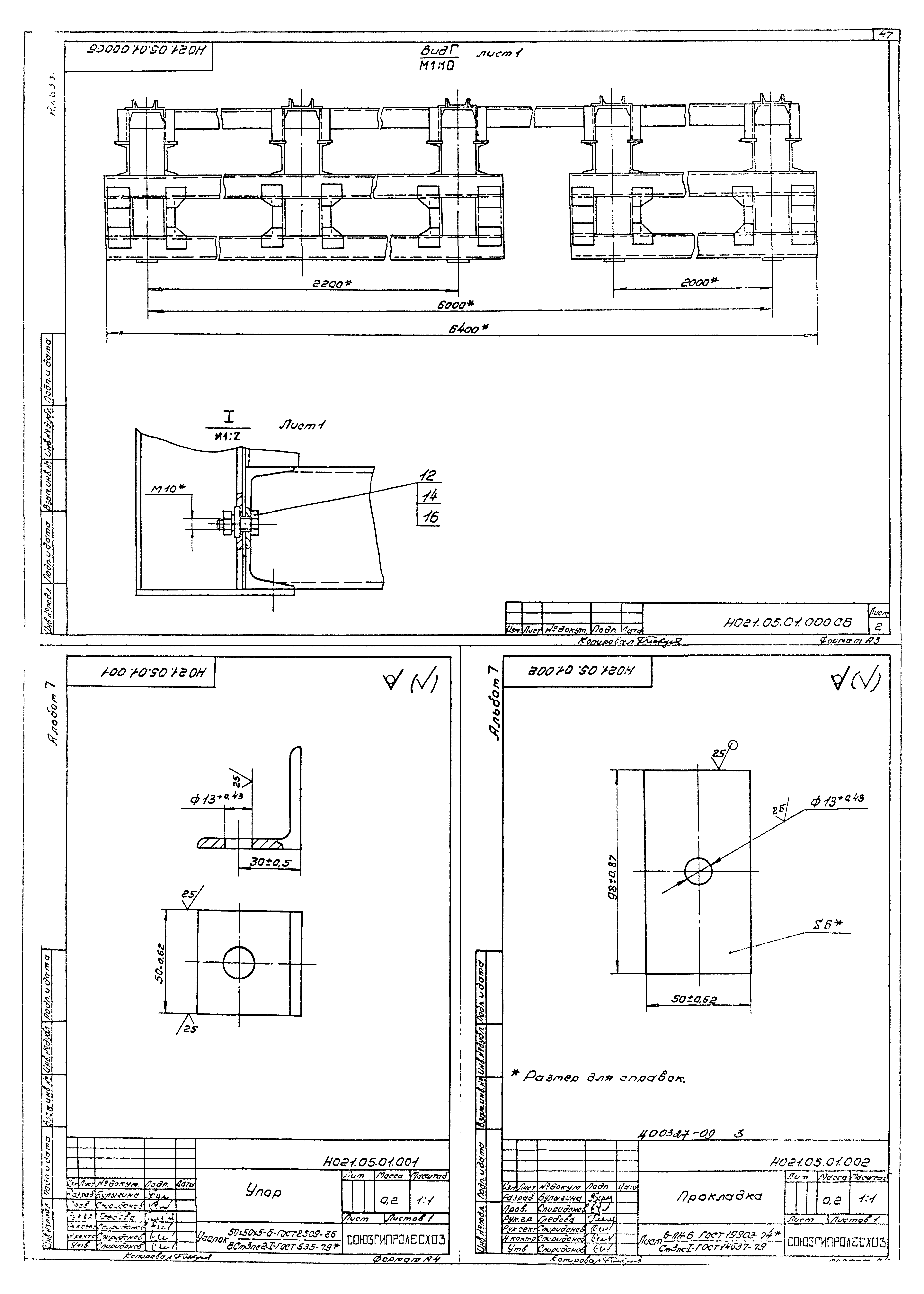
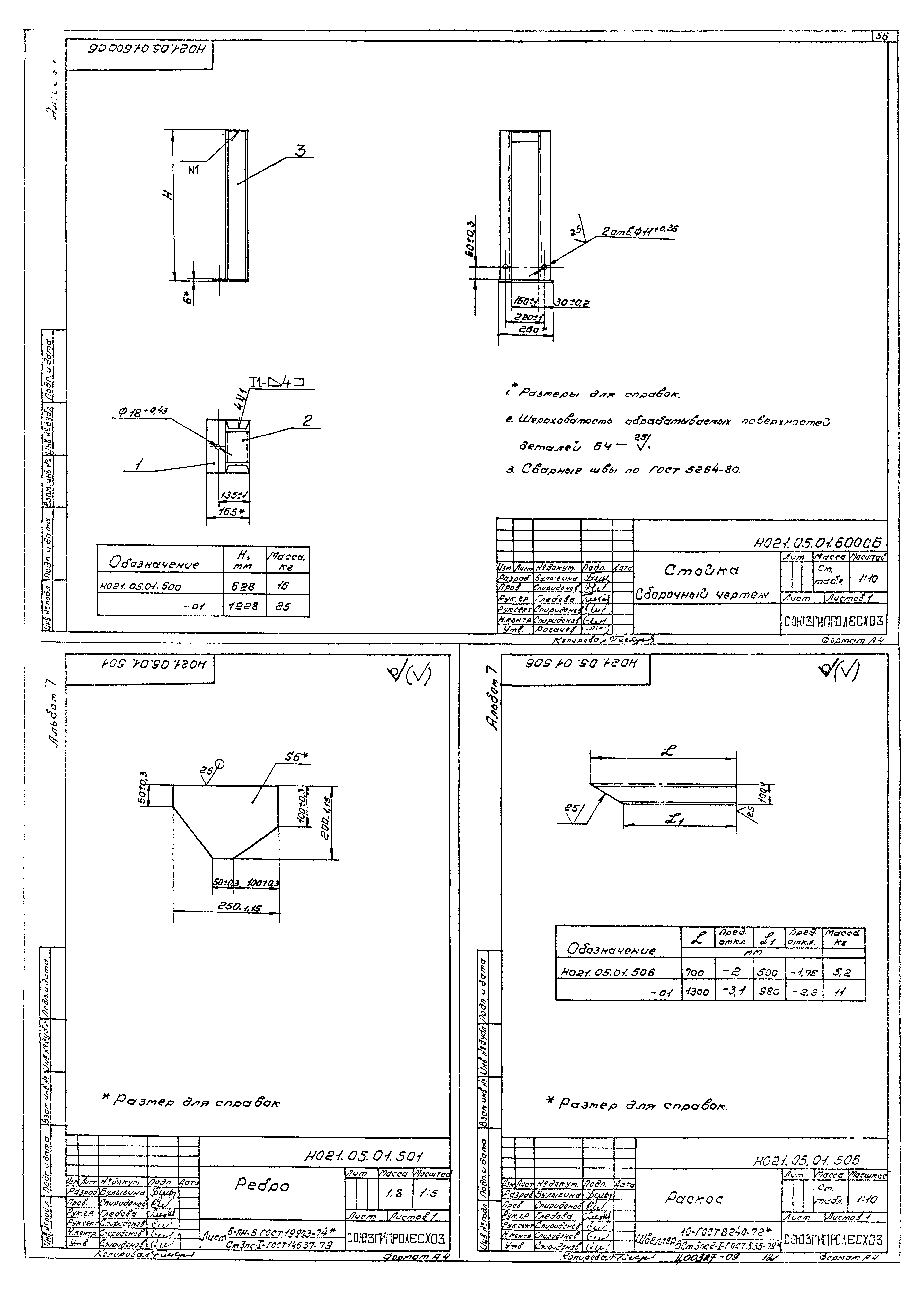
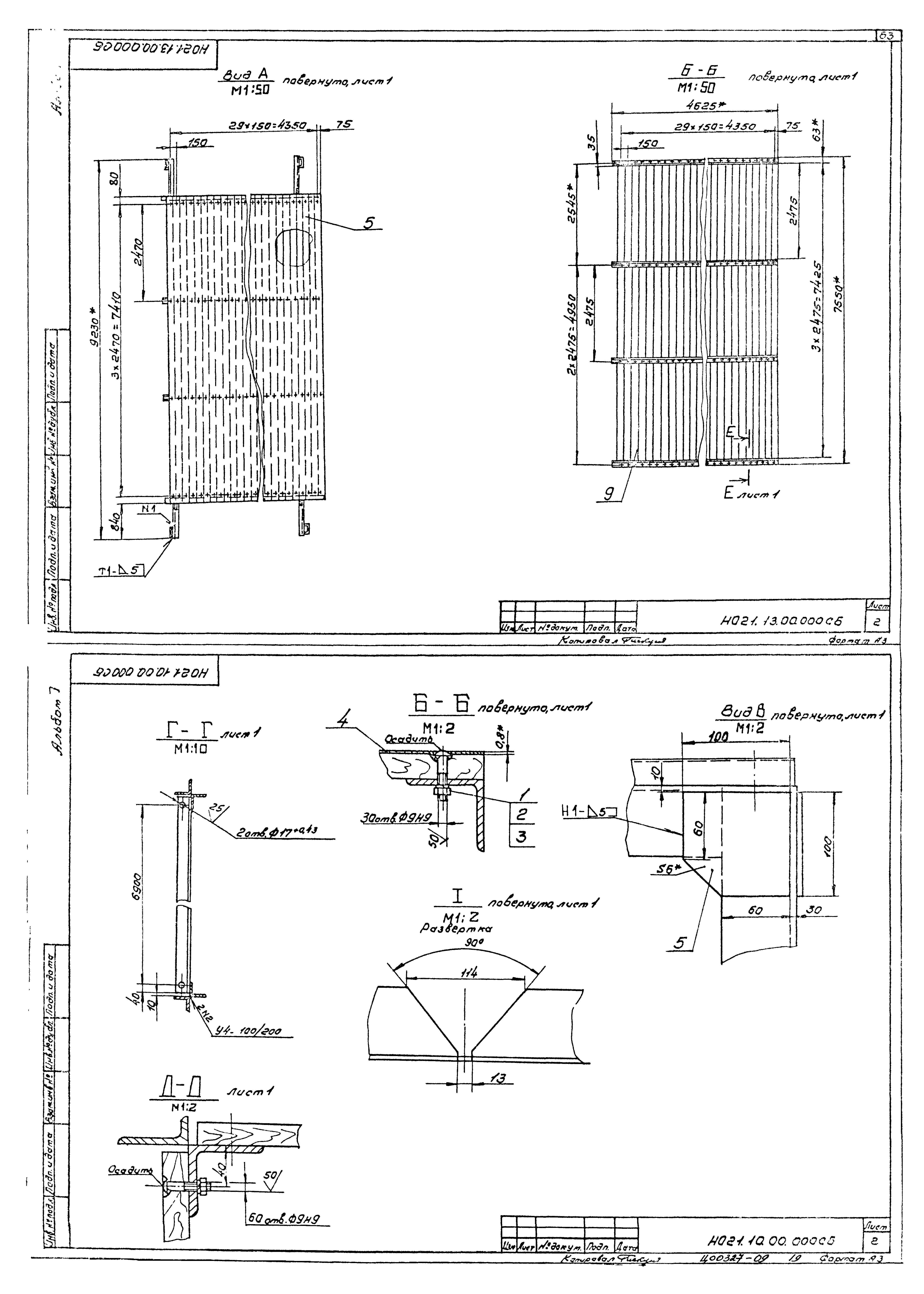
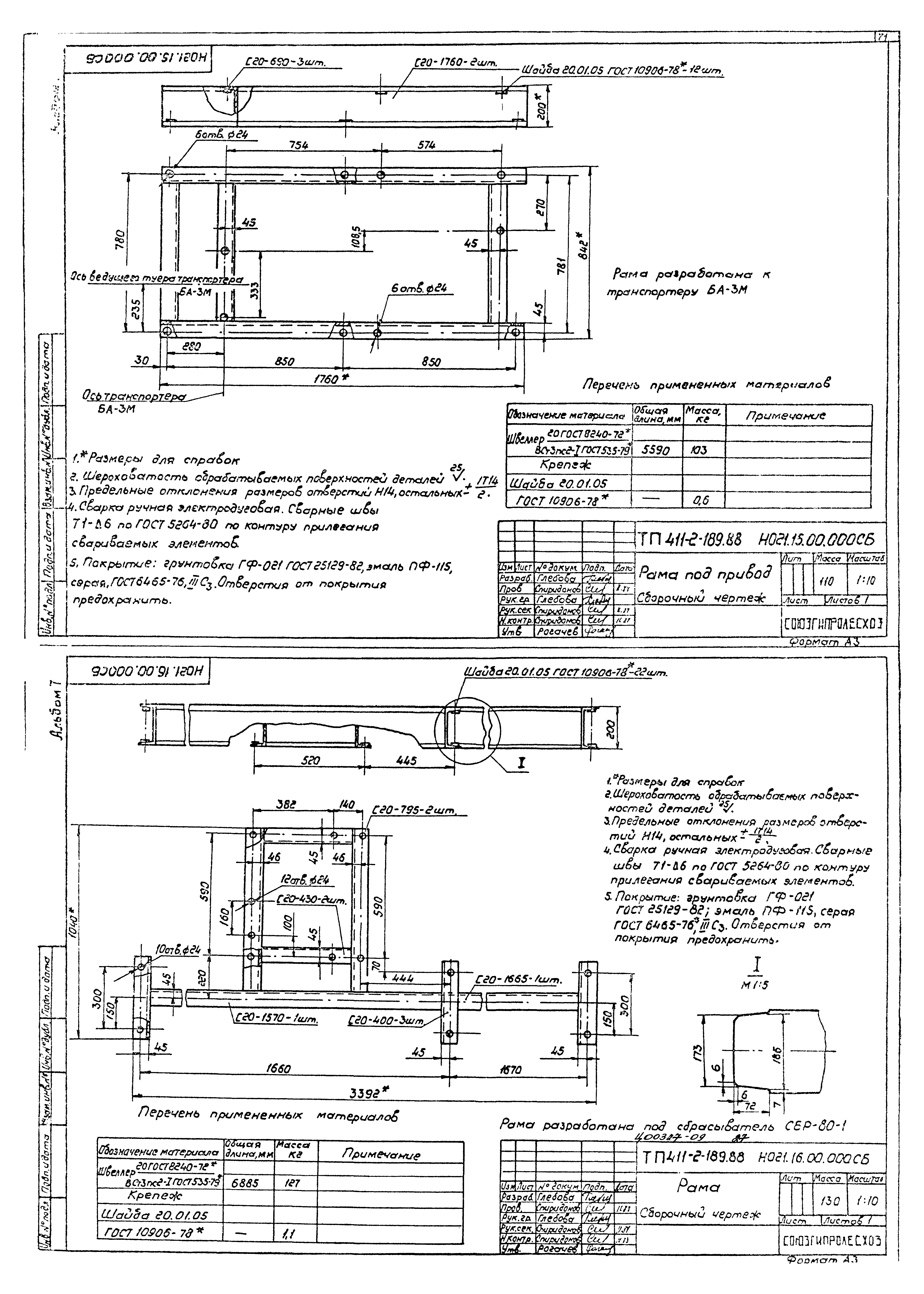
Скачать Типовой проект 411-2-189.88 Альбом 7. Часть 2. Чертежи нестандартизированного оборудованияДата актуализации: 01.01.2021
|
| Обозначение: | Типовой проект 411-2-189.88 |
| Обозначение англ: | 411-2-189.88 |
| Статус: | не определен законодательством |
| Название рус.: | Альбом 7. Часть 2. Чертежи нестандартизированного оборудования |
| Дата добавления в базу: | 01.01.2021 |
| Дата актуализации: | 01.01.2021 |
| Дата введения: | 18.10.1988 |
| Дата окончания срока действия: | 30.06.2003 |
| Разработан: | Союзгипролесхоз |
| Утверждён: | 10.10.1988 Госкомлес СССР (USSR Goskomles 27) |
| Заменяет собой: |
|













































