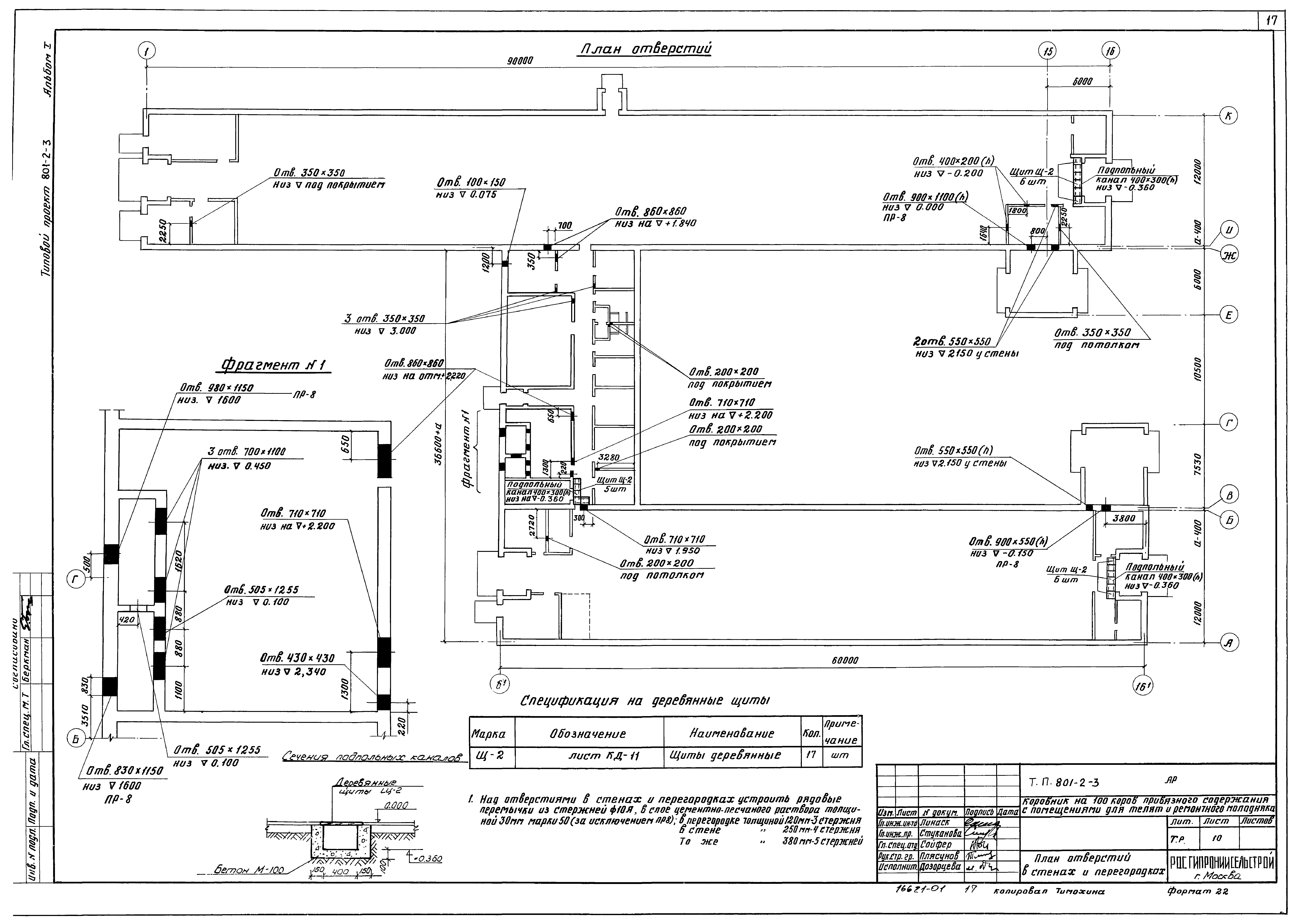
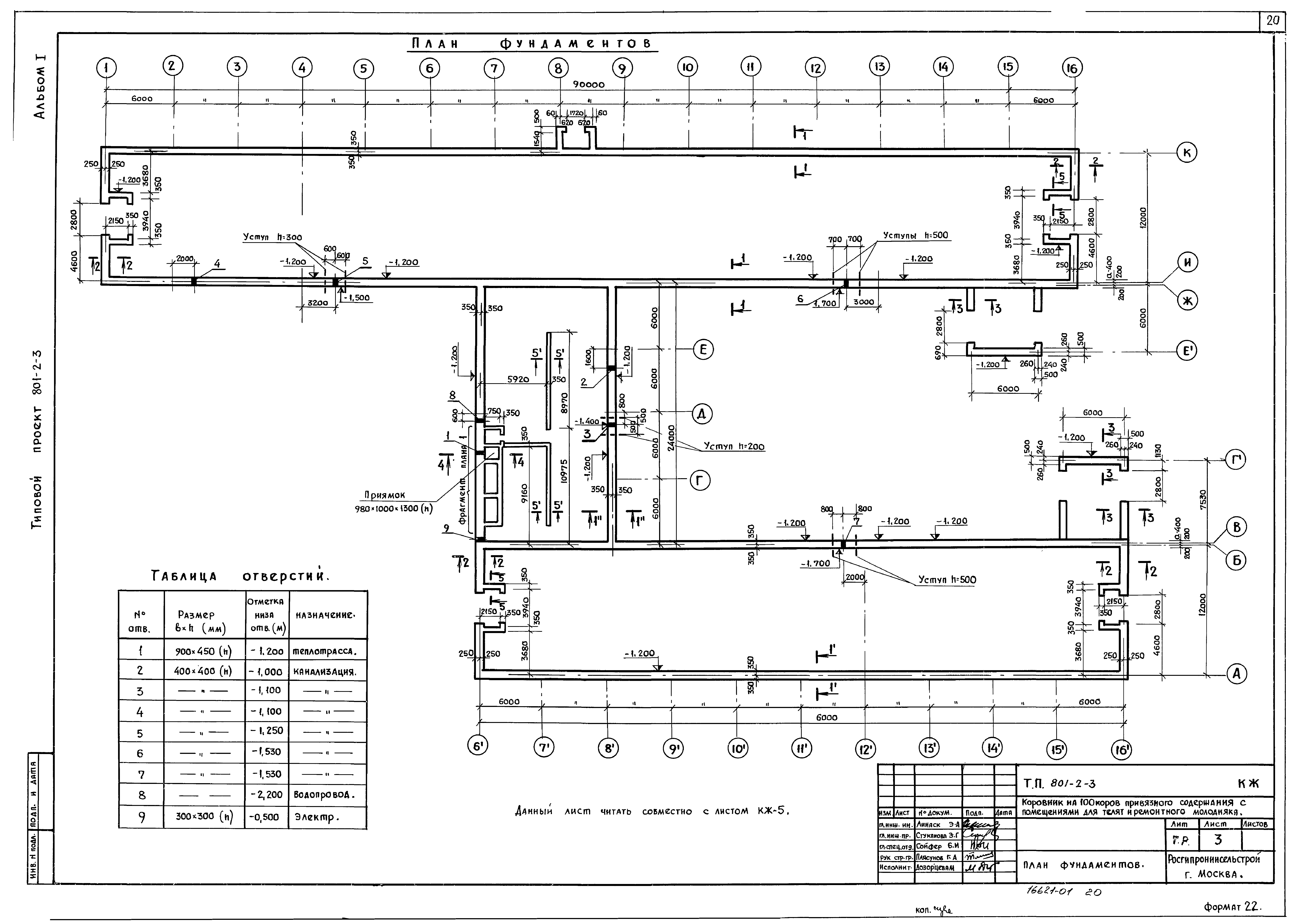
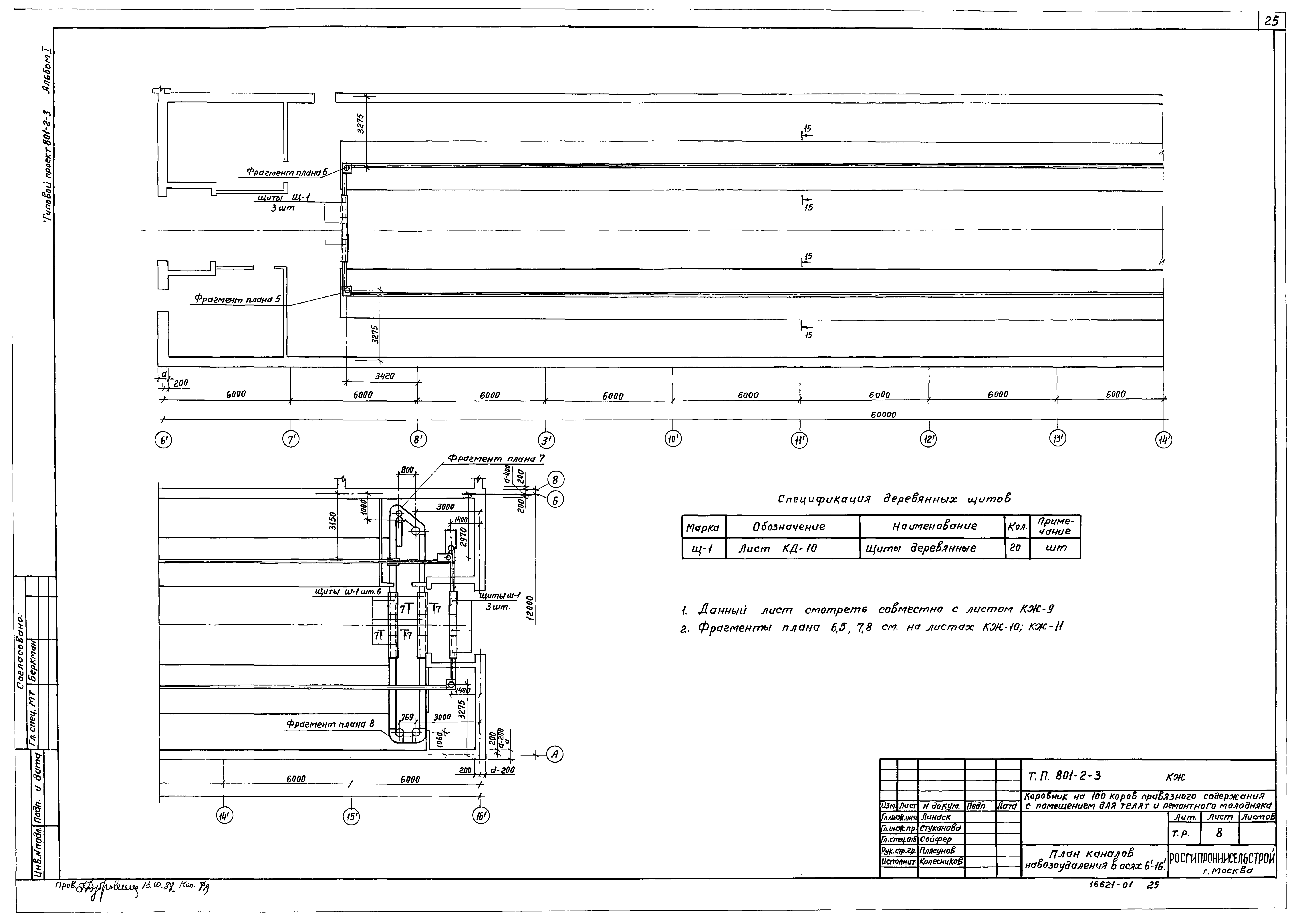
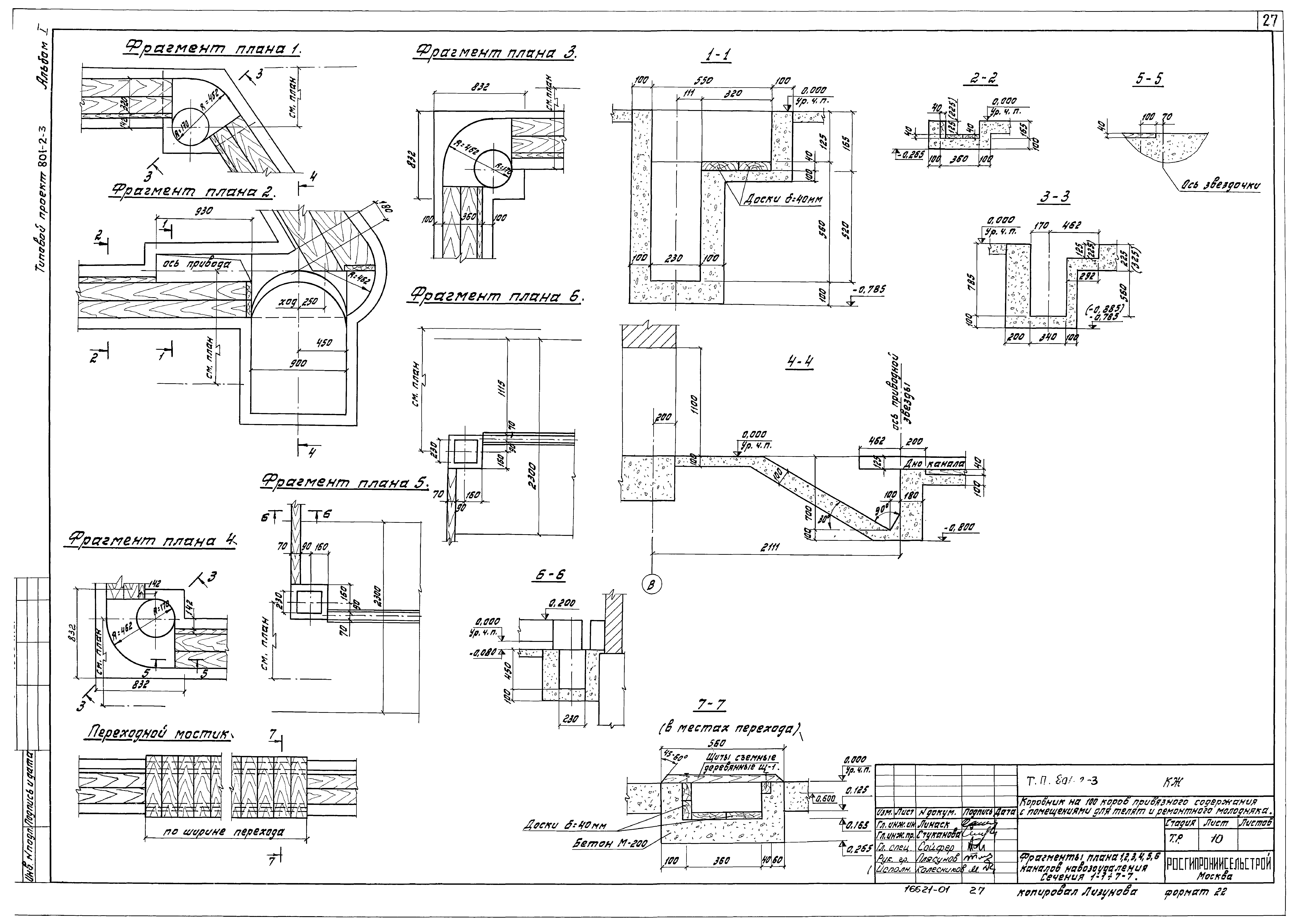
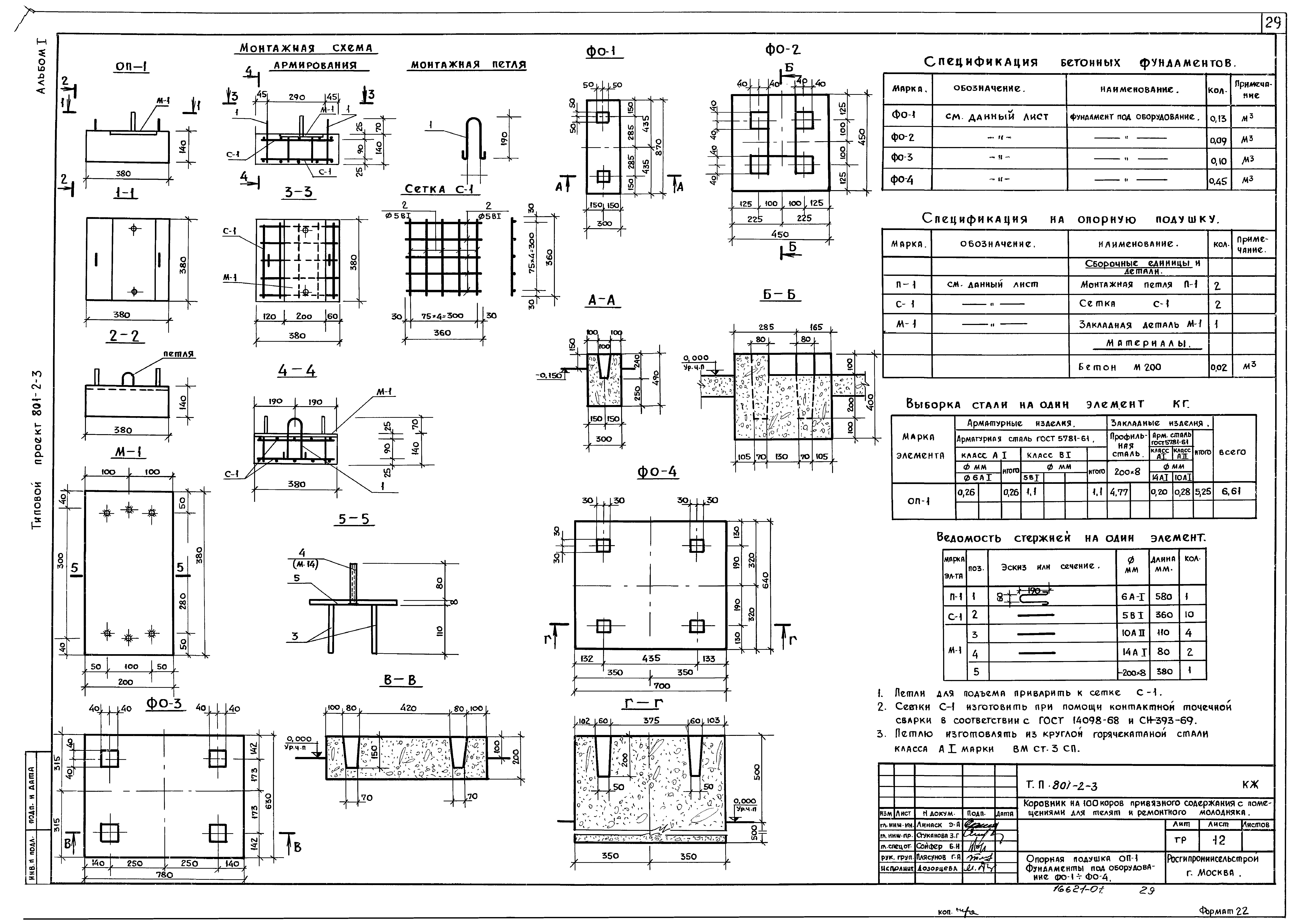
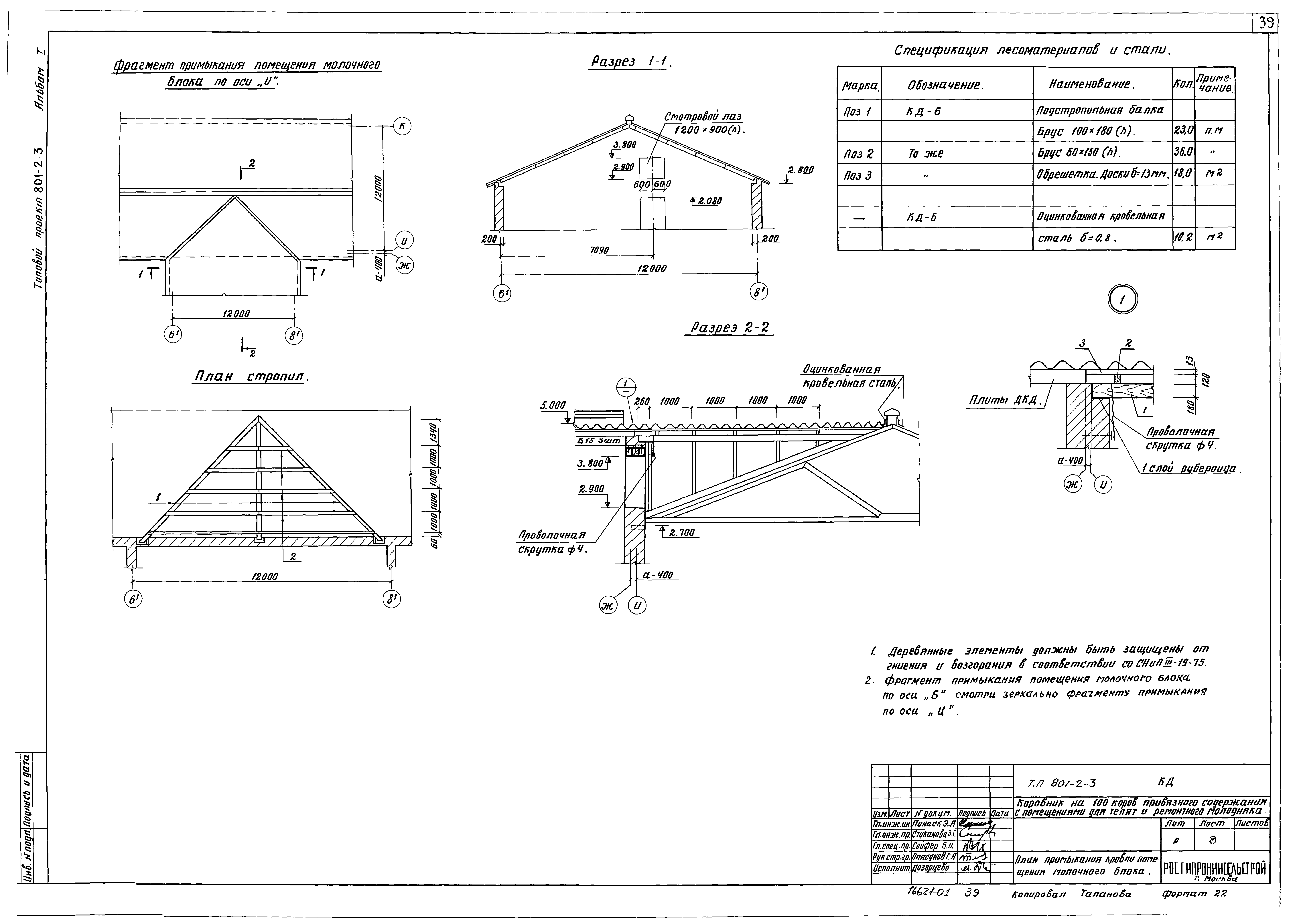
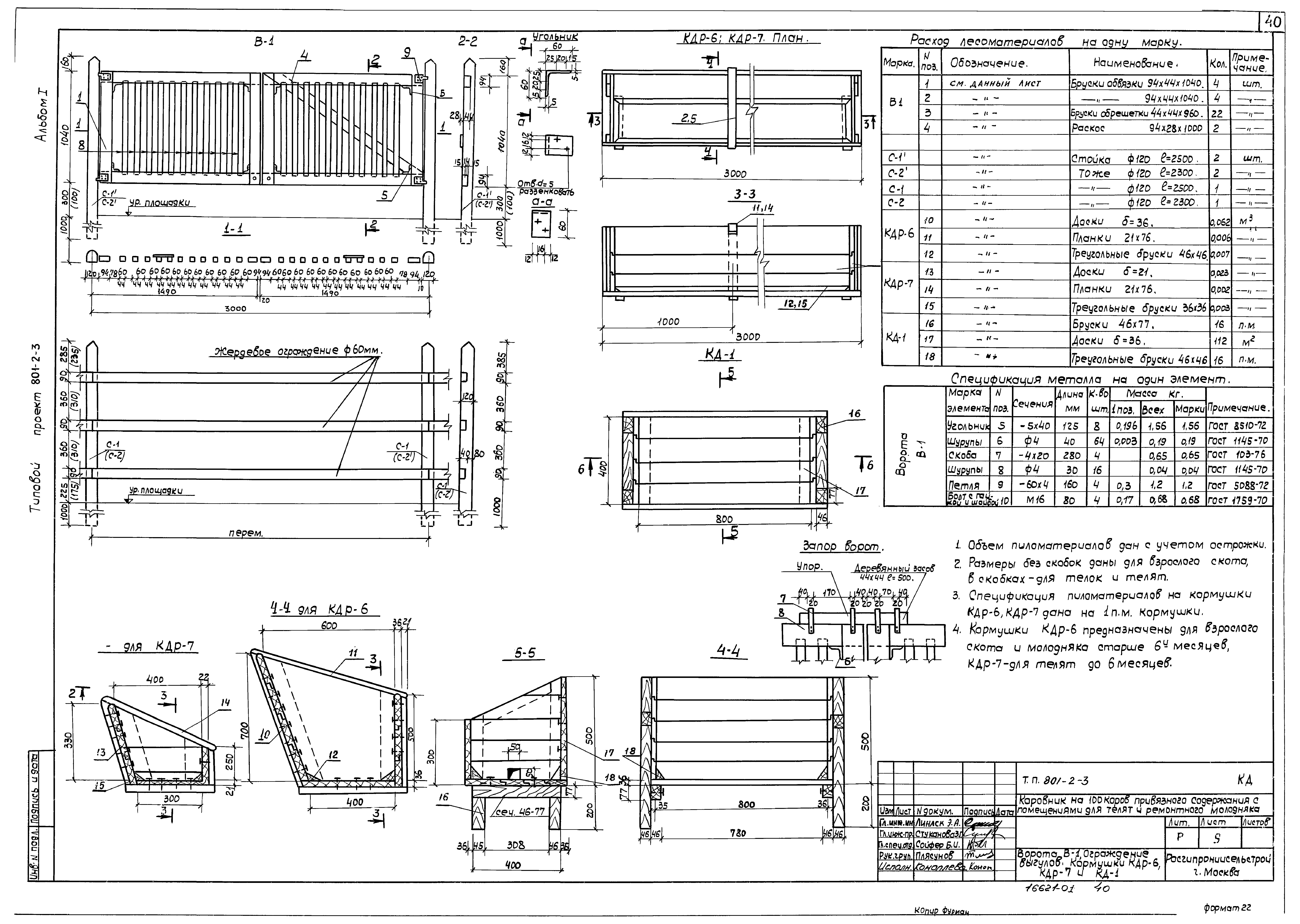
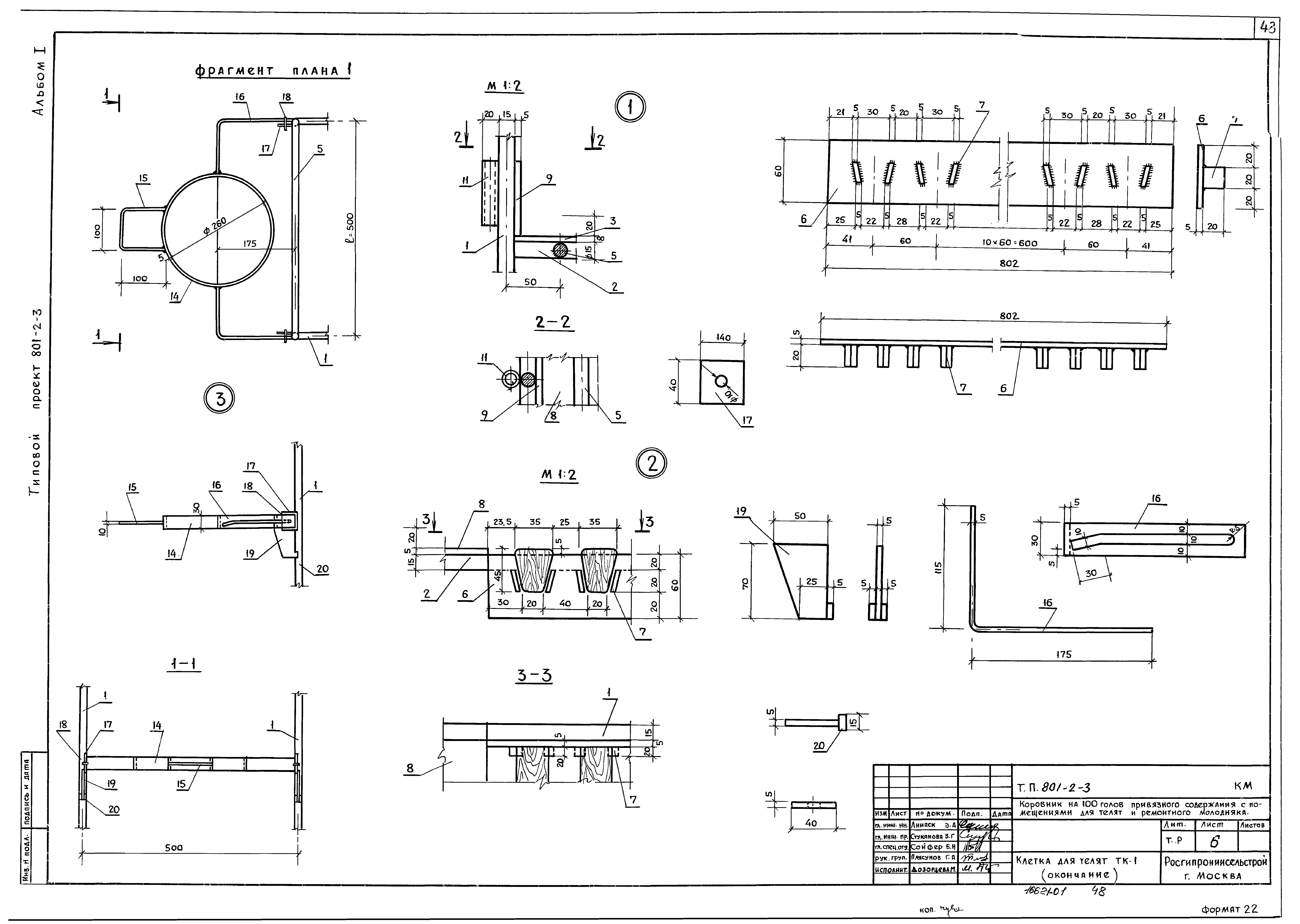
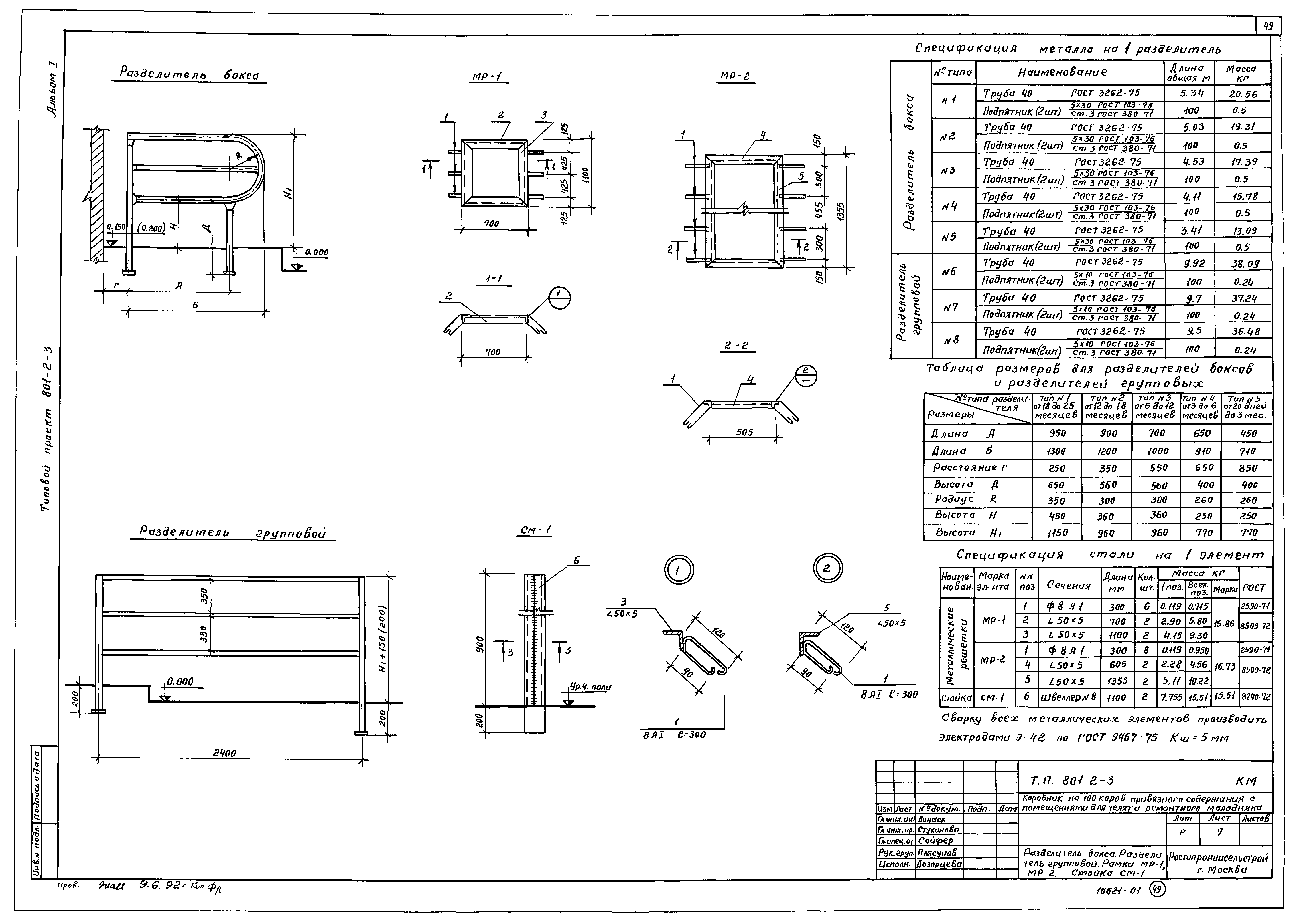
Скачать Типовой проект 801-2-3 Альбом I. Архитектурно-строительные решения. Конструкции железобетонные. Конструкции деревянные. Конструкции металлическиеДата актуализации: 01.01.2021
|
| Обозначение: | Типовой проект 801-2-3 |
| Обозначение англ: | 801-2-3 |
| Статус: | не определен законодательством |
| Название рус.: | Альбом I. Архитектурно-строительные решения. Конструкции железобетонные. Конструкции деревянные. Конструкции металлические |
| Дата добавления в базу: | 01.01.2021 |
| Дата актуализации: | 01.01.2021 |
| Дата введения: | 27.03.1980 |
| Дата окончания срока действия: | 30.06.2003 |
| Разработан: | Росгипрониисельстрой |
| Утверждён: | 29.12.1978 Минсельхоз СССР (USSR Minselkhoz 104/214) |
















































