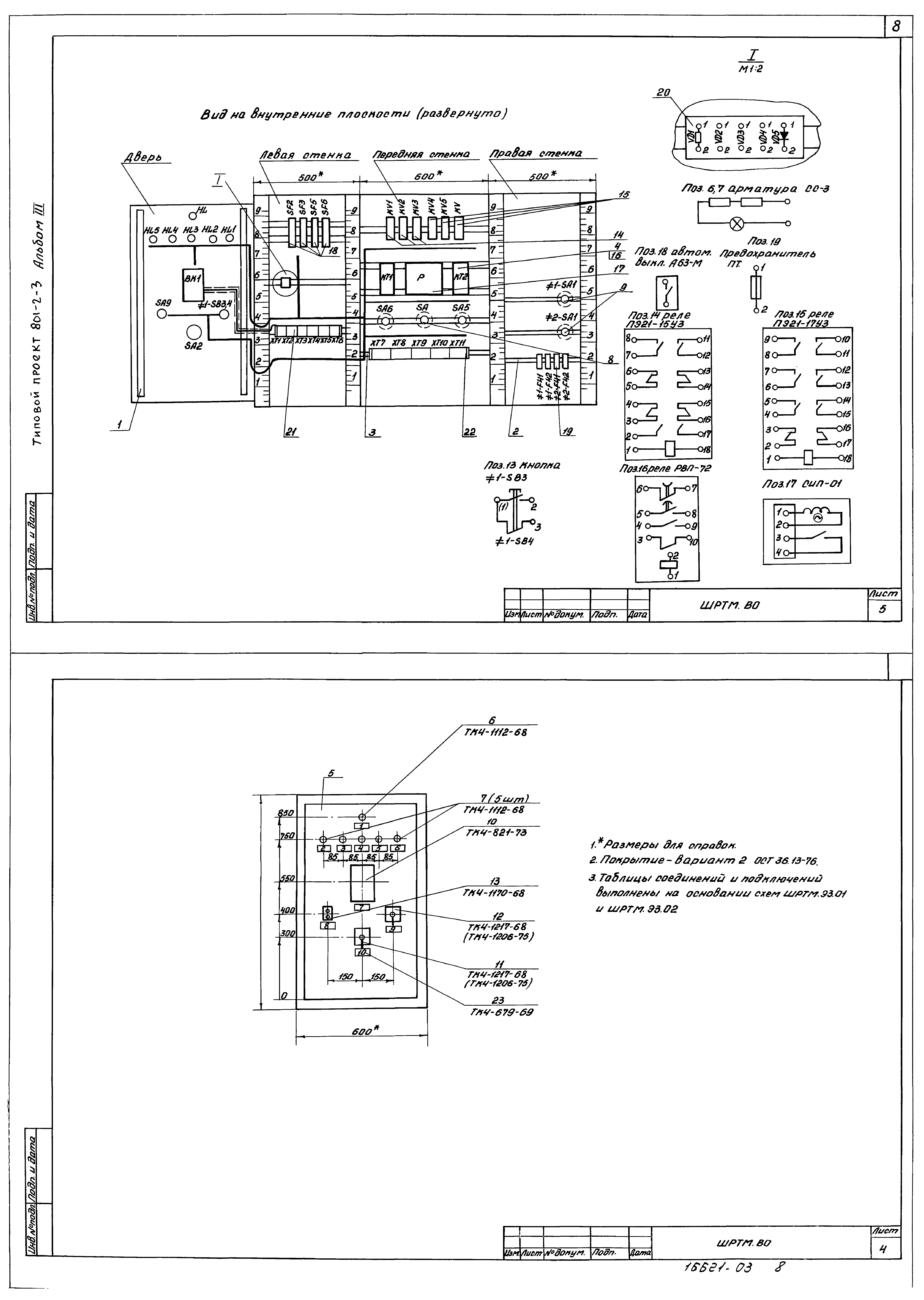
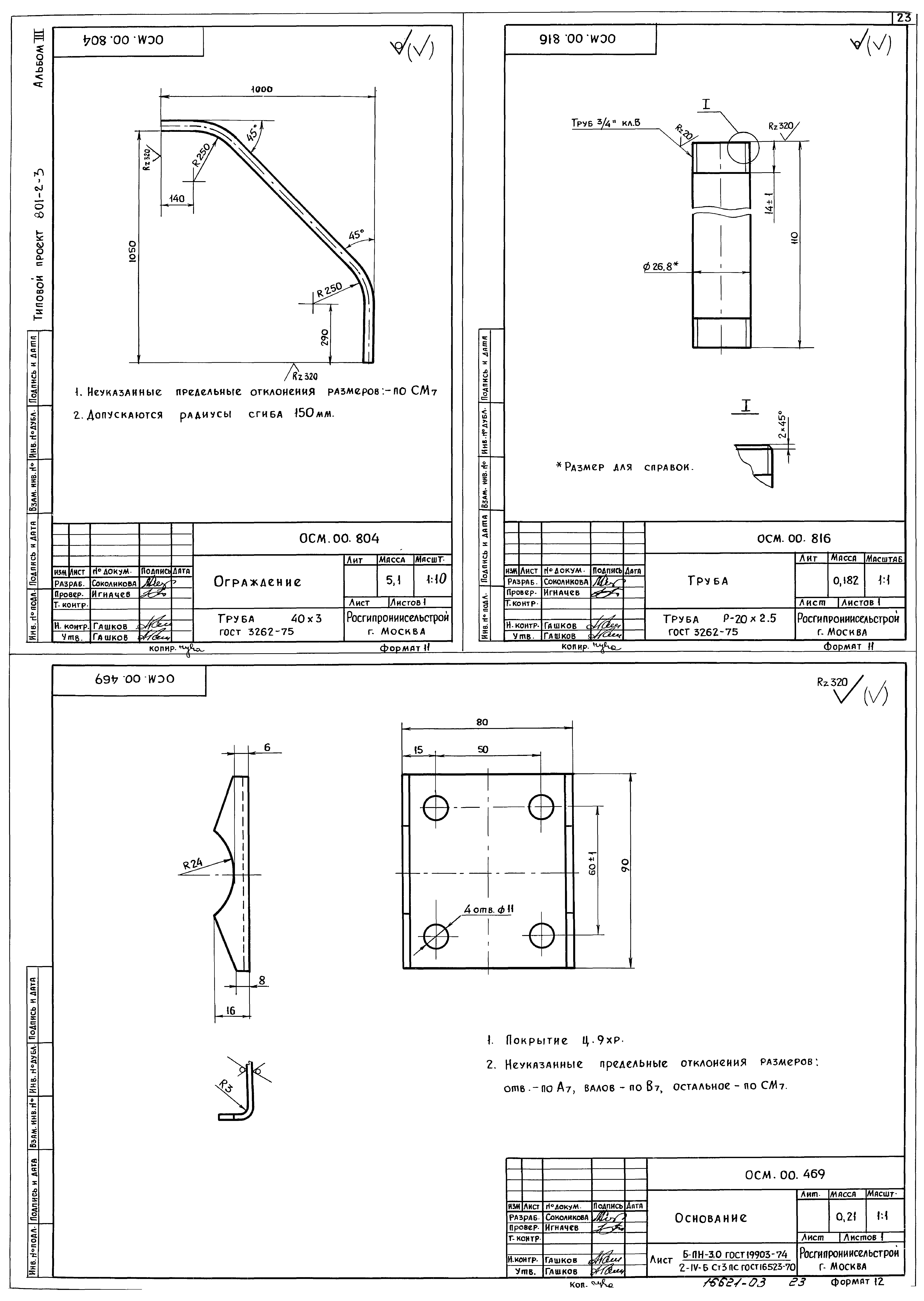
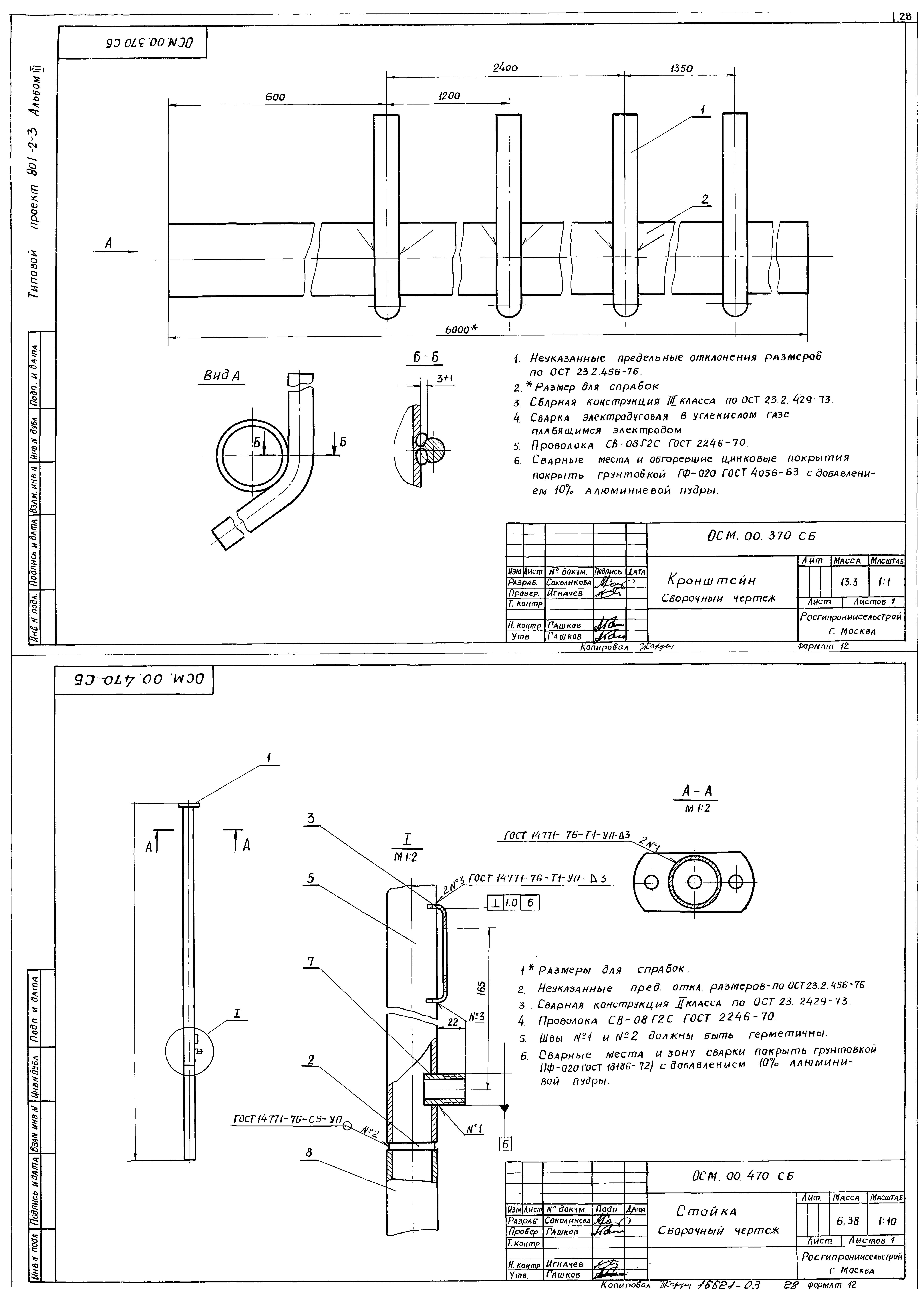
Скачать Типовой проект 801-2-3 Альбом III. Чертежи задания заводу-изготовителю. Нестандартизированное оборудованиеДата актуализации: 01.01.2021 Типовой проект 801-2-3
Альбом III. Чертежи задания заводу-изготовителю. Нестандартизированное оборудование| Обозначение: | Типовой проект 801-2-3 | | Обозначение англ: | 801-2-3 | | Статус: | не определен законодательством | | Название рус.: | Альбом III. Чертежи задания заводу-изготовителю. Нестандартизированное оборудование | | Дата добавления в базу: | 01.01.2021 | | Дата актуализации: | 01.01.2021 | | Дата введения: | 27.03.1980 | | Дата окончания срока действия: | 30.06.2003 | | Разработан: | Росгипрониисельстрой
| | Утверждён: | 29.12.1978 Минсельхоз СССР (USSR Minselkhoz 104/214)
|
                              
|