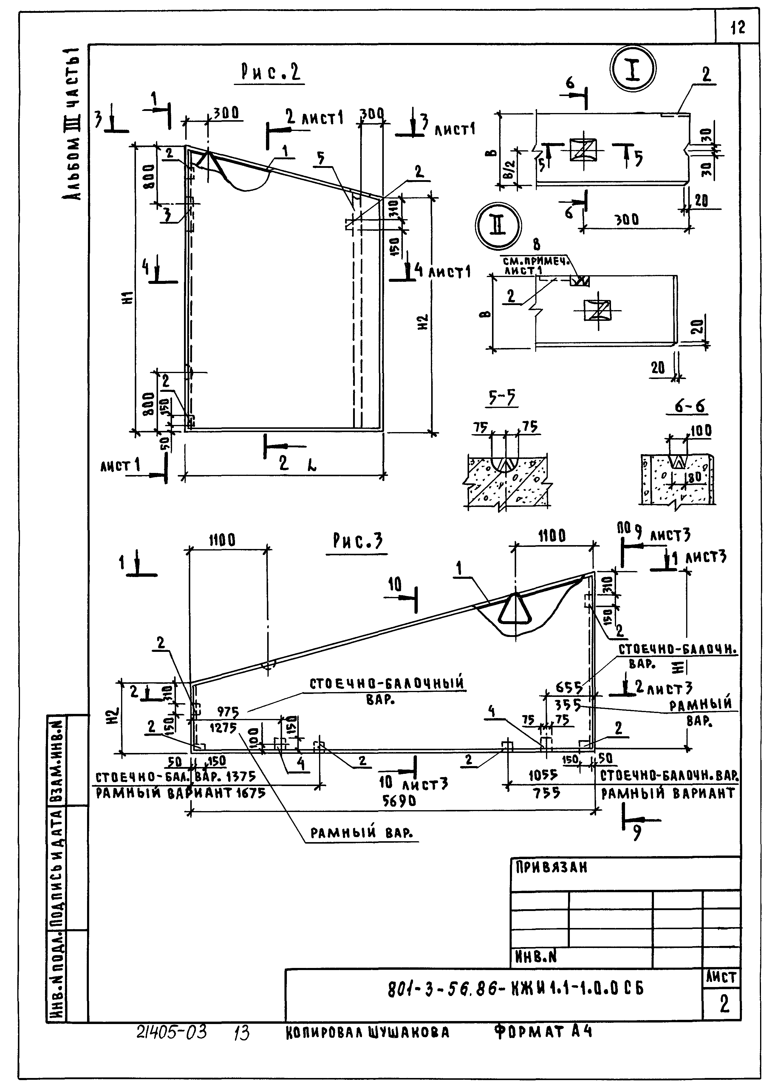
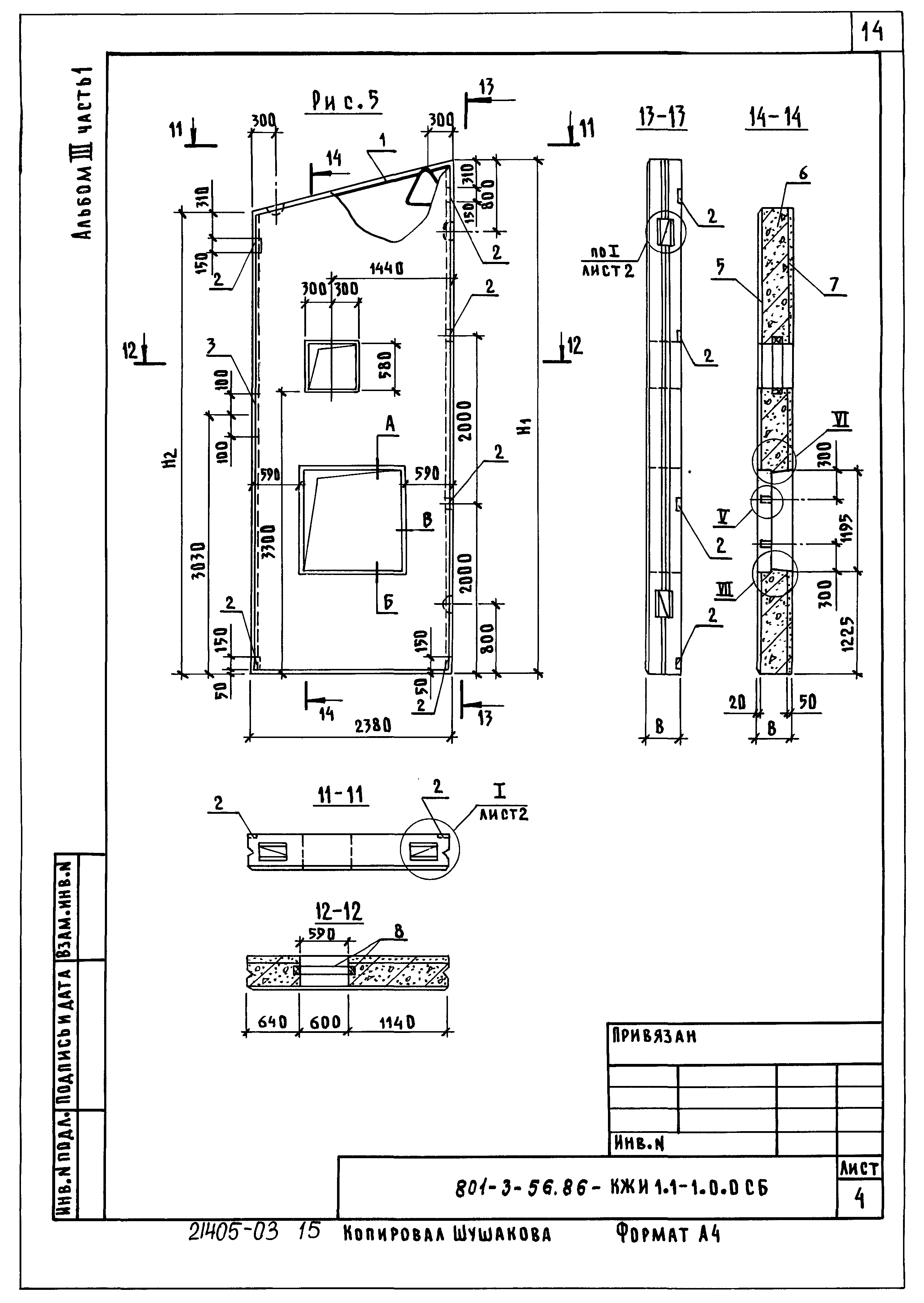
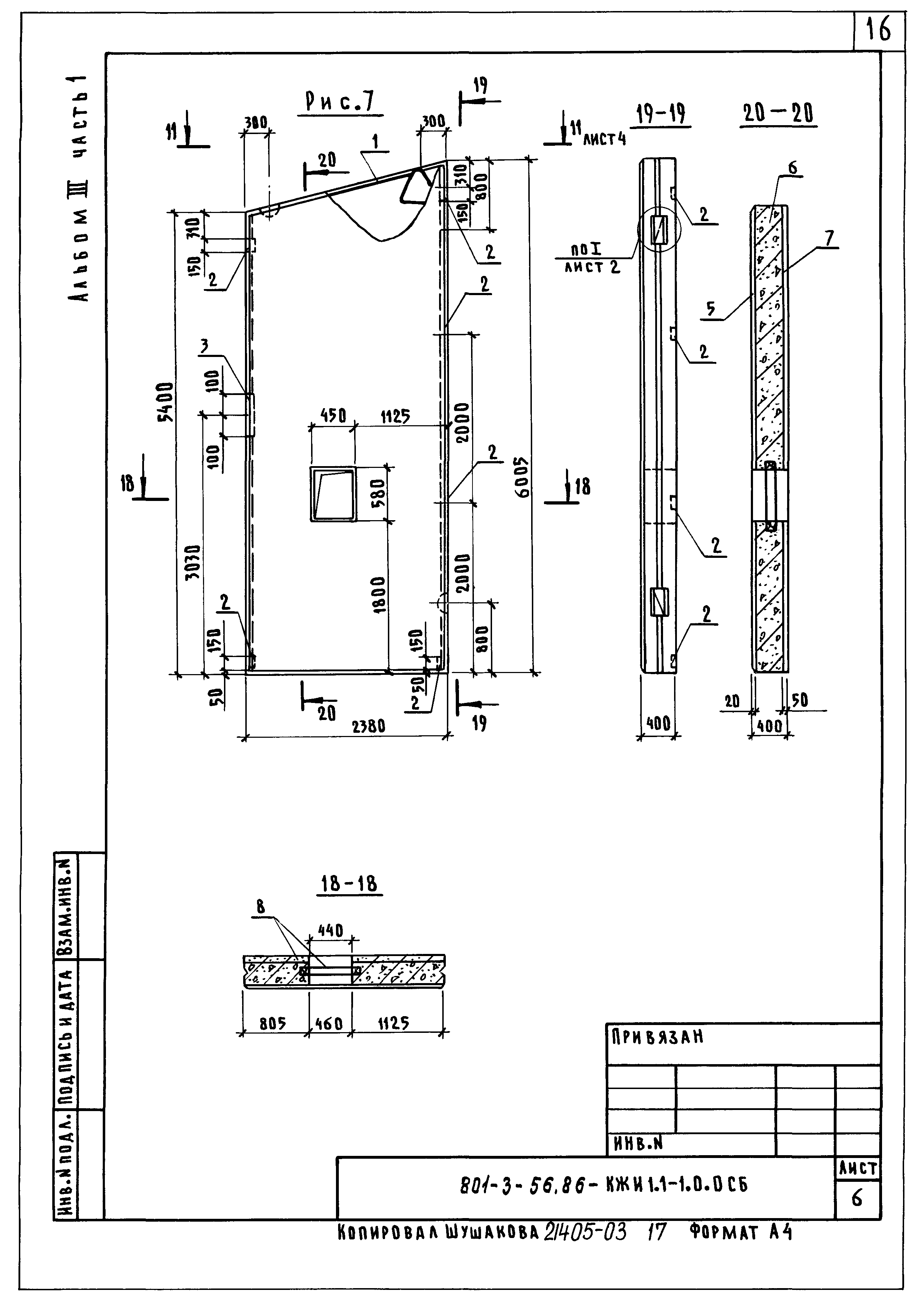
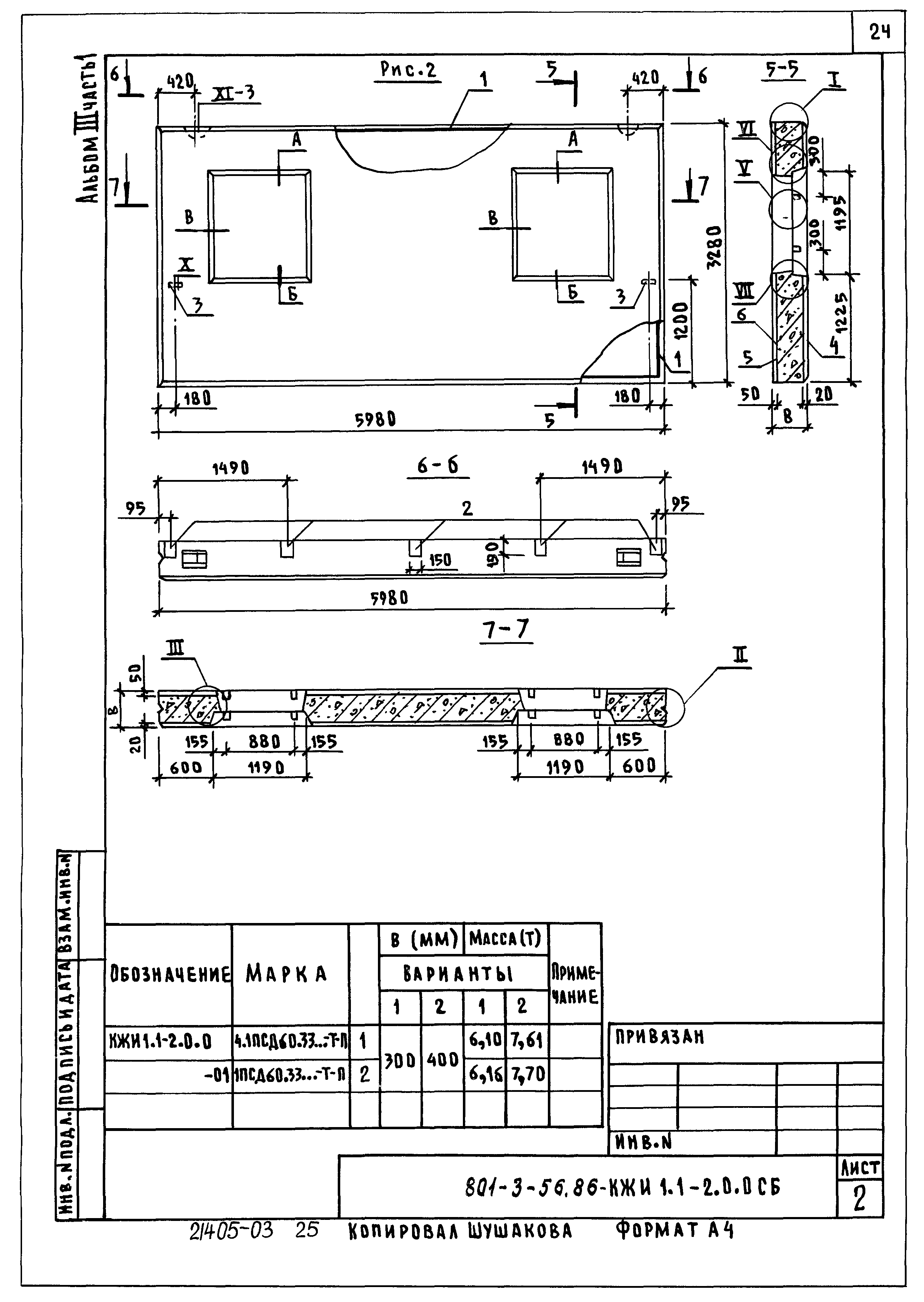
Скачать Типовой проект 801-3-56.86 Альбом III. Часть 1. Строительные изделия. Панели для варианта стен вертикальной разрезкиДата актуализации: 01.01.2021
|
| Обозначение: | Типовой проект 801-3-56.86 |
| Обозначение англ: | 801-3-56.86 |
| Статус: | не определен законодательством |
| Название рус.: | Альбом III. Часть 1. Строительные изделия. Панели для варианта стен вертикальной разрезки |
| Дата добавления в базу: | 01.01.2021 |
| Дата актуализации: | 01.01.2021 |
| Дата введения: | 02.08.1985 |
| Дата окончания срока действия: | 30.06.2003 |
| Разработан: | ГипроНИсельхоз (Институт Гипронисельхоз ) |
| Утверждён: | 14.11.1983 Главсельстройпроект Минсельхоза СССР (Glavselstroyproject, USSR Minselkhoz 102) |


















































