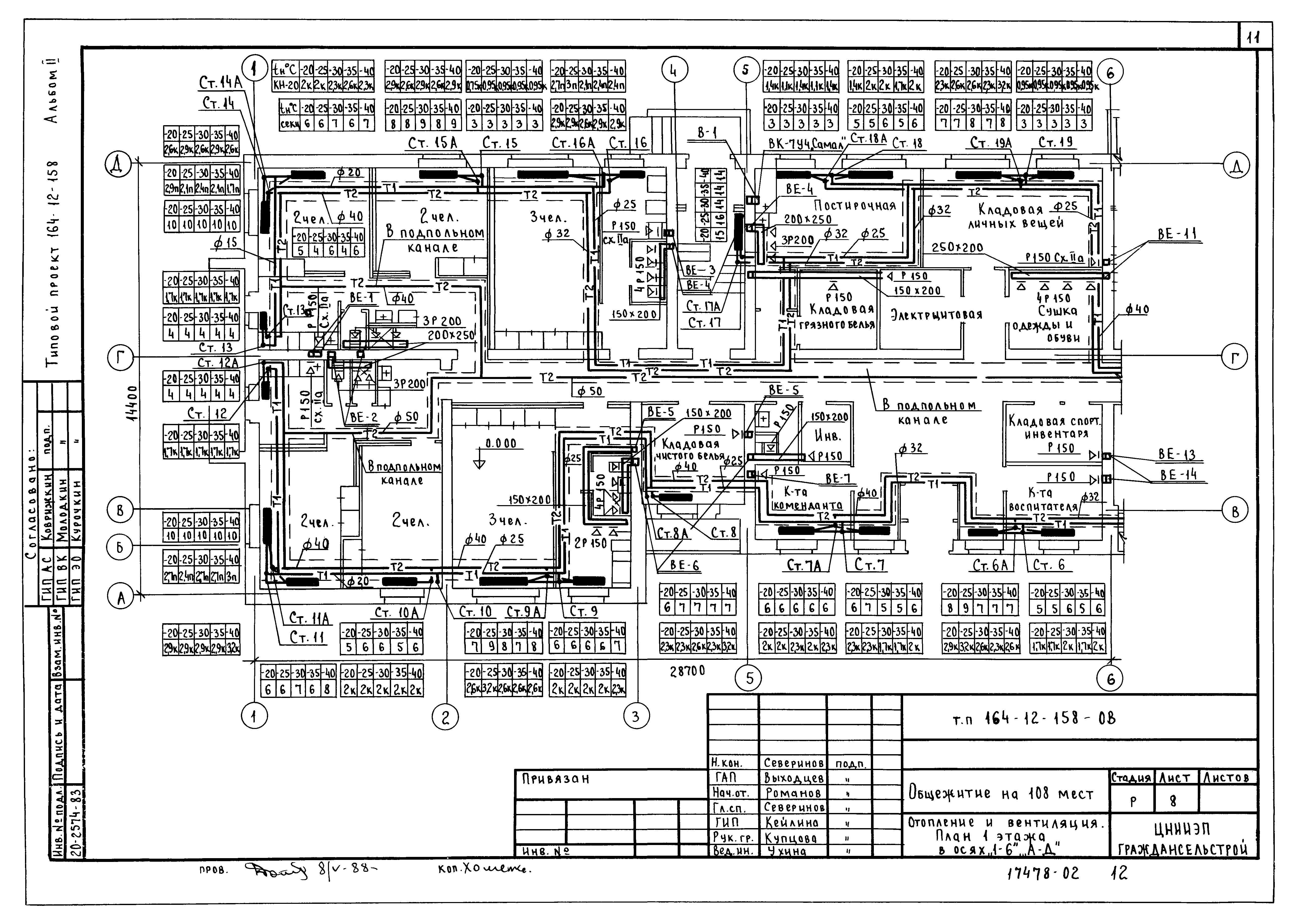
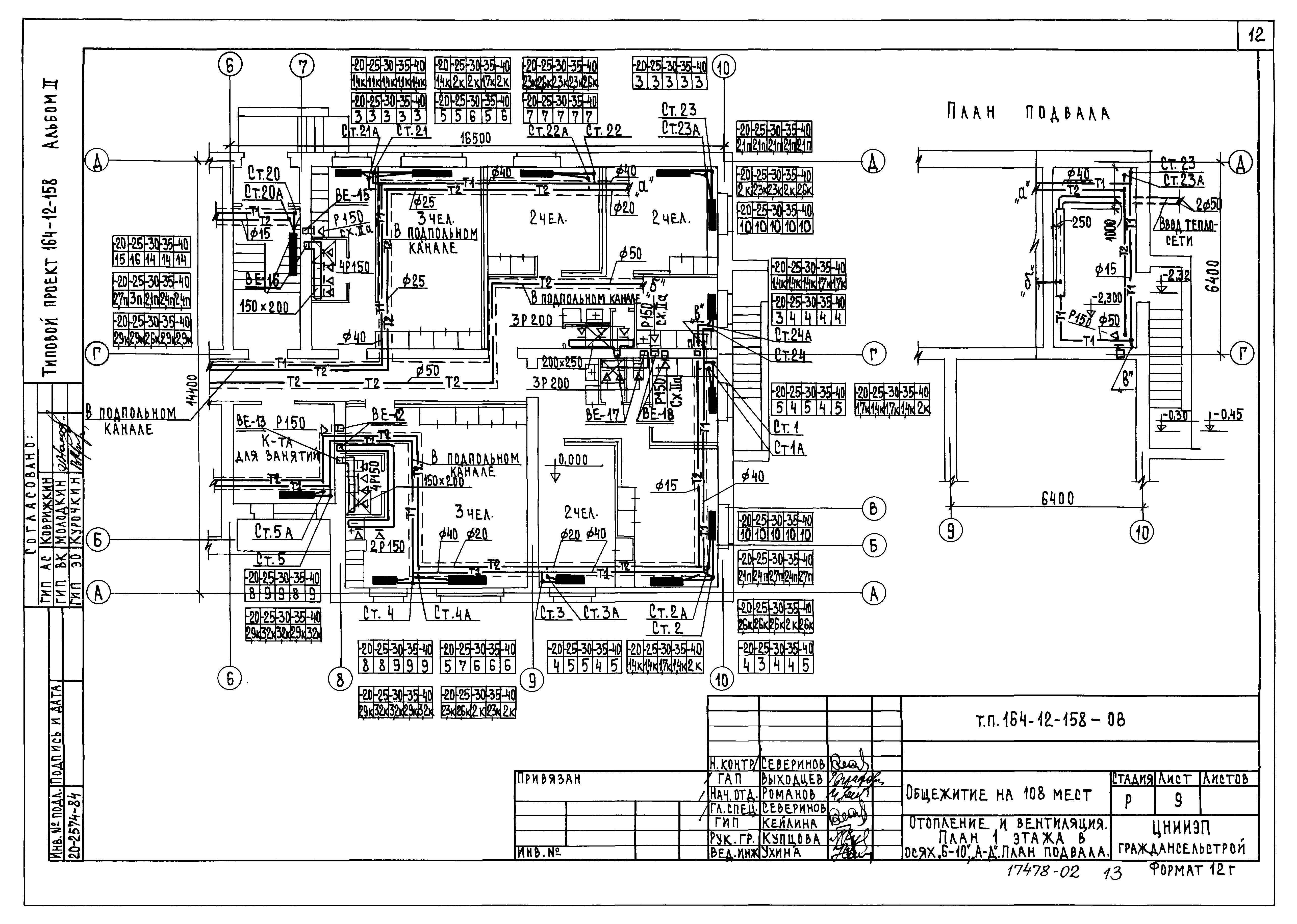
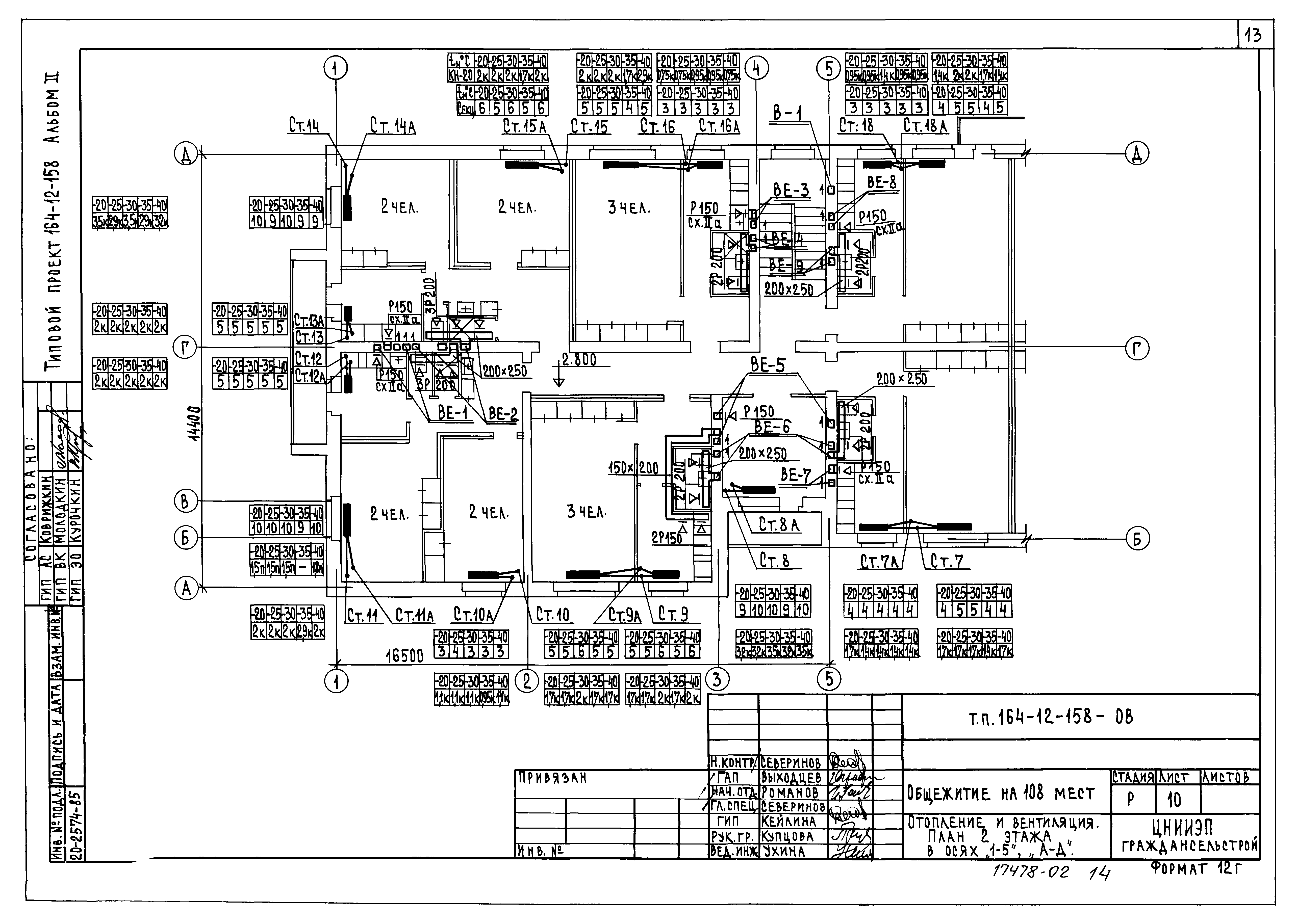
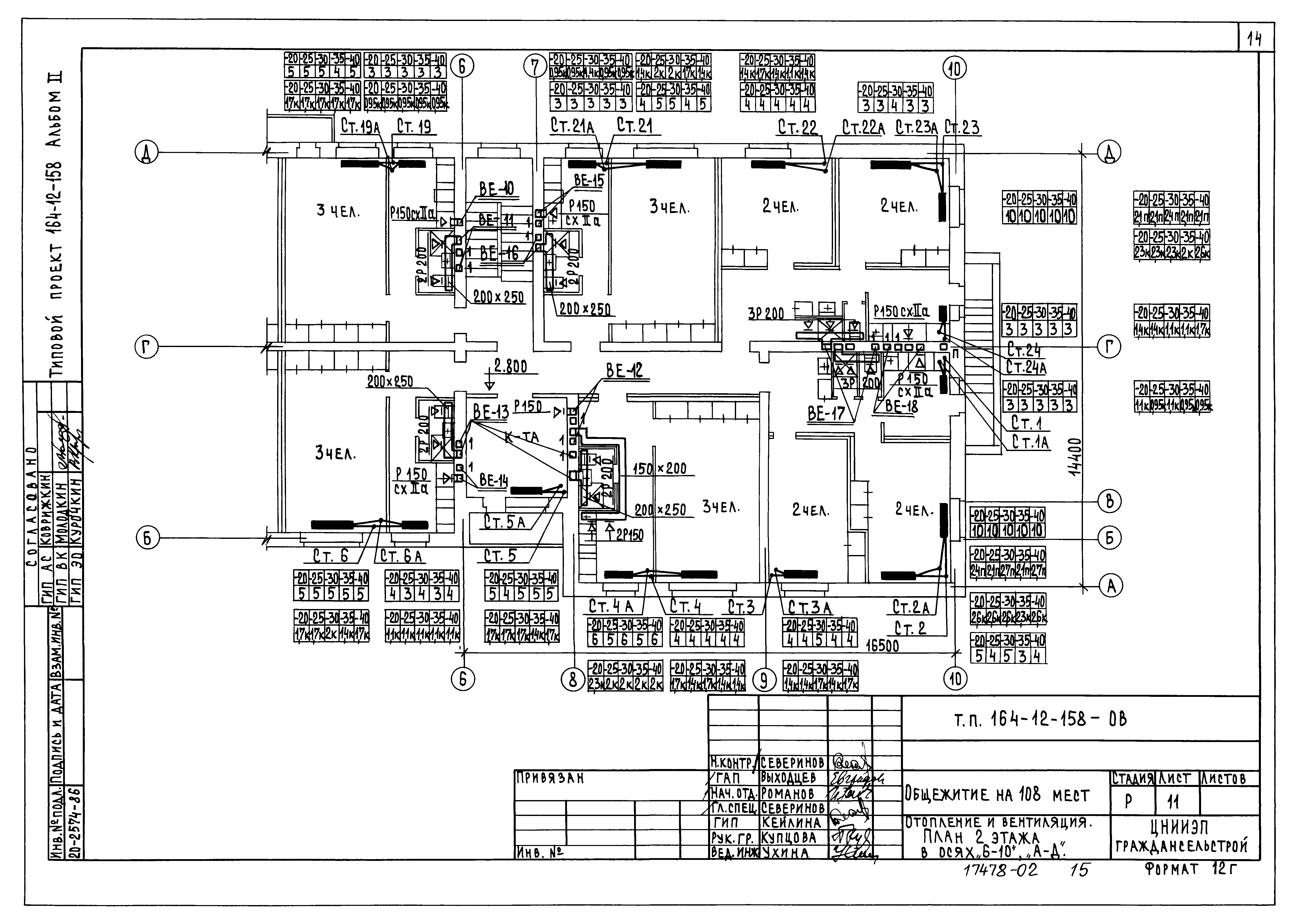
Скачать Типовой проект 164-12-158 Альбом II. Санитарно-технические и электротехнические чертежиДата актуализации: 01.01.2021
|
| Обозначение: | Типовой проект 164-12-158 |
| Обозначение англ: | 164-12-158 |
| Статус: | не определен законодательством |
| Название рус.: | Альбом II. Санитарно-технические и электротехнические чертежи |
| Дата добавления в базу: | 01.01.2021 |
| Дата актуализации: | 01.01.2021 |
| Дата введения: | 01.01.1982 |
| Дата окончания срока действия: | 30.06.2003 |
| Разработан: | ЦНИИЭП граждансельстрой |
| Утверждён: | 27.02.1980 Госгражданстрой (Gosgrazhdanstroy С3-3-546) |
| Издан: | ЦИТП Госстроя СССР (CITP, Gosstroy (USSR) 1988 г. ) |























































































