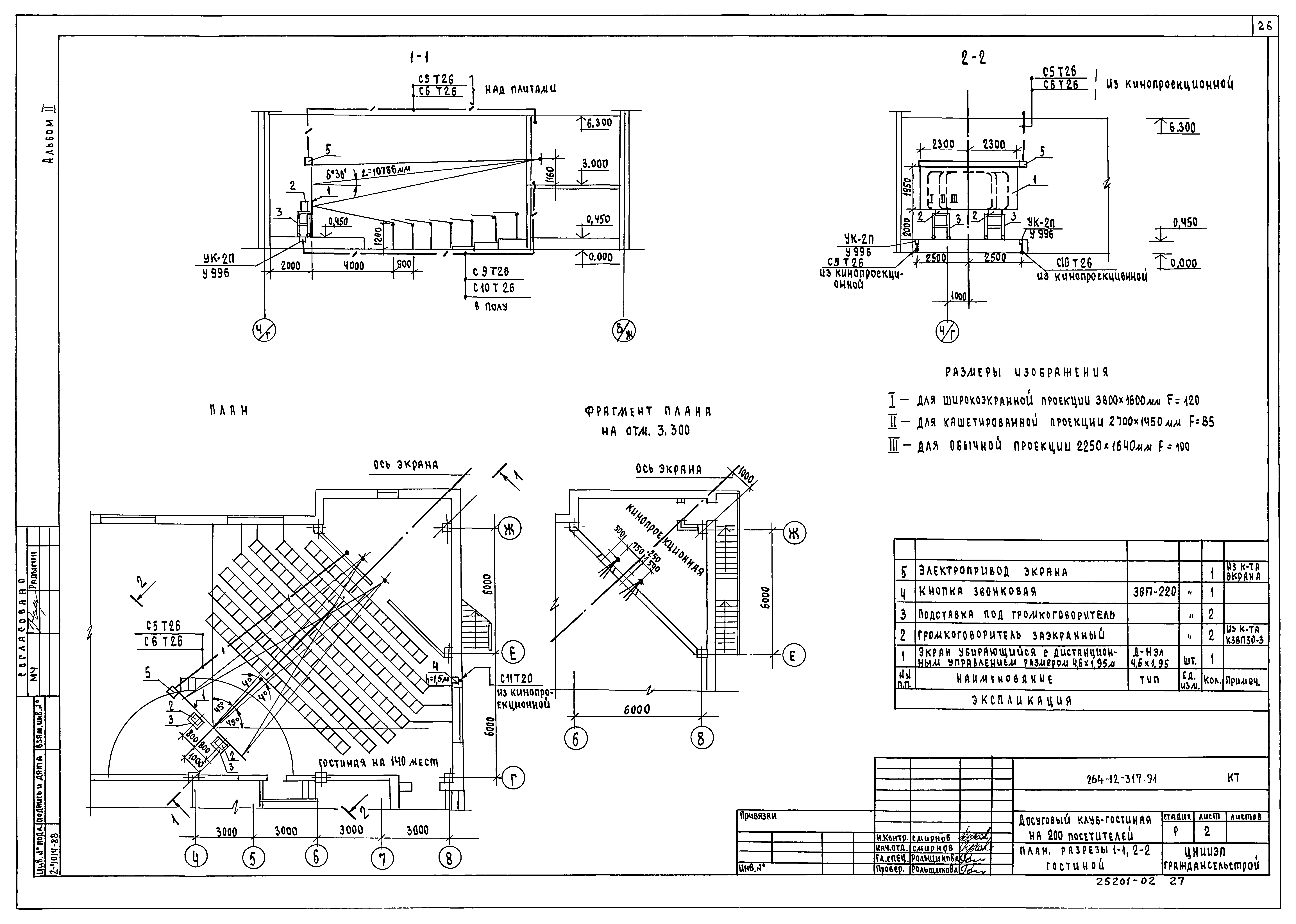
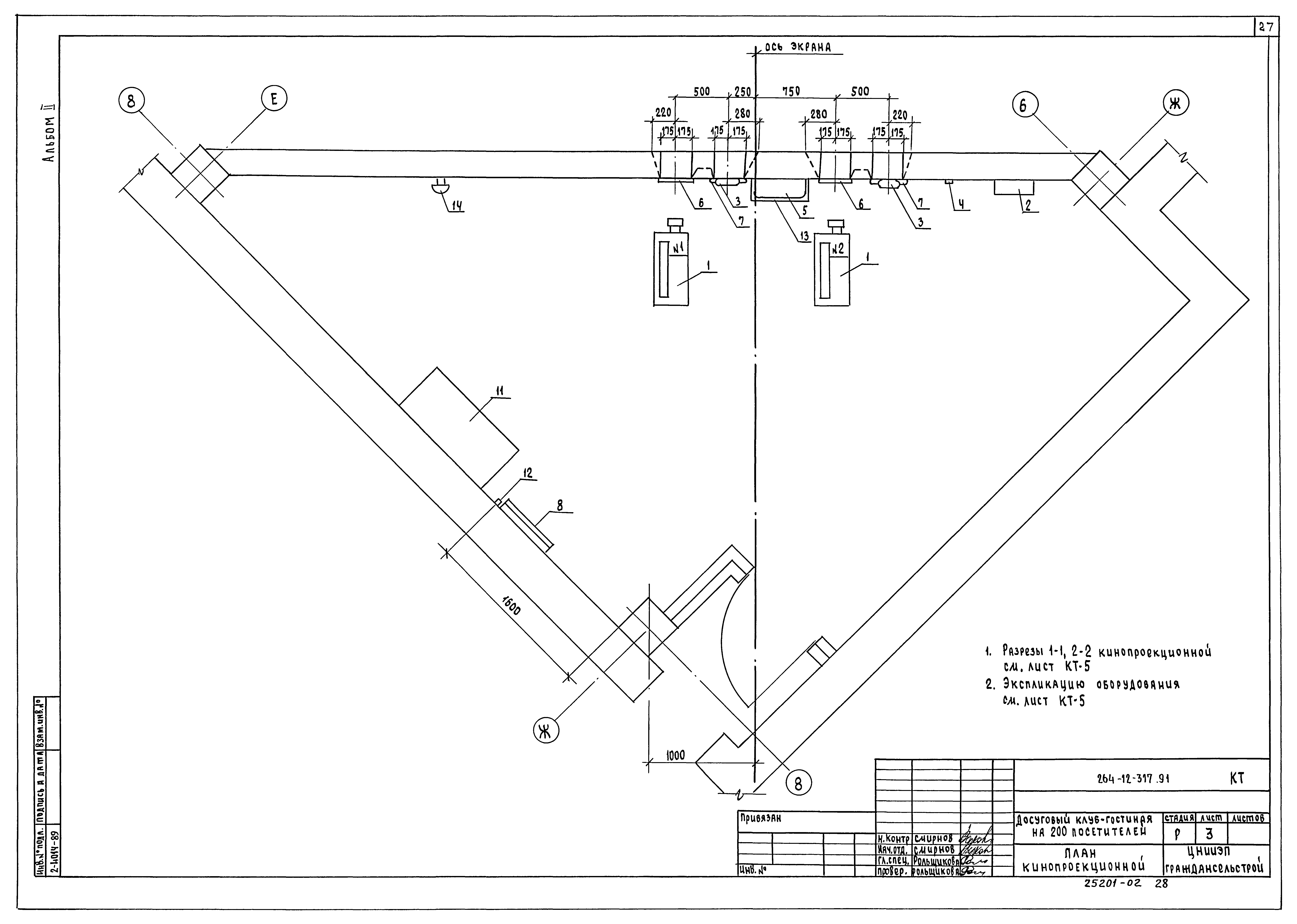
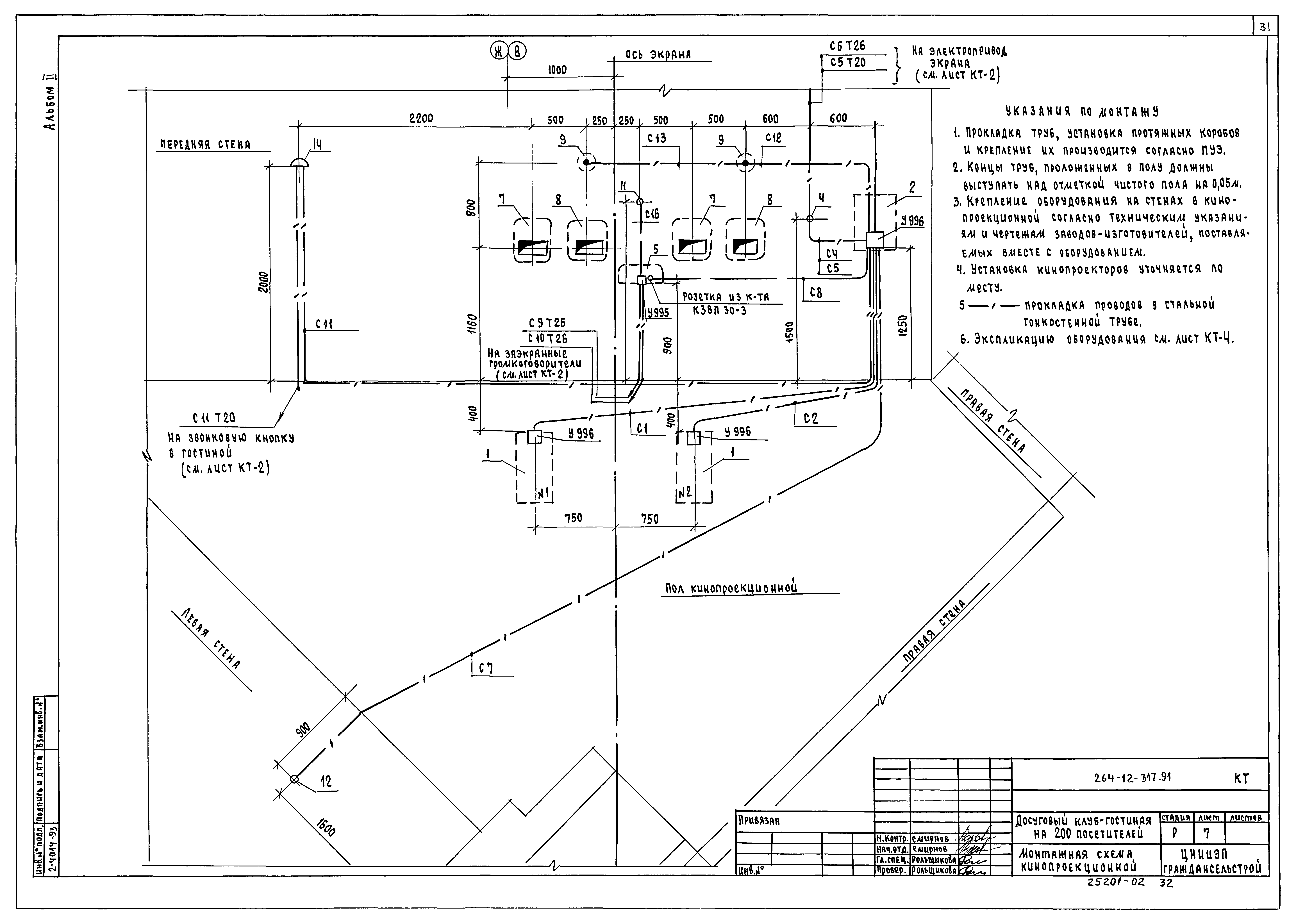
Скачать Типовой проект 264-12-317.91 Альбом II. Отопление и вентиляция. Водоснабжение и канализация. Электрооборудование. Связь и сигнализация. Кинотехнология. Пожарная сигнализацияДата актуализации: 01.01.2021
|
| Обозначение: | Типовой проект 264-12-317.91 |
| Обозначение англ: | 264-12-317.91 |
| Статус: | не определен законодательством |
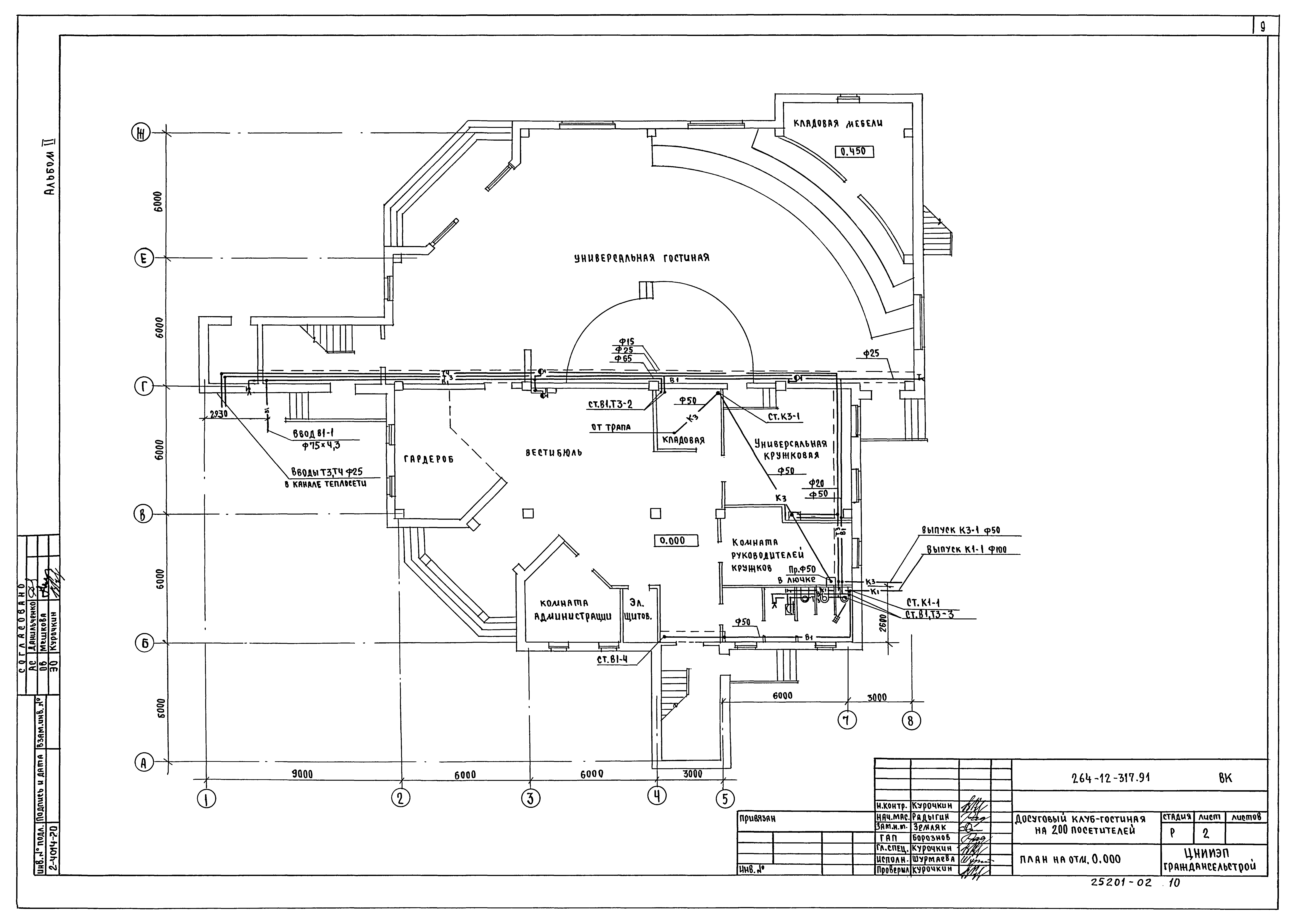
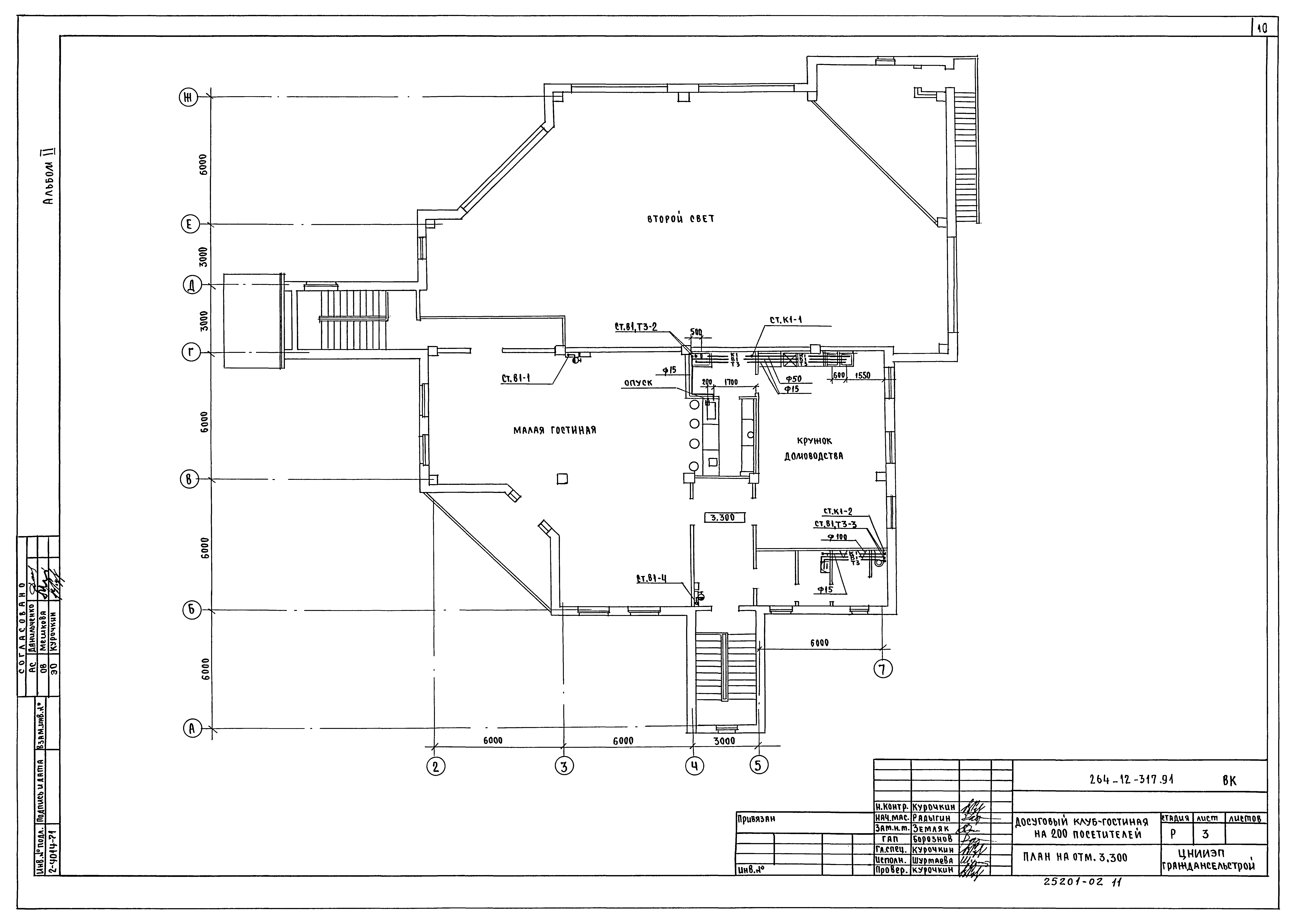
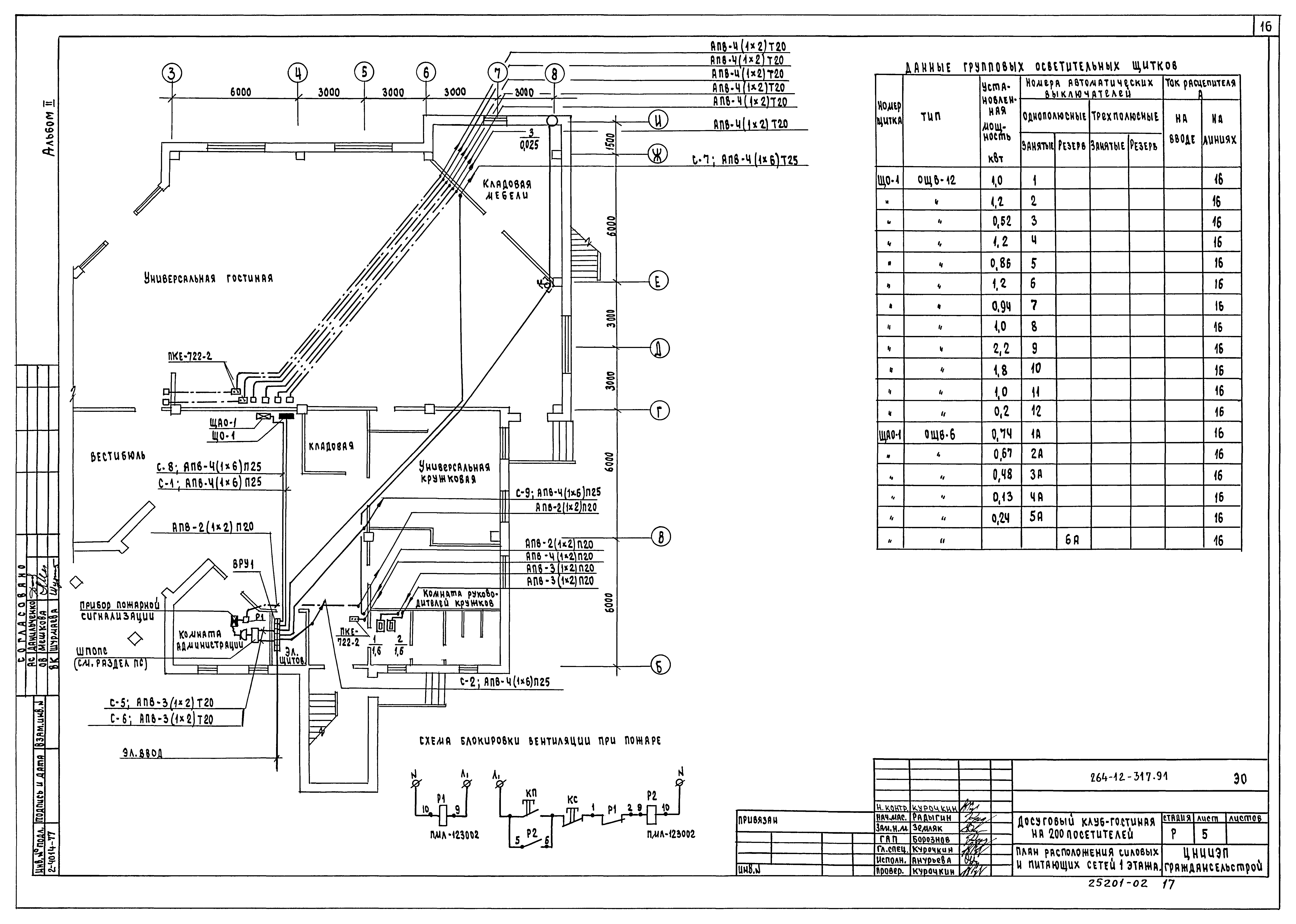
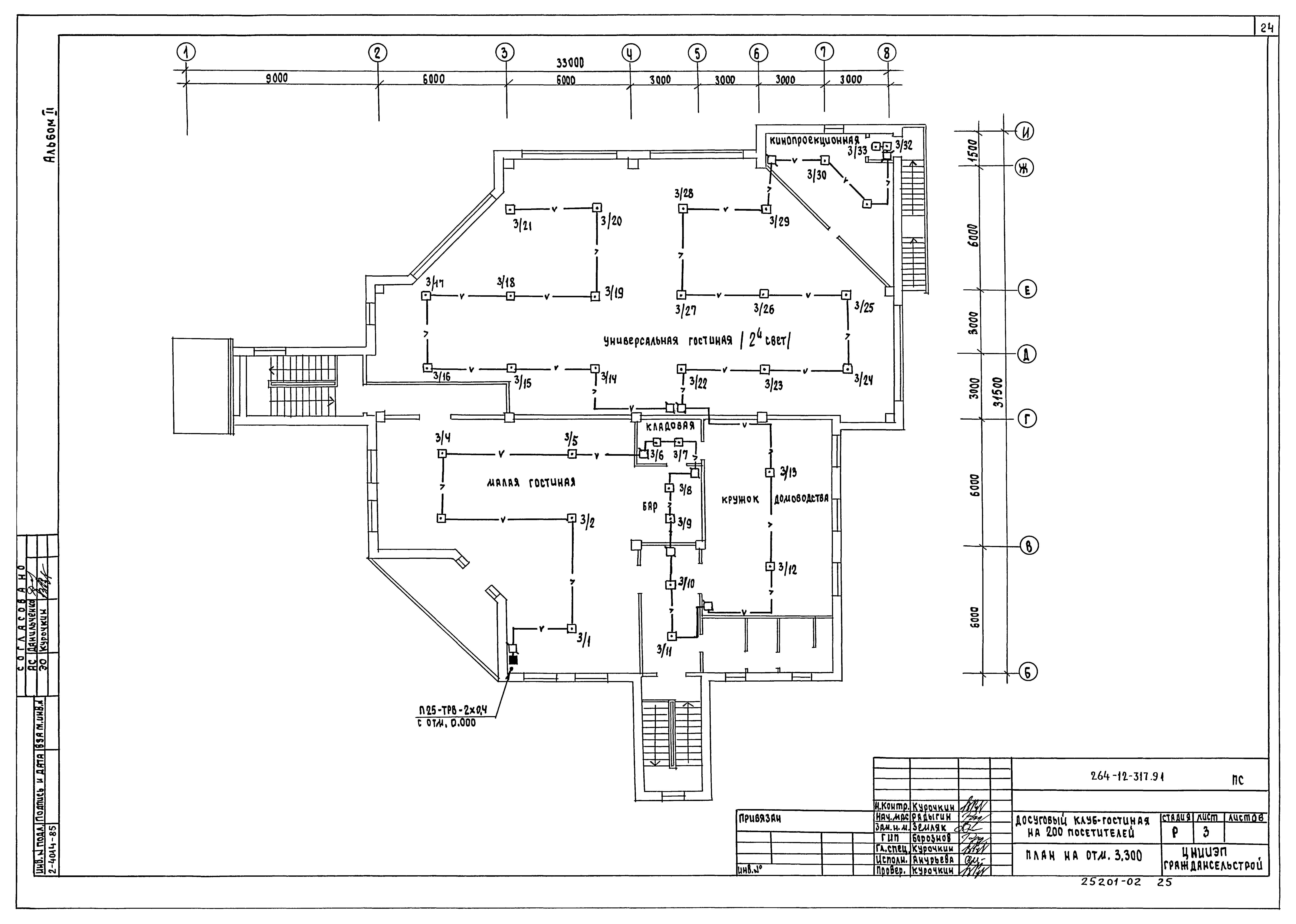
| Название рус.: | Альбом II. Отопление и вентиляция. Водоснабжение и канализация. Электрооборудование. Связь и сигнализация. Кинотехнология. Пожарная сигнализация |
| Дата добавления в базу: | 01.01.2021 |
| Дата актуализации: | 01.01.2021 |
| Дата введения: | 19.11.1991 |
| Дата окончания срока действия: | 30.06.2003 |
| Разработан: | ЦНИИЭП граждансельстрой |
| Утверждён: | 12.02.1991 Госкомархитектура (17) |
| Издан: | АПП ЦИТП (1992 г. ) |
































