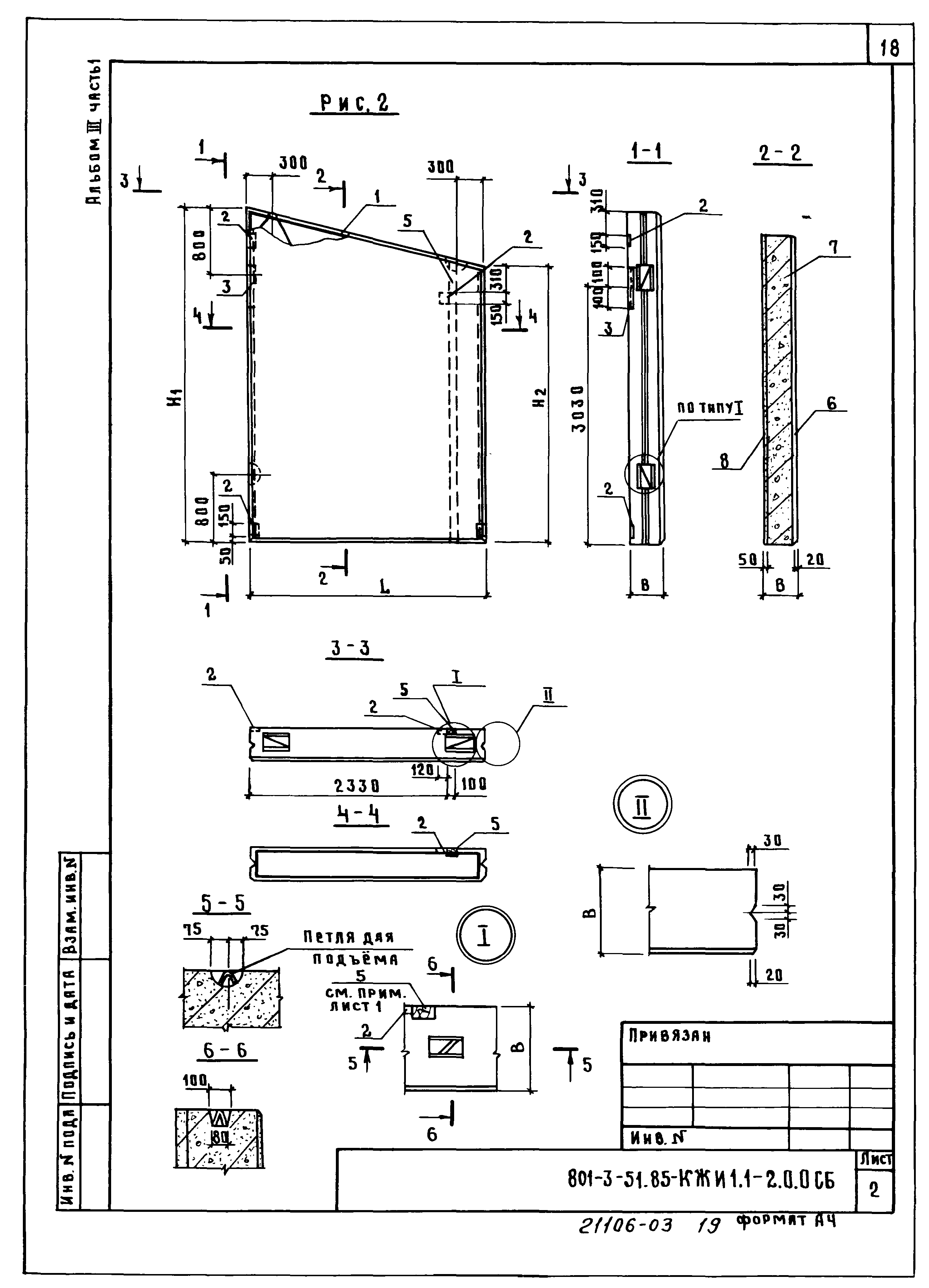
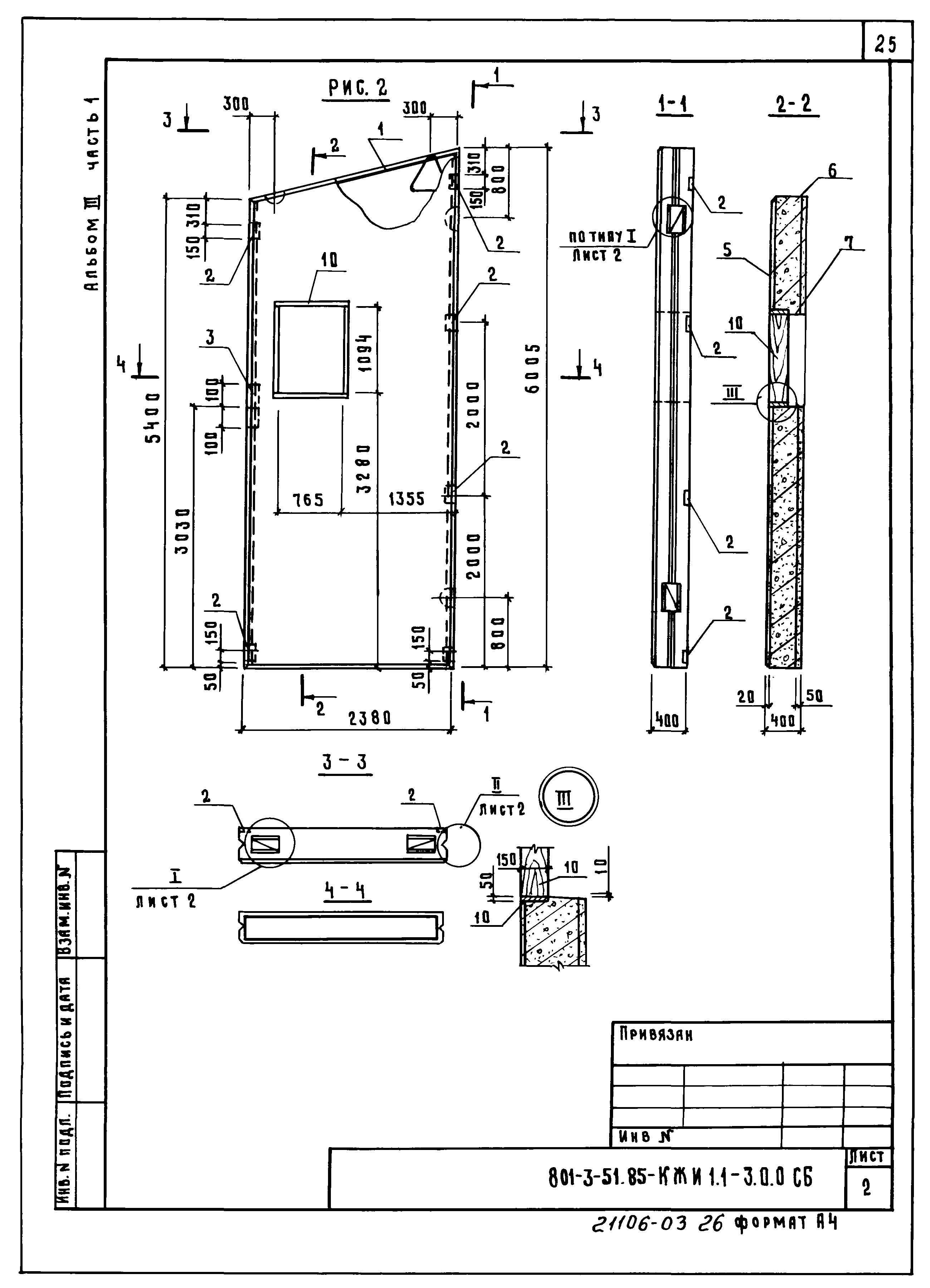
Скачать Типовой проект 801-3-51.85 Альбом III. Часть 1. Строительные изделия. Панели для варианта стен вертикальной разрезкиДата актуализации: 01.01.2021
|
| Обозначение: | Типовой проект 801-3-51.85 |
| Обозначение англ: | 801-3-51.85 |
| Статус: | не определен законодательством |
| Название рус.: | Альбом III. Часть 1. Строительные изделия. Панели для варианта стен вертикальной разрезки |
| Дата добавления в базу: | 01.01.2021 |
| Дата актуализации: | 01.01.2021 |
| Дата введения: | 19.09.1984 |
| Дата окончания срока действия: | 30.06.2003 |
| Разработан: | ФГНУ НПЦ Гипронисельхоз |
| Утверждён: | 16.02.1984 Минсельхоз СССР (USSR Minselkhoz 7-ЭГ) |
| Издан: | ЦИТП Госстроя СССР (CITP, Gosstroy (USSR) 1988 г. ) |

























































