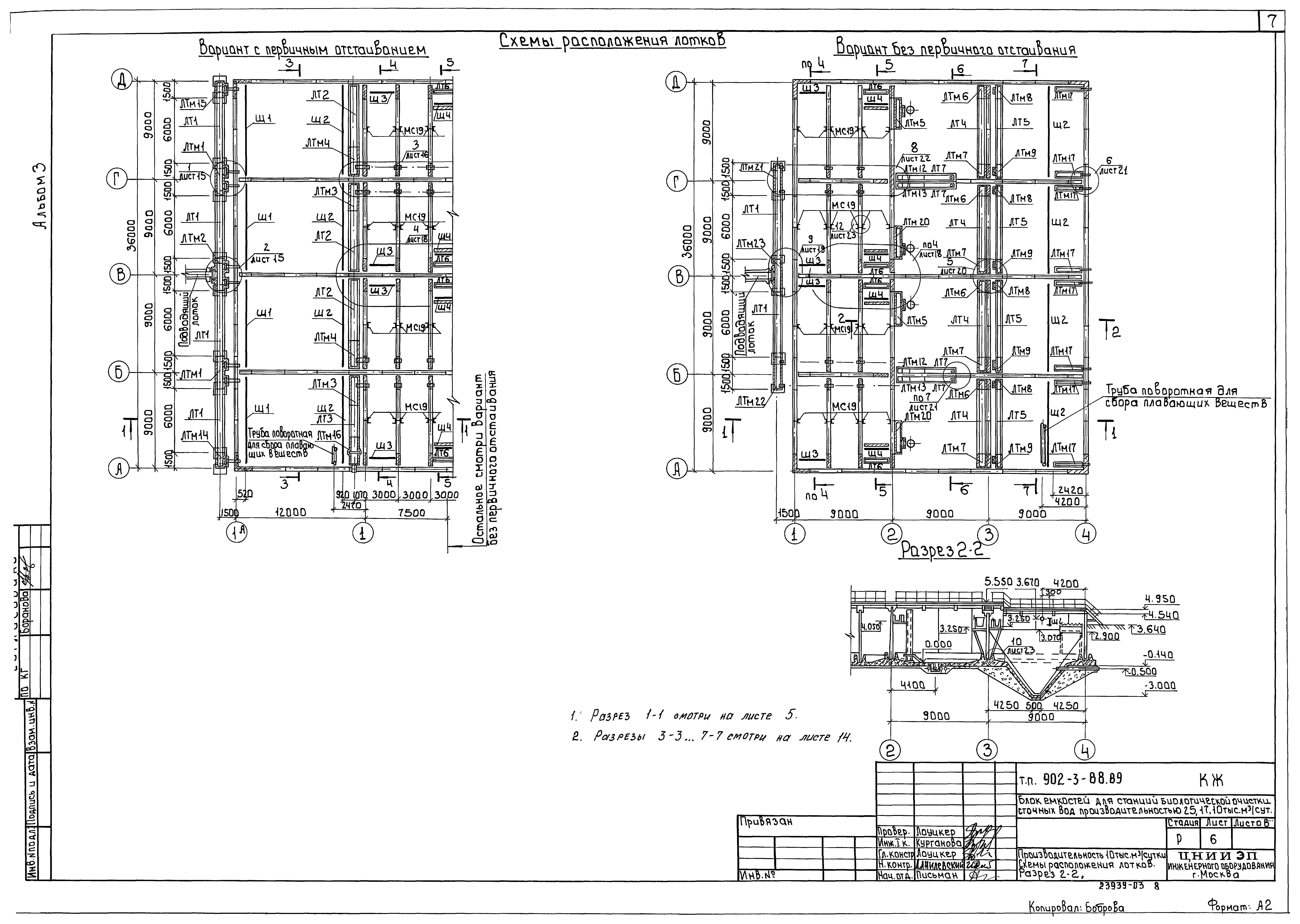
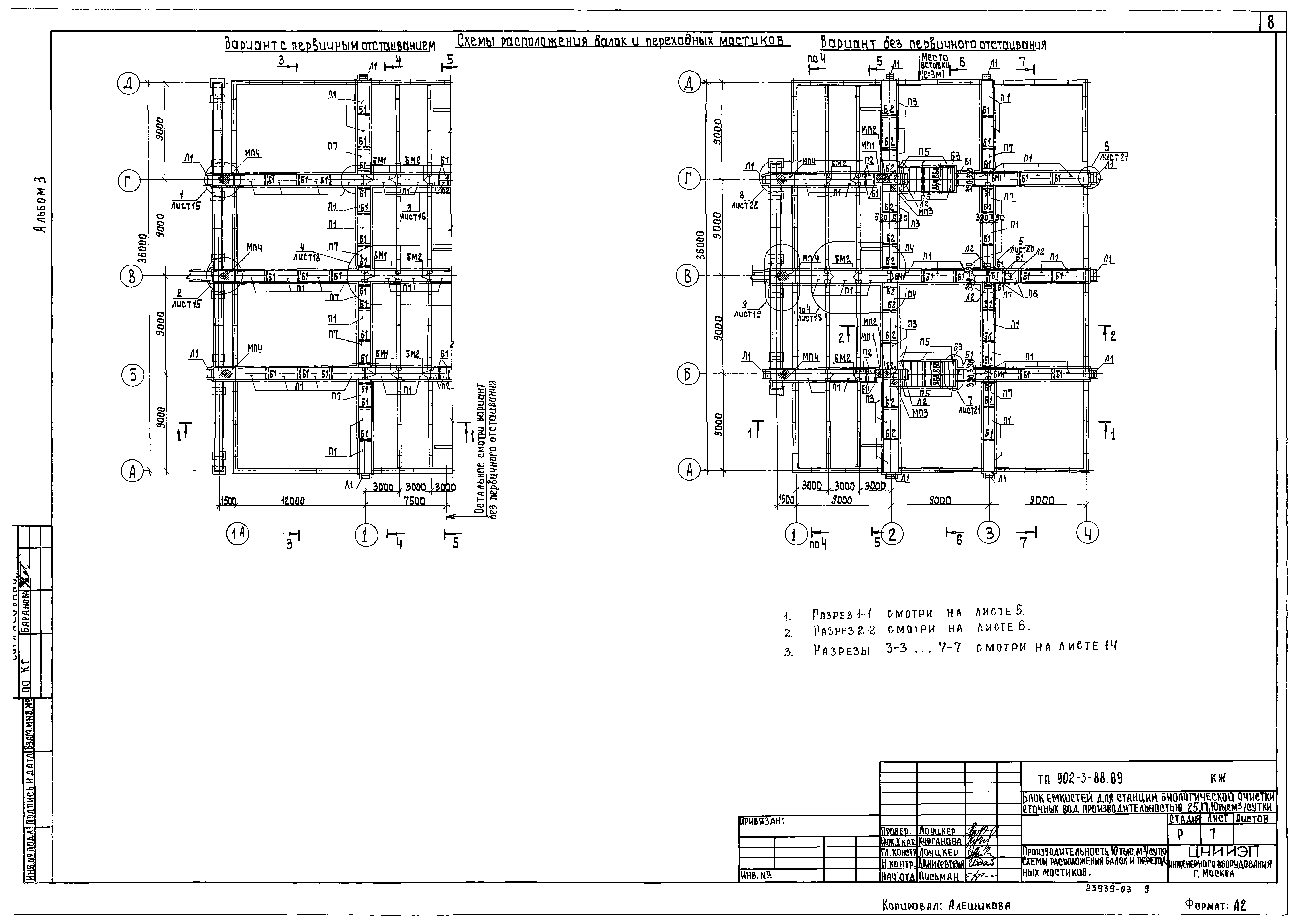
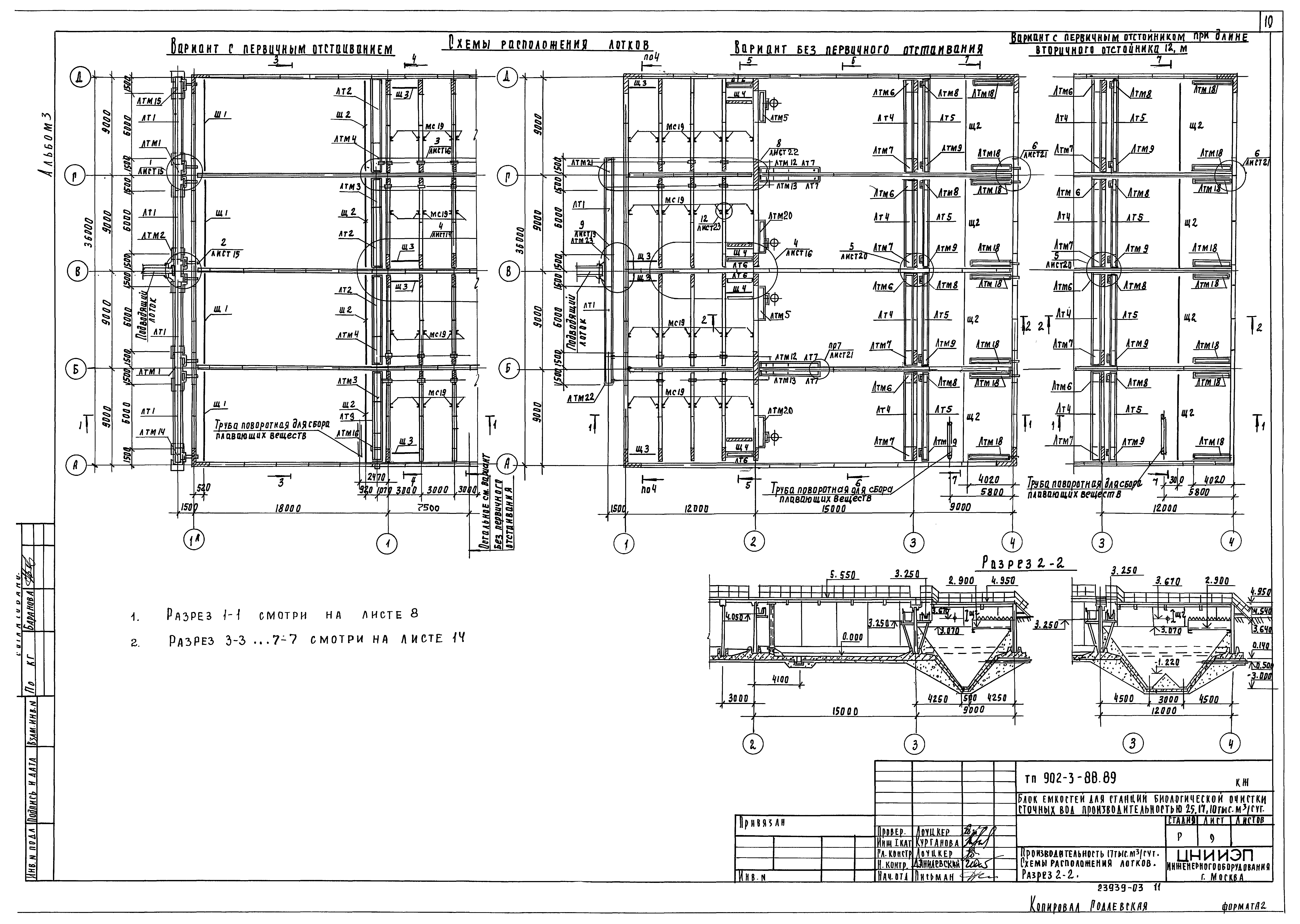
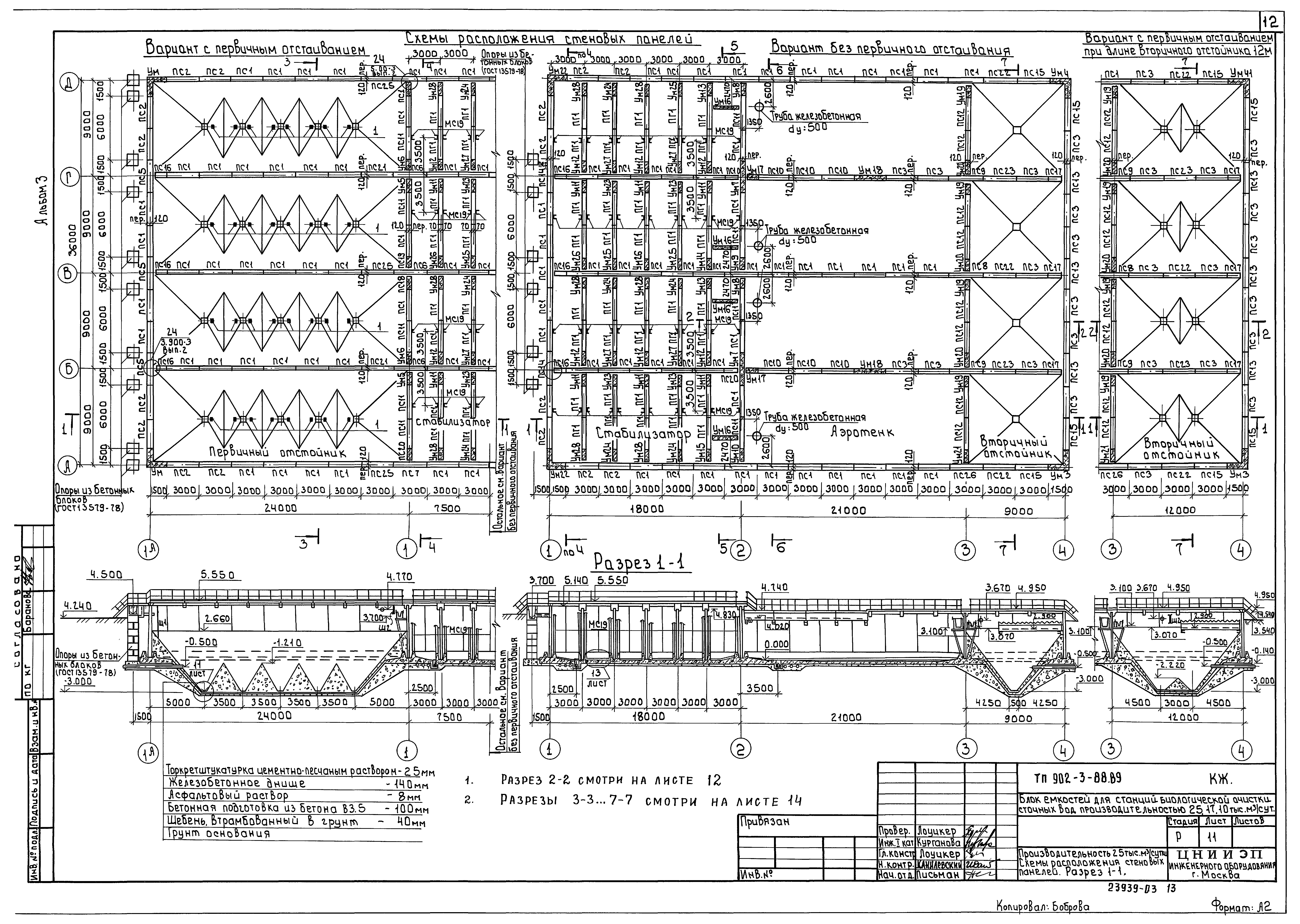
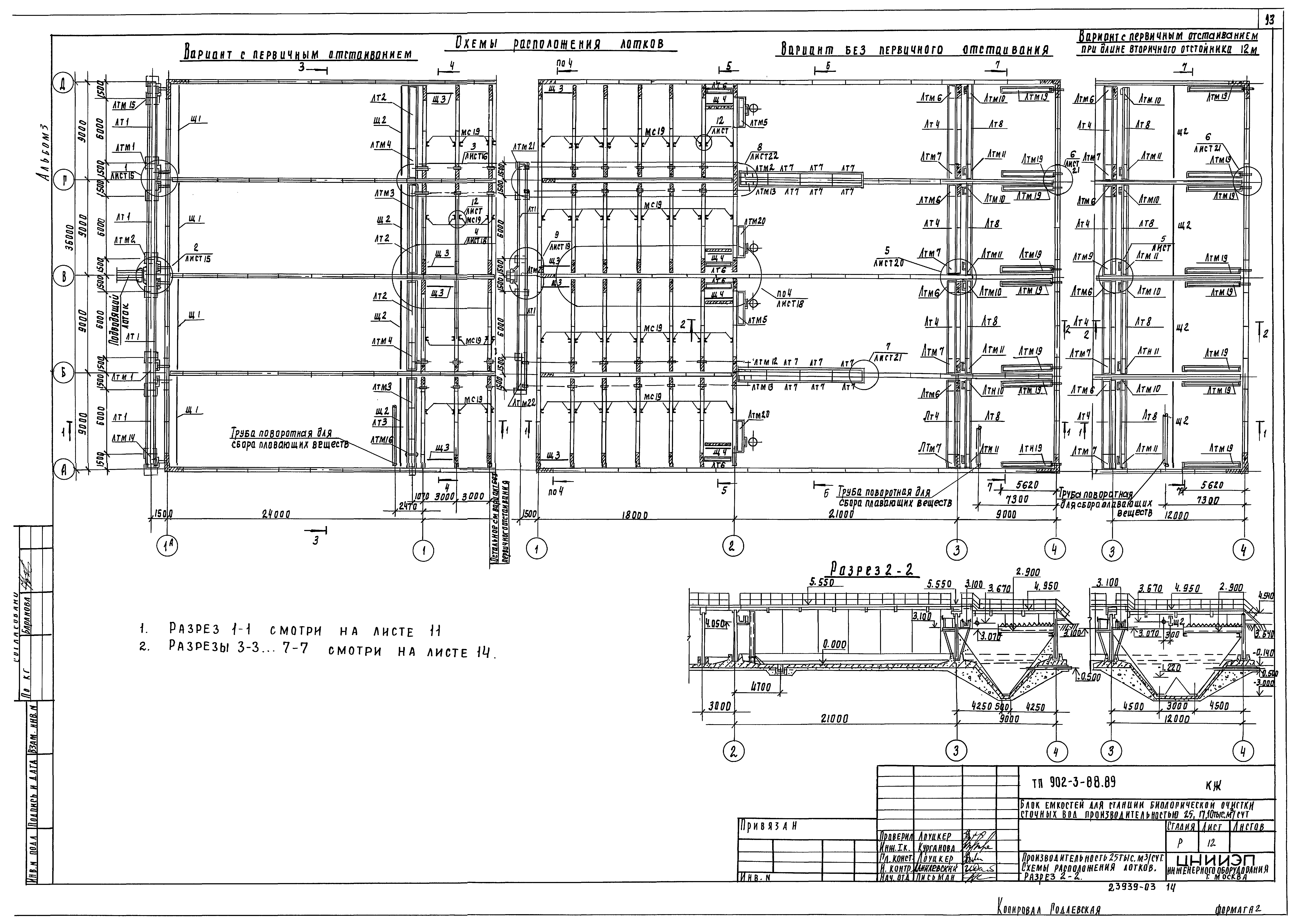
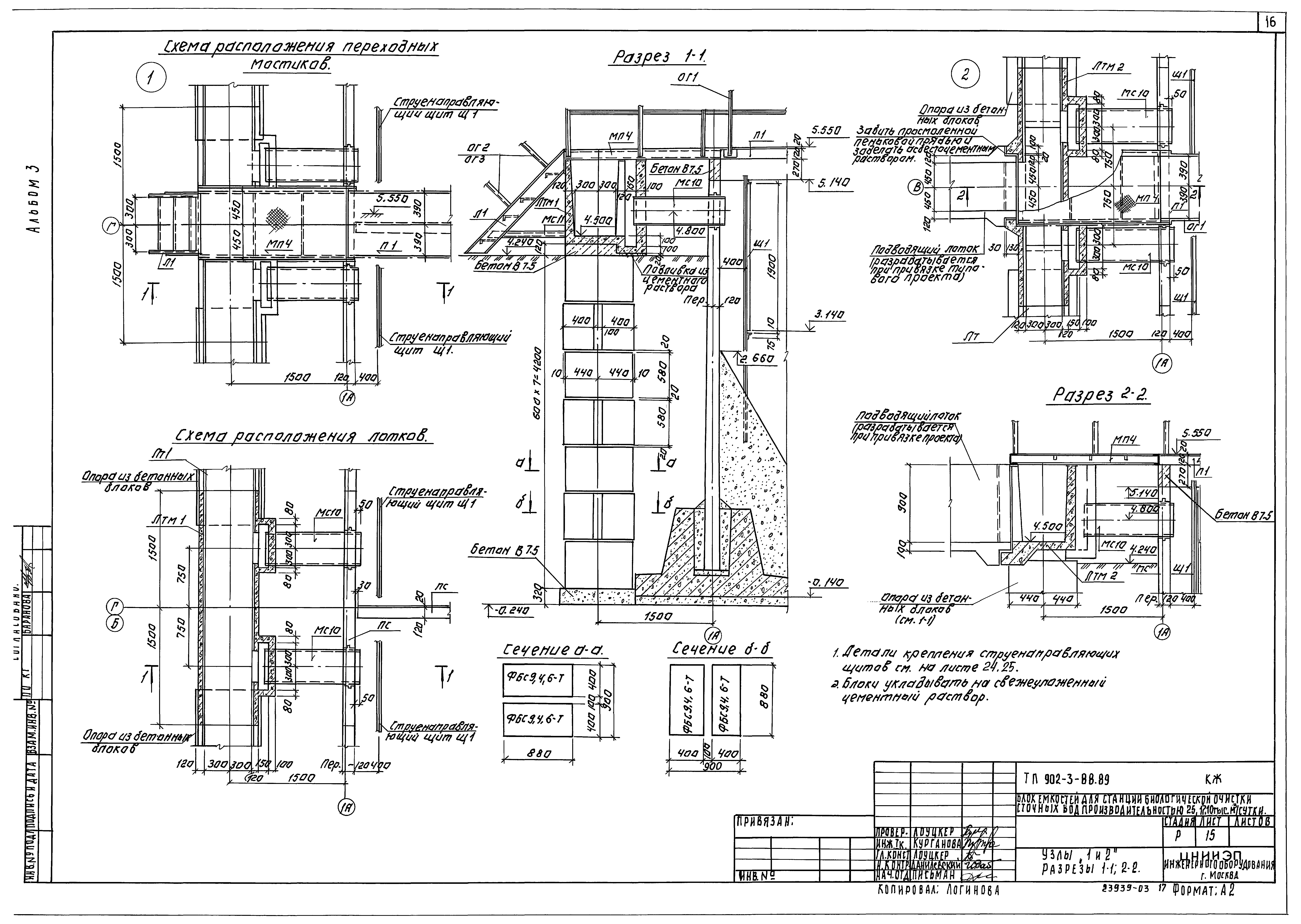
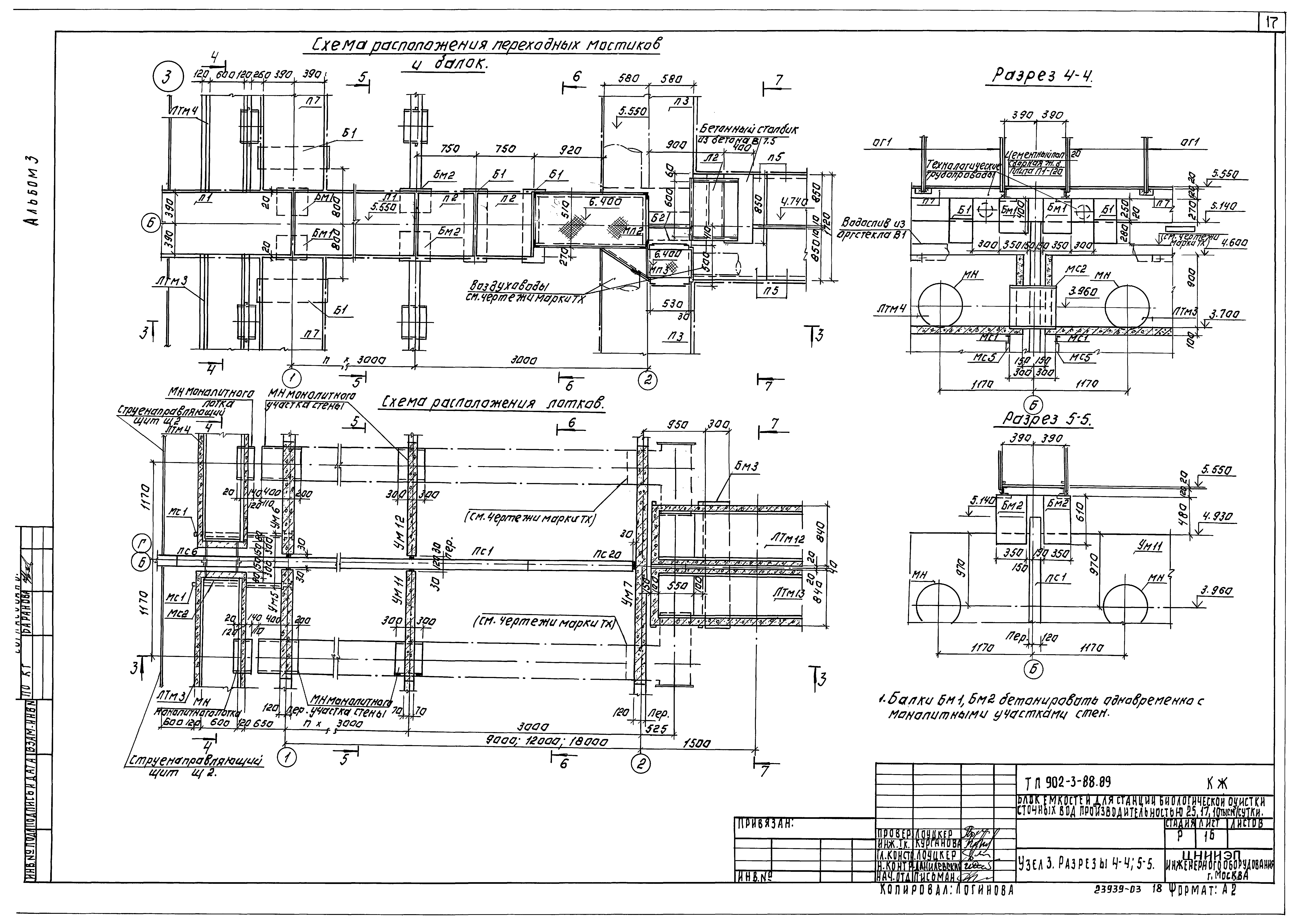
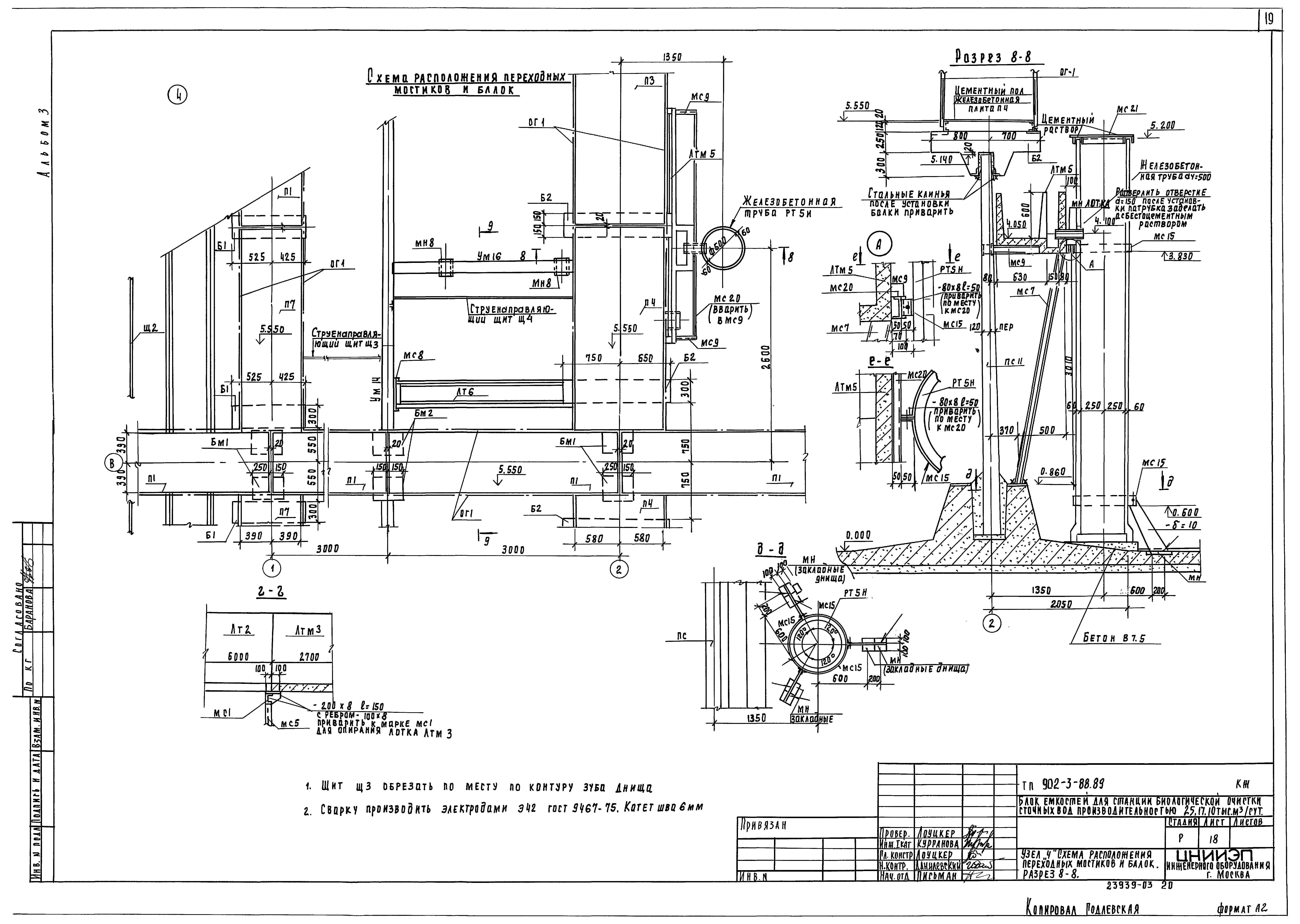
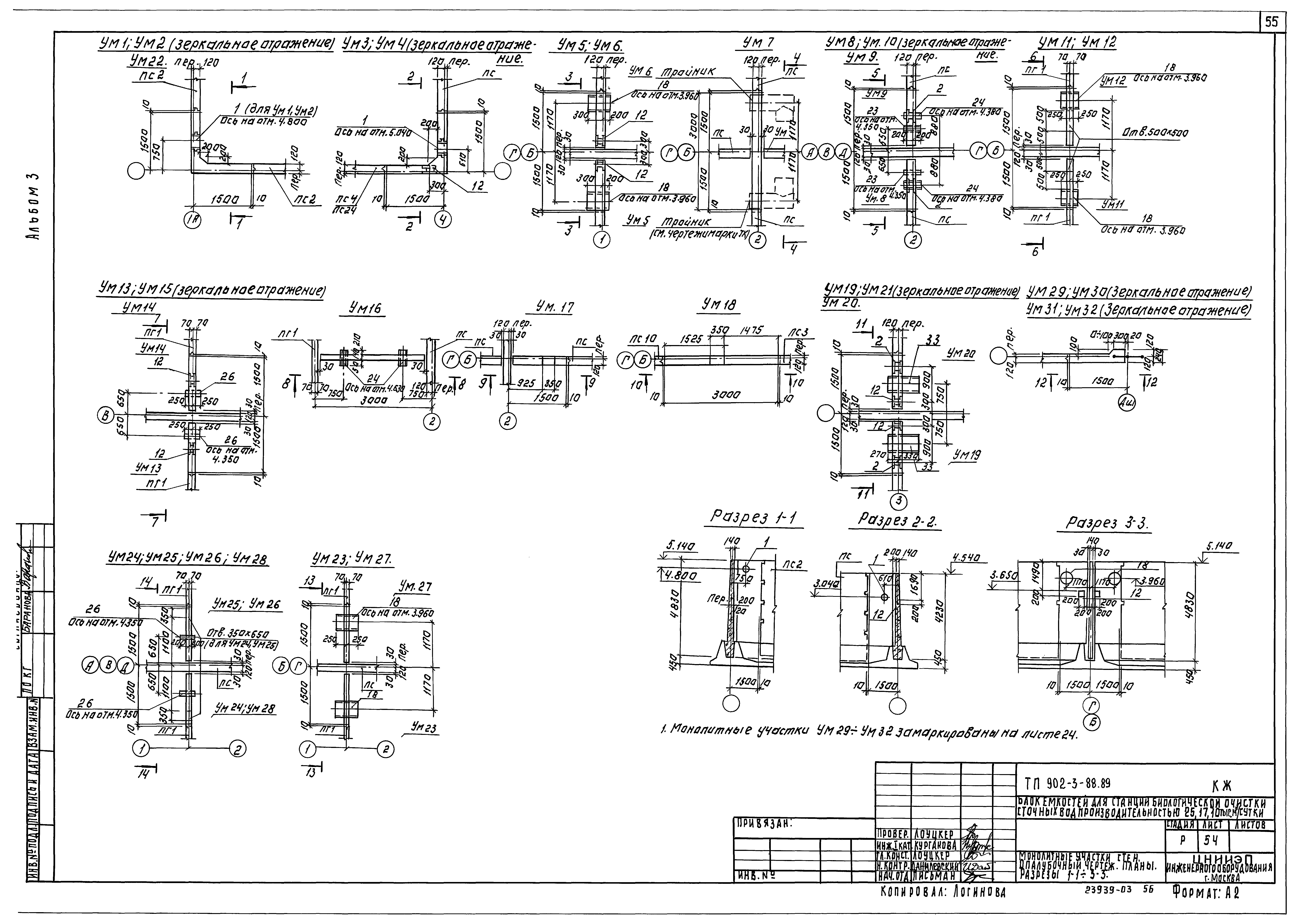
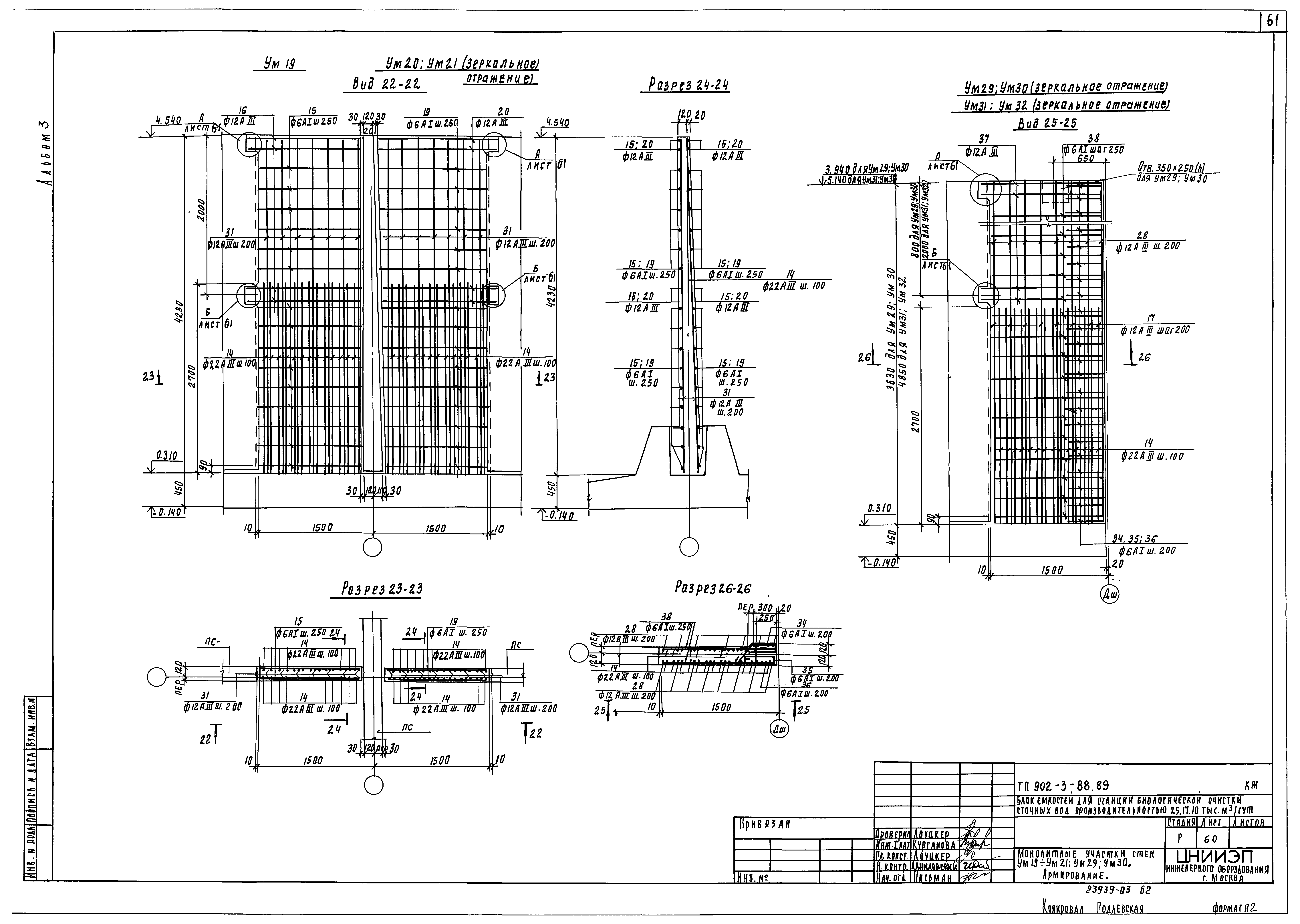
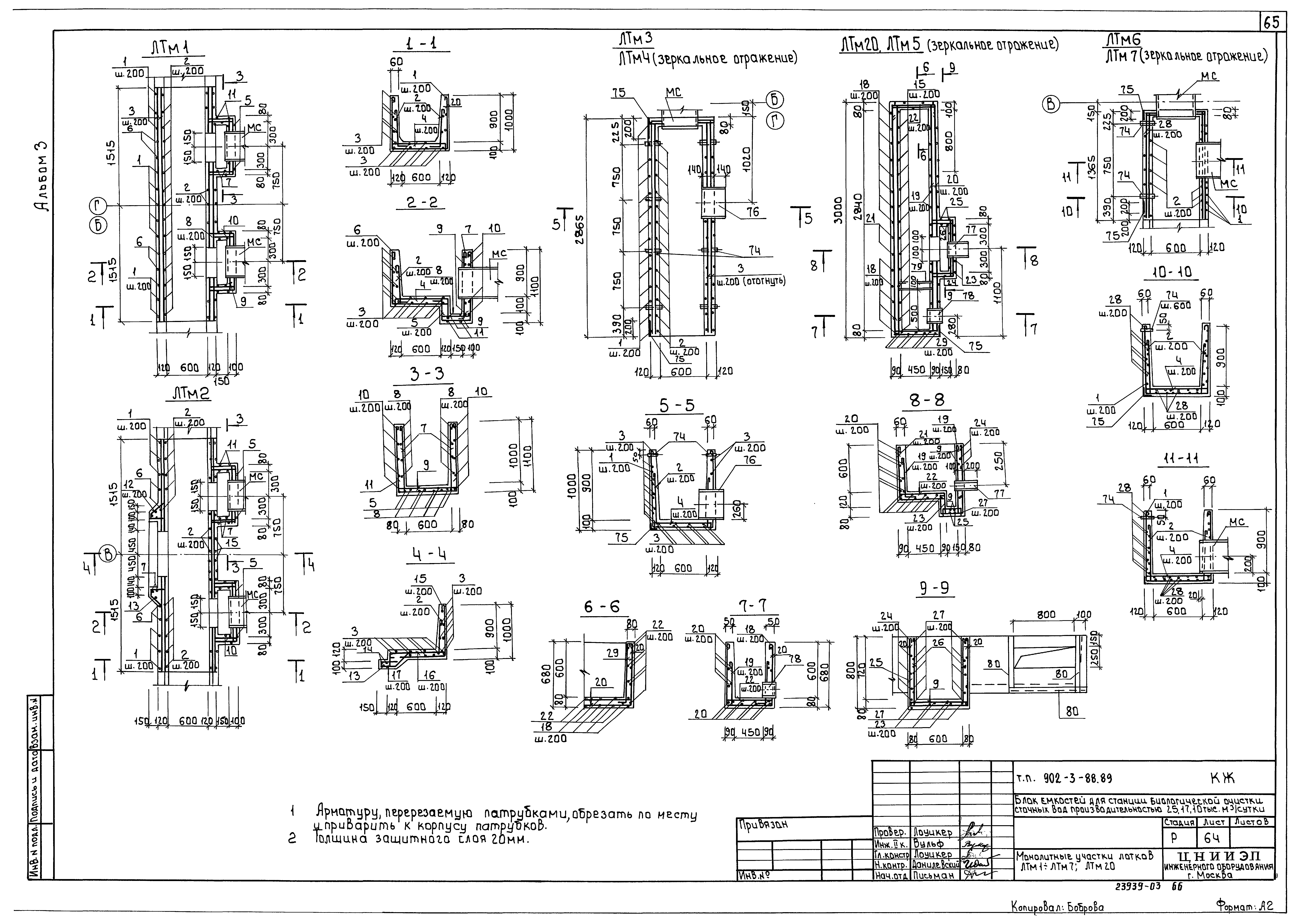
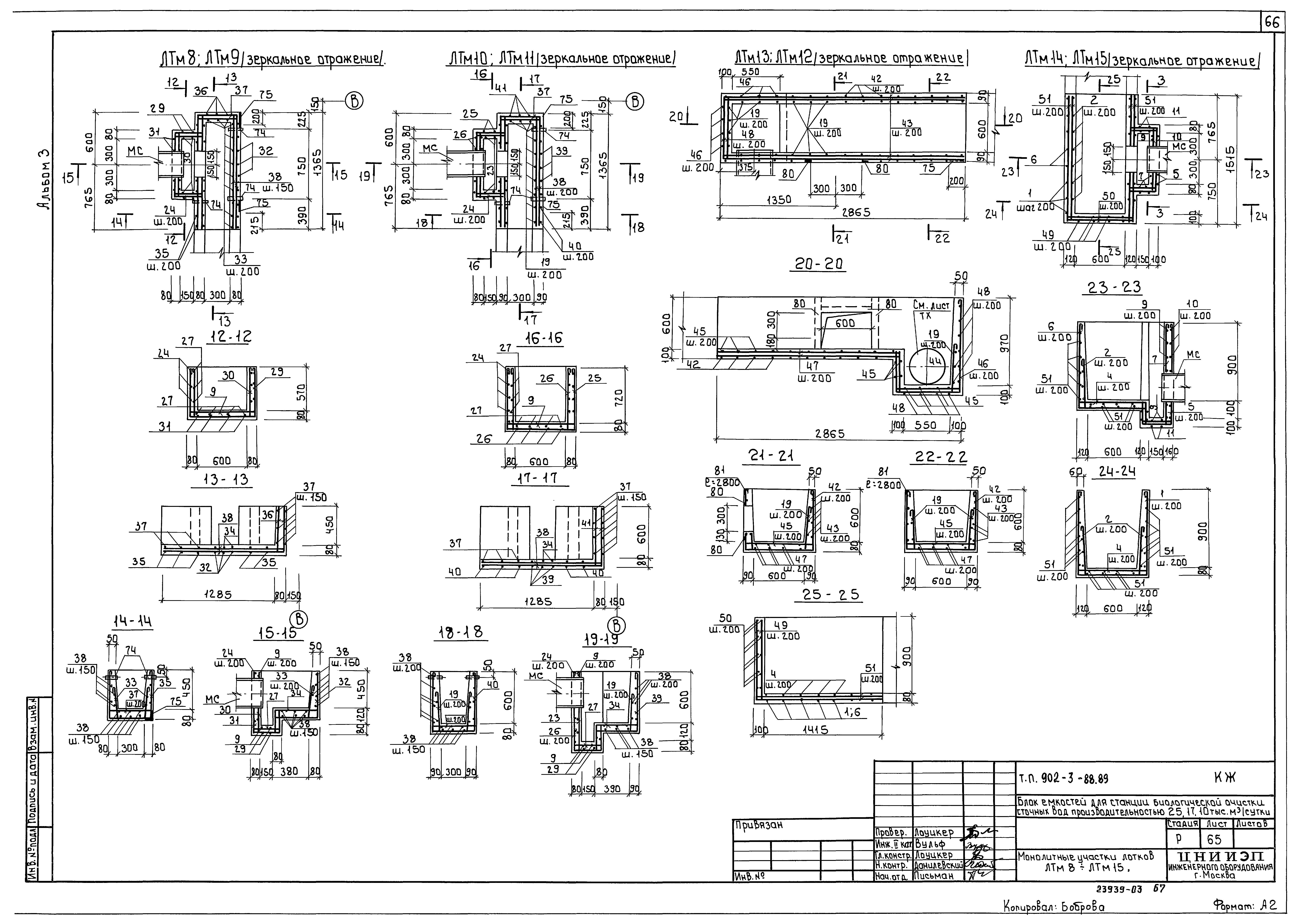
Скачать Типовой проект 902-3-88.89 Альбом 3. Конструкции железобетонныеДата актуализации: 01.01.2021
|
| Обозначение: | Типовой проект 902-3-88.89 |
| Обозначение англ: | 902-3-88.89 |
| Статус: | не определен законодательством |
| Название рус.: | Альбом 3. Конструкции железобетонные |
| Дата добавления в базу: | 01.01.2021 |
| Дата актуализации: | 01.01.2021 |
| Дата введения: | 19.07.1989 |
| Дата окончания срока действия: | 30.06.2003 |
| Разработан: | ЦНИИЭП инженерного оборудования |
| Утверждён: | 19.07.1989 Госкомархитектура (112) |
| Заменяет собой: |










































































