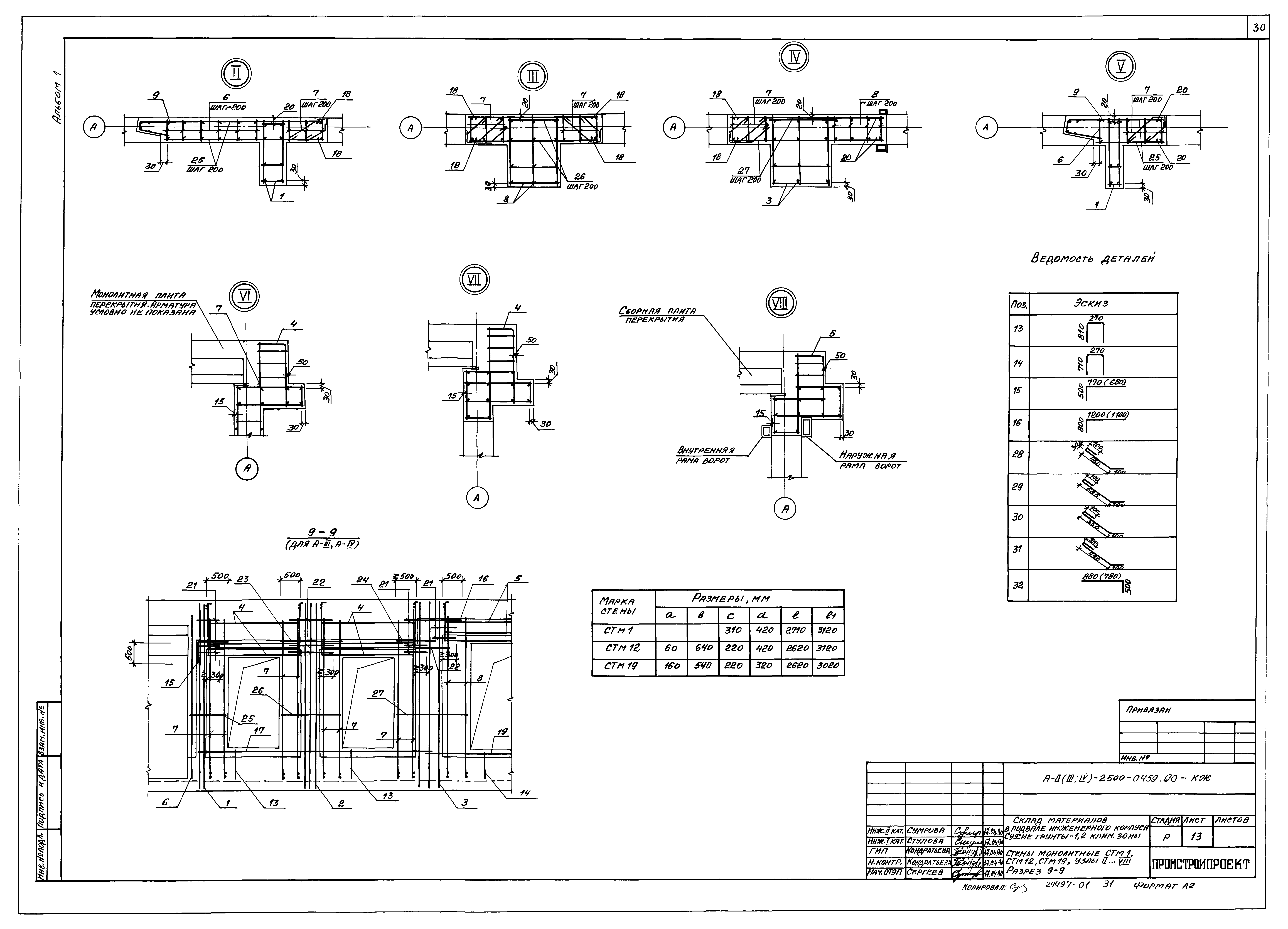
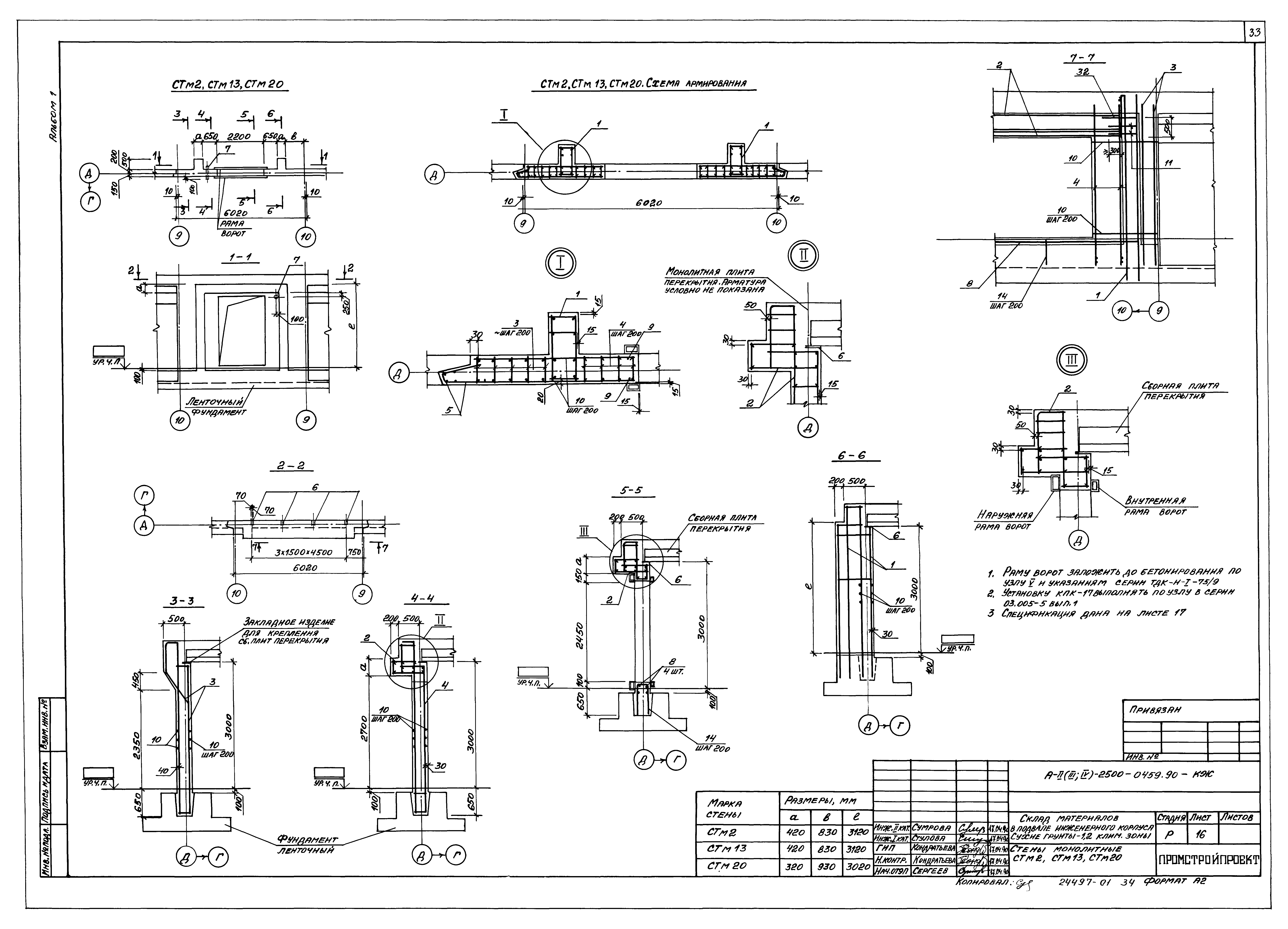
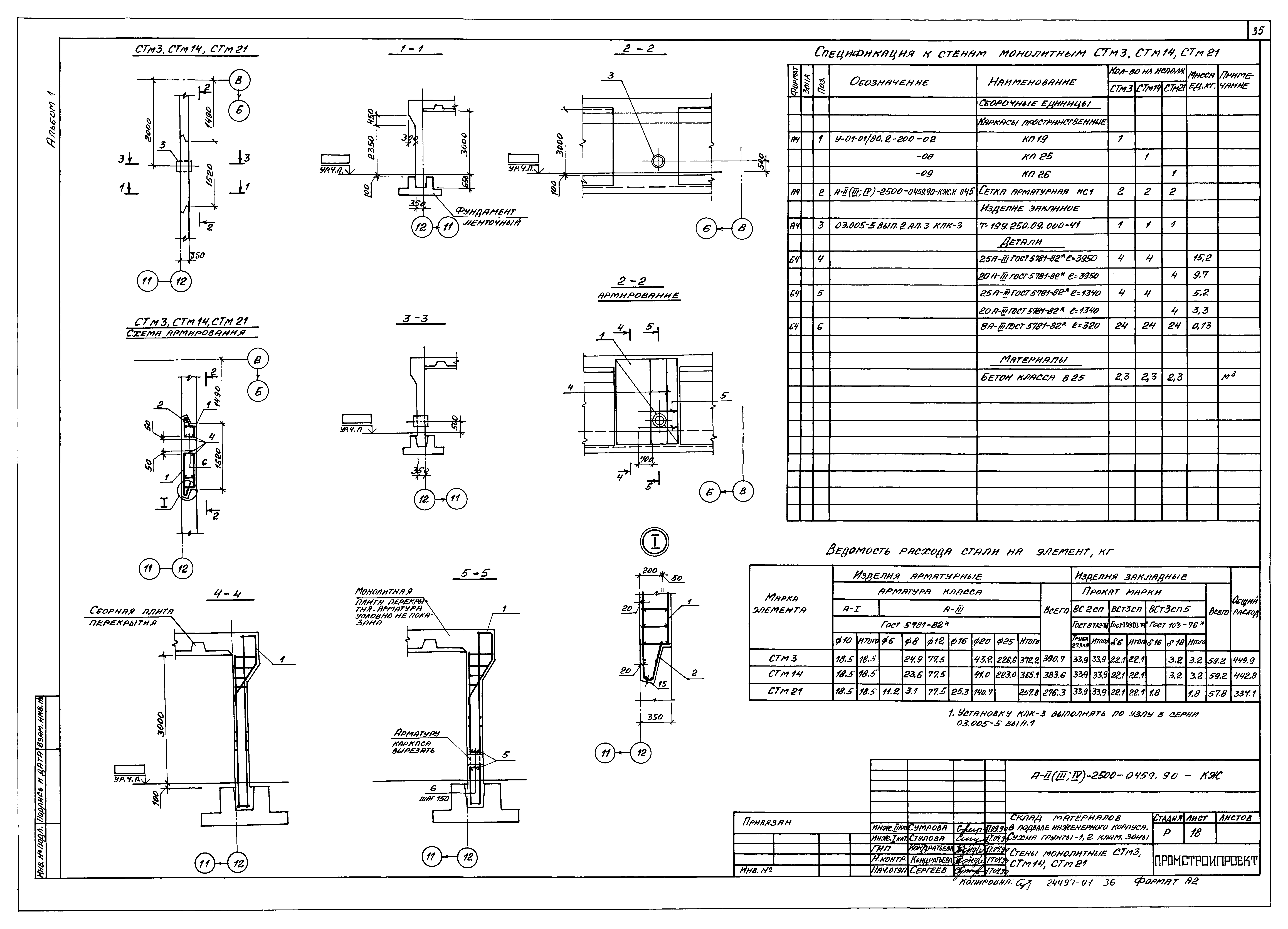
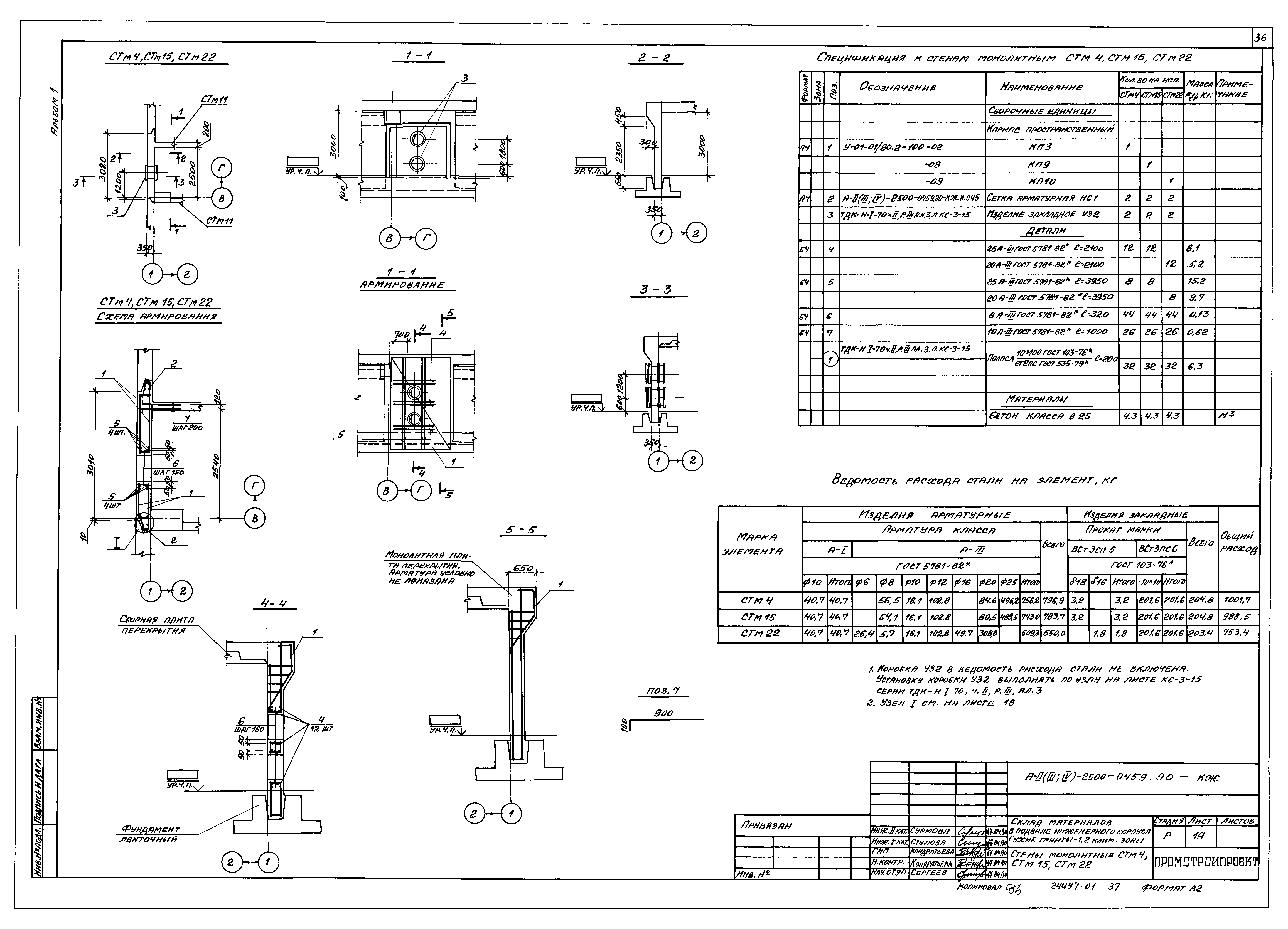
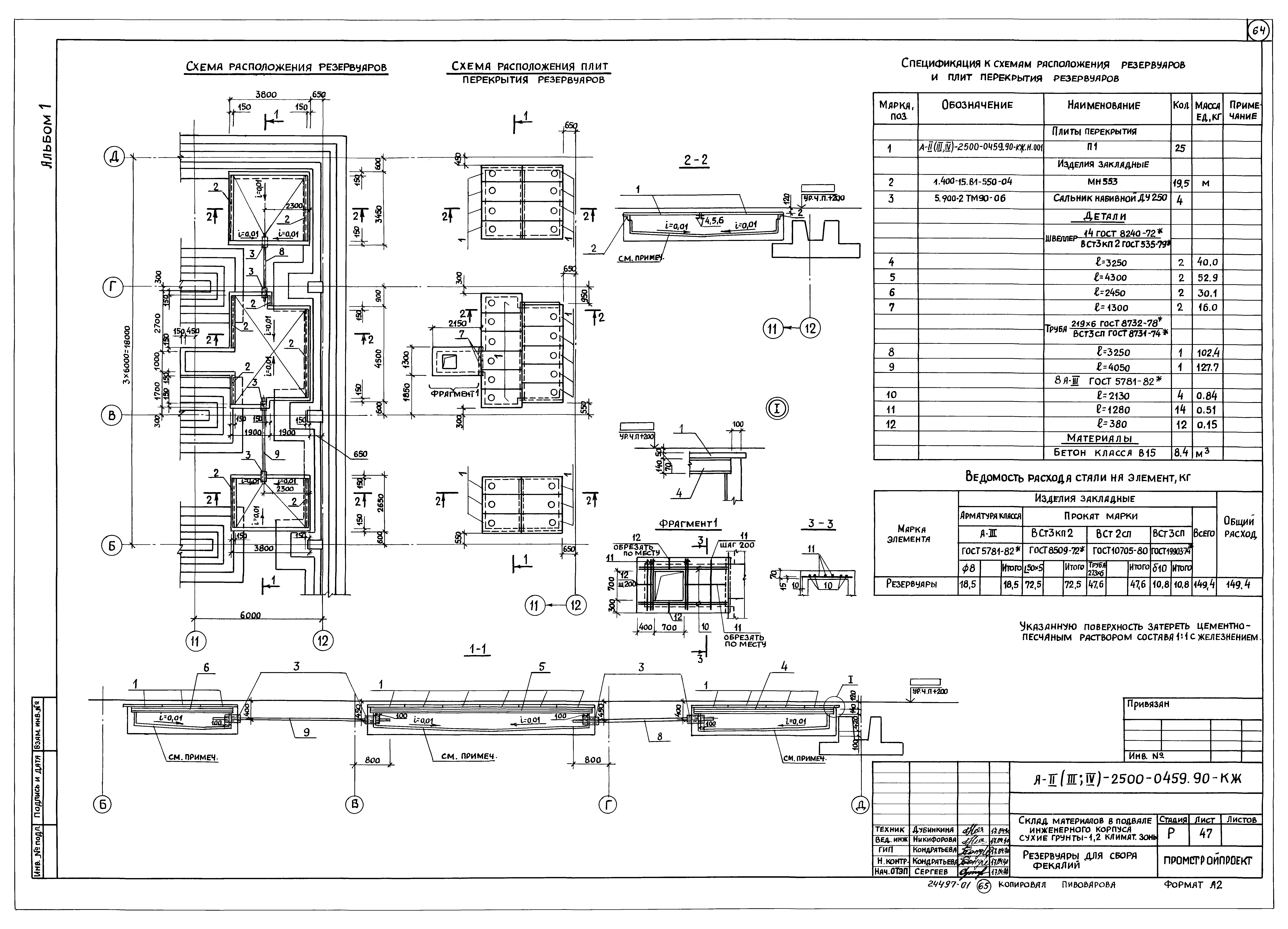
Скачать Типовые проектные решения А-II(III,IV)-2500-0459.90 Альбом 1. Пояснительная записка. Архитектурно-строительные решения. Конструкции железобетонныеДата актуализации: 01.01.2021 Типовые проектные решения А-II(III,IV)-2500-0459.90
Альбом 1. Пояснительная записка. Архитектурно-строительные решения. Конструкции железобетонные| Обозначение: | Типовые проектные решения А-II(III,IV)-2500-0459.90 | | Обозначение англ: | А-II(III,IV)-2500-0459.90 | | Статус: | не определен законодательством | | Название рус.: | Альбом 1. Пояснительная записка. Архитектурно-строительные решения. Конструкции железобетонные | | Дата добавления в базу: | 01.01.2021 | | Дата актуализации: | 01.01.2021 | | Дата введения: | 07.05.1990 | | Дата окончания срока действия: | 30.06.2003 | | Разработан: | Промстройпроект
| | Утверждён: | 07.05.1990 13 служба ГО СССР
| | Издан: | ЦИТП Госстроя СССР (CITP, Gosstroy (USSR) 1990 г. )
|
                                                               
|