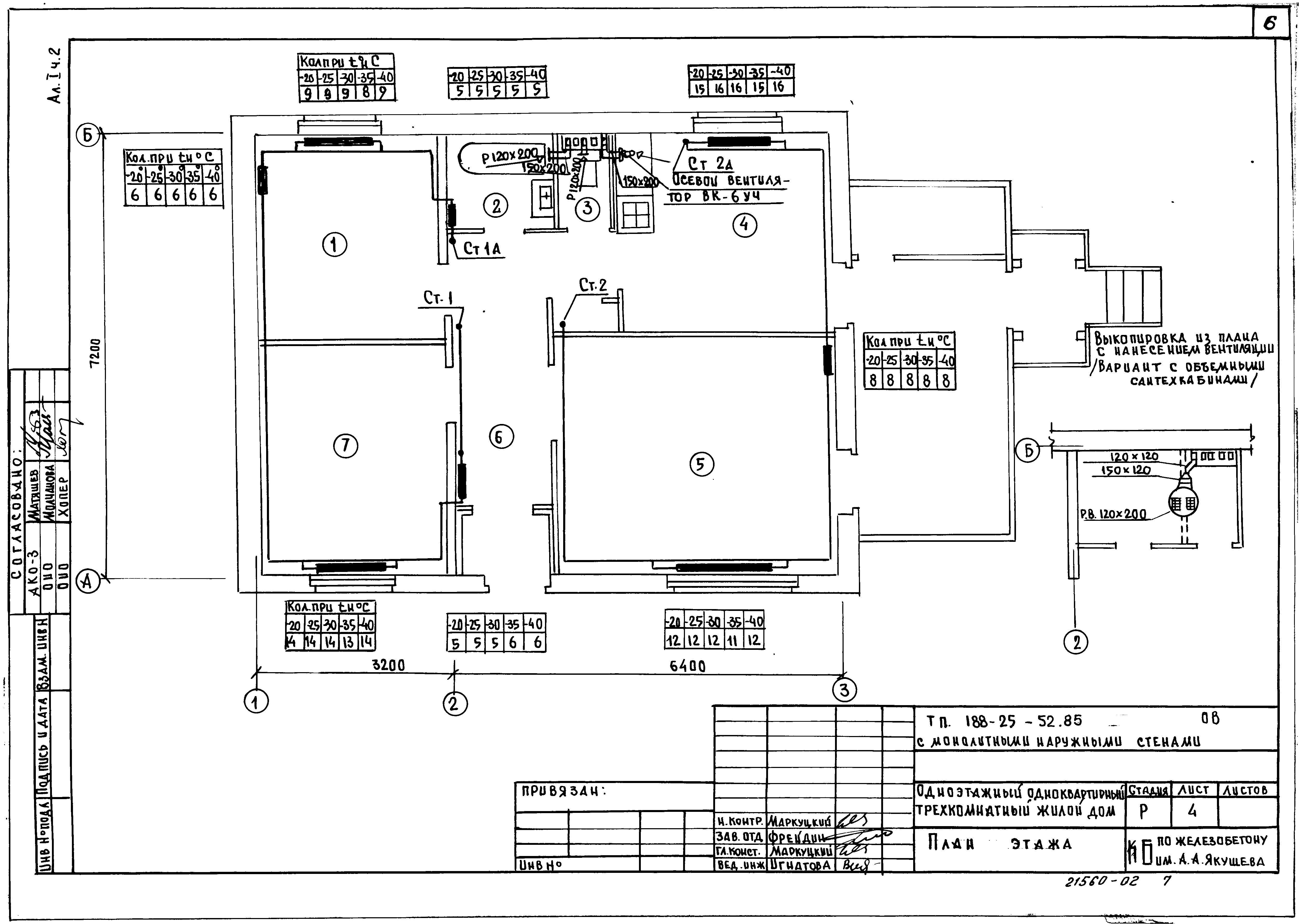
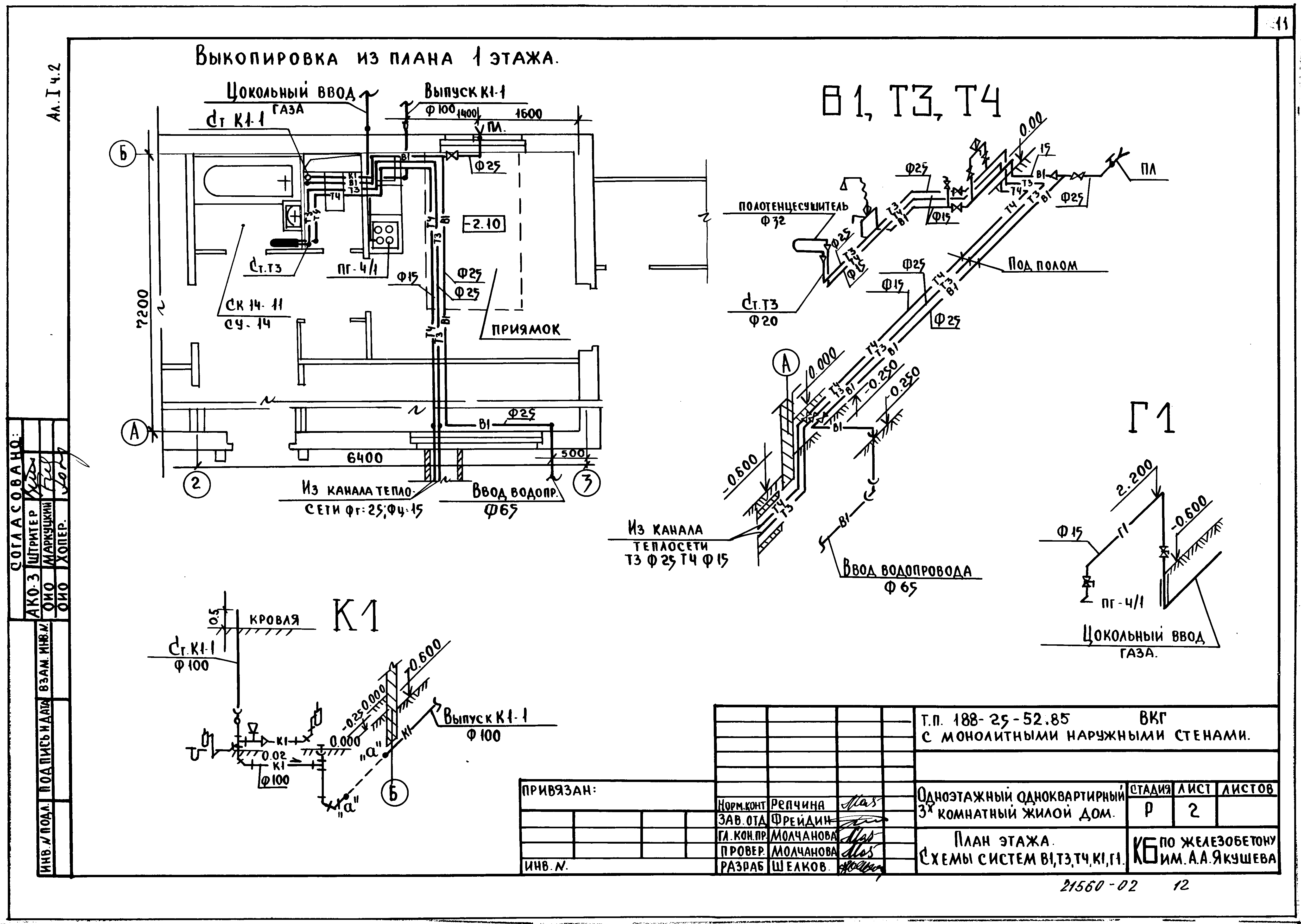
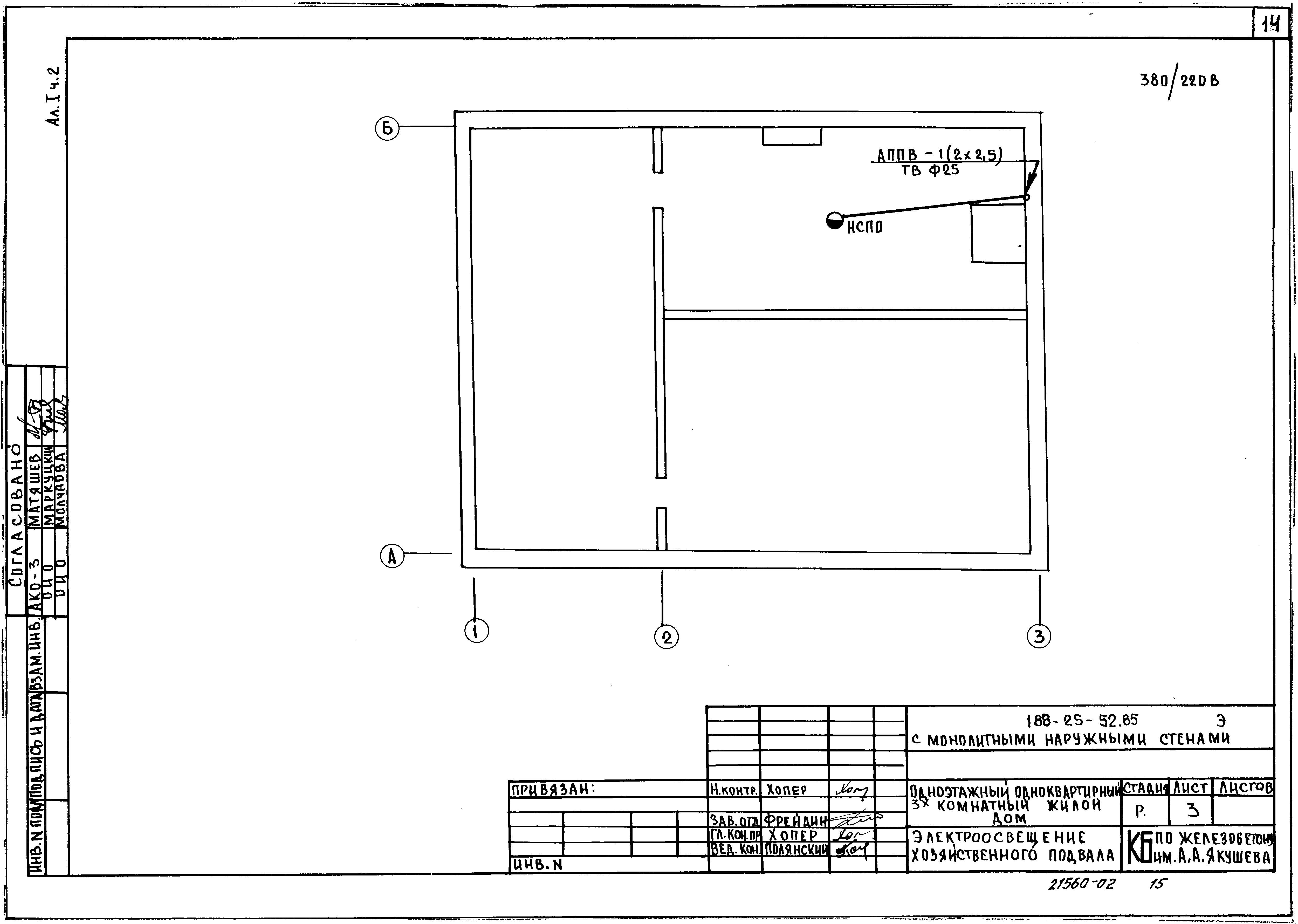
Скачать Типовой проект 188-25-52.85 Альбом I. Часть 2. Санитарно-технические чертежи и электротехнические чертежиДата актуализации: 01.01.2021
|
| Обозначение: | Типовой проект 188-25-52.85 |
| Обозначение англ: | 188-25-52.85 |
| Статус: | не определен законодательством |
| Название рус.: | Альбом I. Часть 2. Санитарно-технические чертежи и электротехнические чертежи |
| Дата добавления в базу: | 01.01.2021 |
| Дата актуализации: | 01.01.2021 |
| Дата введения: | 23.07.1985 |
| Дата окончания срока действия: | 30.06.2003 |
| Разработан: | КБ им. А.А. Якушева |
| Утверждён: | 20.05.1985 Госстрой РСФСР (Russian Federation Gosstroy 17-12/808) |


















