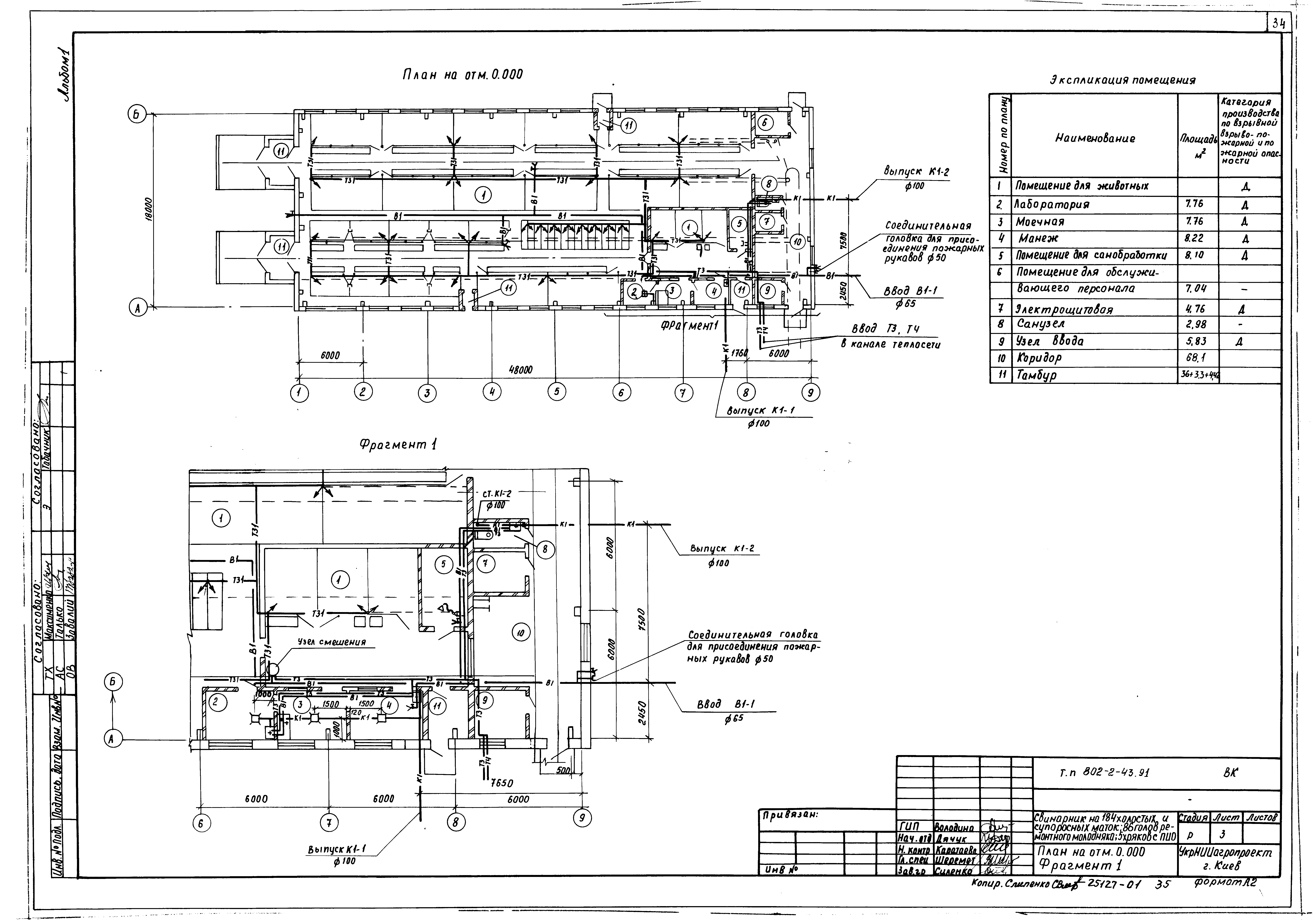
Скачать Типовой проект 802-2-43.91 Альбом 1. Пояснительная записка. Технология производства. Архитектурно-строительные решения. Конструкции металлические. Внутренние водопровод и канализация. Отопление и вентиляция. Силовое электрооборудование и электроосвещение. Связь и сигнализацияДата актуализации: 01.01.2021 Типовой проект 802-2-43.91
Альбом 1. Пояснительная записка. Технология производства. Архитектурно-строительные решения. Конструкции металлические. Внутренние водопровод и канализация. Отопление и вентиляция. Силовое электрооборудование и электроосвещение. Связь и сигнализация| Обозначение: | Типовой проект 802-2-43.91 | | Обозначение англ: | 802-2-43.91 | | Статус: | действует | | Название рус.: | Альбом 1. Пояснительная записка. Технология производства. Архитектурно-строительные решения. Конструкции металлические. Внутренние водопровод и канализация. Отопление и вентиляция. Силовое электрооборудование и электроосвещение. Связь и сигнализация | | Дата добавления в базу: | 01.01.2021 | | Дата актуализации: | 01.01.2021 | | Дата введения: | 24.10.1991 | | Разработан: | УкрНИИагропроект
| | Утверждён: | 24.10.1991 Главагропромнаучпроект Минсельхозпрода СССР (Glavagropromnauchproject, USSR Minselkhozprod 073-3/179)
| | Издан: | ЦИТП Госстроя СССР (CITP, Gosstroy (USSR) 1992 г. )
|
                                                  
|