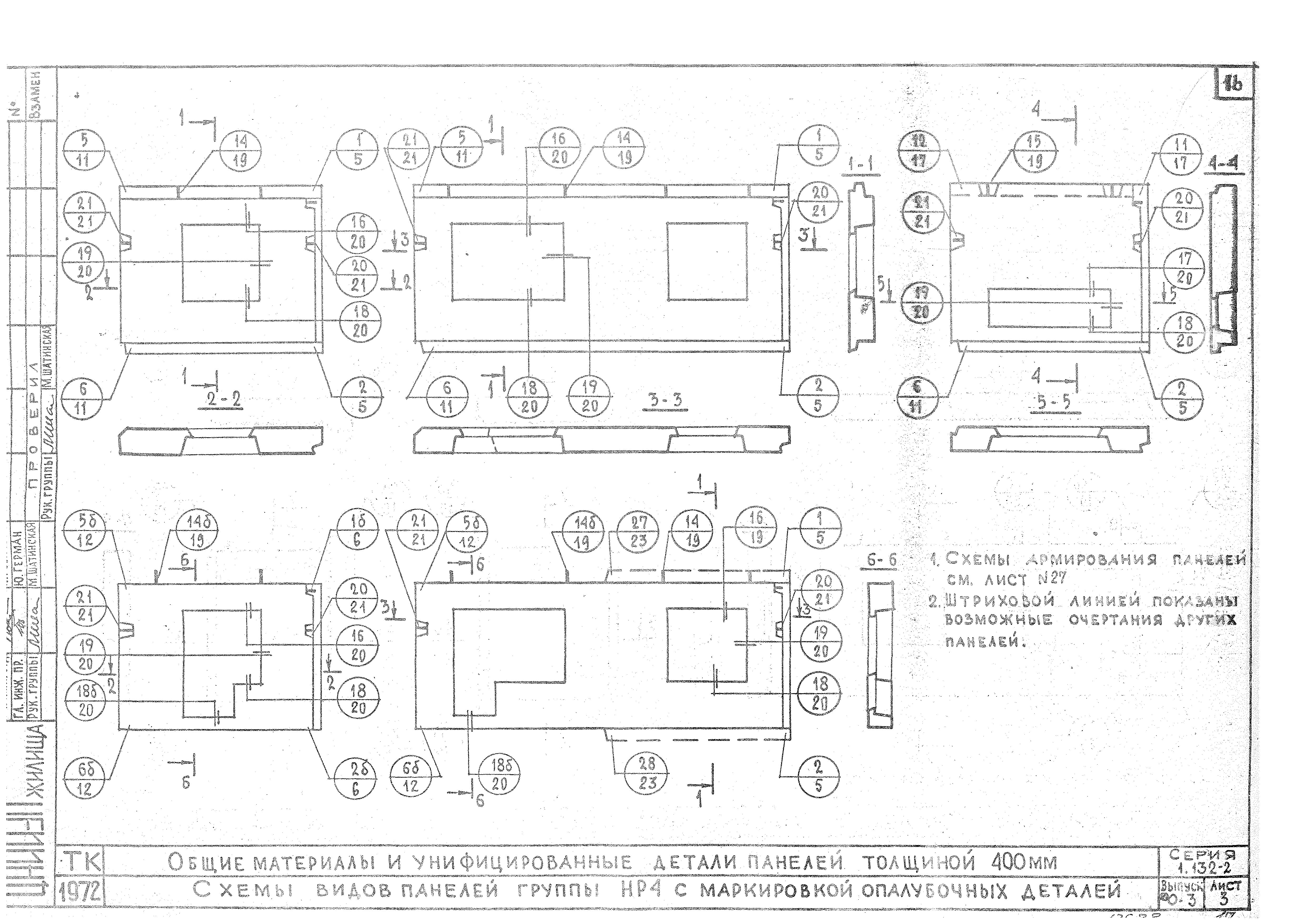
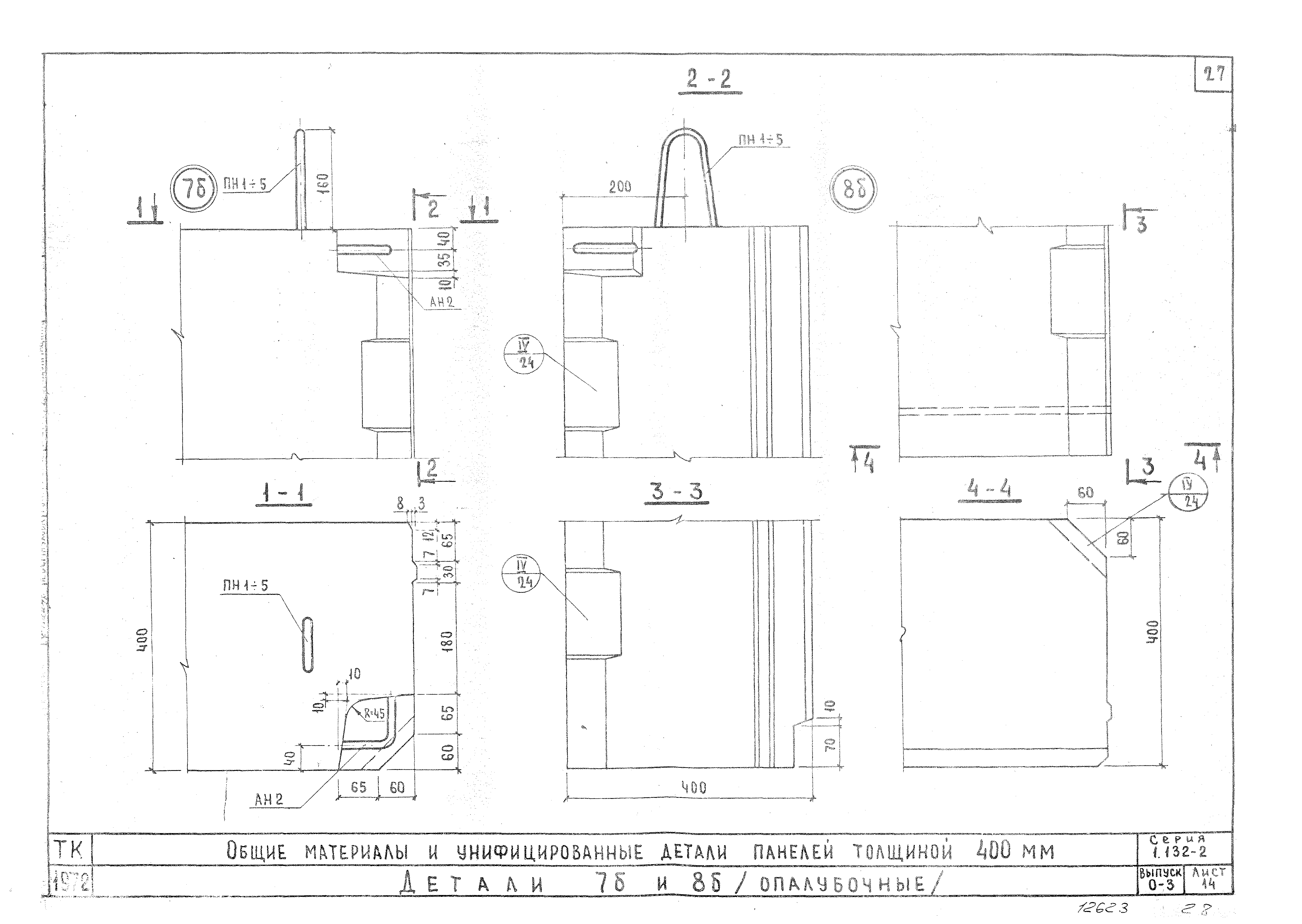
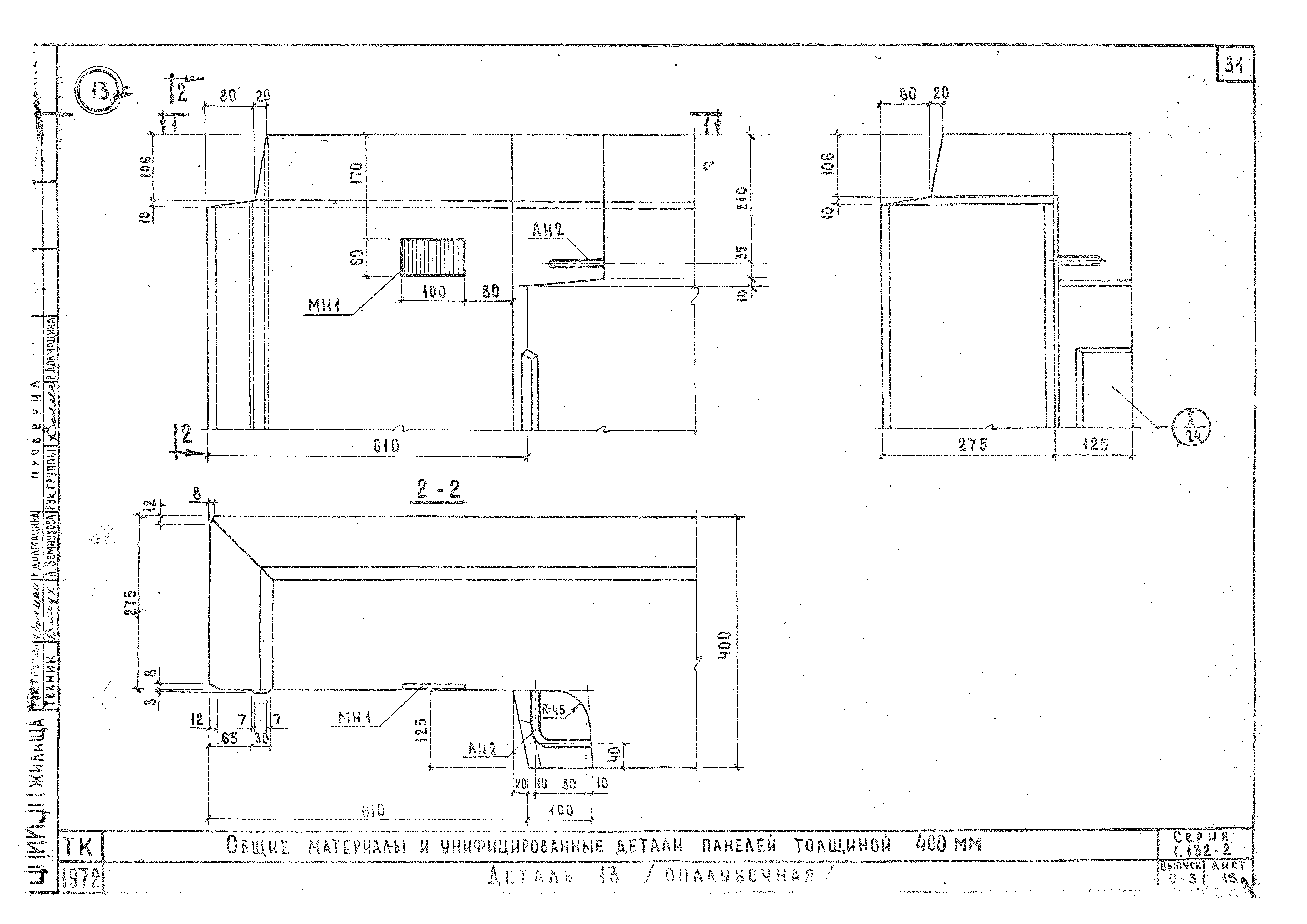
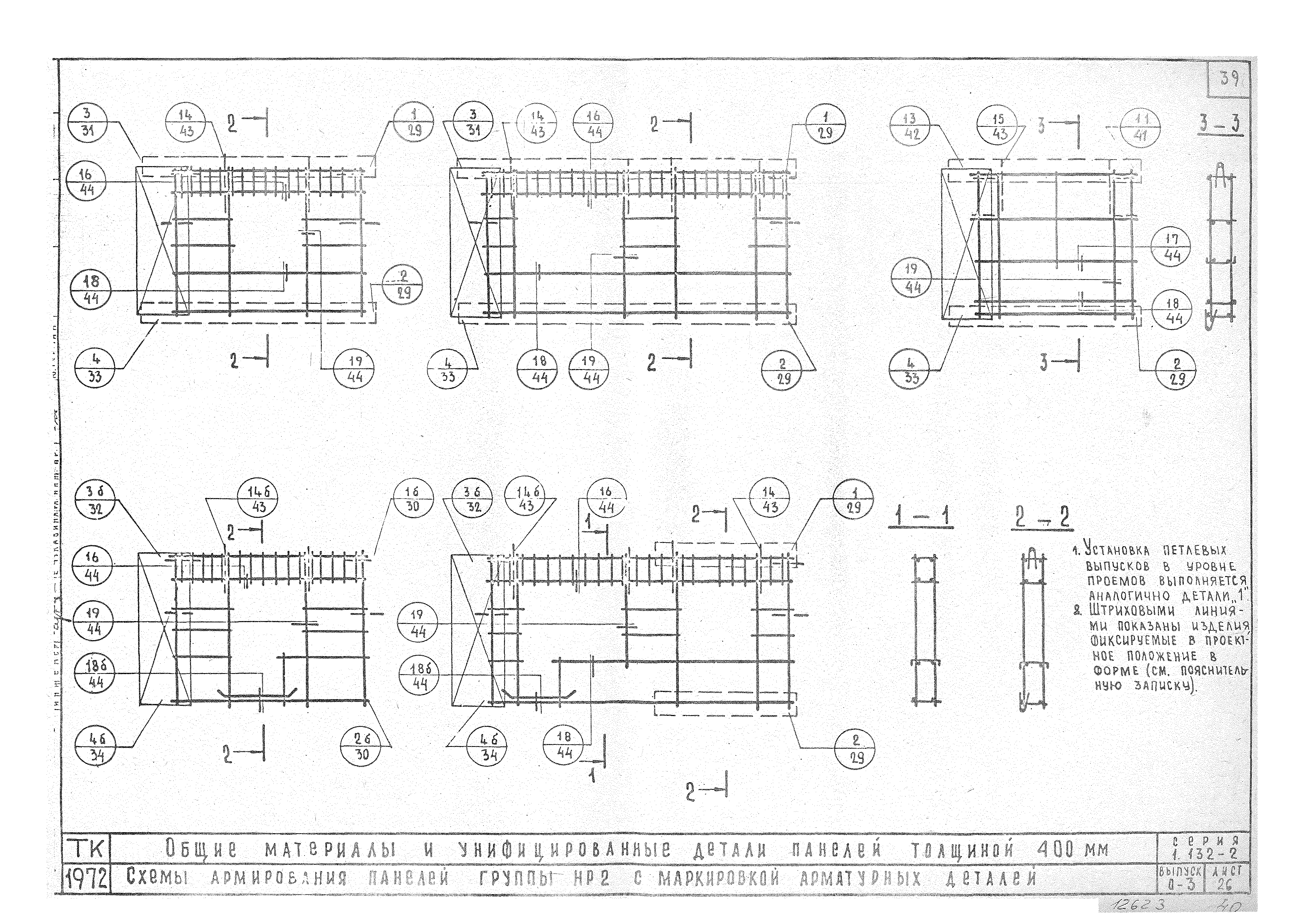
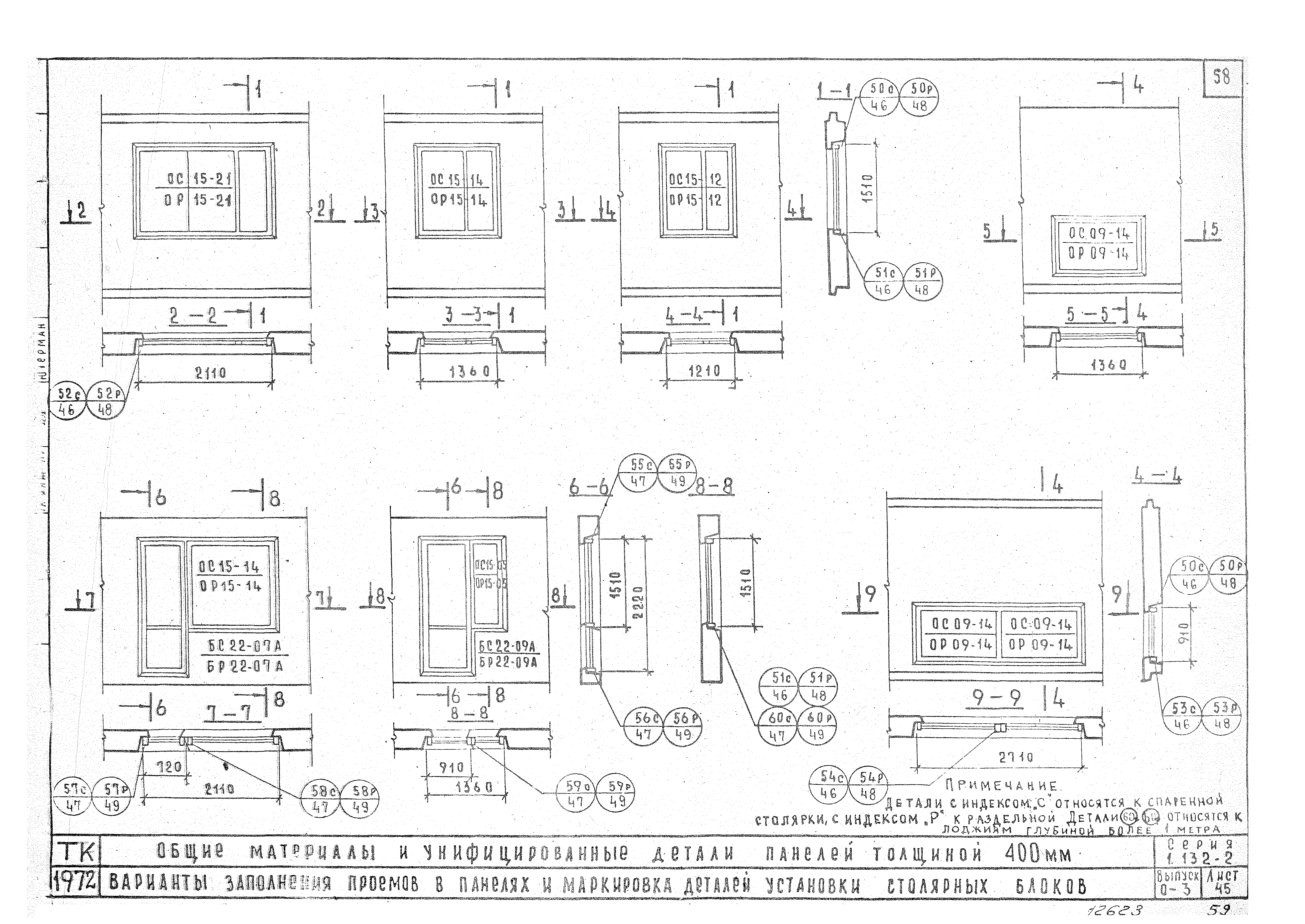
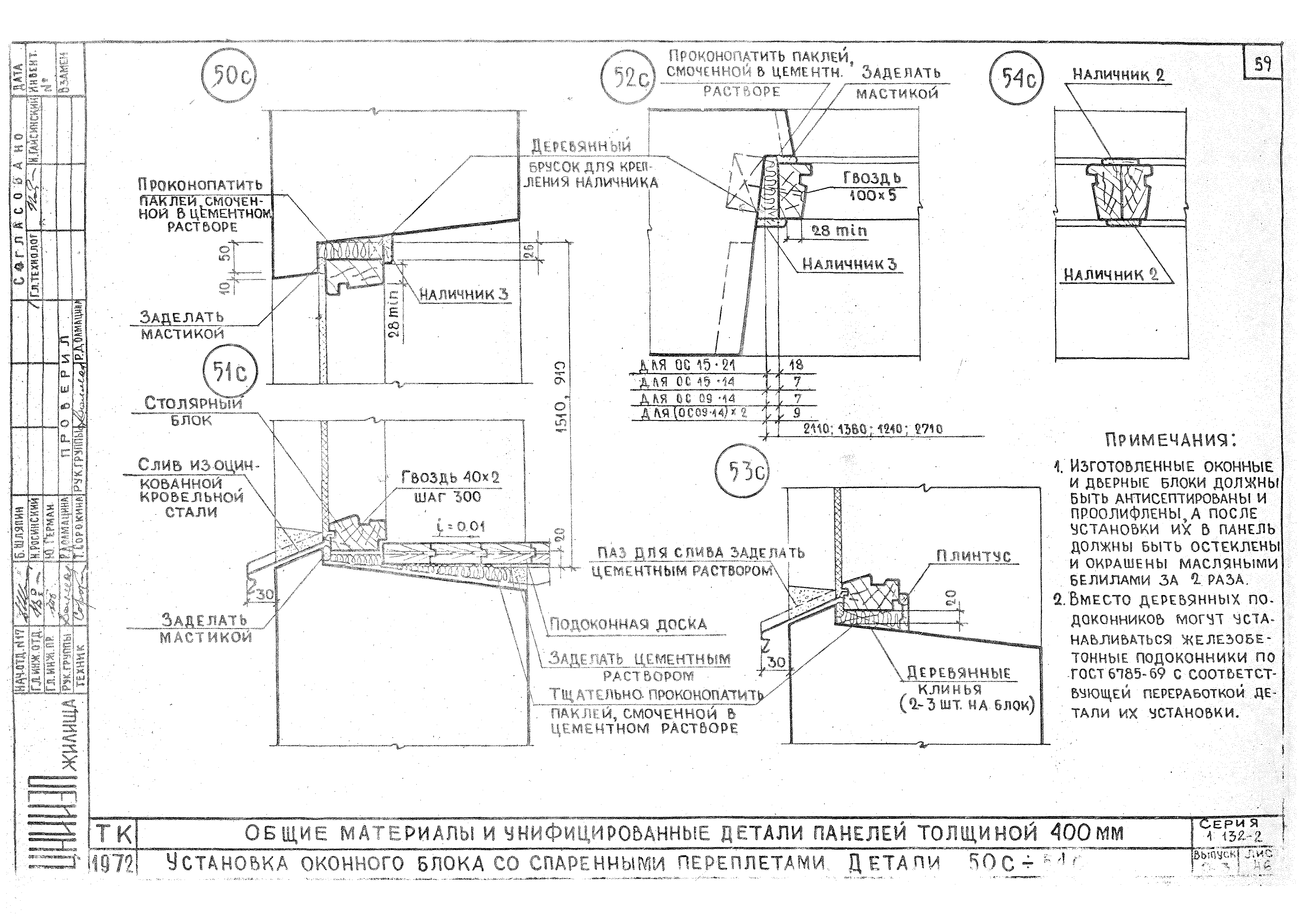
Скачать Серия 1.132-2 Выпуск 0-3 Общие материалы и унифицированные детали панелей толщиной 400 ммДата актуализации: 01.01.2021 Серия 1.132-2
Выпуск 0-3 Общие материалы и унифицированные детали панелей толщиной 400 мм| Обозначение: | Серия 1.132-2 | | Обозначение англ: | Series 1.132-2 | | Статус: | не действует | | Название рус.: | Выпуск 0-3 Общие материалы и унифицированные детали панелей толщиной 400 мм | | Дата добавления в базу: | 01.01.2021 | | Дата актуализации: | 01.01.2021 | | Разработан: | ЦНИИЭП жилища
| | Утверждён: | 19.10.1973 Госгражданстрой СССР (1.132-2)
|
                                                                
|