| Обозначение: |  ГОСТ IEC 60269-4-2025 |
| Статус: | принят |
| Название рус.: | Предохранители плавкие низковольтные. Часть 4. Дополнительные требования к плавким вставкам для защиты полупроводниковых устройств |
| Название англ.: | Low-voltage fuses. Part 4. Supplementary requirements for fuse-links for the protection of semiconductor devices |
| Дата актуализации текста: | 01.01.2026 |
| Дата актуализации описания: | 01.01.2026 |
| Дата регистрации: | 31.10.2025 |
| Дата издания: | 25.12.2025 |
| Дата введения: | 01.12.2026 |
| Взамен: | ГОСТ IEC 60269-4-2016;ГОСТ IEC 60269-4-1-2011 |
| Аутентичен стандартам: | IEС 60269-4(2024) |
| Нормативные ссылки: | ISO 3;IEC 60269-1(2024);IEC 60269-2(2013);IEC 60269-2(2013)/Amd.1(2016, IEC 60269-2(2013)/Amd.2(2024);IEC TR 60269-5(2014);IEC TR 60269-5(2014)/Amd.1(2020;IEC 60417 |
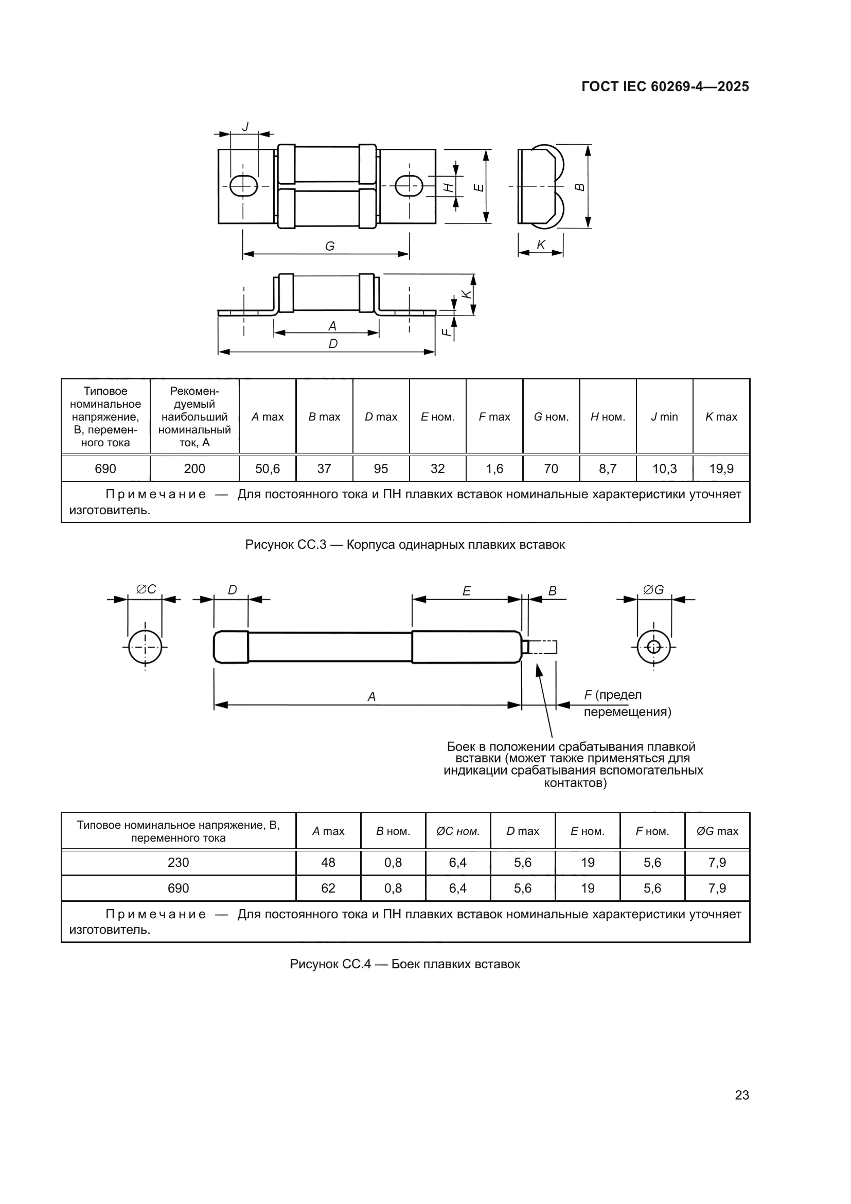
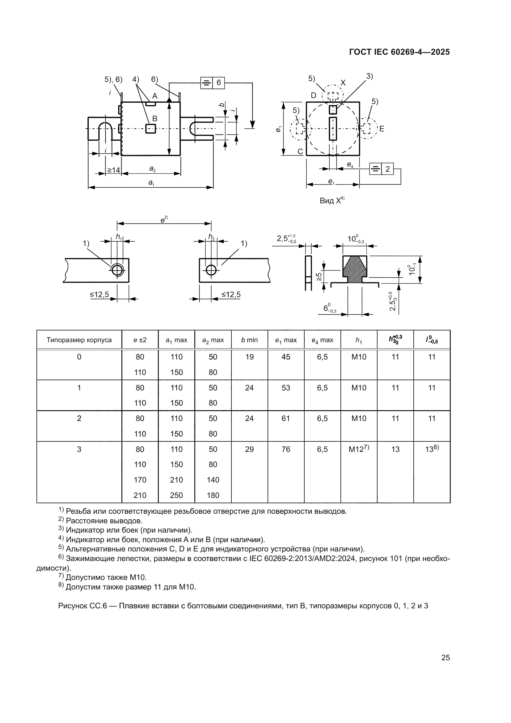
| Область применения: | Применяют IEC 60269-1 со следующими дополнительными требованиями. Плавкие вставки для защиты полупроводниковых устройств должны соответствовать требованиям IEC 60269-1, если иное не оговорено далее, и также должны соответствовать нижеизложенным дополнительным требованиям. Настоящие дополнительные требования применяют к плавким вставкам, которые используются в электроустановках, содержащих полупроводниковые устройства, в цепях с номинальным напряжением не выше 1000 В переменного тока или 1500 В постоянного тока. Требования могут применять и для плавких вставок с более высоким номинальным напряжением |
|