| Обозначение: |  ГОСТ 8269.0-2025 |
| Статус: | принят |
| Название рус.: | Щебень и гравий из плотных горных пород и отходов промышленного производства для строительных работ. Методы физико-механических испытаний |
| Название англ.: | Mauntainous rock road-metal and gravel, industrial waste products for construction works. Methods of physical and mechanical tests |
| Дата актуализации текста: | 01.01.2026 |
| Дата актуализации описания: | 01.01.2026 |
| Дата регистрации: | 29.08.2025 |
| Дата издания: | 02.10.2025 |
| Дата введения: | 01.06.2026 |
| Взамен: | ГОСТ 8269.0-97 |
| Нормативные ссылки: | ГОСТ 166 ; ГОСТ 310.3; ГОСТ 427; ГОСТ 450; ГОСТ 1770; ГОСТ 2184; ГОСТ 3749; ГОСТ 4166; ГОСТ 4171; ГОСТ 4328; ГОСТ 5578; ГОСТ 6613; ГОСТ 6709; ГОСТ 8030; ГОСТ 8267-93; ГОСТ 8269.1-97; ГОСТ 8711; ГОСТ 9147; ГОСТ 11042; ГОСТ 12026; ГОСТ 14838; ГОСТ 17809; ГОСТ 19904; ГОСТ 22524; ГОСТ 22698; ГОСТ 23732; ГОСТ 23735; ГОСТ 24638; ГОСТ 25336; ГОСТ 25639; ГОСТ 25706; ГОСТ 28840; ГОСТ 29227; ГОСТ 29228; ГОСТ 32703; ГОСТ 32820; ГОСТ 32833; ГОСТ 32861; ГОСТ 33026; ГОСТ 33028; ГОСТ 33029; ГОСТ 33030; ГОСТ 33031; ГОСТ 33046; ГОСТ 33047; ГОСТ 33048; ГОСТ 33049; ГОСТ 33050; ГОСТ 33051; ГОСТ 33053; ГОСТ 33054; ГОСТ 33055; ГОСТ 33056; ГОСТ 33057; ГОСТ 33109;ГОСТ OIML R 76-1; ГОСТ 35301 |
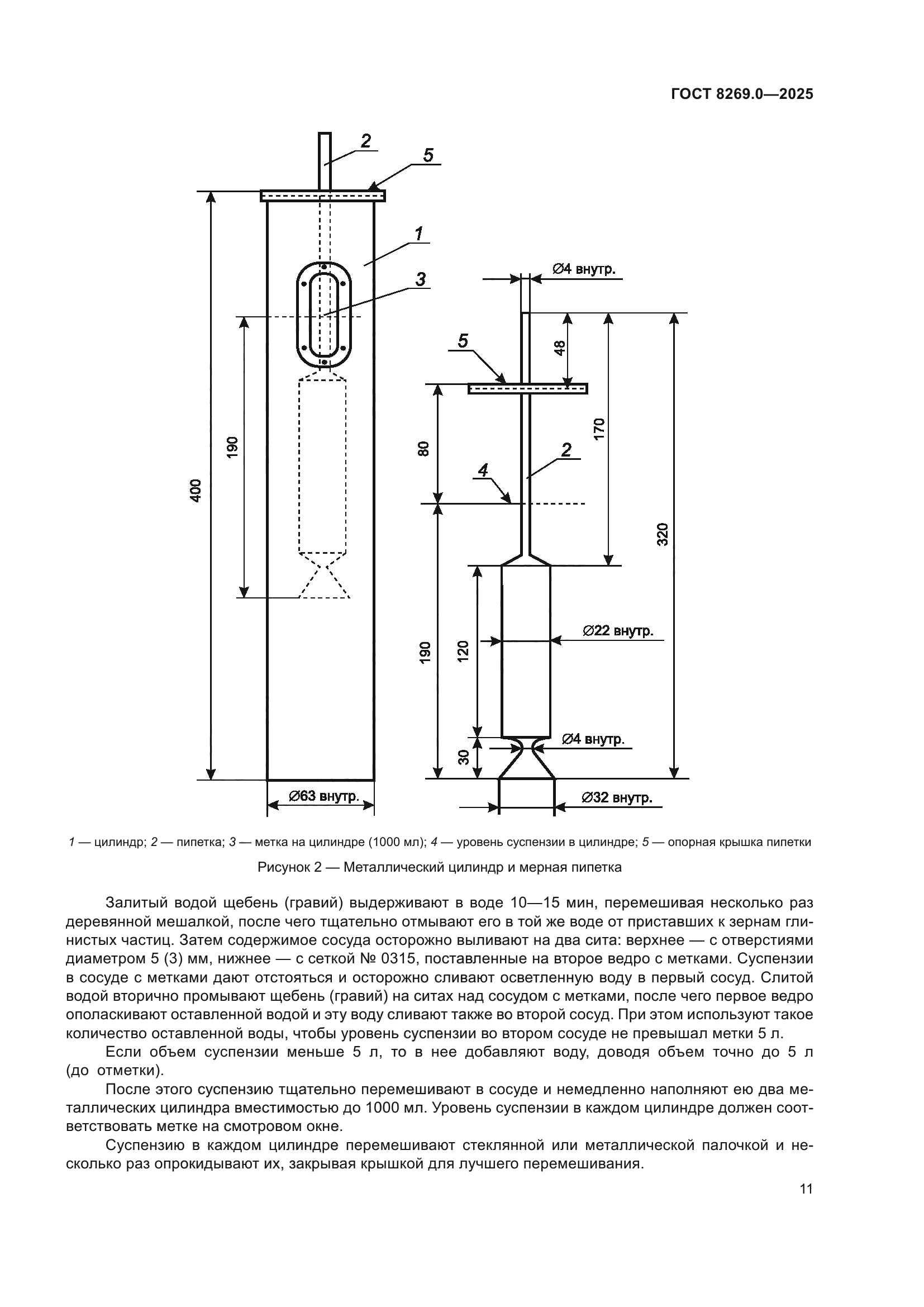
| Область применения: | Настоящий стандарт распространяется на щебень и гравий из плотных горных пород по ГОСТ 8267 (в том числе попутно добываемых вскрышных и вмещающих пород и некондиционных отходов горных предприятий) и отходов промышленного производства (в том числе из шлаков черной и цветной металлургии и тепловых электростанций по ГОСТ 5578) со средней плотностью зерен свыше 2,0 г/см3, применяемых в качестве заполнителей для бетона, а также других видов строительных работ, и устанавливает порядок выполнения физико-механических испытаний. Положения настоящего стандарта распространяются также на песчано-гравийные смеси, выпускаемые по ГОСТ 23735 |
|