| Обозначение: |  ГОСТ 33715-2025 |
| Статус: | действующий |
| Название рус.: | Машины грузоподъемные. Грузозахватные приспособления. Безопасная эксплуатация. Общие требования |
| Название англ.: | Lifting machines. Load-lifting attachments. Safe operation. General requirements |
| Дата актуализации текста: | 01.01.2026 |
| Дата актуализации описания: | 01.01.2026 |
| Дата регистрации: | 30.05.2025 |
| Дата издания: | 08.08.2025 |
| Дата введения: | 01.01.2026 |
| Взамен: | ГОСТ 33715-2015 |
| Нормативные ссылки: | ГОСТ 2.604; ГОСТ 9.014; ГОСТ 12.2.058; ГОСТ 12.3.002; ГОСТ 12.3.009; ГОСТ 12.3.010; ГОСТ 12.3.020; ГОСТ 12969; ГОСТ 12971; ГОСТ 15150; ГОСТ 17527; ГОСТ 18322; ГОСТ 18477; ГОСТ 19822; ГОСТ 23002; ГОСТ 242581; ГОСТ Р 58752-2019; ГОСТ 24366; ГОСТ 24599; ГОСТ 255732; ГОСТ Р 58753-2019; ГОСТ 25866; ГОСТ 26598; ГОСТ 27555; ГОСТ 29266; ГОСТ 33714.1-2015; ГОСТ 33718; ГОСТ 34016; ГОСТ 34017; ГОСТ 34463.1; ГОСТ 34463.3; ГОСТ 34587; ГОСТ 34680; ГОСТ 34875;ГОСТ EN 818-1;ГОСТ EN 818-4;ГОСТ EN 818-7;ГОСТ EN 1677-1;ГОСТ ISO 3864-1;ГОСТ ISO 21898-2013 |
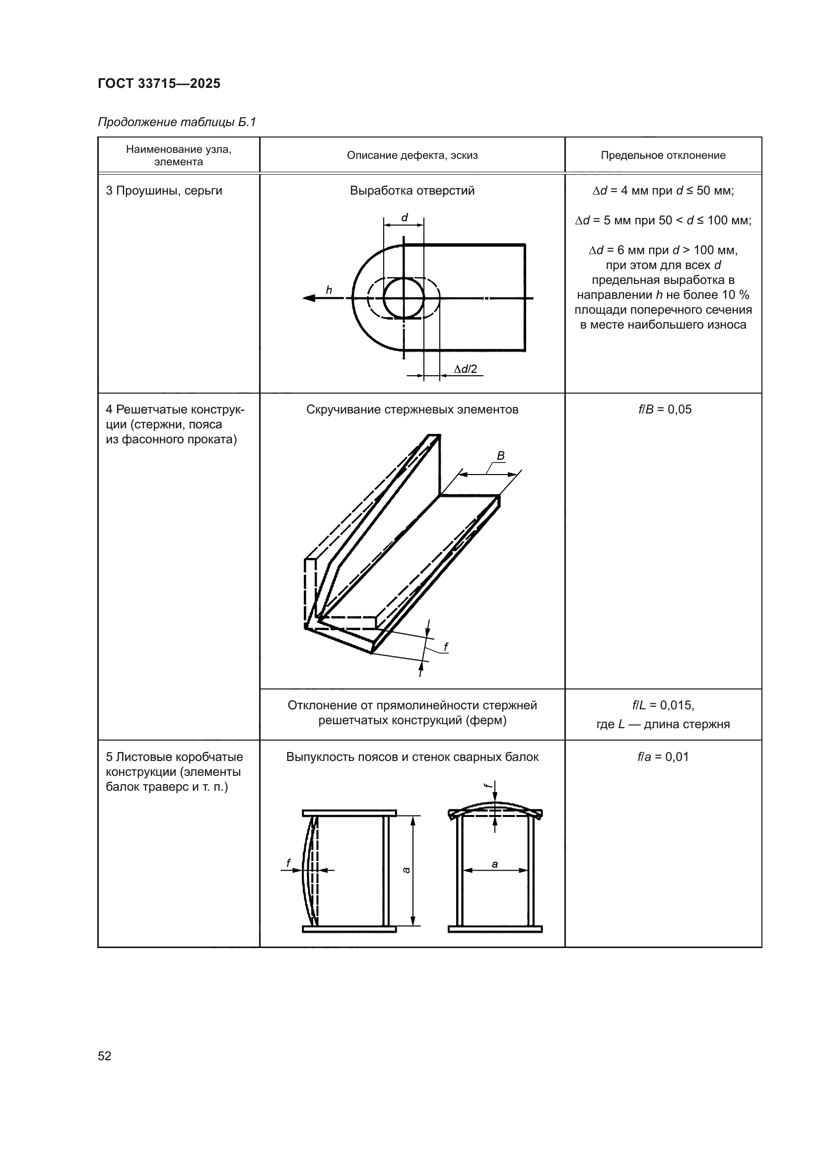
| Область применения: | Настоящий стандарт устанавливает требования к безопасной эксплуатации и оценке работоспособности несъемных (грузозахватных органов), съемных грузозахватных приспособлений и многооборотной транспортной и промышленной упаковки, имеющей строповочные элементы и грузовым контейнерам. Требования настоящего стандарта применяются при разработке: - проектов производства работ (ППР) и технологических карт погрузочно-разгрузочных работ (ТК), выполняемых с применением грузоподъемных машин; - инструкций, определяющих порядок, методы осмотра, критерии предельного состояния ГЗП и упаковки; - должностных инструкций компетентных лиц, занятых в области эксплуатации грузоподъемных машин, ГЗП и упаковки; - производственных инструкций и программ обучения персонала, связанного с эксплуатацией ГЗП и упаковки |
|