Скачать ГОСТ Р 71690-2024 Комплексы для производства, хранения и отгрузки сжиженного природного газа. Технологические блоки сжижения природного газа. Соединительные детали трубопроводов из аустенитной стали. Общие технические условияДата актуализации: 01.06.2025 ГОСТ Р 71690-2024
Комплексы для производства, хранения и отгрузки сжиженного природного газа. Технологические блоки сжижения природного газа. Соединительные детали трубопроводов из аустенитной стали. Общие технические условия
| Обозначение: |  ГОСТ Р 71690-2024 |
| Статус: | действующий |
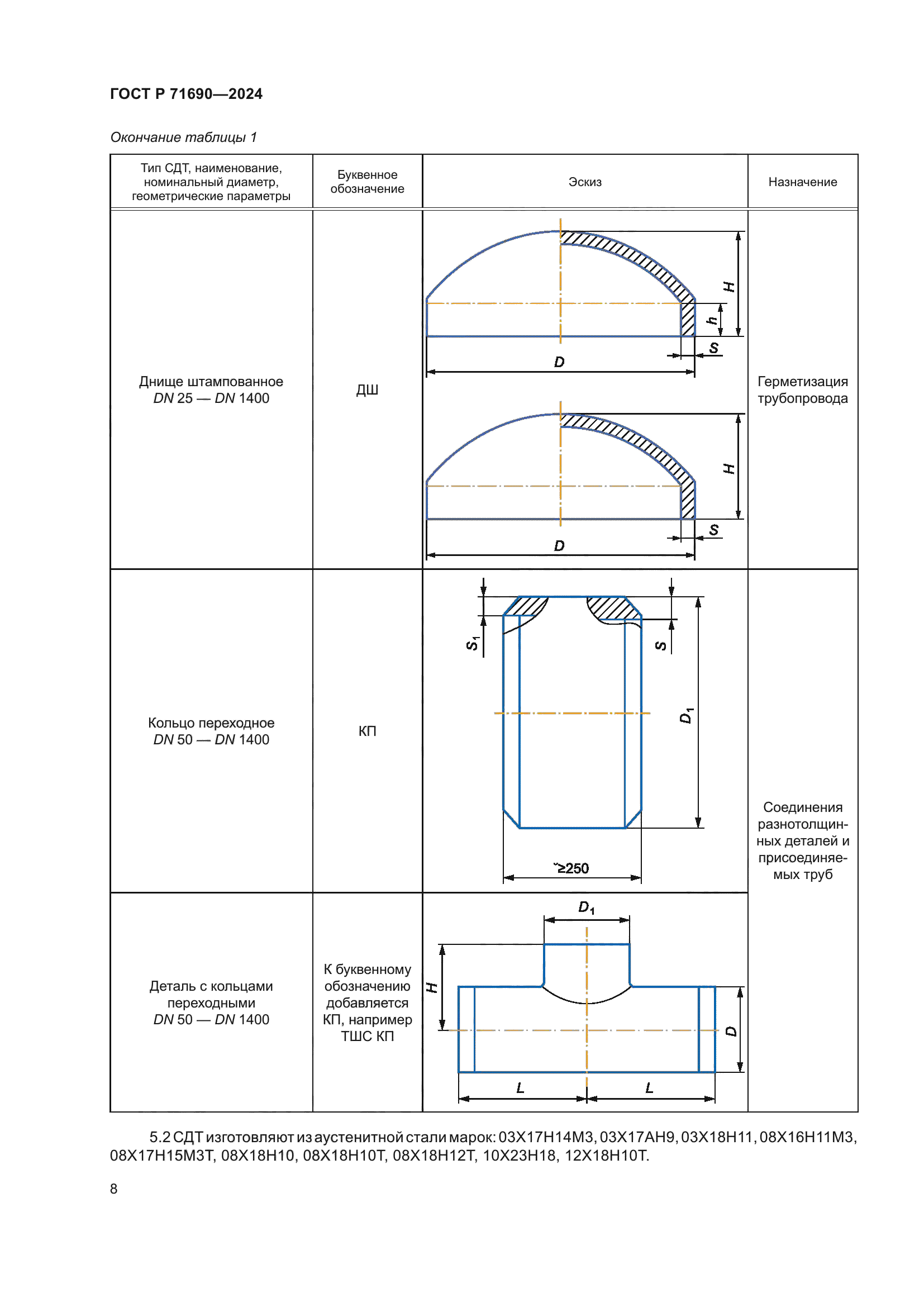
| Название рус.: | Комплексы для производства, хранения и отгрузки сжиженного природного газа. Технологические блоки сжижения природного газа. Соединительные детали трубопроводов из аустенитной стали. Общие технические условия | | Название англ.: | Complexes for the production, storage and shipment of liquefied natural gas. Technological units of natural gas liquefaction. Connecting parts of pipelines made of austenitic steels. General technical specifications | | Дата актуализации текста: | 01.06.2025 | | Дата актуализации описания: | 01.06.2025 | | Дата издания: | 29.11.2024 | | Дата введения: | 01.02.2025 | | Нормативные ссылки: | ГОСТ 162; ГОСТ 577; ГОСТ 1497; ГОСТ 1778; ГОСТ 3845; ГОСТ 5639; ГОСТ 5640; ГОСТ 6032; ГОСТ 6507; ГОСТ 6996; ГОСТ 7512; ГОСТ 7565; ГОСТ 9012; ГОСТ 9454; ГОСТ 9651; ГОСТ 10692; ГОСТ 16037; ГОСТ 16504; ГОСТ 18895; ГОСТ 19040; ГОСТ 21014; ГОСТ 22848; ГОСТ 28338; ГОСТ 30432; ГОСТ 31458; ГОСТ 32388; ГОСТ 32569-2013; ГОСТ 33439;ГОСТ ISO 17636-1;ГОСТ ISO 17636-2; ГОСТ Р 54153; ГОСТ Р ИСО 148-1; ГОСТ Р ИСО 5817; ГОСТ Р ИСО 14284; ГОСТ Р ИСО 17640 | | Область применения: | Настоящий стандарт распространяется на соединительные детали трубопроводов приварные [отводы, тройники, переходы, днища, кольца переходные, детали с кольцами и тройники с решетками] с расчетным давлением от 1,6 до 25,0 МПа, номинальными диаметрами от DN 50 до DN 1400, из аустенитной стали, применяемые для строительства комплексов, предназначенных для производства, хранения и отгрузки сжиженного природного газа | |
                                                    
|