Скачать ГОСТ IEC 62196-2-2024 Вилки, штепсельные розетки, переносные розетки и вводы транспортных средств. Проводная зарядка для электромобилей. Часть 2. Требования к совместимости и взаимозаменяемости размеров вспомогательного оборудования переменного тока со штырями и контактными гнездамиДата актуализации: 01.06.2025 ГОСТ IEC 62196-2-2024
Вилки, штепсельные розетки, переносные розетки и вводы транспортных средств. Проводная зарядка для электромобилей. Часть 2. Требования к совместимости и взаимозаменяемости размеров вспомогательного оборудования переменного тока со штырями и контактными гнездами
| Обозначение: |  ГОСТ IEC 62196-2-2024 |
| Статус: | принят |
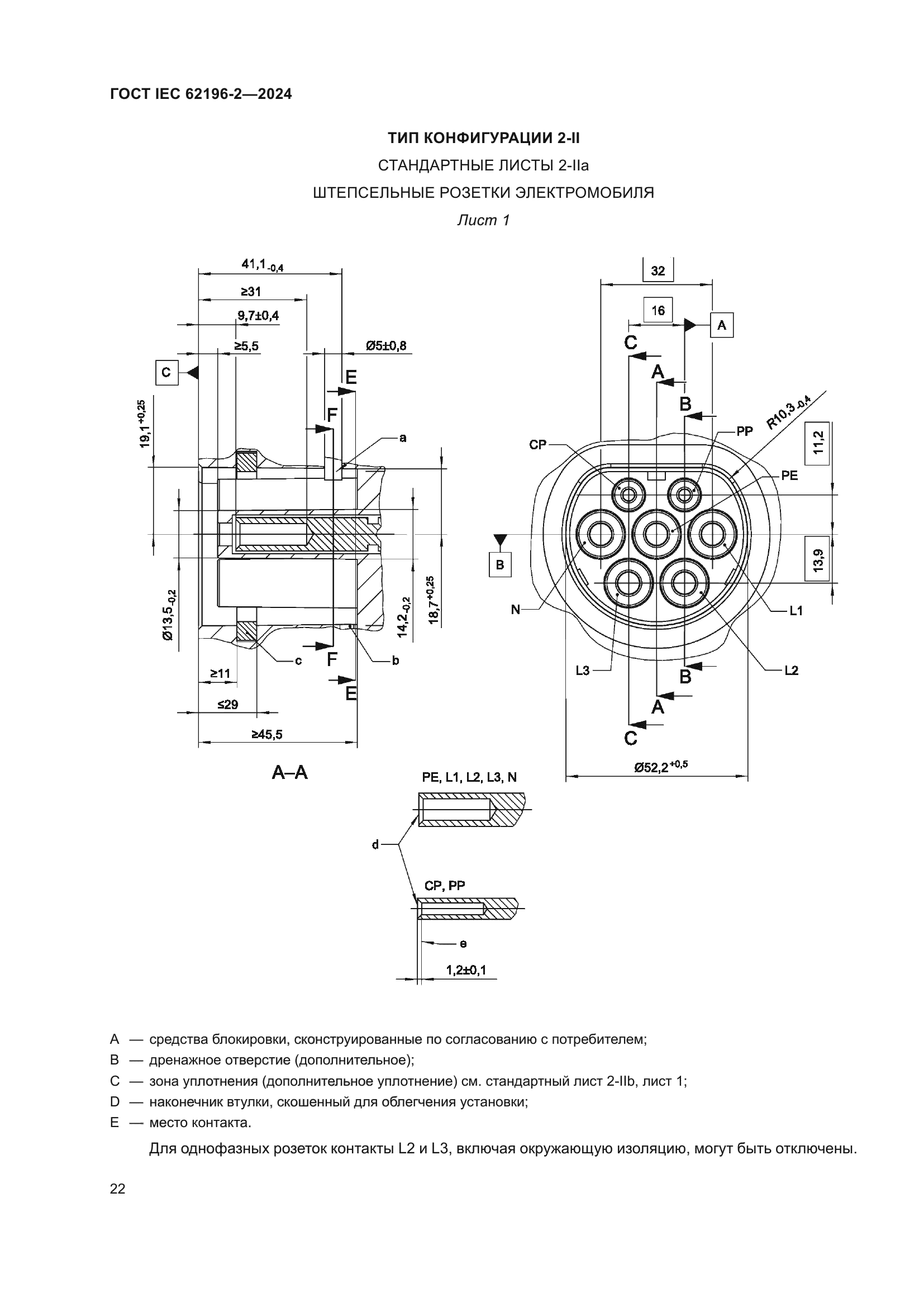
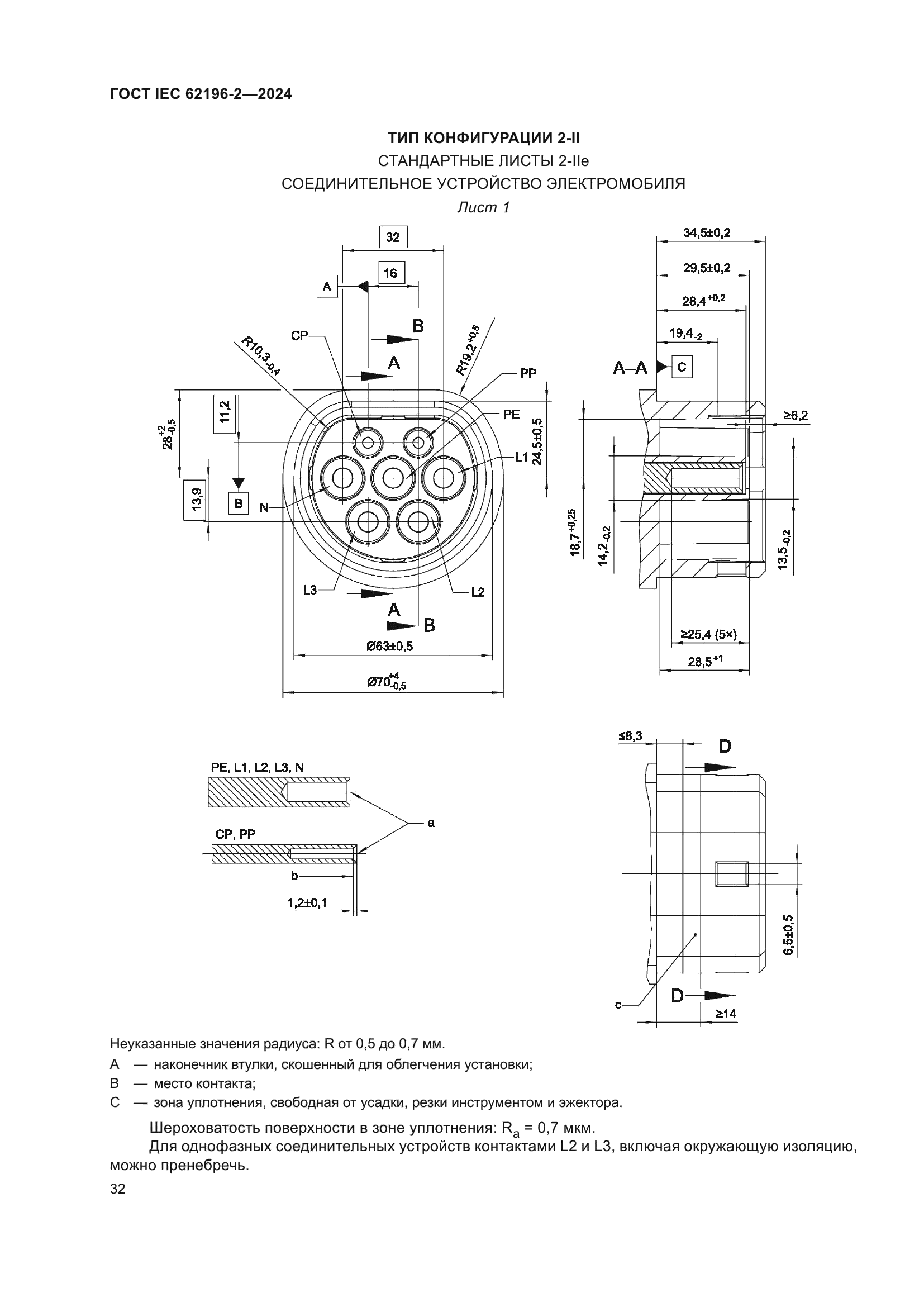
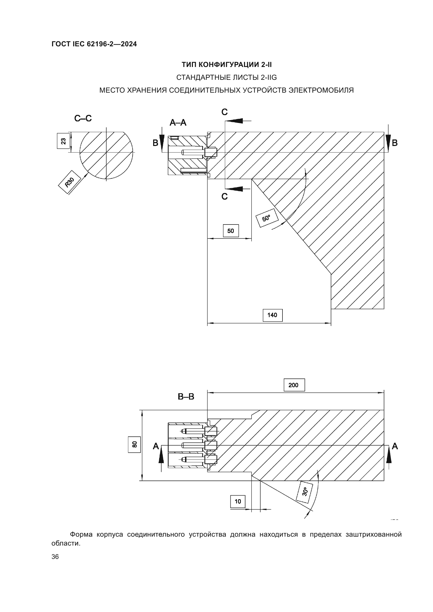
| Название рус.: | Вилки, штепсельные розетки, переносные розетки и вводы транспортных средств. Проводная зарядка для электромобилей. Часть 2. Требования к совместимости и взаимозаменяемости размеров вспомогательного оборудования переменного тока со штырями и контактными гнездами | | Название англ.: | Plugs, socket-outlets, vehicle connectors and vehicle inlets. Conductive charging of electric vehicles. Part 2. Dimensional compatibility requirements for AC pin and contact-tube accessories | | Дата актуализации текста: | 01.12.2024 | | Дата актуализации описания: | 01.12.2024 | | Дата регистрации: | 09.10.2024 | | Дата издания: | 07.11.2024 | | Дата введения: | 01.04.2026 | | Взамен: | ГОСТ IEC 62196-2-2018 | | Аутентичен стандартам: | IEС 62196-2(2022) | | Нормативные ссылки: | IEC 62196-1(2022) | | Область применения: | Настоящий стандарт распространяется на вилки, штепсельные розетки, соединительные устройства и вводные порты электромобилей со штырями и контактными гнездами стандартизованных конфигураций (далее — устройства), рассчитанные на номинальное рабочее напряжение не более 480 В переменного тока частотой 50–60 Гц и номинальный ток не более 63 А для трехфазной сети или 70 А для однофазной сети, применяемые в проводной (кондуктивной) зарядке электромобилей. В область применения настоящего стандарта входят основные интерфейсные устройства для питания электромобилей, как указано в IEC 62196-1:2022. Устройства предназначены для применения в цепях по IEC 61851-1:2017, которые работают на разных напряжениях и частотах, в том числе в цепях систем безопасного сверхнизкого напряжения (БСНН) и каналов связи. Устройства могут применяться для двунаправленной передачи энергии (в стадии рассмотрения) | |
                                                                        
|