| Обозначение: |  ГОСТ Р 71616-2024 |
| Статус: | действующий |
| Название рус.: | Машины землеройные. Полигон для испытания высокоавтоматизированных землеройных и дорожно-строительных машин. Технические требования |
| Название англ.: | Earth moving machines. Testing ground for highly automated earth-moving and road-building machines. Technical requirements |
| Дата актуализации текста: | 01.12.2024 |
| Дата актуализации описания: | 01.01.2025 |
| Дата издания: | 27.09.2024 |
| Дата введения: | 01.01.2025 |
| Нормативные ссылки: | ГОСТ 12.2.121;ГОСТ ISO/IEC 17000-2012;ГОСТ ISO/IEC 17025; ГОСТ Р 8.568-2017; ГОСТ Р 8.820; ГОСТ Р 51672; ГОСТ Р 58823; ГОСТ Р 70851; ГОСТ Р ИСО 20474-1 |
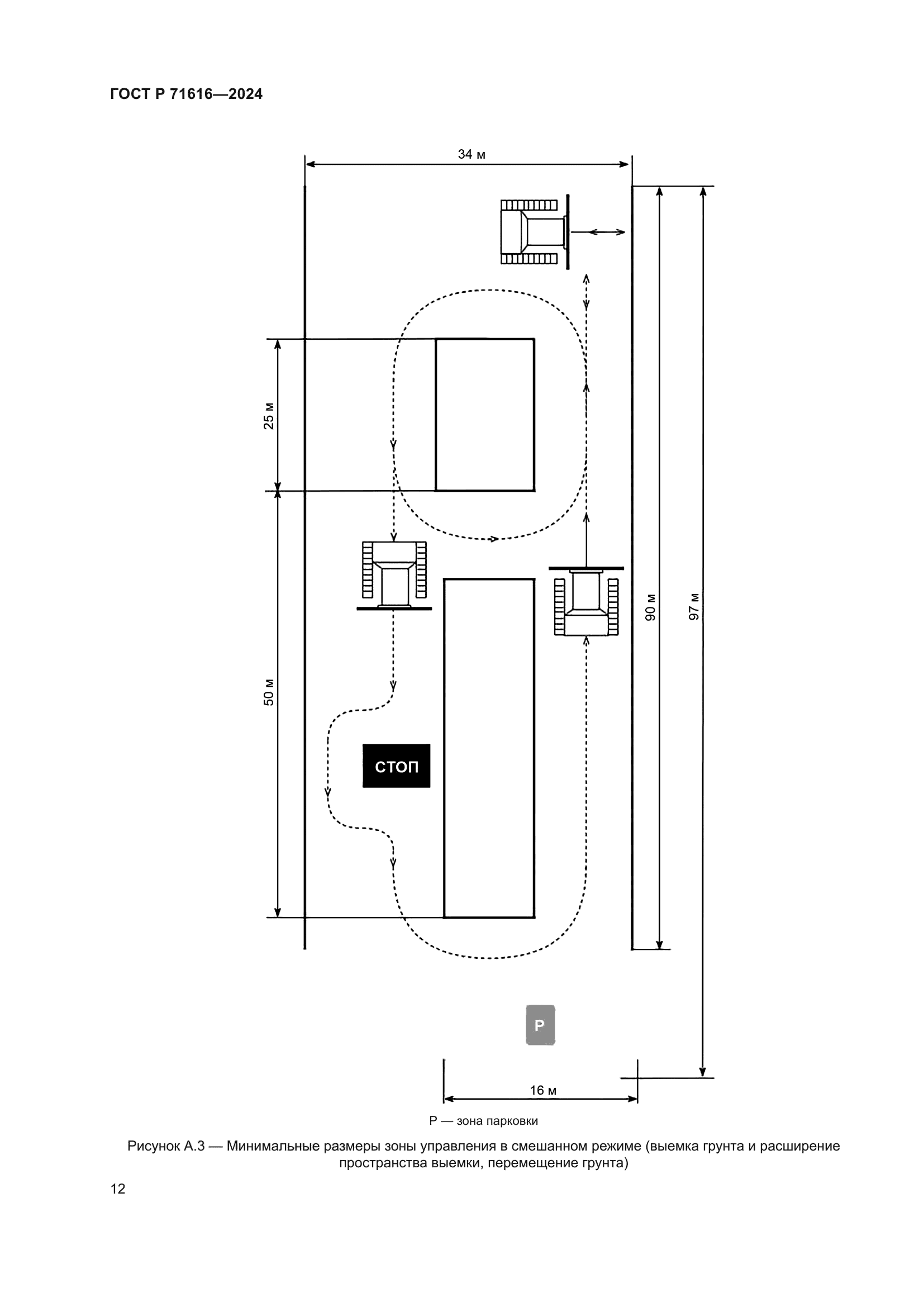
| Область применения: | Настоящий стандарт устанавливает технические требования к испытательным полигонам для проведения испытаний высокоавтоматизированных землеройных и дорожно-строительных машин. Настоящий стандарт распространяется для испытательных организаций при создании, функционировании, а также при подготовке к аккредитации в качестве аккредитованного полигона для проведения испытаний высокоавтоматизированных землеройных и дорожно-строительных машин и для органов по аккредитации при проведении инспекционного контроля деятельности испытательных полигонов |
|