| Обозначение: |  ГОСТ Р 71106-2024 |
| Статус: | действующий |
| Название рус.: | Конструкции для удаления дымовых газов. Общие методы испытаний дымоходных систем |
| Название англ.: | Chimneys. General test methods for system chimneys |
| Дата актуализации текста: | 01.12.2024 |
| Дата актуализации описания: | 01.12.2024 |
| Дата издания: | 11.06.2024 |
| Дата введения: | 01.07.2024 |
| Содержит требования: | DIN EN 13216-1:2019 |
| Нормативные ссылки: | ГОСТ 5632; ГОСТ 14254; ГОСТ Р 53299; ГОСТ Р 53321; ГОСТ Р 59412-2022; ГОСТ Р 59978.1-2022 |
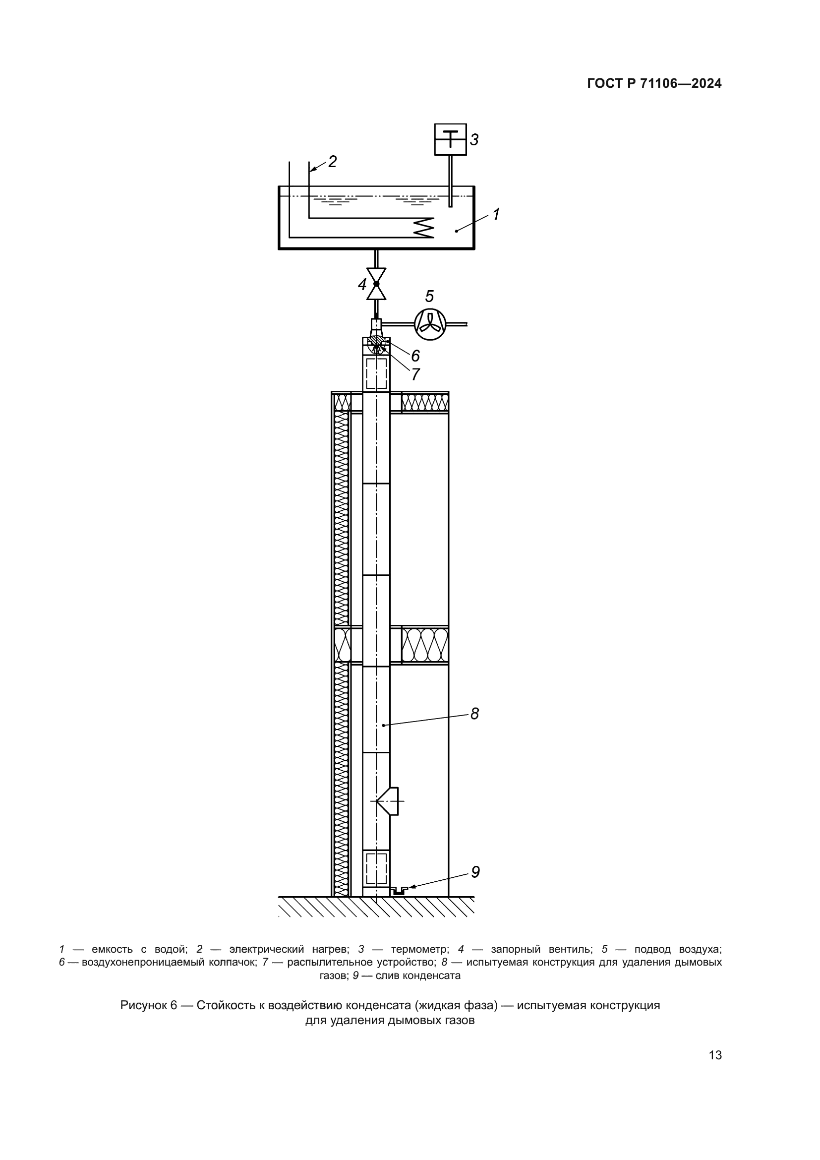
| Область применения: | Настоящий стандарт устанавливает методы испытаний, не зависящие от используемых материалов, для всех без исключения дымоходных систем. Они могут быть использованы для всех продуктов для отвода дымовых газов |
|