Скачать ГОСТ 24452-2023 Бетоны. Методы определения призменной прочности, модуля упругости и коэффициента ПуассонаДата актуализации: 01.06.2025 ГОСТ 24452-2023
Бетоны. Методы определения призменной прочности, модуля упругости и коэффициента Пуассона
| Обозначение: |  ГОСТ 24452-2023 |
| Статус: | действующий |
| Название рус.: | Бетоны. Методы определения призменной прочности, модуля упругости и коэффициента Пуассона | | Название англ.: | Concretes. Methods for determination of prismatic compressive strength, modulus of elasticity and Poisson's ratio | | Дата актуализации текста: | 01.01.2024 | | Дата актуализации описания: | 01.01.2024 | | Дата регистрации: | 17.11.2023 | | Дата издания: | 12.01.2024 | | Дата введения: | 01.01.2024 | | Взамен: | ГОСТ 24452-80 | | Нормативные ссылки: | ГОСТ 8267; ГОСТ 9696; ГОСТ 10180; ГОСТ 12730.0; ГОСТ 12730.1; ГОСТ 12730.2; ГОСТ 20910; ГОСТ 21616; ГОСТ 22685; ГОСТ 24544; ГОСТ 25485-2019; ГОСТ 28570; ГОСТ 28840; ГОСТ 32803 | | Область применения: | Настоящий стандарт устанавливает методы определения призменной прочности, модуля упругости и коэффициента Пуассона и распространяется на все виды бетонов в строительстве, в том числе на жаростойкие бетоны, а также бетоны, подвергающиеся в процессе эксплуатации насыщению водой, нефтепродуктами и другими жидкостями | |
              
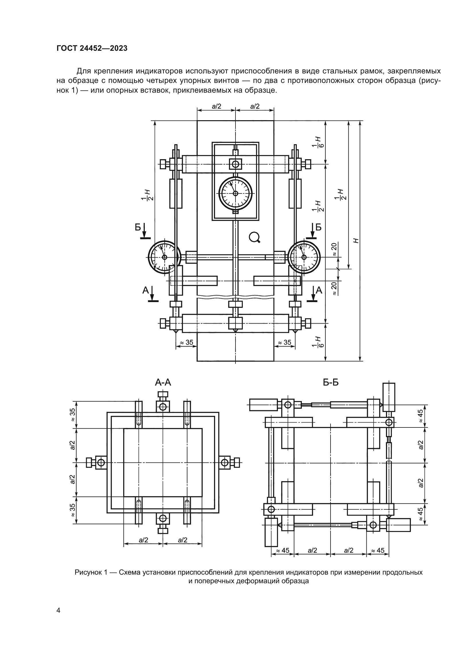
|