| Обозначение: |  ГОСТ Р 56788-2023 |
| Статус: | действующий |
| Название рус.: | Композиты полимерные. Метод определения прочности при сжатии многослойных композитов (ламинатов) с открытым отверстием |
| Название англ.: | Polymer composites. Method for determination of compressive strength of polymer matrix composites (laminates) with open hole |
| Дата актуализации текста: | 01.01.2024 |
| Дата актуализации описания: | 01.06.2024 |
| Дата издания: | 30.11.2023 |
| Дата введения: | 01.03.2024 |
| Взамен: | ГОСТ Р 56788-2015 |
| Нормативные ссылки: | ГОСТ 166; ГОСТ 6507; ГОСТ 24888; ГОСТ 28840; ГОСТ 32794; ГОСТ 33530; ГОСТ Р 8.585; ГОСТ Р 56679; ГОСТ Р 56682; ГОСТ Р 56762; ГОСТ Р 56785; ГОСТ Р 56813 |
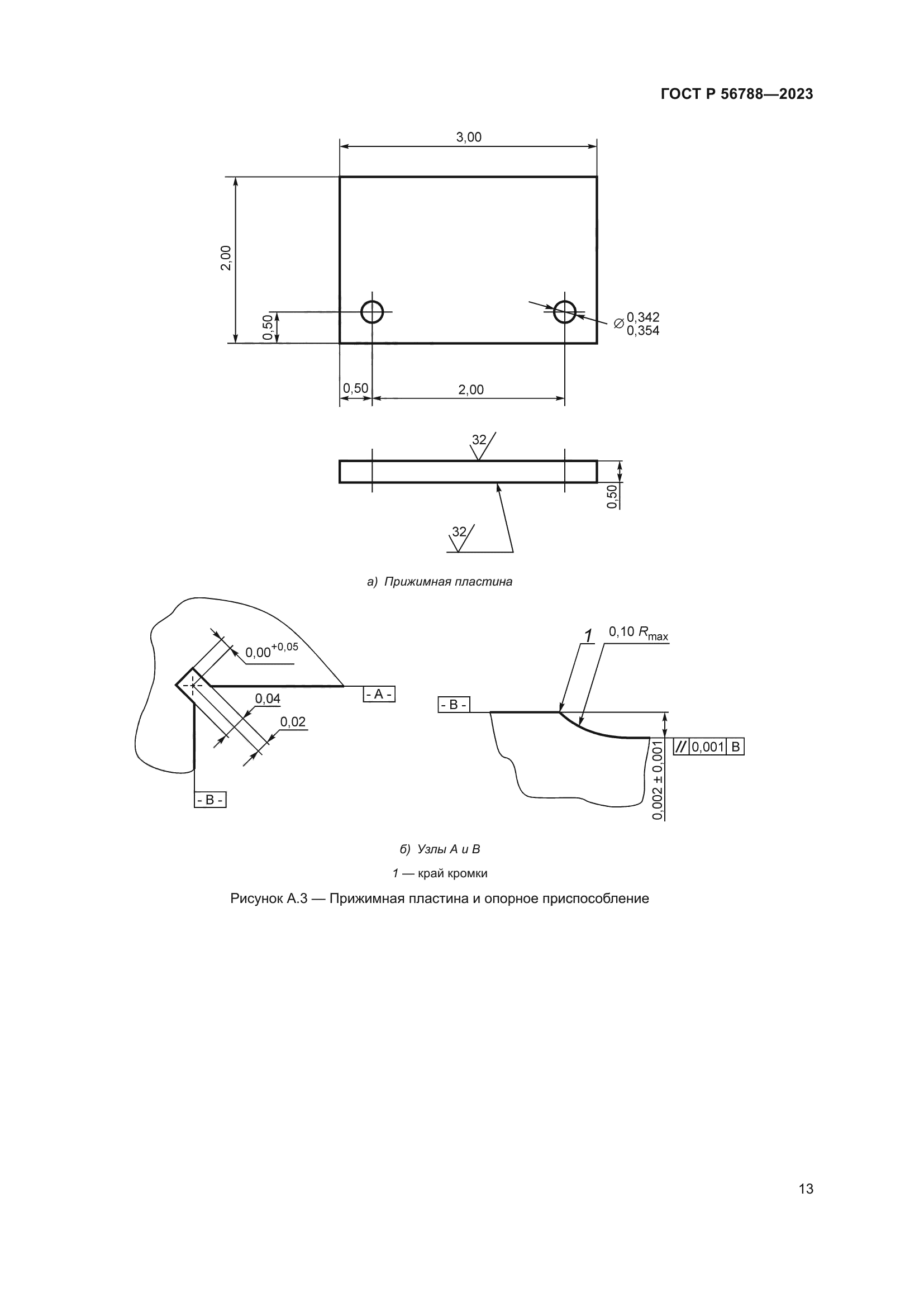
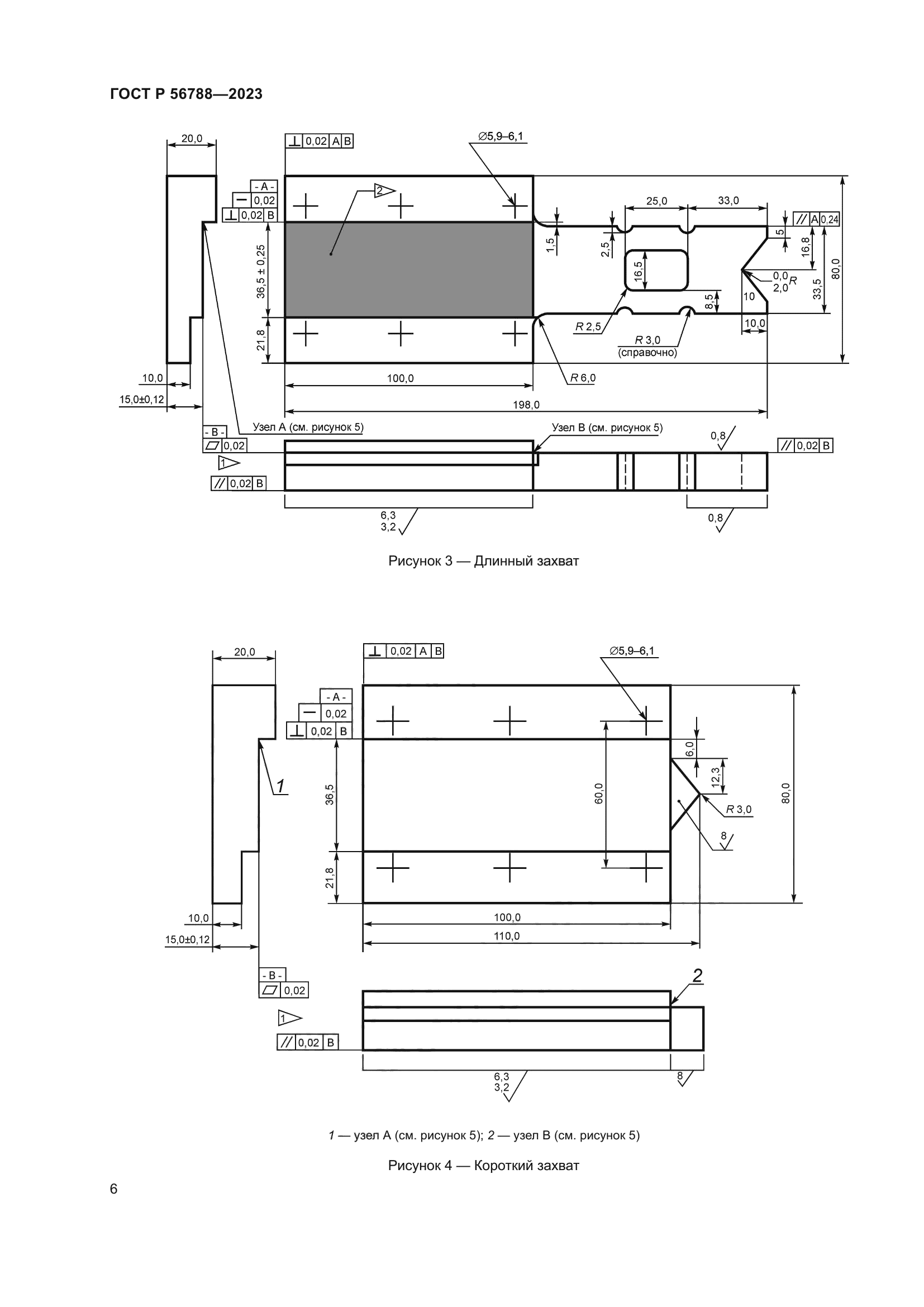
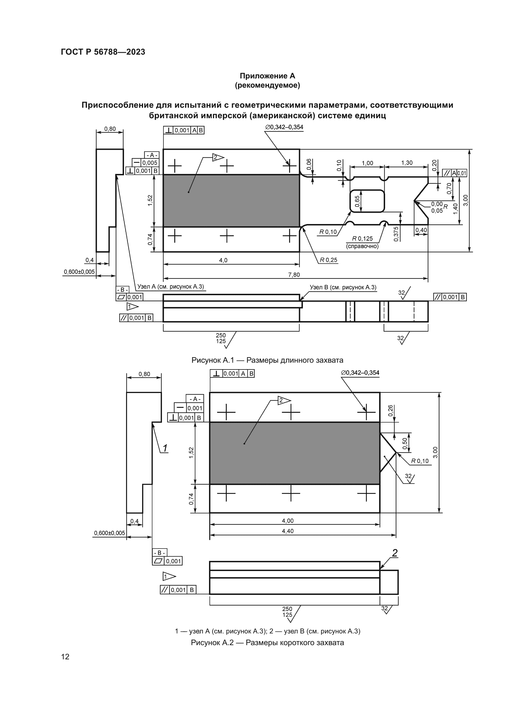
| Область применения: | Настоящий стандарт распространяется на многослойные полимерные композиты (ламинаты) с различными направлениями армирования слоев высокомодульными волокнистыми наполнителями в виде тканей и (или) лент, укладка которых по слоям обеспечивает сбалансированность и симметричность образцов относительно направления испытания. Настоящий стандарт устанавливает метод определения прочности при сжатии образцов материалов с открытым отверстием |
|