Скачать ГОСТ Р 71075-2023 Оборудование противовыбросовое. Типовые схемы, основные параметры и технические требования к конструкцииДата актуализации: 01.06.2025 ГОСТ Р 71075-2023
Оборудование противовыбросовое. Типовые схемы, основные параметры и технические требования к конструкции
| Обозначение: |  ГОСТ Р 71075-2023 |
| Статус: | отменён |
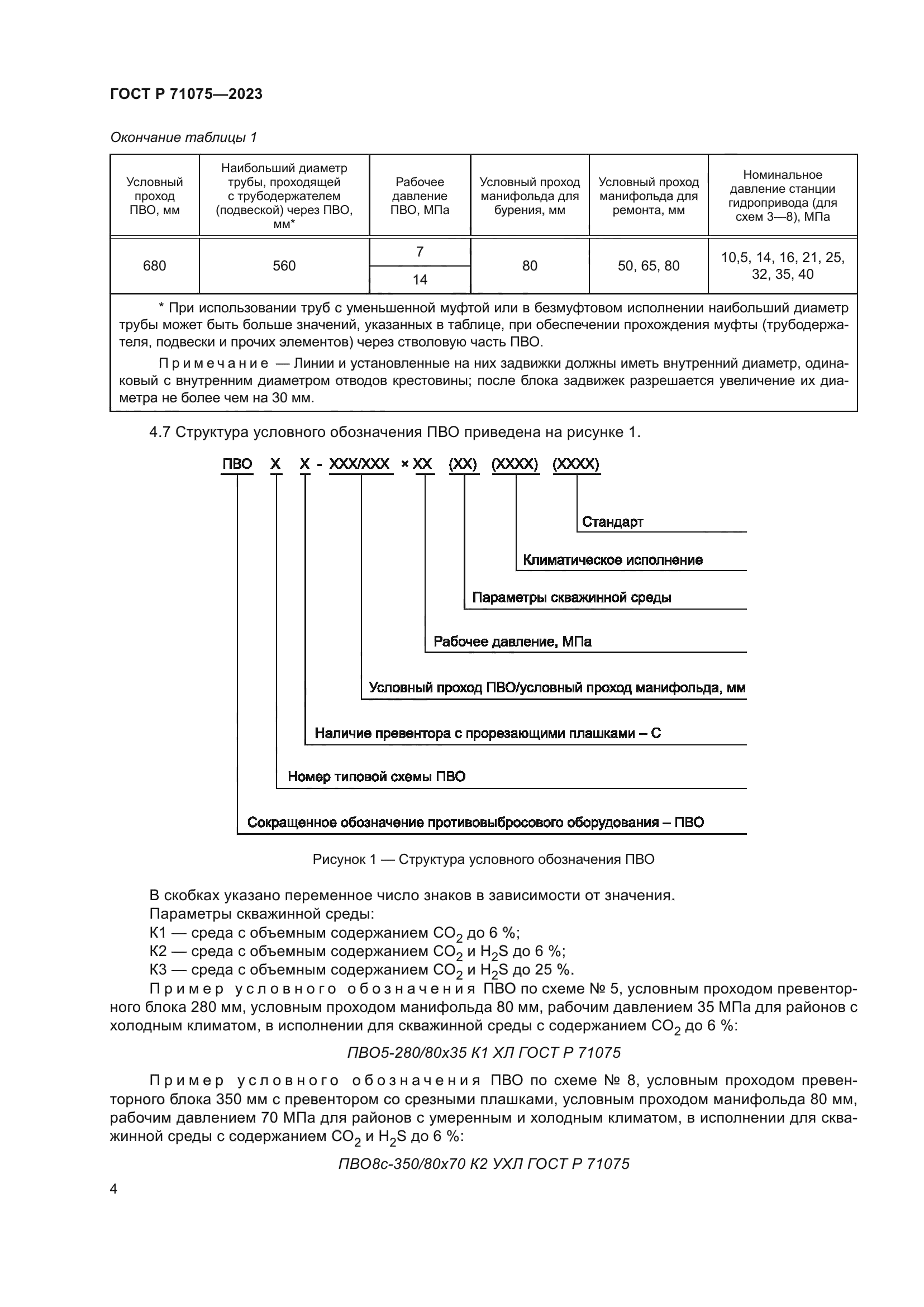
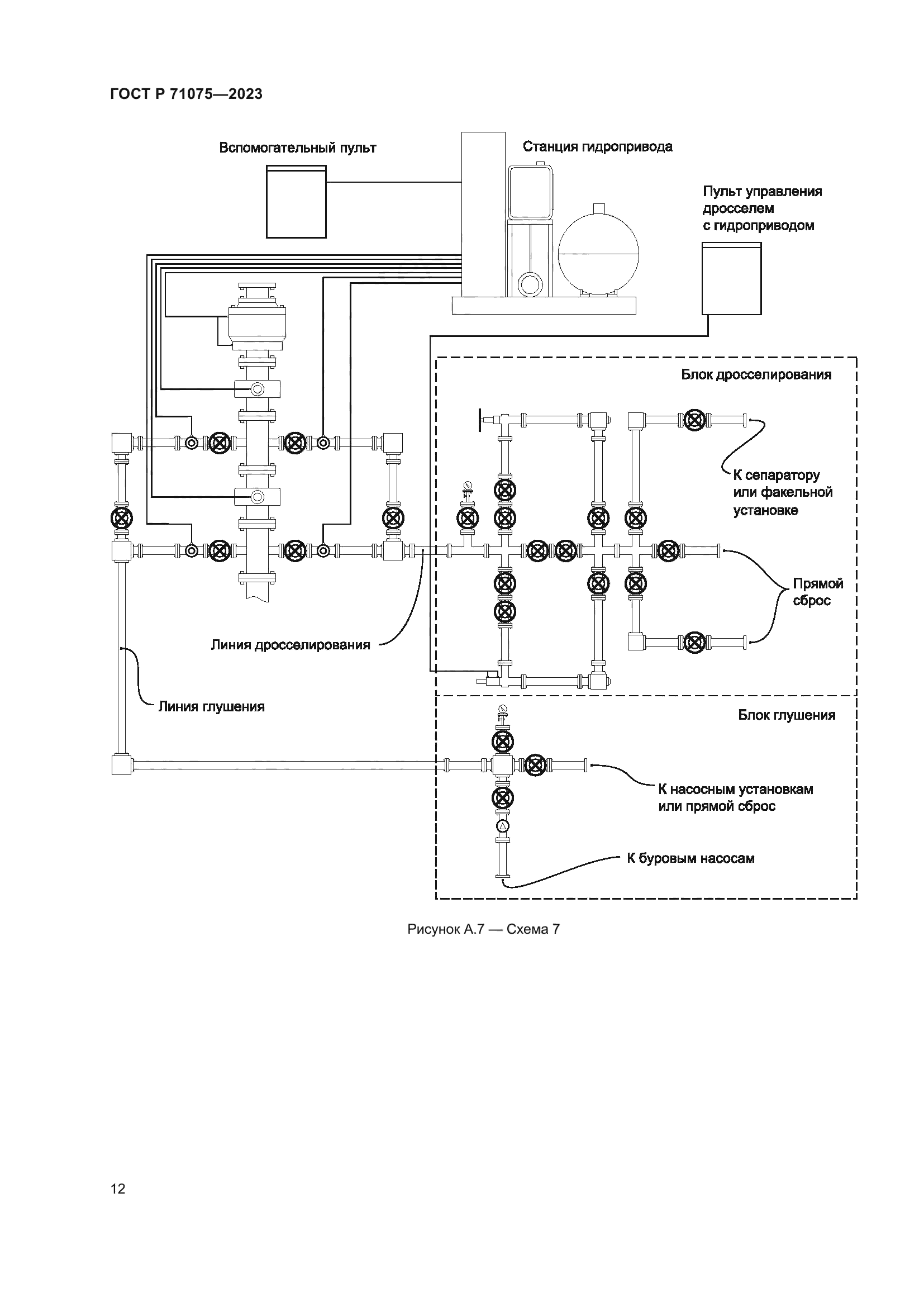
| Название рус.: | Оборудование противовыбросовое. Типовые схемы, основные параметры и технические требования к конструкции | | Название англ.: | Blow-out preventer equipment. Standard schemes, basic parameters and technical requirements for design | | Дата актуализации текста: | 01.06.2024 | | Дата актуализации описания: | 01.12.2024 | | Дата издания: | 21.11.2023 | | Дата введения: | 30.12.2023 | | Дата окончания срока действия: | 20.06.2024 | | Нормативные ссылки: | ГОСТ 12.2.115; ГОСТ 12448; ГОСТ 28996; ГОСТ 33257 | | Область применения: | Настоящий стандарт устанавливает общие положения к типовым схемам противовыбросового оборудования (далее – ПВО). Стандарт предназначен для применения при проектировании, реконструкции, модернизации и эксплуатации ПВО с соблюдением требований действующих норм охраны труда, правил промышленной, пожарной и экологической безопасности и охраны окружающей среды. Требования настоящего стандарта не распространяются на специальные виды ПВО для скважин с избыточным давлением на устье, морских скважин с подводным расположением устья и т. п., а также на составные части, дополнительно включаемые в стволовую часть ПВО (герметизаторы, разъемный желоб, надпревенторную катушку и др.) | | Приложение №1: | Поправка к ГОСТ Р 71075-2023 | |
                    
Поправка к ГОСТ Р 71075-2023
| Обозначение: | Поправка к ГОСТ Р 71075-2023 |
| Дата введения: | 25.01.2024 |
|