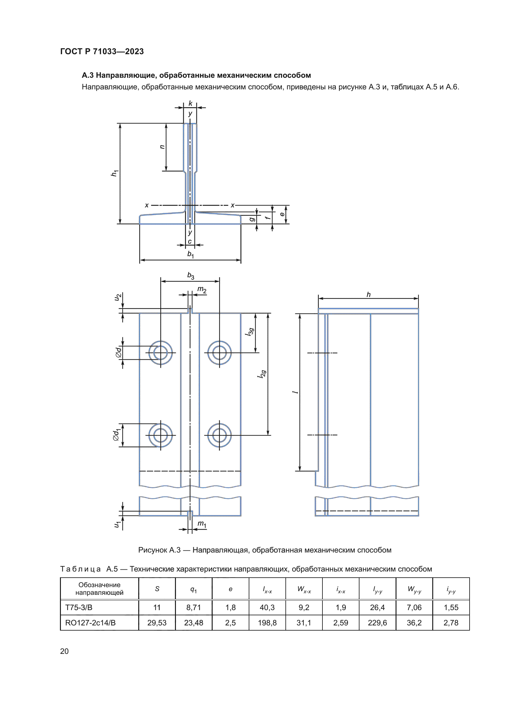
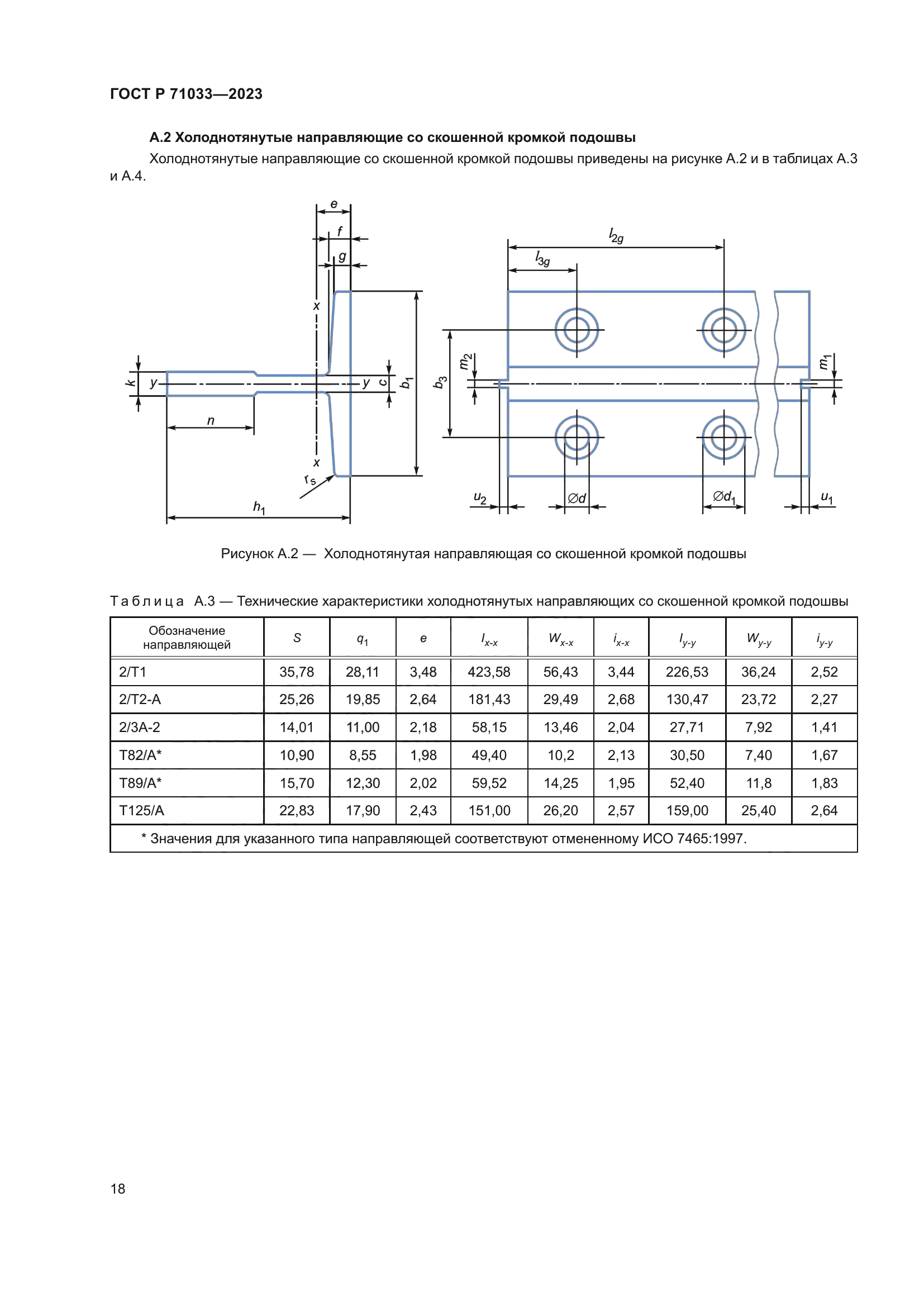
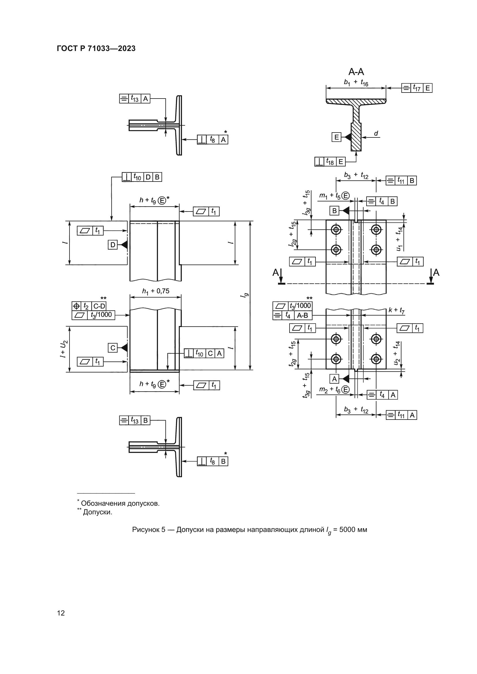
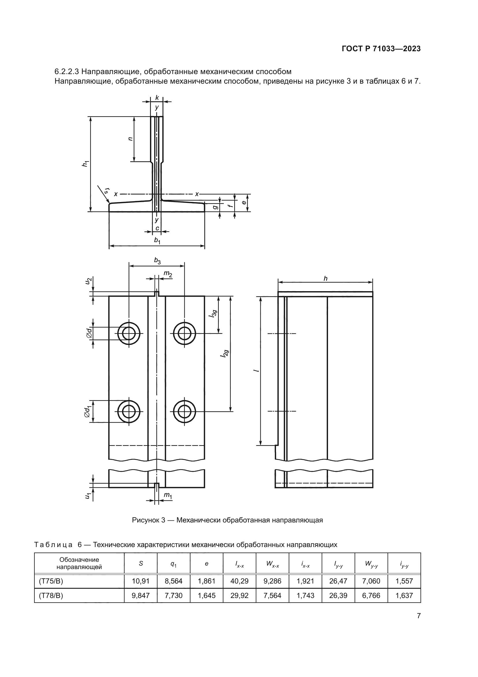
| Обозначение: |  ГОСТ Р 71033-2023 |
| Статус: | действующий |
| Название рус.: | Лифты. Направляющие для кабин и противовесов. Основные параметры и размеры |
| Название англ.: | Lifts. Guide rails for lift cars and counterweights. Basic parameters and dimensions |
| Дата актуализации текста: | 01.01.2024 |
| Дата актуализации описания: | 01.06.2024 |
| Дата издания: | 21.11.2023 |
| Дата введения: | 01.03.2024 |
| Нормативные ссылки: | ГОСТ 2.309; ГОСТ 1050; ГОСТ 1497; ГОСТ 9012; ГОСТ 10243; ГОСТ 33605 |
| Область применения: | Настоящий стандарт устанавливает основные параметры и размеры направляющих для кабин и противовесов лифтов. Настоящий стандарт распространяется на направляющие Т-образного профиля, используемые в лифтах для транспортирования людей и грузов |
|