| Обозначение: |  ГОСТ 34986-2023 |
| Статус: | действующий |
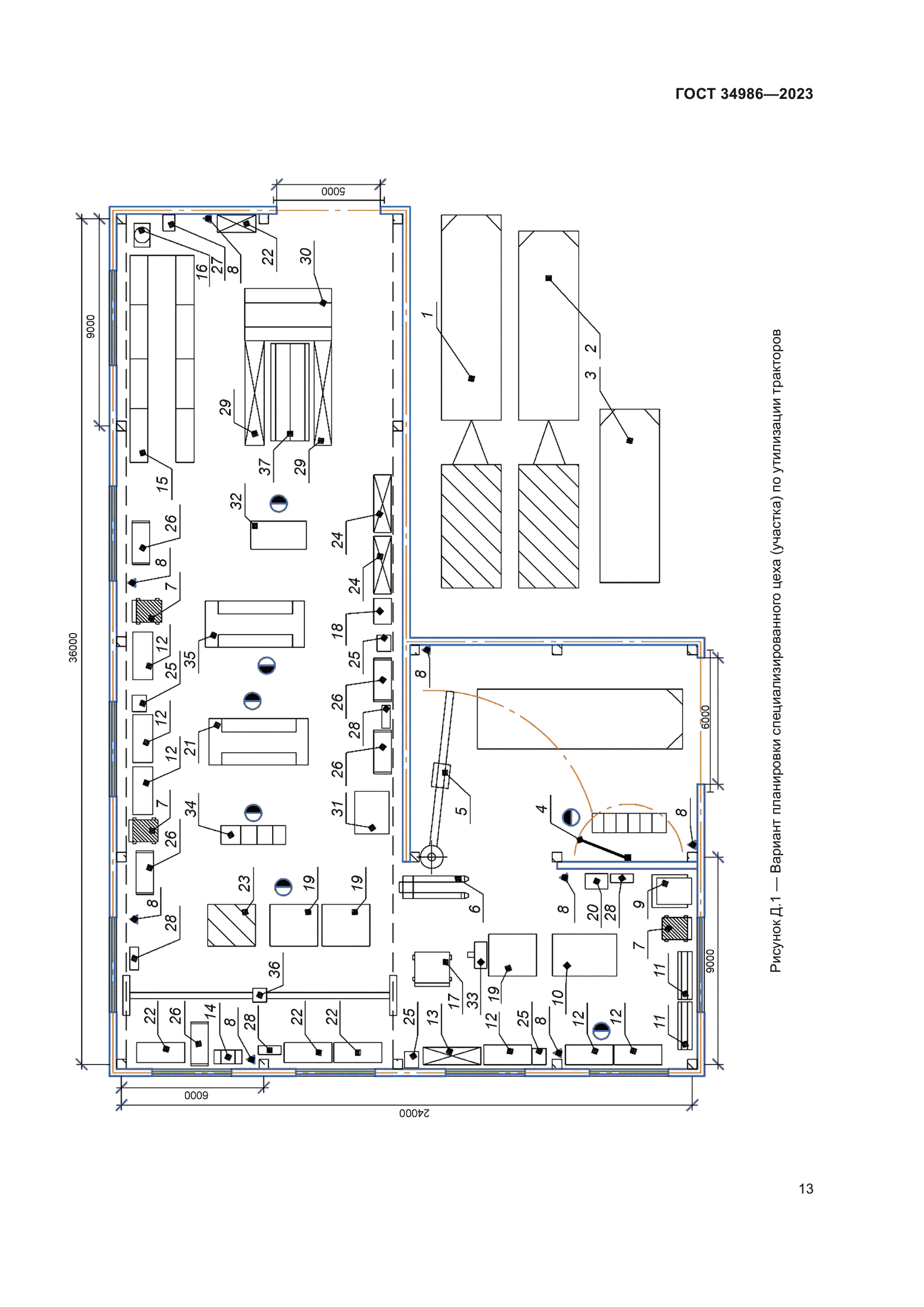
| Название рус.: | Тракторы сельскохозяйственные и лесохозяйственные. Утилизация. Порядок проведения |
| Название англ.: | Agricultural and forestry tractors. Disposal. Procedure |
| Дата актуализации текста: | 01.01.2024 |
| Дата актуализации описания: | 01.01.2024 |
| Дата регистрации: | 31.08.2023 |
| Дата издания: | 17.10.2023 |
| Дата введения: | 01.01.2024 |
| Нормативные ссылки: | ГОСТ 12.1.004; ГОСТ 12.1.005; ГОСТ 12.2.002; ГОСТ 12.2.019; ГОСТ 12.3.002; ГОСТ 1639; ГОСТ 14861; ГОСТ 18523; ГОСТ 18524; ГОСТ 30775 |
| Область применения: | Настоящий стандарт распространяется на колесные и гусеничные сельскохозяйственные и лесохозяйственные тракторы (далее - тракторы), и их сборочные единицы, устанавливает требования к техническому состоянию тракторов при сдаче их в утилизацию и регламентирует взаимоотношения между участниками системы утилизации тракторов - специализированными предприятиями и потребителями |
|