| Обозначение: |  ГОСТ Р 21.620-2023 |
| Статус: | действующий |
| Название рус.: | Система проектной документации для строительства. Правила выполнения проектной документации внутренних систем и наружных сетей канализации |
| Название англ.: | System of design documents for construction. Rules for the implementation of design documentation for internal systems and external sewerage networks |
| Дата актуализации текста: | 01.01.2024 |
| Дата актуализации описания: | 01.01.2024 |
| Дата издания: | 29.08.2023 |
| Дата введения: | 01.09.2023 |
| Нормативные ссылки: | ГОСТ 2.302; ГОСТ 2.303; ГОСТ 2.701; ГОСТ 2.721; ГОСТ 9.106; ГОСТ 21.205; ГОСТ 21.206; ГОСТ 21.508-2020; ГОСТ 34.601; ГОСТ 8267; ГОСТ 28906; ГОСТ 29099;ГОСТ IEC 62395-1; ГОСТ Р 2.105; ГОСТ Р 2.106; ГОСТ Р 21.001; ГОСТ Р 21.101; ГОСТ Р 53691-2009; ГОСТ Р 58556; ГОСТ Р 59853;СП 22.13330;СП 30.13330;СП 32.13330;СП 104.13330 |
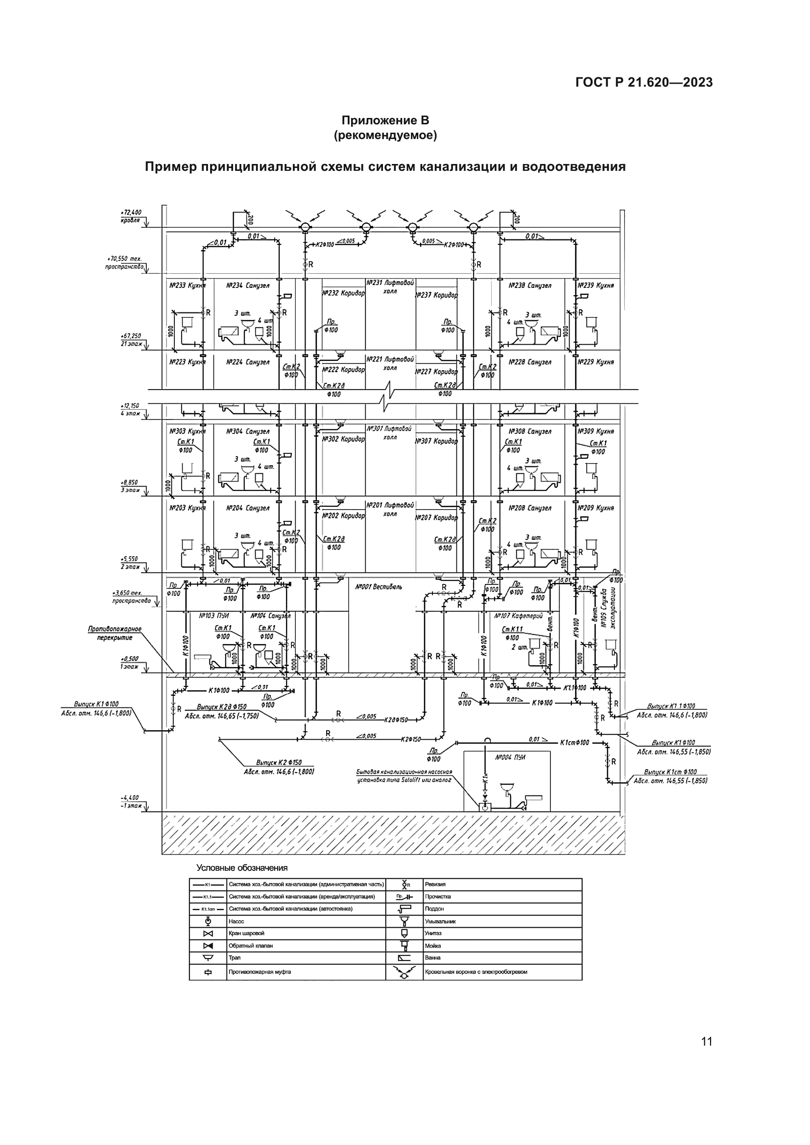
| Область применения: | Настоящий стандарт устанавливает правила выполнения и оформления подраздела «Система водоотведения» раздела «Сведения об инженерном оборудовании, о сетях и системах инженерно-технического обеспечения» проектной документации для строительства, реконструкции объектов капитального строительства производственного и непроизводственного назначения. Настоящий стандарт распространяется: - на внутренние системы бытовой канализации; - системы внутренних водостоков; - системы производственной канализации; - наружные сети водоотведения от выпуска из здания до точки подключения; - сети поверхностного водоотведения с участка строительства до точки подключения; - систему очистки серых стоков; - дренажные системы для сбора и удаления подземных вод |
|