| Обозначение: |  ГОСТ Р 51261-99 |
| Статус: | заменён |
| Название рус.: | Устройства опорные стационарные реабилитационные. Типы и технические требования |
| Название англ.: | Support stationary devices for disabled persons. Types and technical requirements |
| Дата актуализации текста: | 06.04.2015 |
| Дата актуализации описания: | 01.07.2023 |
| Дата издания: | 10.06.1999 |
| Дата введения: | 01.01.2000 |
| Дата окончания срока действия: | 01.01.2019 |
| Код ОКП: | 945210 |
| Заменяющий: | ГОСТ Р 51261-2017 |
| Нормативные ссылки: | ГОСТ 9.032-74; ГОСТ 9.301-86; ГОСТ 9.303-84; ГОСТ 14193-78; ГОСТ 15150-69; ГОСТ Р 15.111-97; ГОСТ Р 51079-97; ГОСТ Р 51083-97; ГОСТ Р 51090-97 |
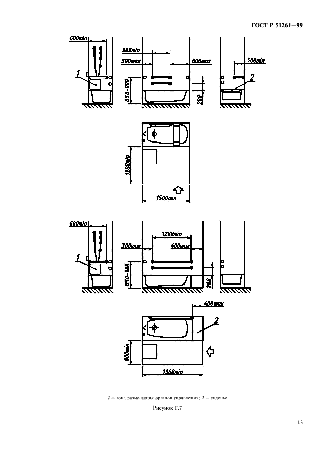
| Область применения: | Настоящий стандарт распространяется на стационарные опорные реабилитационные устройства, устанавливаемые в доступных для инвалидов общественных зданиях, сооружениях и средствах общественного пассажирского транспорта. Опорные устройства предназначены для инвалидов, в том числе инвалидов, использующих для передвижения кресла-коляски. Стандарт устанавливает типы опорных устройств и технические требования к опорным устройствам. Стандарт не распространяется на опорные технические средства реабилитации инвалидов, предназначенные для индивидуального пользования (костыли, ходунки, трости, подножки, подлокотники и спинки кресел-колясок и др.) |
|