| Обозначение: |  ГОСТ 22476-77 |
| Статус: | действующий |
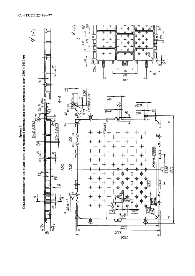
| Название рус.: | Отверстия фиксирующие и крепежные координатных модельных плит. Размеры |
| Название англ.: | Fixing and securing holes master pattern plates. Design and dimension |
| Дата актуализации текста: | 06.04.2015 |
| Дата актуализации описания: | 01.07.2023 |
| Дата издания: | 01.03.2001 |
| Дата введения: | 01.07.1978 |
| Взамен: | МН 3274-62;МН 3276-62;МН 3278-62;МН 3282-62;МН 3284-62 |
| Нормативные ссылки: | ГОСТ 2.304-81; ГОСТ 20084-74; ГОСТ 20085-74; ГОСТ 20086-74; ГОСТ 20087-74; ГОСТ 20089-74; ГОСТ 20091-74; ГОСТ 20093-74; ГОСТ 20094-74; ГОСТ 20095-74; ГОСТ 20096-74; ГОСТ 20097-74; ГОСТ 20098-74; ГОСТ 20099-74; ГОСТ 20100-74; ГОСТ 20101-74; ГОСТ 20102-74; ГОСТ 20103-74; ГОСТ 20104-74; ГОСТ 20106-74; ГОСТ 20108-74; ГОСТ 20110-74; ГОСТ 20111-74; ГОСТ 20112-74; ГОСТ 20113-74; ГОСТ 20114-74; ГОСТ 20115-74; ГОСТ 20116-74; ГОСТ 20117-74; ГОСТ 20118-74; ГОСТ 20119-74; ГОСТ 20120-74; ГОСТ 20121-74; ГОСТ 20122-74; ГОСТ 20123-74; ГОСТ 20124-74; ГОСТ 20125-74; ГОСТ 20126-74; ГОСТ 20127-74; ГОСТ 20128-74; ГОСТ 20129-74; ГОСТ 20130-74; ГОСТ 20131-74; ГОСТ 22475-77 |
| Область применения: | Настоящий стандарт распространятся на фиксирующие и крепежные отверстия координатных модельных плит, предназначенных для изготовления песчаных литейных форм |
| Список изменений: | №1 от 01.02.1983 (рег. 16.11.1982) «Срок действия продлен» №2 от 01.07.1988 (рег. 18.12.1987) «Срок действия продлен» |
|