Скачать ГОСТ 34464.5-2023 Краны грузоподъемные. Информация, предоставляемая по запросу. Часть 5. Краны мостовые и козловыеДата актуализации: 01.06.2025 ГОСТ 34464.5-2023
Краны грузоподъемные. Информация, предоставляемая по запросу. Часть 5. Краны мостовые и козловые
| Обозначение: |  ГОСТ 34464.5-2023 |
| Статус: | действующий |
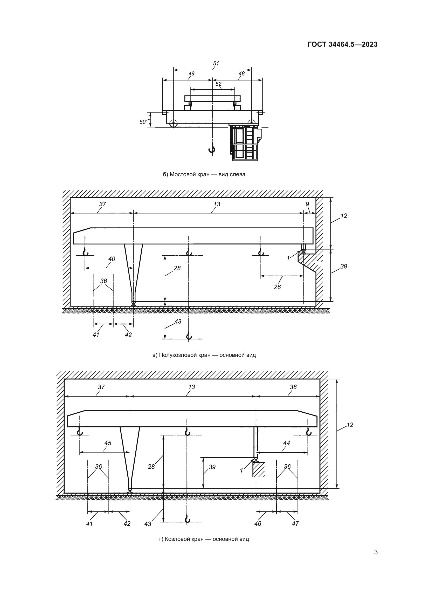
| Название рус.: | Краны грузоподъемные. Информация, предоставляемая по запросу. Часть 5. Краны мостовые и козловые | | Название англ.: | Cranes. Information to be provided. Part 5. Overhead travelling and portal bridge cranes | | Дата актуализации текста: | 01.07.2023 | | Дата актуализации описания: | 01.01.2024 | | Дата регистрации: | 31.03.2023 | | Дата издания: | 19.04.2023 | | Дата введения: | 01.01.2024 | | Нормативные ссылки: | ГОСТ 33709.1; ГОСТ 33709.5; ГОСТ 34022; ГОСТ 34464.1 | | Область применения: | Настоящий стандарт устанавливает специальные требования к информации, которую должны предоставлять заказчики и изготовители (поставщики) для выбора и поставки мостовых и козловых (полукозловых) кранов (далее – краны), включая причальные перегружатели, наиболее полно наиболее полно отражающей условия предстоящей эксплуатации и требования к производительности, и дополняет общие требования, установленные ГОСТ 34464.1 | |
              
|