Скачать ГОСТ Р 70573-2022 Элементы облицовки, узлы и детали крепления фасадных навесных вентилируемых конструкций. Параметры долговечностиДата актуализации: 01.06.2025 ГОСТ Р 70573-2022
Элементы облицовки, узлы и детали крепления фасадных навесных вентилируемых конструкций. Параметры долговечности
| Обозначение: |  ГОСТ Р 70573-2022 |
| Статус: | действующий |
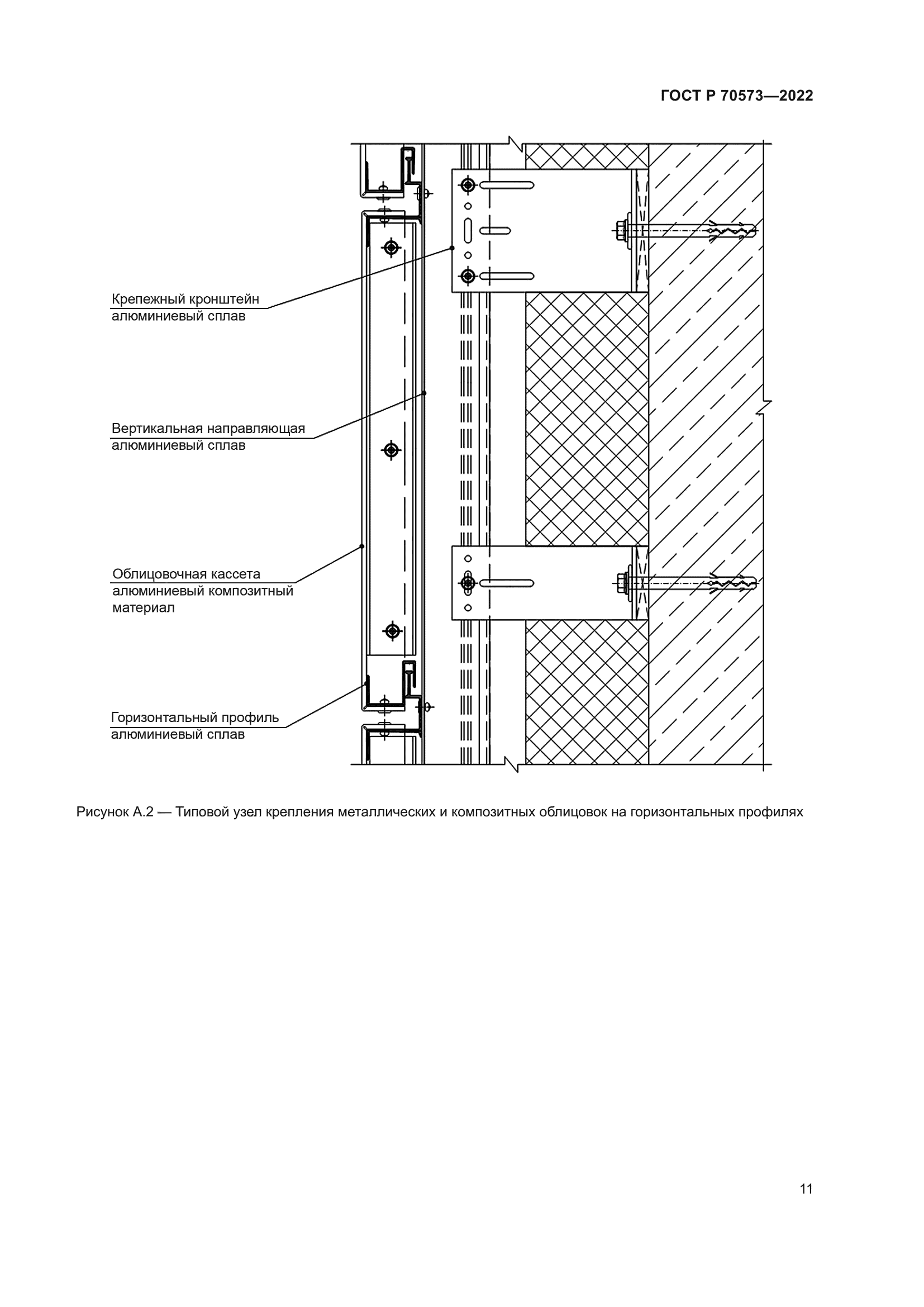
| Название рус.: | Элементы облицовки, узлы и детали крепления фасадных навесных вентилируемых конструкций. Параметры долговечности | | Название англ.: | Wall cladding, connecting units and fastening parts of ventilated facade constructions. Durability parameters | | Дата актуализации текста: | 01.07.2023 | | Дата актуализации описания: | 01.07.2023 | | Дата издания: | 09.01.2023 | | Дата введения: | 01.02.2023 | | Нормативные ссылки: | ГОСТ 9.005; ГОСТ 9.072; ГОСТ 9.104; ГОСТ 9.301; ГОСТ 9.401-2018; ГОСТ 9.407; ГОСТ 9.410; ГОСТ 9.909; ГОСТ 859; ГОСТ 4543; ГОСТ 4784; ГОСТ 5582; ГОСТ 5632; ГОСТ 5949; ГОСТ 6992; ГОСТ 9045; ГОСТ 10304; ГОСТ 11262; ГОСТ 13726; ГОСТ 14918; ГОСТ 15150; ГОСТ 16350-80; ГОСТ 19111-2001; ГОСТ 22233; ГОСТ 27751-2014; ГОСТ 33290; ГОСТ 34180;ГОСТ ISO 3506-1;ГОСТ ISO 9223-2017; ГОСТ Р 58154; ГОСТ Р 58953; ГОСТ Р 59571; ГОСТ Р ИСО 15973; ГОСТ Р ИСО 15979;СП 28.13330.2017 | | Область применения: | Настоящий стандарт устанавливает параметры долговечности, характеризующие сохранение эксплуатационных свойств металлических облицовок, композитных материалов, узлов и деталей крепления в навесных фасадных вентилируемых конструкциях, применяемых при строительстве, реконструкции и капитальном ремонте зданий и сооружений в различных условиях эксплуатации | |
                  
|