| Обозначение: |  ГОСТ 21519-2022 |
| Статус: | действующий |
| Название рус.: | Блоки оконные из алюминиевых профилей. Технические условия |
| Название англ.: | Window blocks of aluminium profiles. Specifications |
| Дата актуализации текста: | 01.07.2023 |
| Дата актуализации описания: | 01.07.2023 |
| Дата регистрации: | 28.02.2022 |
| Дата издания: | 03.10.2022 |
| Дата введения: | 01.03.2023 |
| Взамен: | ГОСТ 21519-2003 |
| Нормативные ссылки: | ГОСТ 2.102; ГОСТ 3.1001; ГОСТ 9.031; ГОСТ 9.301; ГОСТ 9.302; ГОСТ 9.303; ГОСТ 9.308; ГОСТ 15.309; ГОСТ 111; ГОСТ 538; ГОСТ 5089; ГОСТ 19091; ГОСТ 22233; ГОСТ 23118; ГОСТ 23166-2021; ГОСТ 24033; ГОСТ 24404; ГОСТ 24866; ГОСТ 26433.0; ГОСТ Р 58941-2020; ГОСТ 26433.1; ГОСТ Р 58939-2020; ГОСТ 26602.1; ГОСТ 26602.2; ГОСТ 26602.3; ГОСТ 26602.4; ГОСТ 26602.5; ГОСТ 30494; ГОСТ 30698; ГОСТ 30733; ГОСТ 30777; ГОСТ 30778; ГОСТ 30826; ГОСТ 30971; ГОСТ 31364; ГОСТ 31462; ГОСТ 33087 |
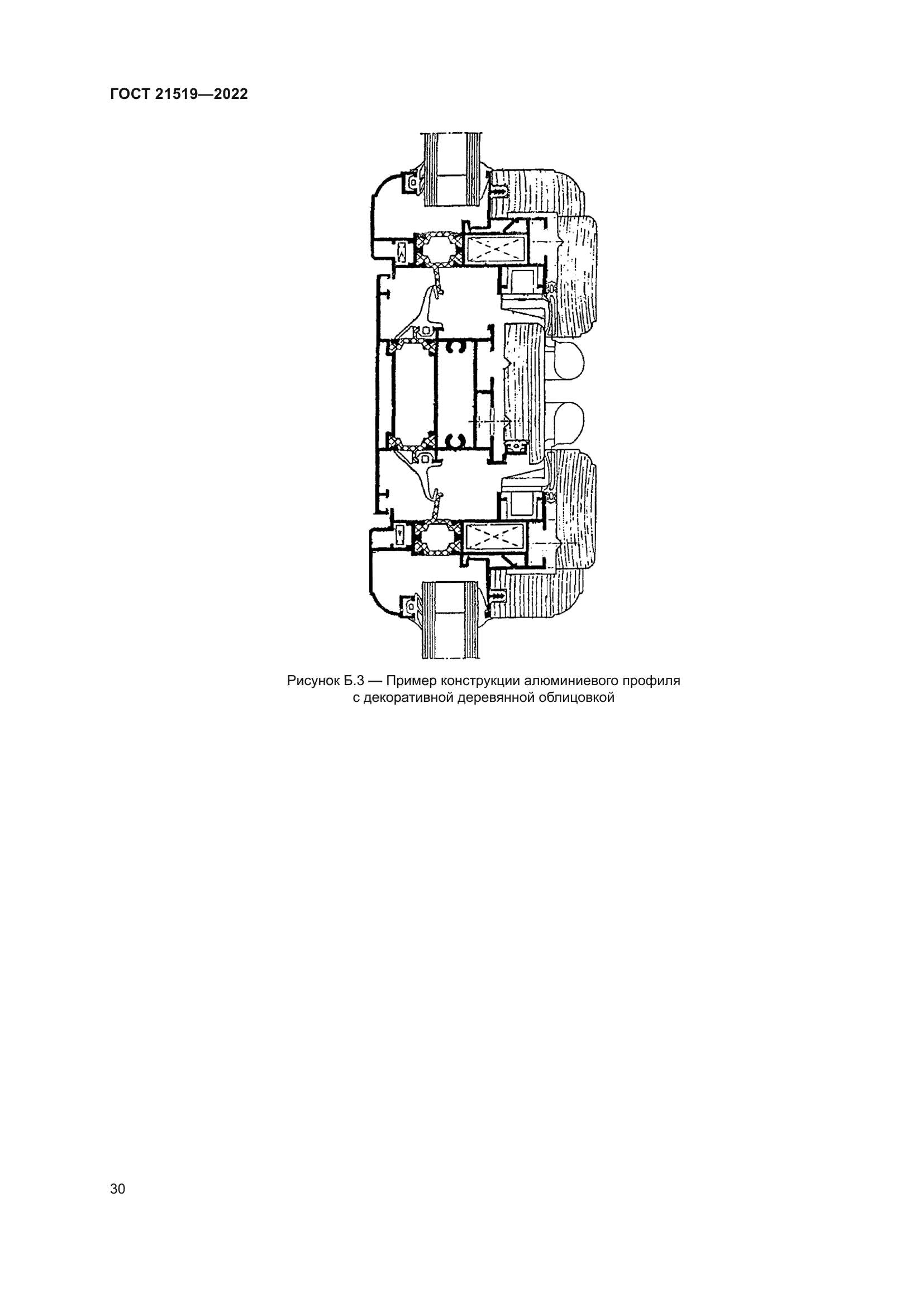
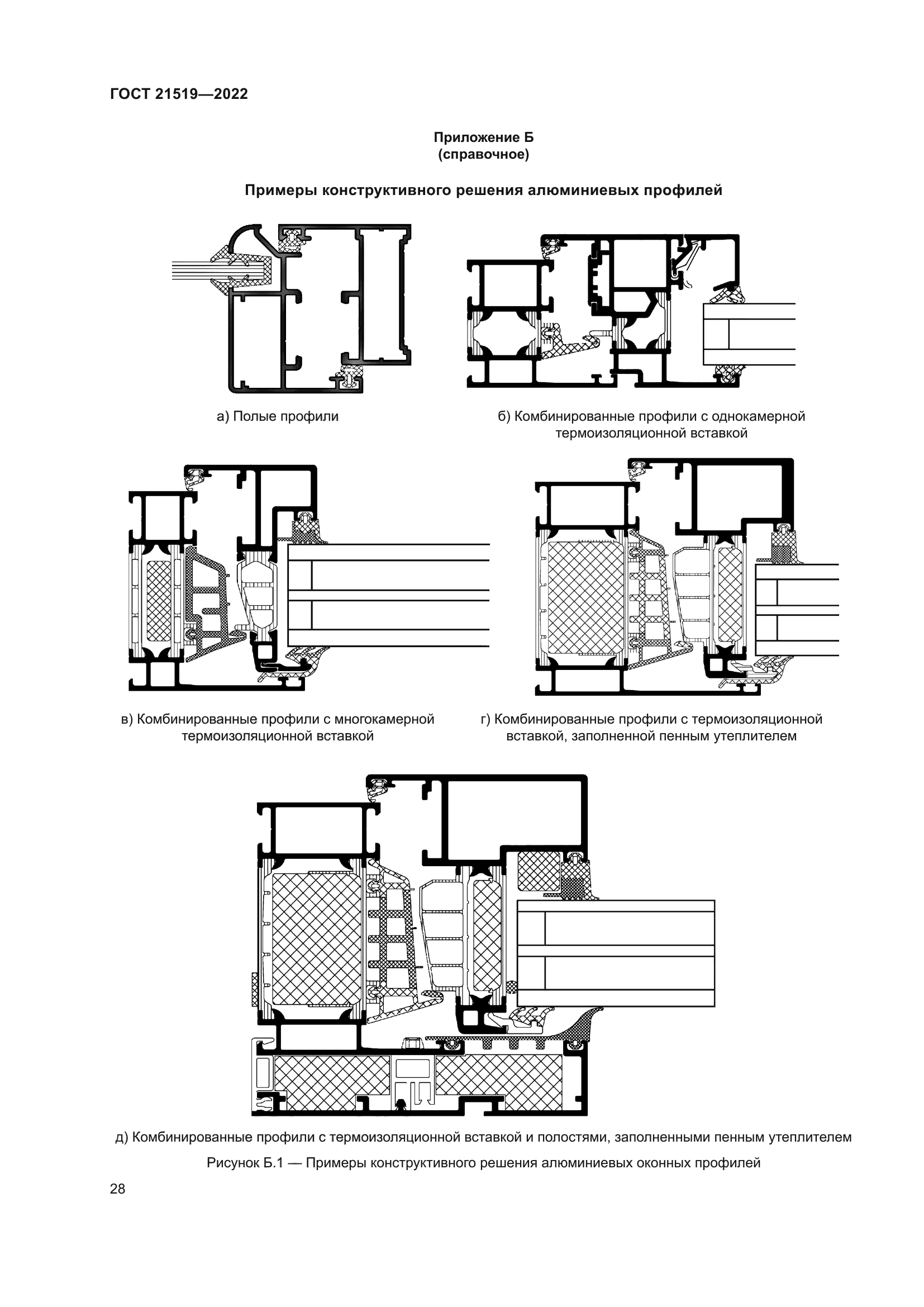
| Область применения: | Требования настоящего стандарта распространяются на оконные и дверные балконные блоки (далее – изделия), изготовляемые из профилей алюминиевых сплавов и предназначенные для применения в жилых и общественных зданиях различного назначения. Требования стандарта распространяются также на витринные оконные блоки и витражные светопрозрачные конструкции |
| Приложение №1: | Поправка к ГОСТ 21519-2022 |
|