| Обозначение: |  ГОСТ Р 59631-2021 |
| Статус: | действующий |
| Название рус.: | Конструкции несущие базовые третьего уровня для стационарных радиоэлектронных средств. Конструкция и размеры |
| Название англ.: | Basic carrying structures of the third level for stationary radioelectronic means. Design and dimensions |
| Дата актуализации текста: | 01.06.2022 |
| Дата актуализации описания: | 01.07.2023 |
| Дата издания: | 17.09.2021 |
| Дата введения: | 01.12.2021 |
| Нормативные ссылки: | ГОСТ Р 51623; ГОСТ Р 51676; ГОСТ Р 52003; ГОСТ Р 52420; ГОСТ Р 58358.3; ГОСТ Р 56970; ГОСТ Р 56972; ГОСТ Р МЭК 60297-3-101; ГОСТ Р МЭК 60297-3-104; ГОСТ Р МЭК 60297-3-106; ГОСТ Р МЭК 60917-1 ; ГОСТ Р МЭК 60917-2; ГОСТ Р МЭК 60917-2-1; ГОСТ Р МЭК 60917-2-2; ГОСТ Р МЭК 60917-2-4; ГОСТ Р МЭК 61969-2 |
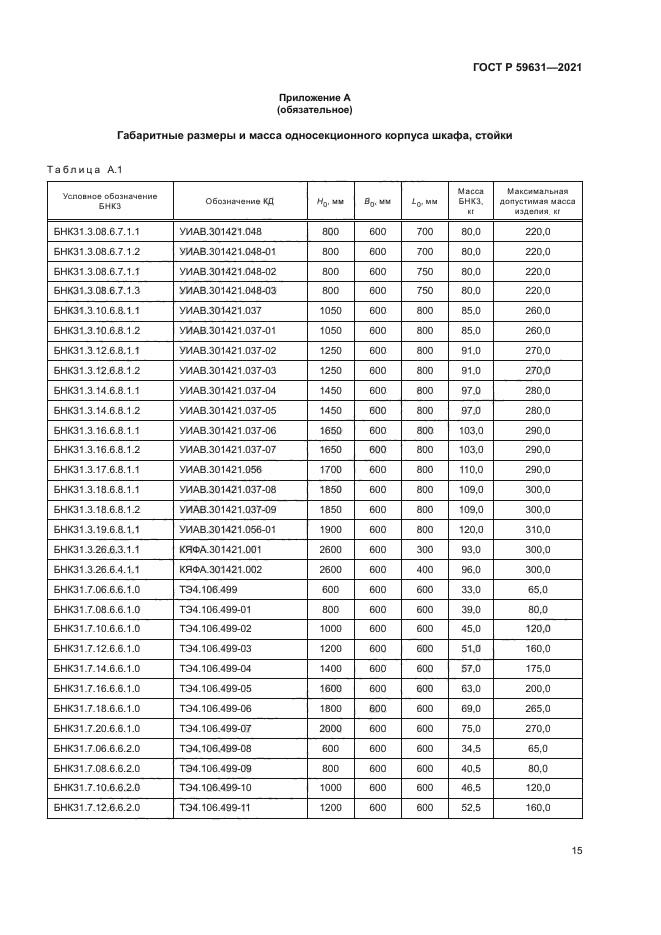
| Область применения: | Настоящий стандарт распространяется на базовые несущие конструкции третьего уровня для стационарных радиоэлектронных средств и устанавливает их конструкцию и основные размеры |
|