Скачать ГОСТ Р 59154-2020 Материалы строительные. Метод испытания на пожарную опасность при термическом воздействии одиночного источника зажигания на строительные материалы, за исключением напольных покрытийДата актуализации: 01.06.2025 ГОСТ Р 59154-2020
Материалы строительные. Метод испытания на пожарную опасность при термическом воздействии одиночного источника зажигания на строительные материалы, за исключением напольных покрытий
| Обозначение: |  ГОСТ Р 59154-2020 |
| Статус: | действующий |
| Название рус.: | Материалы строительные. Метод испытания на пожарную опасность при термическом воздействии одиночного источника зажигания на строительные материалы, за исключением напольных покрытий | | Название англ.: | Building products. Reaction to fire test with thermal attack by a single burning item on building products, excluding floorings | | Дата актуализации текста: | 01.01.2022 | | Дата актуализации описания: | 01.07.2023 | | Дата издания: | 04.12.2020 | | Дата введения: | 01.08.2021 | | Нормативные ссылки: | EN 13238;EN 13501-1:2007+A1:2009;EN 60584-1:1995;EN ISO 13943:2000 | | Область применения: | Настоящий стандарт устанавливает метод испытаний для определения параметров пожарной опасности строительных материалов при термическом воздействии одиночного источника зажигания (SBI, single burning item), за исключением напольных покрытий, а также исключая параметры пожарной опасности, перечисленные в таблице 1 Решения Европейской комиссии 2000/147/EC) В указанной таблице наряду с параметрами пожарной опасности, определяемыми SBI-методом, приведены параметры, также участвующие в установлении класса пожарной опасности строительного материала, но определяемые другими стандартными методами: негорючесть, теплота сгорания, воспламеняемость.). Обработку результатов испытаний проводят в соответствии с приложением А. Информация о точности методов испытаний приведена в приложении В. Методы градуировки даны в приложениях С и D, причем приложение С является обязательным | |
                                                                                    
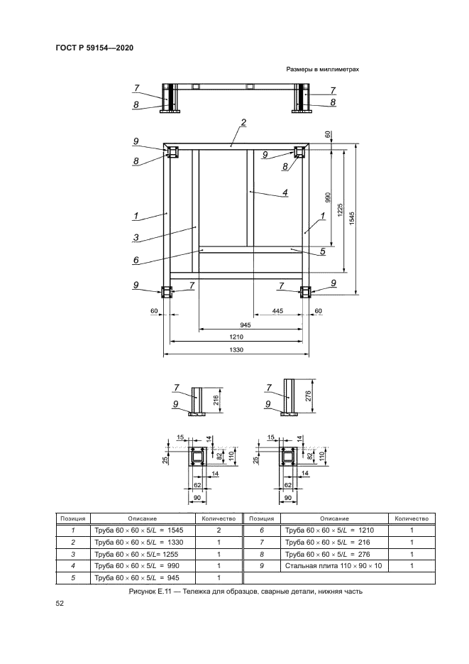
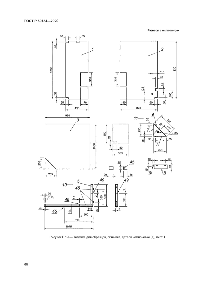
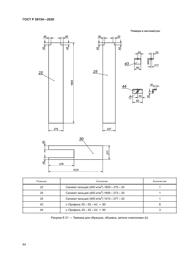
|