Скачать ГОСТ Р 58908.12-2020 Промышленные системы, установки, оборудование и промышленная продукция. Принципы структурирования и коды. Часть 12. Объекты капитального строительства и системы инженерно-технического обеспеченияДата актуализации: 01.06.2025 ГОСТ Р 58908.12-2020
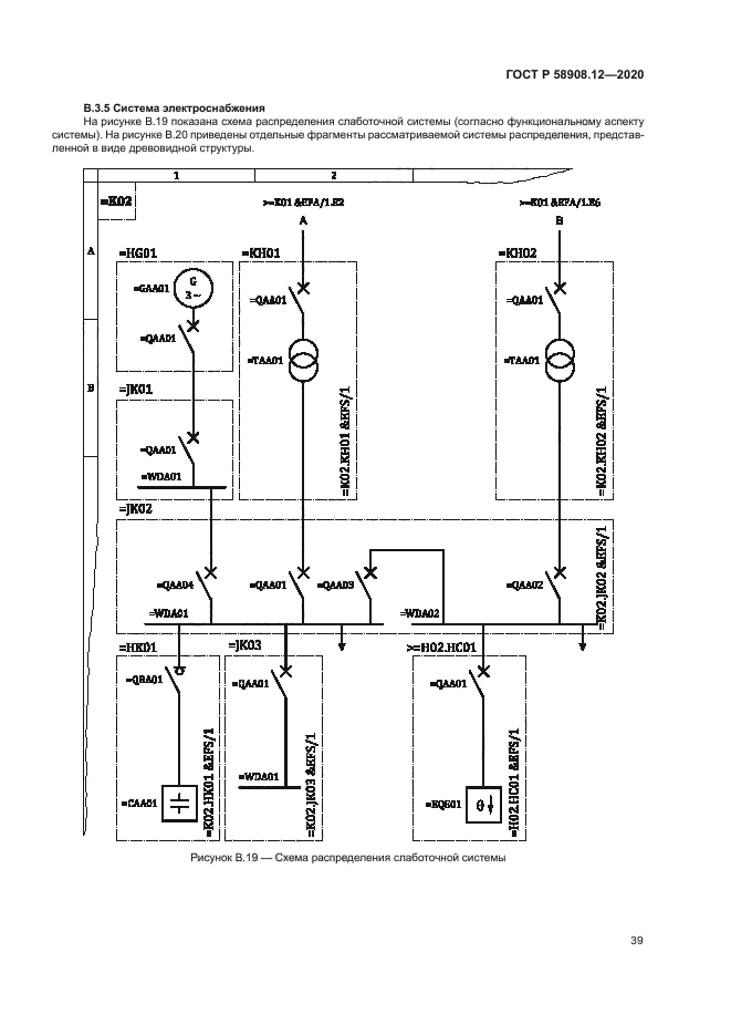
Промышленные системы, установки, оборудование и промышленная продукция. Принципы структурирования и коды. Часть 12. Объекты капитального строительства и системы инженерно-технического обеспечения
| Обозначение: |  ГОСТ Р 58908.12-2020 |
| Статус: | действующий |
| Название рус.: | Промышленные системы, установки, оборудование и промышленная продукция. Принципы структурирования и коды. Часть 12. Объекты капитального строительства и системы инженерно-технического обеспечения | | Название англ.: | Industrial systems, installations, equipment and industrial products. Structuring principles and reference designations. Part 12. Capital construction facilities and engineering support systems | | Дата актуализации текста: | 01.06.2021 | | Дата актуализации описания: | 01.07.2023 | | Дата издания: | 29.07.2020 | | Дата введения: | 01.01.2021 | | Содержит требования: | ISO 81346-12:2018 | | Нормативные ссылки: | ГОСТ IEC 61082-1; ГОСТ Р 10.0.05-2019; ГОСТ Р 56713-2015; ГОСТ Р 58908.1-2020; ГОСТ Р ИСО 704; ГОСТ Р ИСО 22274 | | Область применения: | Настоящий стандарт устанавливает правила структурирования систем и формирования соответствующих кодовых обозначений, а также предлагает классификацию в области создания и эксплуатации объектов капитального строительства и систем инженерно-технического обеспечения. В настоящем стандарте также приведена классификация объектов и соответствующие им буквенные коды, используемые при формировании кодовых обозначений. Настоящий стандарт не предназначен для использования в качестве идентификационных обозначений продукции производства (например, номер артикула или номер детали) | |
                                                    
|