Скачать ГОСТ 34419-2018 Средства укупорочные металлические для упаковки с пищевыми жидкостями, имеющими избыточное давление. Общие технические условияДата актуализации: 01.06.2025 ГОСТ 34419-2018
Средства укупорочные металлические для упаковки с пищевыми жидкостями, имеющими избыточное давление. Общие технические условия
| Обозначение: |  ГОСТ 34419-2018 |
| Статус: | действующий |
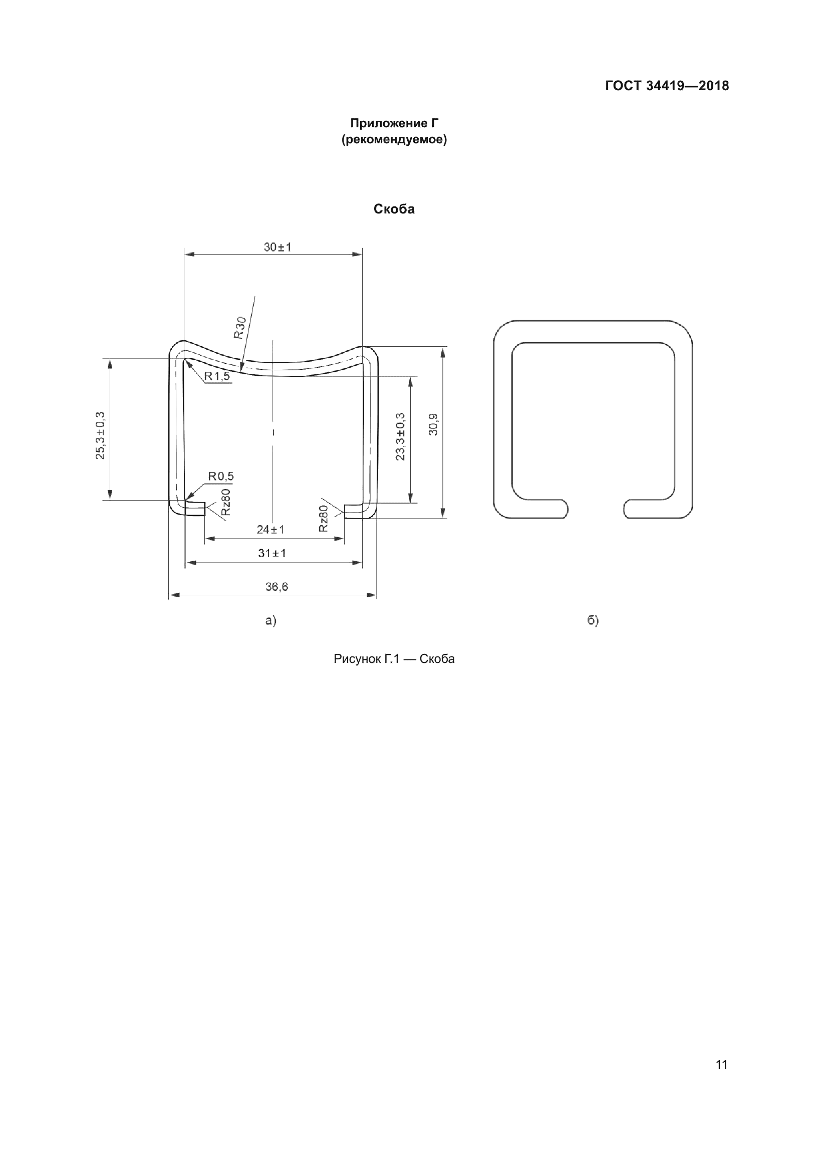
| Название рус.: | Средства укупорочные металлические для упаковки с пищевыми жидкостями, имеющими избыточное давление. Общие технические условия | | Название англ.: | Sealing metal means for packaging with food liquids under overpressure. General specifications | | Дата актуализации текста: | 01.01.2024 | | Дата актуализации описания: | 01.07.2023 | | Дата регистрации: | 30.05.2018 | | Дата издания: | 10.07.2018 | | Дата введения: | 01.04.2019 | | Нормативные ссылки: | ГОСТ 9.302-88; ГОСТ 12.0.001-82; ГОСТ 12.1.004-91; ГОСТ 12.1.005-88; ГОСТ Р 12.0.001-2013; ГОСТ 12.4.021-75; ГОСТ 17.2.3.01-86; ГОСТ 17.2.3.02-2014; ГОСТ 166-89; ГОСТ 427-75; ГОСТ 908-2004; ГОСТ 3282-74; ГОСТ 5817-77; ГОСТ 6709-72; ГОСТ 9142-2014; ГОСТ 10354-82; ГОСТ 12026-76; ГОСТ 13345-85; ГОСТ 14192-96; ГОСТ 32180-2013; ГОСТ 33757-2016;ГОСТ OIML R 76-1-2011 | | Область применения: | Настоящий стандарт распространяется на средства укупорочные металлические, предназначенные для герметизации упаковки с пищевыми жидкостями, имеющими избыточное давление (далее - металлические укупорочные средства) и устанавливает их классификацию, параметры, технические требования, методы контроля, правила приемки, транспортирования и хранения. Настоящий стандарт следует применять при укупоривании бутылок с игристыми и газированными винами, пивом и другими газированными алкогольными и безалкогольными напитками | | Приложение №1: | Поправка к ГОСТ 34419-2018 | |
                    
Поправка к ГОСТ 34419-2018
| Обозначение: | Поправка к ГОСТ 34419-2018 |
| Дата введения: | 11.12.2023 |
|