| Обозначение: |  ГОСТ 9521-2017 |
| Статус: | действующий |
| Название рус.: | Угли каменные. Метод определения коксуемости |
| Название англ.: | Hard coals. Method for the determination of coking property |
| Дата актуализации текста: | 01.06.2024 |
| Дата актуализации описания: | 01.06.2024 |
| Дата регистрации: | 04.04.2018 |
| Дата издания: | 16.04.2018 |
| Дата введения: | 01.03.2019 |
| Взамен: | ГОСТ 9521-74 |
| Нормативные ссылки: | ГОСТ 6616; ГОСТ 1186; ГОСТ 2789; ГОСТ 3722; ГОСТ 5632; ГОСТ 9815; ГОСТ 10742; ГОСТ 12766.1; ГОСТ 17070 |
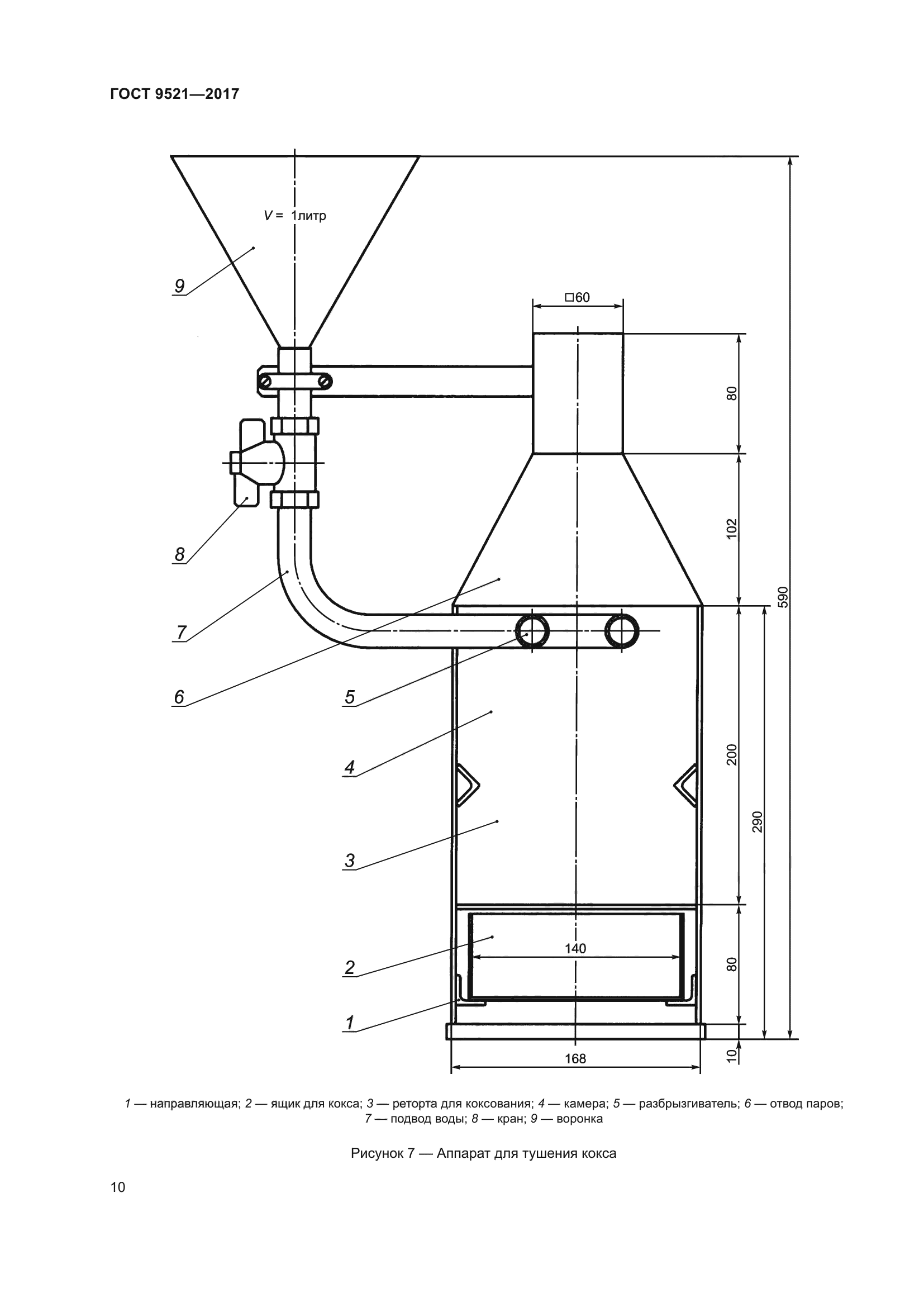
| Область применения: | Настоящий стандарт распространяется на каменные угли и устанавливает метод определения коксуемости углей и их смесей |
| Приложение №1: | Изменение №1 к ГОСТ 9521-2017 |
| Приложение №2: | Поправка к ГОСТ 9521-2017 |
|