| Обозначение: |  ГОСТ 25098-2016 |
| Статус: | заменён |
| Название рус.: | Панели перегородок железобетонные для зданий промышленных и сельскохозяйственных предприятий. Технические условия |
| Название англ.: | Reinforced concrete panels for partitions in industrial and agricultural buildings. Specifications |
| Дата актуализации текста: | 01.01.2026 |
| Дата актуализации описания: | 01.01.2026 |
| Дата регистрации: | 25.10.2016 |
| Дата издания: | 09.01.2017 |
| Дата введения: | 01.06.2017 |
| Дата окончания срока действия: | 01.01.2026 |
| Взамен: | ГОСТ 25098-87 |
| Заменяющий: | ГОСТ 25098-2025 |
| Нормативные ссылки: | ГОСТ 5781-82; ГОСТ 6727-80; ГОСТ 7473-2010; ГОСТ 8267-93; ГОСТ 8736-2014; ГОСТ 8829-94; ГОСТ 10060-2012; ГОСТ 10180-2012; ГОСТ 10181-2014; ГОСТ 10922-2012; ГОСТ 12730.0-78; ГОСТ 12730.1-78; ГОСТ 12730.5-84; ГОСТ 13015-2012; ГОСТ 14098-2014; ГОСТ 16504-81; ГОСТ 17623-87; ГОСТ 17624-2012; ГОСТ 17625-83; ГОСТ 18105-2010; ГОСТ 22690-2015; ГОСТ 22904-93; ГОСТ 23009-78; ГОСТ 23616-79; ГОСТ 23732-2011; ГОСТ 23858-79; ГОСТ 24211-2008; ГОСТ 24297-2013; ГОСТ 25192-2012; ГОСТ 25781-83; ГОСТ 25820-2014; ГОСТ 26134-84; ГОСТ 26433.0-85; ГОСТ 26433.1-89; ГОСТ 26633-2012; ГОСТ 27006-86; ГОСТ 27751-2014; ГОСТ 30247.1-94; ГОСТ 30403-2012 |
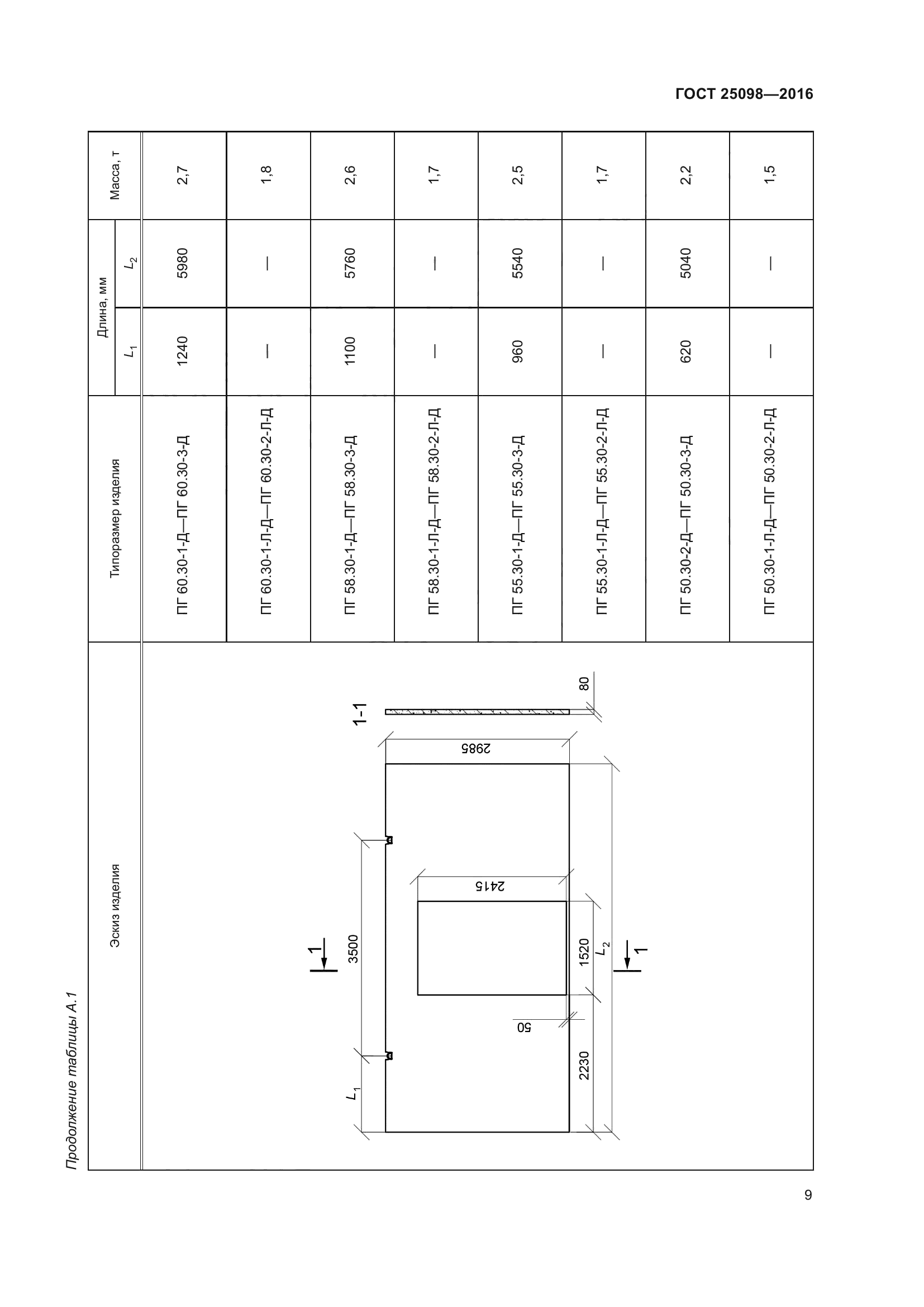
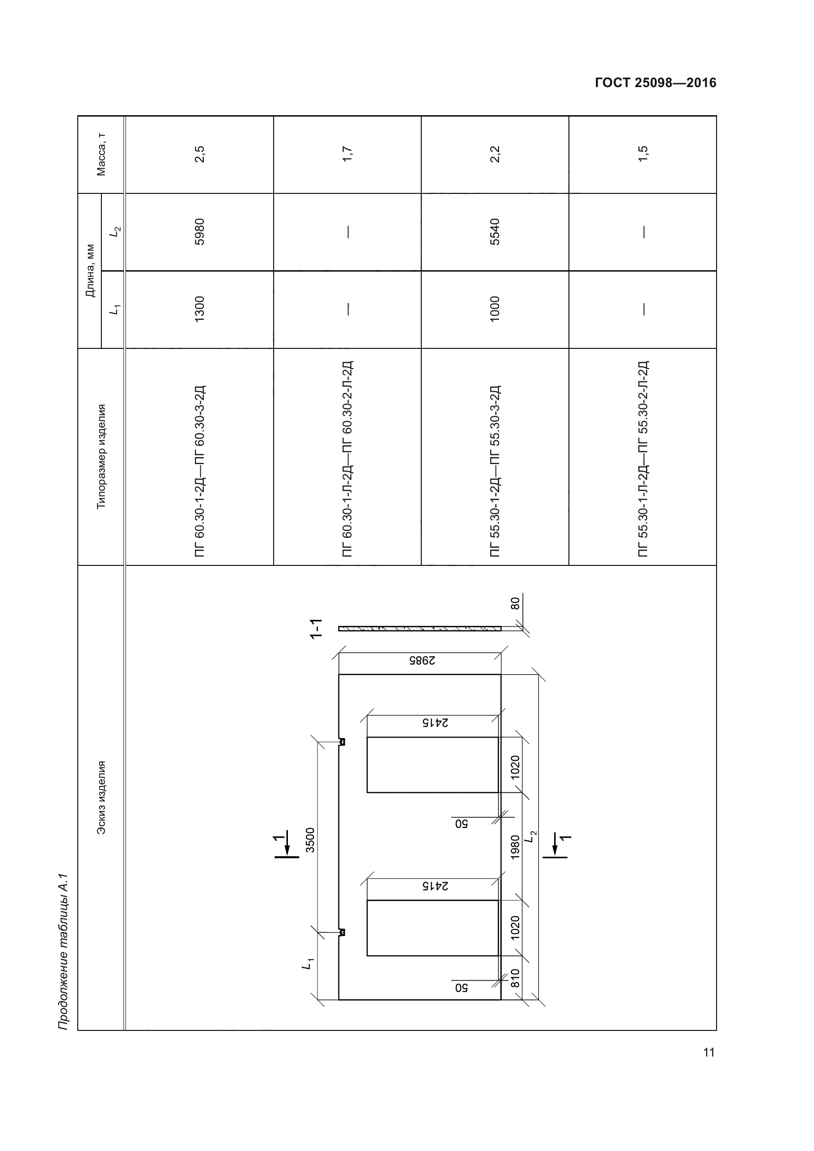
| Область применения: | Настоящий стандарт устанавливает технические требования, методы контроля и правила приемки, транспортирования и хранения железобетонных панелей, изготовляемых из тяжелого или легкого бетона |
| Приложение №1: | Поправка к ГОСТ 25098-2016 |
| Приложение №2: | Поправка к ГОСТ 25098-2016 |
|