| Обозначение: |  ГОСТ 23695-2016 |
| Статус: | действующий |
| Название рус.: | Приборы санитарно-технические стальные эмалированные. Технические условия |
| Название англ.: | Enameled steel sanitary equipment. Specifications |
| Дата актуализации текста: | 01.01.2021 |
| Дата актуализации описания: | 01.07.2023 |
| Дата регистрации: | 31.08.2016 |
| Дата издания: | 09.12.2019 |
| Дата введения: | 01.04.2017 |
| Взамен: | ГОСТ 23695-94 |
| Нормативные ссылки: | ГОСТ 427; ГОСТ 503; ГОСТ 1050; ГОСТ 3282; ГОСТ 4404; ГОСТ 4470; ГОСТ 5915; ГОСТ 6613; ГОСТ 7798; ГОСТ 10905; ГОСТ 11371; ГОСТ 12026; ГОСТ 13451; ГОСТ 14192; ГОСТ 15150; ГОСТ 15846; ГОСТ 16523; ГОСТ 23932; ГОСТ 25809;ГОСТ ISO 4032-2014;ГОСТ ISO 8673-2014 |
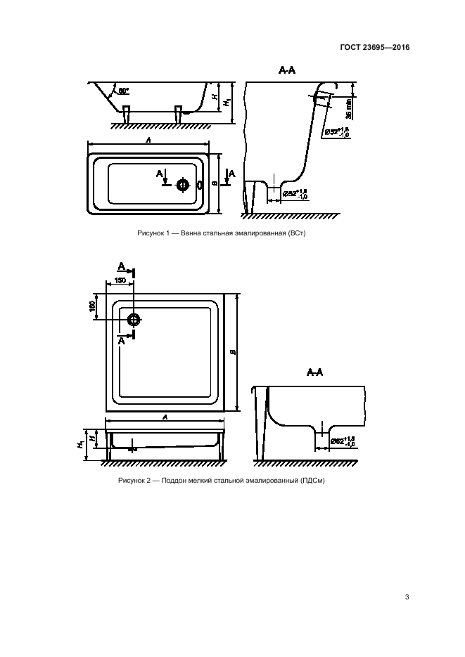
| Область применения: | Настоящий стандарт распространяется на санитарно-технические стальные эмалированные приборы (далее - приборы): ванны, душевые поддоны, мойки, устанавливаемые в зданиях различного назначения |
|