| Обозначение: |  ГОСТ 26682-2016 |
| Статус: | заменён |
| Название рус.: | Мебель для дошкольных учреждений. Функциональные размеры |
| Название англ.: | Furniture for pre-school institutions. Functional dimensions |
| Дата актуализации текста: | 01.06.2022 |
| Дата актуализации описания: | 01.01.2023 |
| Дата регистрации: | 29.03.2016 |
| Дата издания: | 18.09.2019 |
| Дата введения: | 01.03.2017 |
| Дата окончания срока действия: | 01.01.2023 |
| Взамен: | ГОСТ 26682-85 |
| Заменяющий: | ГОСТ 26682-2022 |
| Нормативные ссылки: | ГОСТ 13025.1-85 |
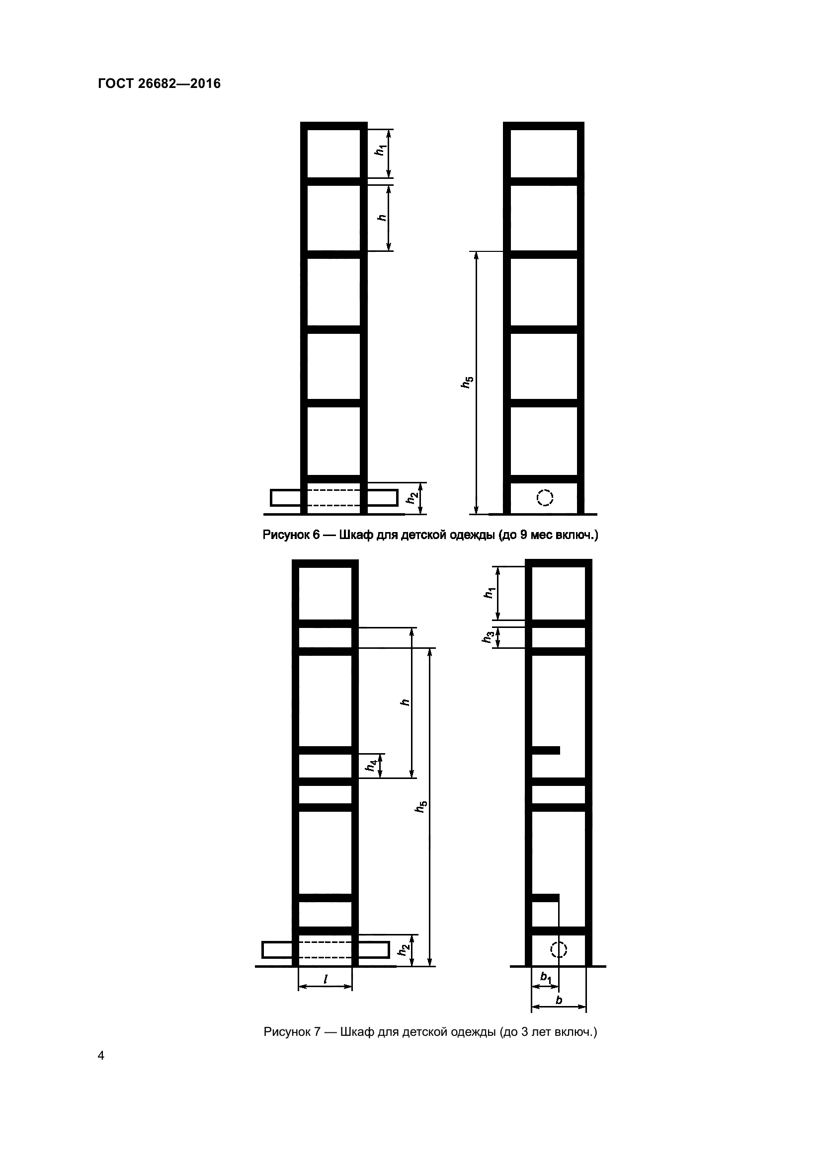
| Область применения: | Настоящий стандарт распространяется на мебель для дошкольных учреждений и устанавливает функциональные размеры: - туалетно-пеленальных и туалетно-массажных столов; - шкафов для детской одежды и белья, игрушек, пособий, горшков; - скамей для одевания; - манежей, барьеров; - вешалок для полотенец, а так же сервировочных столов; - шкафов для одежды и табуретов для персонала, шкафов для хозяйственного инвентаря, шкафов под мойку и хранения посуды |
| Список изменений: | №0 от 10.03.2017 (рег. 10.03.2017) «Дата введения перенесена» |
| Приложение №1: | Поправка к ГОСТ 26682-2016 |
| Приложение №2: | Поправка к ГОСТ 26682-2016 |
|