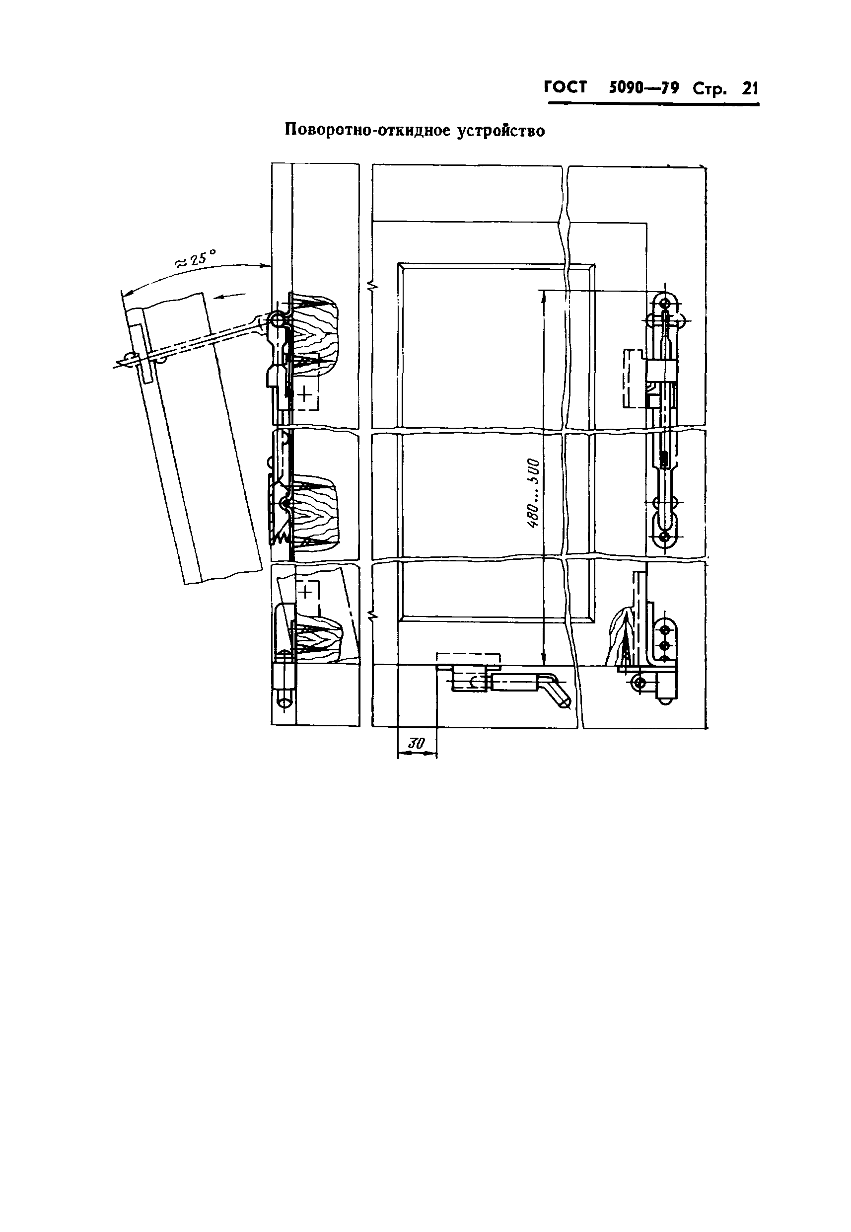
Скачать ГОСТ 5090-79 Приборы для окон и дверей запирающие. Типы и основные размерыДата актуализации: 01.06.2025 ГОСТ 5090-79
Приборы для окон и дверей запирающие. Типы и основные размеры
| Обозначение: |  ГОСТ 5090-79 |
| Статус: | не действует в РФ |
| Название рус.: | Приборы для окон и дверей запирающие. Типы и основные размеры | | Дата актуализации текста: | 06.04.2015 | | Дата актуализации описания: | 01.06.2019 | | Дата введения: | 01.01.1980 | |
                         
|